チェックした物件(0件)をまとめて
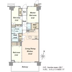
■31階部分 西向き ■56.72m2
■山手線内最大1247戸■1階にスーパー「リンコス」
画像:43枚



2億5,580万円
港区白金1丁目
東京メトロ南北線「白金高輪」駅 徒歩3分
都営三田線「白金高輪」駅 徒歩3分
- 間取り1LDK+SIC+N(納戸)
- 築年月2023年2月
- 専有面積56.72m2
- 所在階31階/45階建
- 向き西
- 総戸数1247戸

予約制内覧会開催! 4月11日(土)、4月12日(日) 10:00~17:00 予約制のため、現地に係員はおりません。事前にご予約をお願いします。
■2024年10月末リフォーム済 ■南向き角住戸につき陽当たり良好
■開放感ある広々約19.4帖のLDK・2LDK・70.68m2
画像:26枚



3,680万円
足立区梅田2丁目
東武伊勢崎・大師線「五反野」駅 徒歩11分
東武伊勢崎・大師線「梅島」駅 徒歩12分
- 間取り2LDK
- 築年月1999年1月
- 専有面積70.68m2
- 所在階2階/12階建
- 向き南
- 総戸数44戸

2023年1月築 野村不動産旧分譲×竹中工務店施工 総戸数421戸の大規模免震タワーレジデンス
~21階部分・72.58m2・3LDK+WIC・ワイドスパン設計・北西向き住戸~
画像:31枚



2億580万円
港区芝浦4丁目
山手線「田町」駅 徒歩11分
都営浅草線「三田」駅 徒歩13分
京浜東北・根岸線「田町」駅 徒歩11分
都営三田線「三田」駅 徒歩13分
- 間取り3LDK+ウォークインクローゼット×2
- 築年月2023年1月
- 専有面積72.58m2
- 所在階21階/33階建
- 向き北西
- 総戸数421戸

☆お台場方面を眺める開放的な眺望
☆グッドデザイン賞受賞(2006年度)
画像:35枚



1億2,980万円
港区港南3丁目
山手線「品川」駅 徒歩14分
京浜東北・根岸線「品川」駅 徒歩14分
東海道本線(東京~熱海)「品川」駅 徒歩14分
常磐線「品川」駅 徒歩14分
- 間取り2LDK+WIC
- 築年月2005年11月
- 専有面積67.17m2
- 所在階14階/32階建
- 向き南東
- 総戸数325戸

洋室から東京タワーを望む。3LDK+2WICのゆとりある角住戸。室内ご内覧可能です。
画像:31枚



3億9,000万円
渋谷区渋谷3丁目
山手線「渋谷」駅 徒歩8分
東京メトロ銀座線「渋谷」駅 徒歩5分
東急東横線「渋谷」駅 徒歩5分
- 間取り3LDK+2WIC
- 築年月2025年3月
- 専有面積86.36m2
- 所在階19階/26階建
- 向き北西
- 総戸数132戸

駅徒歩5分×第一種低層住居専用地域に佇む低層レジデンス!
戸建てライクに住めるメゾネット住戸!67.03m2の1SLDK!
画像:32枚



1億1,680万円
世田谷区代沢5丁目
小田急小田原線「下北沢」駅 徒歩5分
京王井の頭線「下北沢」駅 徒歩5分
- 間取り1LDK+S
- 築年月2018年2月
- 専有面積67.03m2
- 所在階1階/3階建
- 向き南
- 総戸数21戸

二子玉川エリア♪2023年2月水回りのリフォームを実施済み♪
開口部が南西側に広く確保された、解放感のあるお部屋です♪
画像:36枚



5,180万円
川崎市高津区北見方2丁目
東急田園都市線「二子新地」駅 徒歩12分
東急田園都市線「高津」駅 徒歩18分
東急田園都市線「二子玉川」駅 徒歩20分
- 間取り3LDK
- 築年月2001年2月
- 専有面積71.8m2
- 所在階2階/5階建
- 向き西
- 総戸数49戸

予約制内覧会開催! 4月11日(土)、4月12日(日)、4月18日(土)、4月19日(日) 10:00~17:00 予約制のため、現地に係員はおりません。事前にご予約をお願いします。
☆野村不動産旧分譲の【PROUD】シリーズ×JR「川崎」駅徒歩6分の好立地☆
☆12階・南西・南東角部屋・81m2超の3LDK住戸×認定保証適用物件☆
画像:31枚



1億3,980万円
川崎市幸区柳町
東海道本線(東京~熱海)「川崎」駅 徒歩6分
京急本線「京急川崎」駅 徒歩11分
京浜東北・根岸線「川崎」駅 徒歩6分
南武線「川崎」駅 徒歩6分
- 間取り3LDK
- 築年月2019年8月
- 専有面積81.31m2
- 所在階12階/14階建
- 向き南西
- 総戸数93戸

★大崎エリアのランドマークタワーマンション★16階北西角住戸
□リフォーム済(2025年7月)で室内は空室につき柔軟にご見学いただけます!
画像:31枚



2億4,900万円
品川区北品川5丁目
山手線「大崎」駅 徒歩6分
山手線「五反田」駅 徒歩13分
- 間取り3LDK+WIC
- 築年月2015年4月
- 専有面積77.48m2
- 所在階16階/40階建
- 向き西
- 総戸数734戸

■2016年11月築「リスト」ブランドマンション ■3LDK・65.57m2 ■床暖房・ディスポーザー付き
■5階南西向きのため眺望・陽当たり良好 ■ペット飼育可(細則有) ■野村の仲介+専任物件
画像:36枚



1億2,800万円
世田谷区中町5丁目
東急田園都市線「用賀」駅 徒歩11分
東急大井町線「上野毛」駅 徒歩17分
- 間取り3LDK
- 築年月2016年11月
- 専有面積65.57m2
- 所在階5階/7階建
- 向き南西
- 総戸数48戸

◇緑あふれる新宿御苑に隣接する好立地
◇10階建て4階部分:南・西向きの角住戸
画像:23枚



1億8,980万円
新宿区内藤町
東京メトロ丸ノ内線「四谷三丁目」駅 徒歩7分
東京メトロ丸ノ内線「新宿御苑前」駅 徒歩7分
都営大江戸線「国立競技場」駅 徒歩11分
中央・総武線「千駄ケ谷」駅 徒歩12分
- 間取り2LDK+2WIC+SIC
- 築年月2020年3月
- 専有面積63.5m2
- 所在階4階/10階建
- 向き西
- 総戸数38戸

予約制内覧会開催! 4月11日(土)、4月12日(日)、4月18日(土)、4月19日(日) 10:00~17:00 予約制のため、現地に係員はおりません。事前にご予約をお願いします。
■新規リノベーション物件(2025年8月完成) ■横長のワイドリビング
■空室のためご都合に合わせてご内覧いただけます。担当:佐藤(070-4803-7474)
画像:31枚



1億2,500万円
目黒区下目黒2丁目
山手線「目黒」駅 徒歩10分
東京メトロ南北線「目黒」駅 徒歩10分
都営三田線「目黒」駅 徒歩10分
東急目黒線「不動前」駅 徒歩8分
- 間取り1LDK+S+ウォークインクローゼット
- 築年月2004年8月
- 専有面積66.88m2
- 所在階3階/9階建
- 向き南西
- 総戸数69戸

予約制内覧会開催! 4月11日(土)、4月12日(日)、4月18日(土)、4月19日(日) 10:00~18:00 予約制のため、現地に係員はおりません。事前にご予約をお願いします。
■富士山&花火大会(北区花火会/川口花火大会/いたばし花火大会)を望む眺望
■ハイサッシ&ダイレクトウィンドウで開放感のある角部屋 ■豊富な収納(WIC、パントリー、トランクルーム)
画像:43枚



1億4,680万円
北区上十条2丁目
埼京線「十条」駅 徒歩1分
京浜東北・根岸線「東十条」駅 徒歩9分
- 間取り2LDK+WIC+TR
- 築年月2024年10月
- 専有面積74.91m2
- 所在階14階/39階建
- 向き北東
- 総戸数578戸

最寄り駅まで徒歩4分、渋谷駅までも徒歩18分と好立地でありながら、東・北・西の3方角部屋の独立感と、10階から眺める渋谷の夜景により都会の喧騒を忘れさせるような、安らぎを感じるレジデンスです。
画像:31枚



1億5,800万円
渋谷区恵比寿南3丁目
東急東横線「代官山」駅 徒歩4分
山手線「恵比寿」駅 徒歩7分
東京メトロ日比谷線「中目黒」駅 徒歩8分
山手線「渋谷」駅 徒歩18分
- 間取り1LDK+S+トランクルーム
- 築年月2005年4月
- 専有面積50.46m2
- 所在階10階/12階建
- 向き西
- 総戸数47戸

予約制内覧会開催! 4月11日(土)、4月12日(日) 予約制のため、現地に係員はおりません。事前にご予約をお願いします。
◆小田急線「生田」駅より徒歩4分 ◆最上階・角住戸
◆生田小学校まで徒歩1分・子育てのしやすい住環境
画像:27枚



5,980万円
川崎市多摩区生田7丁目
小田急小田原線「生田」駅 徒歩4分
小田急小田原線「向ヶ丘遊園」駅 バス13分 (バス停 生田大橋) 徒歩6分
小田急小田原線「読売ランド前」駅 徒歩19分
- 間取り3LDK+ウォークインクローゼット
- 築年月2020年9月
- 専有面積70.45m2
- 所在階7階/7階建
- 向き東
- 総戸数125戸

☆87.75m2×4LDK×5階×北・東・南向き×角部屋 ☆各居室収納スペース有 ☆33m2超の3方角対応バルコニーにつき、陽当たり、通風良好 ☆リフォーム履歴有(2015年~2017年)
画像:40枚



5,750万円
川口市川口1丁目
京浜東北・根岸線「川口」駅 徒歩10分
埼玉高速鉄道「川口元郷」駅 徒歩14分
東京メトロ南北線「赤羽岩淵」駅 徒歩24分
埼玉高速鉄道「赤羽岩淵」駅 徒歩24分
- 間取り4LDK
- 築年月1994年2月
- 専有面積87.75m2
- 所在階5階/29階建
- 向き南東
- 総戸数177戸

京成大久保駅「徒歩3分」/2018年11月築・住友不動産旧分譲マンション/3LDK+N+2WIC/南東向き
設備充実/住まいの柔軟性を高めるフレキシブルな間取り
画像:26枚



4,780万円
習志野市大久保1丁目
京成本線「京成大久保」駅 徒歩3分
京成松戸線「新津田沼」駅 徒歩28分
- 間取り3LDK+納戸+2ウォークインクローゼット
- 築年月2018年11月
- 専有面積70.2m2
- 所在階5階/15階建
- 向き南東
- 総戸数225戸

◇野村不動産(株)旧分譲【プラウド】シリーズ×東西線「東陽町駅」徒歩4分の好立地×【防音室付き】
~楽器演奏の他にも、在宅ワークや深夜の映画鑑賞など多岐にわたってご利用可能です!~
画像:31枚



1億1,980万円
江東区東陽2丁目
東京メトロ東西線「東陽町」駅 徒歩4分
- 間取り3LDK+納戸+WIC
- 築年月2018年5月
- 専有面積68.25m2
- 所在階2階/11階建
- 向き西
- 総戸数97戸

2024年1月築・東急田園都市線「市が尾」駅徒歩7分!収納豊富な3LDK住戸。日当たり良好!
画像:38枚



6,680万円
横浜市青葉区荏田西1丁目
東急田園都市線「市が尾」駅 徒歩7分
東急田園都市線「江田」駅 徒歩10分
- 間取り3LDK+WIC×2+納戸
- 築年月2024年1月
- 専有面積72.84m2
- 所在階2階/7階建
- 向き南東
- 総戸数52戸

2021年2月築・大和地所レジデンス(株)の旧分譲マンション
ホテルライクな内廊下設計です。お部屋からみなとみらいの花火が見えます
画像:26枚



5,980万円
横浜市神奈川区浦島町
京急本線「神奈川新町」駅 徒歩5分
京急本線「子安」駅 徒歩8分
京浜東北・根岸線「東神奈川」駅 徒歩14分
- 間取り2LDK+WIC+SIC
- 築年月2021年2月
- 専有面積53.71m2
- 所在階8階/11階建
- 向き南西
- 総戸数51戸

■【47.34m2・2DK+WIC】の間取り ■2023年リフォーム履歴あり
■日暮里舎人ライナー「江北」駅 徒歩7分
画像:16枚



1,980万円
足立区西新井本町2丁目
日暮里舎人ライナー「江北」駅 徒歩7分
日暮里舎人ライナー「西新井大師西」駅 徒歩7分
- 間取り2DK+WIC
- 築年月1979年11月
- 専有面積47.34m2
- 所在階3階/8階建
- 向き南
- 総戸数28戸

★2026年1月中旬新規リフォーム完了 ★京急本線の急行停車駅である「立会川」駅 徒歩5分
★3LDK/66.85m2
画像:39枚



6,280万円
品川区南大井1丁目
京急本線「立会川」駅 徒歩5分
京浜東北・根岸線「大森」駅 徒歩18分
東京モノレール「大井競馬場前」駅 徒歩12分
- 間取り3LDK
- 築年月1983年3月
- 専有面積66.85m2
- 所在階5階/5階建
- 向き南東
- 総戸数129戸

予約制内覧会開催! 4月11日(土)、4月12日(日)、4月18日(土)、4月19日(日) 10:00~17:00 予約制のため、現地に係員はおりません。事前にご予約をお願いします。
◆JR総武線「水道橋」駅徒歩5分
画像:31枚



1億3,300万円
千代田区神田猿楽町2丁目
中央・総武線「水道橋」駅 徒歩5分
- 間取り2LDK
- 築年月2014年8月
- 専有面積50.13m2
- 所在階9階/13階建
- 向き南西
- 総戸数―

新規内装リフォーム済/2LDK+2WIC/138.62平米
港区白金台アドレス/自然教育園の豊かな緑に抱かれた都心の低層邸宅
画像:32枚



3億5,880万円
港区白金台5丁目
東京メトロ南北線「白金台」駅 徒歩8分
都営三田線「白金台」駅 徒歩8分
- 間取り2LDK+ウォークインクローゼット
- 築年月1985年12月
- 専有面積138.62m2
- 所在階1階/7階建
- 向き南西
- 総戸数―

予約制内覧会開催! 4月11日(土)、4月12日(日)、4月18日(土)、4月19日(日) 10:00~17:00 予約制のため、現地に係員はおりません。事前にご予約をお願いします。
~南東・南西向き角住戸/東京湾・レインボーブリッジが望めます(天候による)~
■22階・3LDK・101.48m2■洗面室2WAYタイプ■
画像:33枚



2億5,800万円
港区芝浦4丁目
山手線「田町」駅 徒歩12分
京浜東北・根岸線「田町」駅 徒歩12分
都営浅草線「三田」駅 徒歩15分
都営三田線「三田」駅 徒歩15分
- 間取り3LDK+S+2WIC
- 築年月2006年10月
- 専有面積101.48m2
- 所在階22階/48階建
- 向き南東
- 総戸数1095戸

■2020年築 ■横須賀線「東戸塚」駅 徒歩10分 ■下階がないためファミリーにおすすめ
■平置き駐車場専用使用権あり ■専用庭×テラス×オープンエアリビングダイニング×ウォークインクローゼット
画像:43枚



6,850万円
横浜市戸塚区品濃町
横須賀線「東戸塚」駅 徒歩10分
湘南新宿ライン(宇都宮~逗子)「東戸塚」駅 徒歩10分
- 間取り3LDK+WIC
- 築年月2020年8月
- 専有面積67.8m2
- 所在階2階/8階建
- 向き東
- 総戸数110戸

<2009年 グッドデザイン賞受賞>~ 5階部分・81.69m2・南向き~
~『京王線 国領駅』徒歩8分 総戸数320戸のハイグレードレジデンス~
画像:38枚



7,080万円
調布市国領町8丁目
京王線「国領」駅 徒歩8分
京王線「柴崎」駅 徒歩11分
- 間取り3LDK+WIC
- 築年月2008年1月
- 専有面積81.69m2
- 所在階5階/13階建
- 向き南
- 総戸数320戸

■38階部分 西・北角住戸 <レインボーブリッジVIEW>(天候による)
■新築未入居につき即入居可
画像:31枚



2億9,990万円
中央区晴海5丁目
都営大江戸線「勝どき」駅 徒歩14分
- 間取り3LDK+WIC+SIC
- 築年月2025年8月
- 専有面積86.88m2
- 所在階38階/50階建
- 向き北
- 総戸数733戸

★角住戸につき日当たり・通風良好 ★複数路線利用可能 ★ウォークインクローゼットあり
★38.84m2の1LDK ★室内リフォーム履歴有(2025年10月末実施済み)
画像:36枚



7,480万円
文京区大塚3丁目
東京メトロ丸ノ内線「茗荷谷」駅 徒歩6分
東京メトロ有楽町線「護国寺」駅 徒歩8分
- 間取り1LDK+ウォークインクローゼット
- 築年月2005年7月
- 専有面積38.84m2
- 所在階2階/11階建
- 向き南東
- 総戸数51戸

☆『所沢』駅までデッキで直結、徒歩3分の好立地!
☆28階部分・東向き角住戸につき通風・眺望良好です◎
画像:40枚



1億480万円
所沢市東住吉
西武池袋・豊島線「所沢」駅 徒歩3分
西武新宿線「所沢」駅 徒歩3分
- 間取り3LDK+N + WIC + SIC
- 築年月2020年8月
- 専有面積71.6m2
- 所在階28階/29階建
- 向き東
- 総戸数311戸

【2025年3月築】三井不動産レジデンシャル(株)分譲 ■多様な共用施設(一部有償)
■1階でありながら、圧迫感・目線への心配が少ないこだわりが光る住戸
画像:33枚



1億4,800万円
新宿区高田馬場4丁目
山手線「高田馬場」駅 徒歩7分
東京メトロ東西線「高田馬場」駅 徒歩7分
西武新宿線「高田馬場」駅 徒歩8分
西武新宿線「下落合」駅 徒歩10分
- 間取り3LDK+WIC+SIC
- 築年月2025年3月
- 専有面積73.24m2
- 所在階1階/13階建
- 向き南
- 総戸数325戸

ウエストアーク10階部分・南東向きの角住戸! 内装フルリノベーション済(2026年2月完成)
ホテルに暮すような上質な日々を演出する駅前ランドマークタワー
画像:31枚



1億8,990万円
港区芝4丁目
都営浅草線「三田」駅 徒歩3分
都営三田線「三田」駅 徒歩3分
山手線「田町」駅 徒歩5分
- 間取り2LDK
- 築年月2006年8月
- 専有面積61.71m2
- 所在階10階/36階建
- 向き南東
- 総戸数752戸

予約制内覧会開催! 4月11日(土)、4月12日(日)、4月18日(土)、4月19日(日) 10:00~17:00 予約制のため、現地に係員はおりません。事前にご予約をお願いします。
【港区最大敷地となる旧逓信省跡地に全1,002戸からなる象徴的プロジェクト】
■東向き・4階部分 ■100.65m2/2LDK+WIC+SIC+S+TR
画像:31枚



7億4,800万円
港区三田1丁目
都営大江戸線「麻布十番」駅 徒歩7分
東京メトロ南北線「麻布十番」駅 徒歩7分
都営大江戸線「赤羽橋」駅 徒歩8分
- 間取り2LDK+S+2WIC+SIC+TR
- 築年月2025年4月
- 専有面積100.65m2
- 所在階4階/14階建
- 向き東
- 総戸数1002戸

予約制内覧会開催! 4月11日(土)、4月12日(日) 10:00~18:30 予約制のため、現地に係員はおりません。事前にご予約をお願いします。
◆55階北東向き ◆87.09m2_2LDK+WIC+SIC+Sto
◆エグゼクティブ住戸(55~57階)◆トランクルーム付設
画像:30枚



3億6,000万円
中央区勝どき4丁目
都営大江戸線「勝どき」駅 徒歩2分
東京メトロ有楽町線「月島」駅 徒歩13分
都営大江戸線「月島」駅 徒歩13分
- 間取り2LDK+WIC+SIC+TR
- 築年月2023年8月
- 専有面積87.09m2
- 所在階55階/58階建
- 向き北東
- 総戸数1665戸

■81.64m2×2LDK(3LDKへ変更可能) ■晴海運河・スカイツリーを望む眺望
■棟内別住戸もご内覧可能です。担当:佐藤までお気軽にご連絡ください(070-4803-7474)
画像:36枚



1億6,800万円
中央区晴海2丁目
都営大江戸線「勝どき」駅 徒歩15分
東京メトロ有楽町線「豊洲」駅 徒歩15分
- 間取り2LDK+WIC+SIC
- 築年月2019年6月
- 専有面積81.64m2
- 所在階30階/48階建
- 向き東
- 総戸数1078戸

■50階部分につき眺望良好♪(スカイツリーを臨む眺望)
■ご質問や資料請求等は担当の高嶺までお申し付けくださいませ。
画像:42枚



1億9,980万円
中央区勝どき6丁目
都営大江戸線「勝どき」駅 徒歩7分
都営大江戸線「月島」駅 徒歩15分
東京メトロ有楽町線「月島」駅 徒歩15分
- 間取り2LDK+WIC
- 築年月2008年1月
- 専有面積86.86m2
- 所在階50階/58階建
- 向き北東
- 総戸数1333戸 / 1981戸

■2012年築、野村不動産旧分譲「プラウド」シリーズ ■新規リフォーム物件
■2階部分、南東向き、陽当たり・眺望良好です!
画像:36枚



8,980万円
世田谷区北烏山1丁目
京王井の頭線「富士見ヶ丘」駅 徒歩11分
京王井の頭線「久我山」駅 徒歩15分
京王線「千歳烏山」駅 徒歩21分
- 間取り3LDK
- 築年月2012年5月
- 専有面積71.3m2
- 所在階2階/3階建
- 向き南東
- 総戸数70戸

予約制内覧会開催! 4月11日(土)、4月12日(日) 11:00~17:00 予約制のため、現地に係員はおりません。事前にご予約をお願いします。
100m2超えの広々4LDK・JR立川駅徒歩圏・IKEA立川、ららぽーと立川立飛など大型商業施設多数のエリア
南東角住戸・専用テラスあり 下階への音の配慮が不要なメゾネット住戸
画像:43枚



5,180万円
立川市高松町1丁目
中央線「立川」駅 徒歩18分
多摩モノレール「高松」駅 徒歩8分
多摩モノレール「立飛」駅 徒歩10分
南武線「立川」駅 徒歩18分
- 間取り4LDK+2納戸+WIC
- 築年月1998年2月
- 専有面積106.76m2
- 所在階1階/5階建
- 向き南東
- 総戸数23戸

予約制内覧会開催! 4月11日(土)、4月12日(日) 10:00~17:00 予約制のため、現地に係員はおりません。事前にご予約をお願いします。
■「長津田」駅よりフラットなアプローチ
■79.06m2のゆとりある空間 ■陽あたり・眺望良好な角住戸
画像:28枚



4,580万円
横浜市緑区長津田6丁目
横浜線「長津田」駅 徒歩8分
東急田園都市線「長津田」駅 徒歩8分
- 間取り2LDK
- 築年月2005年9月
- 専有面積79.06m2
- 所在階4階/7階建
- 向き南
- 総戸数20戸

◇駅前複合再開発・免震構造のタワーレジデンス◇都内最大級の水元公園が眼下に広がる、高層階ならではのパノラマビュー◇金町駅徒歩2分◇全居室バルコニーに面する8.3mのワイドスパン◇再開発が進む金町
画像:43枚



9,980万円
葛飾区金町6丁目
千代田・常磐緩行線「金町」駅 徒歩2分
京成金町線「京成金町」駅 徒歩2分
- 間取り2LDK+N+SIC
- 築年月2021年6月
- 専有面積56.56m2
- 所在階18階/21階建
- 向き北
- 総戸数190戸

チェックした物件(0件)をまとめて
この検索条件で
アイコンの見方について
| NEW 日付 | 7日以内に登録された物件 | 新価格 日付 | 7日以内に価格が値下がりした物件 |
|---|---|---|---|
| オープンルーム | 自由に見学できるオープンルームを開催(予定)している物件 | 予約制初披露会 | 予約制の内覧会を開催(予定)している物件(内覧会開催初日が初公開日) |
| 予約制内覧会 | 予約制の内覧会を開催(予定)している物件 | 3D動画あり | 室内を歩く感覚で閲覧できる3Dウォークスルー動画を掲載している物件 |
| 動画あり | パノラマ動画・Youtube動画・VR動画で室内を閲覧できる物件 | 認定保証適用物件 | ご購入前の点検・修理、ご購入後の長期メンテナンス・アフターサービスなどのサポートを受けられる物件詳細を見る |
| あんしん設備補修 | 住宅設備の検査・補修済みで購入ができ、お引渡しから最長5年間の保証がつく物件 詳細を見る |
リノベーション | リノベーション済の中古マンション |
| オーナーレポート | 物件資料だけでは分からない、売主だから知っている「住み心地」や「物件の特徴」の紹介レポートを掲載している物件 | 資料請求 済 | 資料請求済みの物件 |
| 見学予約 済 | 見学予約済みの物件 |
投資用・事業用不動産サイト ノムコム・プロ
