三田ガーデンヒルズ サウスヒル
お問合せ
■2026年5月3日退去予定 ■東京タワーを望む眺望(天候による)
■11階部分角住戸 ■新築時オプション有
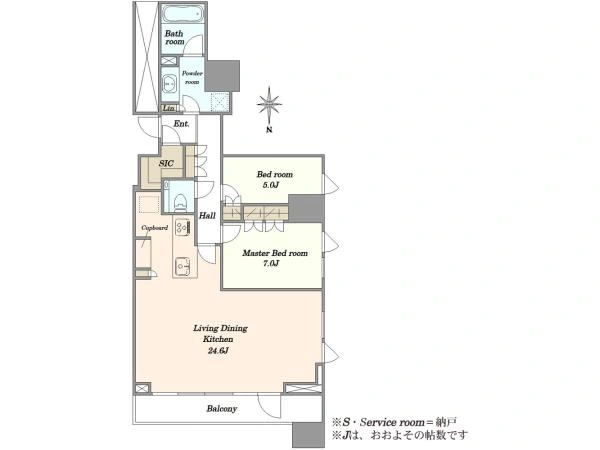
間取り図
0120-554-281
【通話無料・携帯もOK】
物件番号 R5770491
お問い合わせの際に、物件番号をお伝えいただくとスムーズです。
この物件のおすすめポイント
ー 三田ガーデンヒルズ サウスヒル ー
………………………………………………………
≪ 85.28m2 2LDK 11階部分 北向き ≫
綱町三井倶楽部や各国大使館が立ち並ぶ
丘の上に誕生した、港区最大を誇る
1,002邸の三田ガーデンヒルズ。
奇跡のように残されていた約25,000m2もの
壮大な敷地に、「OLD & NEW」を
コンセプトにした旧逓信省の歴史的建造物を
継承する建築美
圧倒的なスケールの中庭、
上質な暮らしを愉しむ多彩な共用施設
帝国ホテル提携の卓越したホスピタリティ
すべてに求めた格の違いは、レジデンスという
概念を超え、ひとつの大きな街として
都心の喧騒とは一線を画す、
どこまでも穏やかな時間が流れます。
それは、レジデンスの枠を超えた、
「レジデンスシティ」という考え方。
┏┓〈専有部分〉おすすめポイント
┗★━━━━━━━━━━━━━━━━━━━
〇 東京タワーを望む眺望(天候による)
〇 11階部分角住戸
〇 新築時オプション
・LD折上天井間接照明
・Mieleビルトイン電気オーブンレンジ、
食洗機、IHクッキングヒーター
・ピクチャーレール:LD・各洋室・玄関廊下
・キッチンコンロ前壁仕上げセレクト:タイル
・リビング壁面エコカラット
〇 最高天井高約2,600mm:LD・主寝室
〇 全室天井カセットエアコン:合計4台
〇床暖房:LD・キッチン・主寝室
〇 床タイル張り:SIC・洗面室・トイレ
〇 1620 サイズの浴室
〇 ディスポーザー・浄水器
┏┓〈マンション〉おすすめポイント
┗★━━━━━━━━━━━━━━━━━━━
◇帝国ホテル提携によるコンシェルジュサービス
⇒質の高いサービスを持続的に提供するために、
コンシェルジュ、パーサーサービスを
帝国ホテルと提携。
世界の要人をもてなしてきた高水準の
ホスピタリティを実現します。
◇共用施設
【サウスヒル】
・ティーンベース
・シアタールーム
・キッズルーム
・ファミリーラウンジ
・ゴルフレンジ
・スタディールーム
・サウンドスタジオ
・LOCON(店舗)
【センターヒル】
・カフェラウンジ
・ガーデンフィットネス
・ワークスペース
・コミュニティーガーデン
・コンビニエンスストア(ナチュラルローソン)
【ノースヒル】
・ワークラウンジ
・オープンラウンジ
・スパ
【ヴィラ】
・ゲストハウス ※宿泊利用料15,000円/泊
【パークマンション】 ※会員制
・会員制プール
・会員制フィットネス
・バーラウンジ
・ゲストルーム
※宿泊利用料10,000円~15,000円/泊
・応接室
・個室ダイニングバー
・会員制レストラン
【交通】
┗━━━━━━━━━━━━━━━━━━━━
〇 東京メトロ南北線・都営大江戸線
「麻布十番」駅 徒歩7分
〇 都営大江戸線
「赤坂橋」駅 徒歩9分
〇 都営三田線
「芝公園」駅 徒歩11分
◆◇◆◇◆◇◆◇◆◇◆◇◆◇◆◇◆◇◆◇◆
【注意1】
物件から駅への距離および施設への距離は
道路距離80mにつき1分間を要するものとして
算出したものです。
坂道や信号待ち時間等は考慮していませんので、
実際の体感時間等はご自身でお確かめください。
【注意2】
室内使用状況・日照・眺望・通風等は、
担当者の個人的な感想・見解が含まれます。
実際の状況は、お客様ご自身でもご確認ください。
担当者コメント
渋谷営業部
松脇 賢太郎 (まつわき けんたろう)
担当:松脇 賢太郎
フリーダイヤル:0120-554-281
携帯:080-2081-5110
メール:k-matsuwaki@nomura-re.co.jp
◇宅地建物取引士
◇1級ファイナンシャル・プランニング技能士
◇CFP(サーティファイド ファイナンシャル プランナー)
特長・共用施設
物件の特徴の説明ハッシュタグをクリックすることで、同じハッシュタグを含む物件を検索できます。
物件について
| 位置 | #角部屋 |
|---|---|
| 部屋 | #天井高2.6M以上 #フローリング |
| 収納 | #シューズインクローゼット #全居室収納 |
| キッチン | #ディスポーザー #浄水器 #IHクッキングヒーター |
| 浴室・トイレ | #浴室1.6-2.0M以上 |
| 設備 | #床暖房 |
建物について
| 構造 | #大規模マンション(総戸数200戸以上) |
|---|---|
| 施設・サービス | #24時間ゴミ出し可 #コンシェルジュサービス #24時間有人管理 #ゲストルーム(宿泊施設)あり #ペット可(規約制限あり) #エレベータ |
| セキュリティ | #オートロック |
立地・周辺環境について
| 立地・環境 | #2沿線以上利用可 |
|---|
物件の概要・詳細
物件情報の見方| 価格 | 6億円 住宅ローンシミュレーション | ||
|---|---|---|---|
| 物件番号 | R5770491 | ||
| 所在地 | 東京都港区 三田1丁目 周辺地図を見る | ||
| 交通 |
東京メトロ南北線「麻布十番」駅 徒歩7分 都営大江戸線「麻布十番」駅 徒歩7分 都営大江戸線「赤羽橋」駅 徒歩9分 都営三田線「芝公園」駅 徒歩11分 |
||
| 間取り | 2LDK+SIC | ||
|
専有面積
|
85.28m2(25.79坪)(壁芯) | ||
| バルコニー面積 | 10.45m2 | 向き | 北 |
| その他面積 | ― | ||
|
構造
|
RC造14階地下2階建て | 所在階 | 11階 |
| 築年月 | 2024年12月 | 総戸数 | 1002戸 |
|
土地権利
|
所有権 |
用途地域
|
第二種住居地域 |
| 管理会社 | 三井不動産レジデンシャルサービス株式会社 | ||
|
管理形態
|
全部委託 |
管理員
|
日勤 |
|
管理費
|
76,160円 / 月 |
修繕積立金
|
20,720円 / 月 |
| その他使用料 | インターネット使用料 1,430円 / 月 | ||
| 駐車場 | ― | ||
| 現況 | 賃貸中 | 引 渡 | 相談 |
|
取引態様
|
仲介 |
国土法届出
|
不要 |
| 備 考 | ●敷地面積 / 25246.5m2●分譲時会社 / 三井不動産レジデンシャル株式会社 他●施工会社 / 大成建設株式会社●エレベーター / 有 ※登記簿謄本上は10階部分 ※現状賃貸中でございますが、2026年5月3日に退去予定です。 |
||
| 更新日 | 2026年4月16日 | 次回更新予定日 | 2026年4月30日 |
お問合せ店舗
このマンションの他の売り出し中物件を見る
-
3億8,800万円 2LDK / 70.68m2/ 2階
-
3億4,000万円 新価格 4/18 1LDK+S / 60.67m2/ 1階
-
3億1,500万円 新価格 4/17 1LDK+S / 56.24m2/ 13階
-
12億8,000万円 3LDK / 133.37m2/ 4階
-
6億9,800万円 2LDK+S / 100.65m2/ 4階
-
4億3,500万円 2LDK / 69.23m2/ 10階
-
2億3,500万円 1LDK / 43.71m2/ 12階
-
17億3,000万円 3LDK / 145.99m2/ 14階
-
4億5,000万円 3LDK / 85.07m2/ 13階
-
3億5,800万円 2LDK / 66.63m2/ 6階
-
4億8,300万円 2LDK+S / 85.04m2/ 12階
-
5億1,900万円 2LDK / 80.03m2/ 4階
-
4億7,800万円 3LDK / 81.73m2/ 8階
-
2億3,500万円 1LDK / 46.04m2/ 7階
-
8億5,000万円 2LDK / 85.28m2/ 13階
-
7億5,500万円 3LDK / 104.31m2/ 6階
-
6億8,800万円 3LDK / 104.35m2/ 2階
-
5億2,800万円 3LDK / 81.73m2/ 10階
-
3億9,800万円 2LDK / 60.52m2/ 7階
-
8億9,000万円 3LDK / 109.72m2/ 12階
-
5億3,300万円 1LDK+2S / 83.33m2/ 2階
-
8億8,000万円 3LDK / 100.01m2/ 9階
-
3億6,000万円 2LDK / 66.41m2/ 4階
-
1億6,000万円 1R / 29.34m2/ 13階
-
6億5,000万円 2LDK / 100.98m2/ 9階
-
6億9,980万円 2LDK / 101.52m2/ 14階
-
4億7,800万円 3LDK / 83.86m2/ 3階
-
8億9,000万円 2LDK / 102.21m2/ 11階
-
6億9,800万円 2LDK / 84.68m2/ 4階
-
6億円 3LDK / 91.63m2/ 7階
-
6億9,800万円 2LDK / 102.98m2/ 7階
-
6億円 3LDK / 86.36m2/ 8階
-
6億9,800万円 2LDK / 100.98m2/ 13階
-
8億9,000万円 3LDK / 109.72m2/ 7階
-
5億2,800万円 3LDK / 82.11m2/ 11階
-
7億9,800万円 2LDK / 83.41m2/ 5階
-
13億5,000万円 3LDK+S / 164.75m2/ 8階
-
4億6,000万円 3LDK / 85.07m2/ 7階
-
7億4,800万円 3LDK / 102.98m2/ 9階
-
8億5,000万円 3LDK / 102.98m2/ 13階
-
9億9,800万円 3LDK / 108.36m2/ 9階
-
6億7,800万円 2LDK / 101m2/ 9階
-
5億5,000万円 2LDK / 72.51m2/ 12階
-
4億8,000万円 3LDK / 85.07m2/ 6階
-
6億9,800万円 2LDK+S / 100.65m2/ 7階
-
21億6,800万円 3LDK / 163.09m2/ 10階
-
5億800万円 2LDK / 73.55m2/ 6階
-
4億9,800万円 2LDK / 70.94m2/ 9階
-
4億8,000万円 2LDK / 70.94m2/ 11階
-
22億円 3LDK / 160.95m2/ 11階
-
4億5,000万円 2LDK+S / 82.11m2/ 6階
-
7億4,800万円 3LDK / 104.35m2/ 6階
同じエリアの中古マンション
-
NEW 4/21
元麻布ヒルズ フォレストタワー
9億6,800万円
都営大江戸線「麻布十番」駅 徒歩7分
-
新価格 4/21
ザ・ハウス南麻布
9億2,500万円
新価格
東京メトロ日比谷線「広尾」駅 徒歩4分
-
NEW 4/20
三田コーポラス
5,999万円
東京メトロ南北線「麻布十番」駅 徒歩10分
-
新価格 4/20
ブランズタワー芝浦
1億1,500万円
新価格
山手線「田町」駅 徒歩8分
-
新価格 4/20
プラウドタワー芝浦
1億500万円
新価格
山手線「田町」駅 徒歩11分
同じエリアの一戸建て
-
NEW 4/18
中古一戸建て港区白金台4丁目 中古一戸建て 1億6,980万円 東京メトロ南北線「白金台」駅 徒歩4分 3LDK / 土地 44.34m2 -
新築一戸建て港区白金6丁目 新築戸建 2億9,800万円 東京メトロ南北線「白金台」駅 徒歩10分 0LDK+2S / 土地 63.45m2 -
中古一戸建て港区南青山六丁目 戸建 7億9,800万円 東京メトロ銀座線「表参道」駅 徒歩8分 4LDK / 土地 128.51m2 -
中古テラスハウスオリンピア三田 A棟 2億5,980万円 東京メトロ南北線「白金高輪」駅 徒歩10分 4LDK / 土地 70.28m2 -
中古一戸建て港区高輪四丁目戸建 8億2,800万円 山手線「品川」駅 徒歩6分 2LDK / 土地 110.19m2
本掲載情報と現況に差異がある場合、現況を優先します。掲載物件は売却済あるいは売出中止となる場合もあります。掲載写真やパース(絵)、または間取図に描かれている家具や車などは、価格に含まれておりません。予めご了承ください。周辺施設や周辺環境の写真は、過去に撮影したものをそのまま利用している場合があり、名称・外観・背景等、実際のものとは異なる場合がございます。
仲介物件には所定の仲介手数料(消費税等相当額を含みます)が必要です。
売却もお任せください
ご所有不動産の売却をご検討なら、まずは無料査定から
投資用・事業用不動産サイト ノムコム・プロ

