| 所在地 |
埼玉県所沢市大字本郷
|
交通 |
武蔵野線「東所沢」駅 徒歩4分 |
|---|---|---|---|
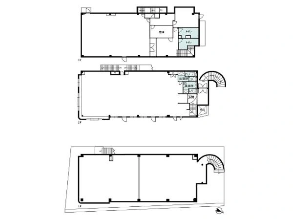
| 延床面積 | 702.83m2 | 土地面積 | 374m2 |
| 築年月 | 1996年4月 | 構造 | 鉄骨造 |
| 階数 | 3階建 | ||
物件詳細
| 価格 |
1
億
1,800
万円
|
||
|---|---|---|---|
|
10.61 %
|
想定年間収入 | 1,252万2,000円 | |
|
8.67 %
|
現行年間収入 | 1,024万2,000円 | |
| 所在地 | |||
| 交通 | |||
| 間取り | ― | ||
| 建物面積 | 702.83m2(212.6坪) | 土地面積 | 374m2(113.13坪)(公簿) |
| 築年月 | 1996年4月 | 構造 | 鉄骨造3階建て |
| 土地権利 | 所有権 | 地目 | 雑種地 |
| 私道負担 | ― | セットバック | ― |
| 都市計画 | 市街化調整区域 | 用途地域 | 無指定 |
| 建ぺい率 | ― | 容積率 | ― |
| 接道状況 | ― | ||
| 設備 | ― | ||
| 駐車場 | あり | ||
| 現況 | 賃貸中 | 引渡 | 相談 |
| 取引態様 | 仲介 | 国土法届出 | 不要 |
| 備考 | ●オーナーチェンジ 宅地の造成および建物の建築はできません(許可条件)本物件は市街化調整区域につき原則として建築物の建築ができませんが、都市計画法第34条第1号の規定に該当する建築物で開発許可が受けられた場合は建築が可能となります。 オーナーチェンジ |
||
| 物件番号 | UG300012 | ||
| 更新日 | 2025年11月30日 | 次回更新予定日 | 2025年12月14日 |
お問合せ
物件番号UG300012
WEBから
お電話から
0120-917-431
(通話無料・携帯もOK)
担当店舗

お問合せ
物件番号UG300012
0120-917-431
(通話無料・携帯もOK)
(通話無料・携帯もOK)
担当店舗
この物件を
お気に入りに追加する
この物件を
スマートフォンで見る

埼玉県の一棟ビルを探す
埼玉県所沢市の不動産投資用物件・事業用物件を探す
野村不動産ソリューションズ株式会社 国土交通大臣免許(5)第6101号
本掲載情報と現況に差異がある場合、現況を優先します。掲載物件は売却済あるいは売出中止となる場合もあります。
掲載写真やパース(絵)、または間取図に描かれている家具や車などは、価格に含まれておりません。予めご了承ください。
仲介物件には所定の仲介手数料(消費税等相当額を含みます)が必要です。





