| 所在地 |
東京都台東区浅草橋3丁目
|
交通 |
都営浅草線「浅草橋」駅 徒歩6分 中央・総武線「浅草橋」駅 徒歩7分 |
|---|---|---|---|
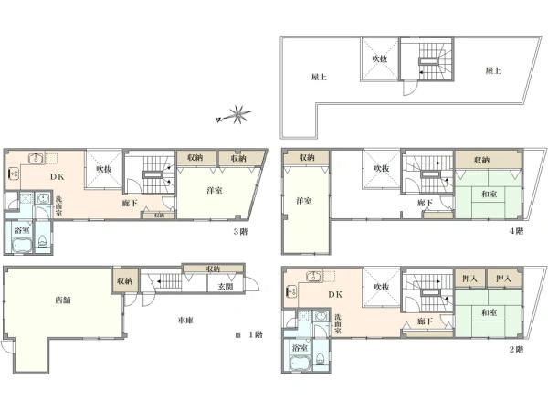
| 延床面積 | 177.92m2 | 土地面積 | 66.24m2 |
| 築年月 | 1998年1月 | 構造 | 鉄骨造 |
| 階数 | 4階建 | ||
- Point
- 宿泊業・自社ビル・店舗などなど幅広く転用可能~旅館改修内装プランあり~
複数路線利用可能/伝統と新しさが融合するロケーション
予約制内覧会開催
- 日時
- 3月28日(土)、3月29日(日)、4月4日(土)、4月5日(日) 10:00~17:00
- 所在地
- 東京都台東区浅草橋3丁目29-3
会場案内地図
※予約制のため、現地に係員はおりません。内覧希望の際は、事前にご予約をお願いします。
予約制の内覧会を実施致します。
予約可能時間は【先着順で10時~17時】となります。
ご興味をお持ちの方は、是非お気軽にお問い合わせくださいませ。
(内覧日に御都合が付かないお客様はご相談くださいませ。内覧日以降に日程を調整させて頂きます。)
ご希望を頂戴してから売主様に予定を確認し、内覧時間を設定させていただきます。
予約不可の場合は別日程でご提案させていただきます。
この物件のおすすめポイント
■□■□■□■□■□■□■□■□■□■□■
━━━━━━━━━━━━━━━━━━━━━
「浅草橋」駅 徒歩6分
複数路線利用可能
━━━━━━━━━━━━━━━━━━━━━
■□■□■□■□■□■□■□■□■□■□■
┏┓建物について
┗□━━━━━━━━━━━━━━━━━━━━━
●177.92m2の鉄骨造4階建て
●吹き抜けのある明るい室内
●屋上あり
┏┓エリアについて
┗□━━━━━━━━━━━━━━━━━━━━━
浅草橋エリアは、古くから続く問屋街として知られ
アクセサリーや雑貨、繊維関連の専門店が軒を連ねる活気ある街です。
近年はカフェやクリエイター向けのショップも増え
若い世代や観光客にも人気が高まっています。
周辺には隅田川や浅草、秋葉原といった観光スポットも多く
国内外から多くの人が訪れる集客力の高いエリアです。
JR総武線・都営浅草線「浅草橋」駅から徒歩圏内。
東京駅や上野駅、秋葉原駅など主要ターミナルへのアクセスも良好です。
ビジネス・観光の拠点としても大変魅力的な立地です。
多様なニーズに応える柔軟な活用が可能な本物件で
新たなビジネス展開や投資をぜひご検討ください。
┏┓資金計画のご相談受付中!!!
┗□━━━━━━━━━━━━━━━━━━━━━
「ローンはいくら借りれるの?」
「月々の返済額をいくらにしたい!」、
「変動金利か固定金利のどちらが良いのだろう?」
資金計画で疑問や悩み等ございましたら、是非
ご相談下さいませ。
現在の金利情勢やお借入銀行の特徴からお客様に
合ったローンの組み方をご提案いたします。
※本物件以外での資金計画のご相談も承ります。
お気軽にご相談下さいませ。
《弊社ご紹介先銀行一覧》
三菱東京UFJ銀行・三井住友信託銀行・みずほ銀行
三井住友銀行・各地方銀行・フラット35利用銀行等
┏┓現地のご見学について
┗□━━━━━━━━━━━━━━━━━━━━━
◆ご案内方法
ご自宅へお迎え・最寄駅等でお待ち合わせ、弊社
へのご来社など、何でもご対応致します。
ご希望があれば周辺環境(駅・お買い物施設・教
育施設)などもご案内いたしますので、
お気軽にお申し付けくださいませ。
◆お車でのご来社には、当センター近隣の駐車場
をご利用ください。
料金の清算は当社にて行いますので、ご安心ください。
詳しくは営業スタッフよりご案内致します。
担当:永島 理湖(ながしま りこ)まで
<フリーコール:0120-992-288>
どうぞお気軽にご連絡ください。
┏┓資料のご請求は
┗□━━━━━━━━━━━━━━━━━━━━━
詳細資料の請求は、お手数おかけしますが、
『お問い合わせ先』まで、ご連絡下さいませ。
資料をご希望の方法にてお送りいたします。
ご希望の書類がありましたら、
お気軽にお声かけください♪
注意1:
上記記載文章は環境・施設の変化が
生じている可能性がございます。
差異があった場合は【現況優先】と
なりますことをご了承ください。
注意2:
駅からの距離、施設からの距離は、
社内システムを参照して入力しております。
実際の体感距離は必ずお客様ご自身でも
お確かめ頂きたく願います。
80mにつき1分計算で
机上測定されております。
担当者からのコメント
===この物件のお問合せは、
【永島 理湖(ながしま りこ)】
までお問い合わせください===
(1)お電話で・・・
●会社(無料通話) : 0120-992-288
●本物件の担当者直通 : 080-8172-7244
(2)メールで・・・
●担当者直通メール:r4-nagashima@nomura-re.co.jp
ご見学をご希望の際には、
お気軽にご希望のお時間をお知らせ下さい。
また、本物件についてのご質問やご購入の
ご相談等ございましたら、
お気軽にお問い合わせ下さい。
ご連絡を心よりお待ちしております。
物件詳細
| 価格 |
2
億
3,800
万円
|
||
|---|---|---|---|
|
12.7 %
|
想定年間収入 | 3,024万円 | |
|
―
|
現行年間収入 | ― | |
| 所在地 | |||
| 交通 | |||
| 間取り | ― | ||
| 建物面積 | 177.92m2(53.82坪) | 土地面積 | 66.24m2(20.03坪)(公簿) |
| 築年月 | 1998年1月 | 構造 | 鉄骨造4階建て |
| 土地権利 | 所有権 | 地目 | 宅地 |
| 私道負担 | なし | セットバック | ― |
| 都市計画 | 市街化区域 | 用途地域 | 商業地域 |
| 建ぺい率 | 80% | 容積率 | 480% |
| 接道状況 | 南8m公道 接面4.6m | ||
| 設備 | 公営水道・本下水・都市ガス | ||
| 駐車場 | ― | ||
| 現況 | 空室 | 引渡 | 相談 |
| 取引態様 | 仲介 | 国土法届出 | 不要 |
| 備考 | ●都市計画法他制限 / 防火地域 | ||
| 物件番号 | R6170834 | ||
| 更新日 | 2026年3月22日 | 次回更新予定日 | 2026年4月5日 |
お問合せ
WEBから
お電話から
(通話無料・携帯もOK)
担当店舗

お問合せ
(通話無料・携帯もOK)
担当店舗
この物件を
お気に入りに追加する
この物件を
スマートフォンで見る

野村不動産ソリューションズ株式会社 国土交通大臣免許(6)第6101号
本掲載情報と現況に差異がある場合、現況を優先します。掲載物件は売却済あるいは売出中止となる場合もあります。
掲載写真やパース(絵)、または間取図に描かれている家具や車などは、価格に含まれておりません。予めご了承ください。
仲介物件には所定の仲介手数料(消費税等相当額を含みます)が必要です。








