| 所在地 |
東京都大田区西糀谷2丁目
|
交通 |
京急空港線「糀谷」駅 徒歩11分 京急空港線「大鳥居」駅 徒歩11分 |
|---|---|---|---|
| 延床面積 | 160.94m2 | 土地面積 | 98.6m2 |
| 築年月 | 2017年3月 | 構造 | 木造 |
| 階数 | 3階建 | ||
- Point
- 京急空港線「糀谷」駅「大鳥居」駅徒歩11分
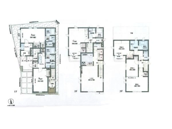
木造3階建(1kx2,1Rx1、3LDKx1)
この物件のおすすめポイント
★╋★╋━━━━━━━━━━━━━━━━━
╋☆╋
☆╋ ラナンキュラス西糀谷
╋
╋ 京急空港線「糀谷」駅「大鳥居」駅徒歩11分
╋━━━━━━━━━━━━━━━━━━━━
物│件│の│概|要|
─┘─┘─┘─┘─┘
□アクセス 京急空港線「糀谷」駅 徒歩11分
京急空港線「大鳥居」駅 徒歩11分
□土地面積 98.60m2
□建物面積 160.94m2
□木造3階建
□2017年3月築
□用途地域 準工業地域 60%/200%
□前面道路 南側 幅員約6.3m 公道に接道
□住戸数 4戸(1kx2,1Rx1、3LDKx1)
□現況 満室賃貸中(2025年11月29日時点)
物│件│の│特|長|
─┘─┘─┘─┘─┘
□バス・トイレ別 □2口IHヒーター
□浴室乾燥機 □温水洗浄便座
□シャンプードレッサー洗面台
□室内洗濯機置場 □エアコン
□TVモニター付きインターフォン
□シューズボックス □クローゼット
□フローリング □自転車バイク駐輪場
□宅配ボックスあり
◆年間予定賃料収入
522万円 / 年
◆満室想定利回り 4.74%
■「年間予定賃料収入」は満室時における1年間の予定賃料収入です。
「(満室)想定利回り」は、「年間予定賃料収入」の
当物件の取得対価に対する割合です。
・「(満室)想定利回り」は、公租公課その他当物件を維持するために
必要な費用の控除前のものです。
年間予定賃料収入が得られることを保証するものではありません。
~ライフインフォメーション~
グルメシティ糀谷店・・・・・・・・・約290m 徒歩4分
ビッグ・エー大田荻中店・・・・・・・約780m 徒歩10分
ヤマダデンキテックランド大田糀谷店・約1060m 徒歩14分
ニトリ大田大鳥居店・・・・・・・・・約760m 徒歩10分
ローソンスリーエフ大田西糀谷店・・・約345m 徒歩5分
セブンイレブン大田区西糀谷3丁目店・約540m 徒歩7分
まいばすけっと西糀谷店・・・・・・・約450m 徒歩6分
━━━━━━━━━━━━━━━━━━━━
この度は、ホームページの閲覧有難うございます。
横浜支店・営業三課は2025年4月から新設された部署であり、
実需・収益・投資用不動産と多様な種別をお取り扱いさせて頂いております。
お客様の購入目的(投資、資産形成、相続対策、将来の年金代わり、インフレ対策等)
に沿った最適なご提案を心掛けておりますので、お気軽にご相談下さい。
☆こちらの物件の問い合わせは野村不動産ソリューションズ横浜支店
営業三課(0120-975-746)までお願いいたします。
お客様からのお問合せを心よりお待ちしております。
━━━━━━━━━━━━━━━━━
物件詳細
| 価格 |
1
億
1,000
万円
|
||
|---|---|---|---|
|
4.74 %
満室
|
想定年間収入 | 522万円 | |
|
―
|
現行年間収入 | ― | |
| 満室確認日 | 2025年11月 ※賃貸状況は確認日時点のもので、現況と異なる場合があります |
||
| 所在地 | |||
| 交通 | |||
| 間取り | 1Kx2 1Rx1 3LDKx1 | ||
| 住戸数 | 4戸 | 専有面積 | 25.06m2〜80.72m2 |
| 建物面積 | 160.94m2(48.68坪) | 土地面積 | 98.6m2(29.82坪) |
| 築年月 | 2017年3月 | 構造 | 木造3階建て |
| 土地権利 | 所有権 | 地目 | 宅地 |
| 私道負担 | なし | セットバック | ― |
| 都市計画 | 市街化区域 | 用途地域 | 準工業地域 |
| 建ぺい率 | 60% | 容積率 | ― |
| 接道状況 | 南6.3m公道 | ||
| 設備 | 公営水道・本下水・都市ガス | ||
| 駐車場 | なし | ||
| 現況 | 満室(確認日:2025年11月29日) | 引渡 | 相談 |
| 取引態様 | 仲介 | 国土法届出 | 不要 |
| 備考 | ●オーナーチェンジ ※高速インターネット引込済み 8,800円/月(税込) バス・トイレ別、エアコン、2口IHヒーター、浴室乾燥機、温水洗浄便座、シャンプードレッサー洗面台、室内洗濯機置場、 宅配ボックス、TVモニター付きインターフォン、自転車・バイク駐輪可、フローリング、シューズボックス、クローゼット |
||
| 物件番号 | R5970557 | ||
| 更新日 | 2025年12月9日 | 次回更新予定日 | 2025年12月23日 |
お問合せ
WEBから
お電話から
(通話無料・携帯もOK)
担当店舗

担当: 川村 彩夏(かわむら さやか)
- 電話番号
- 045-313-2102
- 営業時間
- 9:30~17:30
- 定休日
- 水曜日・日曜日・祝日
※詳しくは店舗ページの「営業日カレンダー」にてご確認ください。
お問合せ
(通話無料・携帯もOK)
担当店舗
担当: 川村 彩夏(かわむら さやか)
- 電話番号
- 045-313-2102
- 営業時間
- 9:30~17:30
- 定休日
- 水曜日・日曜日・祝日
※詳しくは店舗ページの「営業日カレンダー」にてご確認ください。
この物件を
お気に入りに追加する
この物件を
スマートフォンで見る

野村不動産ソリューションズ株式会社 国土交通大臣免許(5)第6101号
本掲載情報と現況に差異がある場合、現況を優先します。掲載物件は売却済あるいは売出中止となる場合もあります。
掲載写真やパース(絵)、または間取図に描かれている家具や車などは、価格に含まれておりません。予めご了承ください。
仲介物件には所定の仲介手数料(消費税等相当額を含みます)が必要です。









