| 所在地 |
東京都渋谷区神南1丁目
|
交通 |
東京メトロ半蔵門線「渋谷」駅 徒歩7分 |
|---|---|---|---|
| 延床面積 | 533.43m2 | 土地面積 | 98.23m2 |
| 築年月 | 2026年12月予定(新築) | 構造 | 鉄骨造 |
| 階数 | 8階建 | ||
物件詳細
| 価格 |
55
億円
|
||
|---|---|---|---|
|
2.51 %
|
想定年間収入 | 1億3,855万2,480円 | |
|
―
|
現行年間収入 | ― | |
| 所在地 | |||
| 交通 | |||
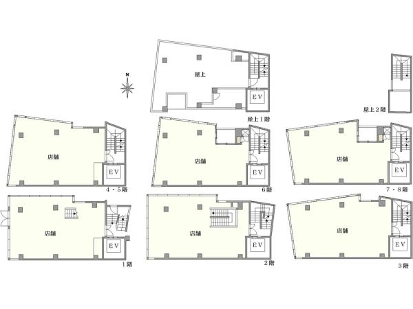
| 間取り | ― | ||
| 建物面積 | 533.43m2(161.36坪)(公簿) | 土地面積 | 98.23m2(29.71坪)(公簿) |
| 築年月 | 2026年12月予定(新築) | 構造 | 鉄骨造8階建て |
| 土地権利 | 所有権 | 地目 | 宅地 |
| 私道負担 | なし | セットバック | ― |
| 都市計画 | 市街化区域 | 用途地域 | 商業地域 |
| 建ぺい率 | 80% | 容積率 | ― |
| 接道状況 | 北4.1m公道 接面12.5m・西20m公道 接面6m | ||
| 設備 | ― | ||
| 駐車場 | ― | ||
| 現況 | 建築中 | 引渡 | 2026年12月 |
| 取引態様 | 仲介 | 国土法届出 | 不要 |
| 備考 | ●建築確認番号 / 第GEP-25111-036号●都市計画法他制限 / 防火地域●エレベーター / 有 |
||
| 物件番号 | R5770430 | ||
| 更新日 | 2026年2月7日 | 次回更新予定日 | 2026年2月21日 |
お問合せ
WEBから
お電話から
(通話無料・携帯もOK)
担当店舗

担当: 山村 政裕(やまむら まさひろ)
- 電話番号
- 03-5766-2813
- 営業時間
- 10:00~18:00
- 定休日
- 土曜日・日曜日・祝日
※詳しくは店舗ページの「営業日カレンダー」にてご確認ください。
お問合せ
(通話無料・携帯もOK)
担当店舗
担当: 山村 政裕(やまむら まさひろ)
- 電話番号
- 03-5766-2813
- 営業時間
- 10:00~18:00
- 定休日
- 土曜日・日曜日・祝日
※詳しくは店舗ページの「営業日カレンダー」にてご確認ください。
この物件を
お気に入りに追加する
この物件を
スマートフォンで見る

野村不動産ソリューションズ株式会社 国土交通大臣免許(6)第6101号
本掲載情報と現況に差異がある場合、現況を優先します。掲載物件は売却済あるいは売出中止となる場合もあります。
掲載写真やパース(絵)、または間取図に描かれている家具や車などは、価格に含まれておりません。予めご了承ください。
仲介物件には所定の仲介手数料(消費税等相当額を含みます)が必要です。

