| 所在地 |
東京都豊島区東池袋1丁目
|
交通 |
山手線「池袋」駅 徒歩6分 |
|---|---|---|---|
| 延床面積 | 365.08m2 | 土地面積 | 81m2 |
| 築年月 | 2020年5月 | 構造 | RC造 |
| 階数 | 5階地下1階建 | ||
- Point
- ■「池袋」駅徒歩6分
■2020年築 RC造5階建て
この物件のおすすめポイント
*★:*:。★.:*:・’★━━━━━━━━━━━━━━☆★
◇◇ 池袋駅徒歩6分 1棟ビル ◇◇
………………………………………………
★☆━━━━━━━━━━━━━★:*:。★.:*:・’★*:
■確認済証・検査済証あり
■満室稼働中
物件詳細
| 価格 |
9
億
5,000
万円
|
||
|---|---|---|---|
|
4.11 %
|
想定年間収入 | 3,910万8,000円 | |
|
4.11 %
|
現行年間収入 | 3,910万8,000円 | |
| 所在地 | |||
| 交通 | |||
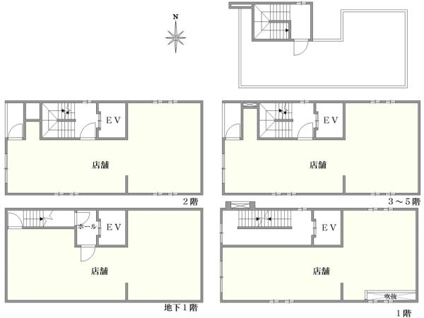
| 間取り | ― | ||
| 住戸数 | 6戸 | 専有面積 | 不明 |
| 建物面積 | 365.08m2(110.43坪) | 土地面積 | 81m2(24.5坪) |
| 築年月 | 2020年5月 | 構造 | RC造5階地下1階建て |
| 土地権利 | 所有権 | 地目 | ― |
| 私道負担 | なし | セットバック | ― |
| 都市計画 | 市街化区域 | 用途地域 | 商業地域 |
| 建ぺい率 | 80% | 容積率 | ― |
| 接道状況 | 西8m公道 | ||
| 設備 | 公営水道・本下水・都市ガス | ||
| 駐車場 | なし | ||
| 現況 | 賃貸中 | 引渡 | 相談 |
| 取引態様 | 仲介 | 国土法届出 | 不要 |
| 備考 | ●オーナーチェンジ●都市計画法他制限 / 防火地域、駐車場整備地区●エレベーター / 有 |
||
| 物件番号 | R5570668 | ||
| 更新日 | 2026年2月4日 | 次回更新予定日 | 2026年2月18日 |
お問合せ
WEBから
お電話から
(通話無料・携帯もOK)
担当店舗

担当: 新坂 真季(にいざか まき)
- 電話番号
- 03-3986-2355
- 営業時間
- 10:00~18:00
- 定休日
- 土曜日・日曜日・祝日
※詳しくは店舗ページの「営業日カレンダー」にてご確認ください。
お問合せ
(通話無料・携帯もOK)
担当店舗
担当: 新坂 真季(にいざか まき)
- 電話番号
- 03-3986-2355
- 営業時間
- 10:00~18:00
- 定休日
- 土曜日・日曜日・祝日
※詳しくは店舗ページの「営業日カレンダー」にてご確認ください。
この物件を
お気に入りに追加する
この物件を
スマートフォンで見る

野村不動産ソリューションズ株式会社 国土交通大臣免許(6)第6101号
本掲載情報と現況に差異がある場合、現況を優先します。掲載物件は売却済あるいは売出中止となる場合もあります。
掲載写真やパース(絵)、または間取図に描かれている家具や車などは、価格に含まれておりません。予めご了承ください。
仲介物件には所定の仲介手数料(消費税等相当額を含みます)が必要です。






