| 所在地 |
京都府京都市左京区下鴨北野々神町
|
交通 |
京都市烏丸線「北山」駅 徒歩5分 |
|---|---|---|---|
| 延床面積 | 376.18m2 | 土地面積 | 236.14m2 |
| 築年月 | 1991年7月 | 構造 | RC造 |
| 階数 | 3階建 | ||
物件詳細
| 価格 |
1
億
9,500
万円
|
||
|---|---|---|---|
|
4.01 %
|
想定年間収入 | 783万3,840円 | |
|
2.54 %
|
現行年間収入 | 496万5,840円 | |
| 所在地 | |||
| 交通 | |||
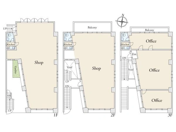
| 間取り | ― | ||
| 建物面積 | 376.18m2(113.79坪) | 土地面積 | 236.14m2(71.43坪)(公簿) |
| 築年月 | 1991年7月 | 構造 | RC造3階建て |
| 土地権利 | 所有権 | 地目 | 宅地 |
| 私道負担 | ― | セットバック | ― |
| 都市計画 | 市街化区域 | 用途地域 | 第一種住居地域 |
| 建ぺい率 | ― | 容積率 | ― |
| 接道状況 | 南25m公道 | ||
| 設備 | ― | ||
| 駐車場 | なし | ||
| 現況 | 賃貸中 | 引渡 | 相談 |
| 取引態様 | 仲介 | 国土法届出 | 不要 |
| 備考 | ●オーナーチェンジ オーナーチェンジ ●総戸数3戸(店舗×2戸+事務所×1戸)●事務所空室 / ●建物管理委託料別途要 / ●「契約期間:2024年8月1日~2027年7月31日」「現行年収/年額4,965,840円(サブリース契約中)」「サブリース契約引継ぎ要」●現況:サブリース賃貸中(1・2階部分)、事務所空室。●1階:歯科医院、2階:塾、3階:空室。●3階:賃貸人募集中(月額)239,000円<税込> |
||
| 物件番号 | BE770223 | ||
| 更新日 | 2025年11月25日 | 次回更新予定日 | 2025年12月9日 |
お問合せ
物件番号BE770223
WEBから
お電話から
0120-948-379
(通話無料・携帯もOK)
担当店舗

お問合せ
物件番号BE770223
0120-948-379
(通話無料・携帯もOK)
(通話無料・携帯もOK)
担当店舗
この物件を
お気に入りに追加する
この物件を
スマートフォンで見る

野村不動産ソリューションズ株式会社 国土交通大臣免許(5)第6101号
本掲載情報と現況に差異がある場合、現況を優先します。掲載物件は売却済あるいは売出中止となる場合もあります。
掲載写真やパース(絵)、または間取図に描かれている家具や車などは、価格に含まれておりません。予めご了承ください。
仲介物件には所定の仲介手数料(消費税等相当額を含みます)が必要です。





