ルネ世田谷 新価格 4/30
-
1億5,800万円
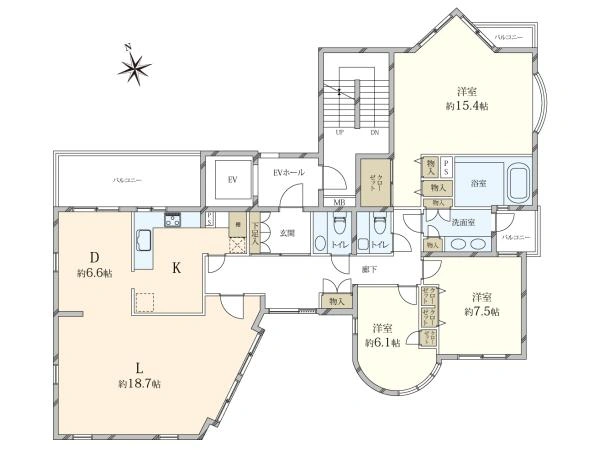
新価格 ローンシミュレーション - 間取り 3LDK
- 所在地 東京都世田谷区 世田谷4丁目
- 専有面積 144.73m2
- 所在階 3階 / 3階建
- 交通 東急世田谷線「世田谷」駅 徒歩8分
- 築年月 1988年5月
- 向き 南
お問合せ
◆2024年6月内装リフォーム完了済のお部屋です♪(リフォーム後未入居)
◆144.73m2/3LDK ◆1フロア1住戸のゆとりある低層レジデンス ◆最上階・南向き
間取り図
0120-504-281
【通話無料・携帯もOK】
物件番号 F75C1009
お問い合わせの際に、物件番号をお伝えいただくとスムーズです。
リフォーム内容
- キッチン交換
- バスルーム交換
- 洗面台交換
- トイレ交換
- 床材張替
- クロス張替
┗□━━━━━━━━━━━━━━━━━━━━━━━
● キッチン:タカラスタンダード製システムキッチン
(食洗機・浄水器内蔵水栓付)
● 浴室:1620ユニットバス
(換気乾燥暖房機付・追い焚き機能付)
● 洗面室:Panasonic製ダブルボウル洗面化粧台、洗濯パン
● トイレ:温水洗浄便座一体型タンクレストイレ2箇所
● 床:フローリング(全室)、タイル(玄関・洗面・トイレ)
● 他:クロス(全室)、建具新規、照明器具設置(全室)
レースカーテン、Bluetooth付ダウンライト、
エアコン(天井埋込型・壁掛)、クリーニング
この物件のおすすめポイント
╋☆╋
☆╋
╋ ルネ世田谷
╋
╋
╋━━━━━━━━━━━━━━━━━━━━━━━
┏┓交通アクセス
┗□━━━━━━━━━━━━━━━━━━━━━━━
■ 東急世田谷線「世田谷」駅 徒歩8分
┏┓ POINT
┗□━━━━━━━━━━━━━━━━━━━━━━━
● 144.73m2/3LDK
● 1フロア1住戸のゆとりある低層レジデンス
● 最上階・南向き
● ペット飼育可能
(各戸2匹まで、大型犬飼育可能、その他細則有)
● トイレ2箇所あり
● 専用使用権駐車場あり(月額18,500円)
┏┓ LIFE INFORMATION
┗□━━━━━━━━━━━━━━━━━━━━━━━
■ セブン-イレブン 世田谷区役所前店 約270m 徒歩4分
■ サミットストア松陰神社前店 約750m 徒歩10分
■ 世田谷区役所 約140m 徒歩2分
■ 城山小学校 約350m 徒歩5分
■ 世田谷中学校 約650m 徒歩9分
■ 若林公園 約240m 徒歩3分
担当者コメント
桜新町センター
小山 結菜 (こやま ゆいな)
┗□━━━━━━━━━━━━━━━━━━
※本物件の担当者は
桜新町センター 小山 結菜 です。
ホームページをご覧になってご興味を
お持ち頂きましたら、お問い合わせください。
(1) お電話で…
● 会社 :0120-504-281
● 担当者直通:070-4803-7564
(2)メールで…
● 担当者直通メール:
y4-koyama@nomura-re.co.jp
現地ご見学をご希望の際には、
お気軽にご希望日時をお知らせ下さい。
また、本物件についてのご質問や
ご相談がございましたら、
お気軽にお問い合わせ下さい。
ご連絡を心よりお待ちしております。
特長・共用施設
物件の特徴の説明ハッシュタグをクリックすることで、同じハッシュタグを含む物件を検索できます。
物件について
| 位置 | #南向き(南東・南西含む) #最上階 #南向き |
|---|---|
| 部屋 | #リビング・ダイニング15畳以上 #フローリング #全居室フローリング |
| キッチン | #食器洗浄機 #浄水器 #システムキッチン |
| 浴室・トイレ | #浴室乾燥機 #追いだき機能 #浴室1.6-2.0M以上 #トイレ2ヶ所 #温水洗浄便座 |
| バルコニー | #2面バルコニー |
立地・周辺環境について
| 立地・環境 | #公園まで徒歩3分以内 |
|---|
物件の概要・詳細
物件情報の見方| 価格 | 1億5,800万円 新価格 住宅ローンシミュレーション | ||
|---|---|---|---|
| 物件番号 | F75C1009 | ||
| 所在地 | 東京都世田谷区 世田谷4丁目 周辺地図を見る | ||
| 交通 | 東急世田谷線「世田谷」駅 徒歩8分 | ||
| 間取り | 3LDK | ||
|
専有面積
|
144.73m2(43.78坪) | ||
| バルコニー面積 | 14.7m2 | 向き | 南 |
| その他面積 | ― | ||
|
構造
|
RC造3階建て | 所在階 | 3階 |
| 築年月 | 1988年5月 | 総戸数 | 3戸 |
|
土地権利
|
所有権 |
用途地域
|
第二種住居地域 |
| 管理会社 | 株式会社フジホーム | ||
|
管理形態
|
全部委託 |
管理員
|
なし |
|
管理費
|
39,000円 / 月 |
修繕積立金
|
36,500円 / 月 |
| その他使用料 | ― | ||
| 駐車場 | 空あり 18,500円/月(空き確認日:2026年1月) | ||
| 現況 | 空家 | 引 渡 | 相談 |
|
取引態様
|
仲介 |
国土法届出
|
不要 |
| 備 考 | ●施工会社 / 長谷川工務店(現株式会社長谷工コーポレーション)●エレベーター / 有 |
||
| 更新日 | 2026年4月30日 | 次回更新予定日 | 2026年5月14日 |
お問合せ店舗
同じエリアの中古マンション
-
新価格 4/30
プラウド弦巻三丁目
1億5,480万円
新価格
東急田園都市線「桜新町」駅 徒歩8分
-
NEW 4/30
パークハウス新町櫻雅
2億1,800万円
東急田園都市線「桜新町」駅 徒歩10分
-
新価格 4/30
マイキャッスル二子玉川園
5,580万円
新価格
東急大井町線「等々力」駅 徒歩15分
-
NEW 4/30
ザ・パークハウス学芸大学四季の杜
1億5,480万円
東急東横線「学芸大学」駅 徒歩13分
-
NEW 4/30
トワイシア用賀 エアリーレジデンス
1億4,380万円
東急田園都市線「用賀」駅 徒歩4分
同じエリアの一戸建て
-
NEW 4/30
新築一戸建て世田谷区給田4丁目新築戸建 1億2,250万円 京王線「千歳烏山」駅 徒歩15分 2LDK+S / 土地 97.6m2 -
NEW 4/30
中古一戸建て駒沢4丁目中古戸建 1億3,800万円 東急田園都市線「駒沢大学」駅 徒歩9分 2LDK+S / 土地 95.35m2 -
新価格 4/30
中古一戸建て世田谷区深沢六丁目 戸建 2億4,800万円 新価格 東急田園都市線「桜新町」駅 徒歩18分 3LDK / 土地 120.8m2 -
NEW 4/30
中古一戸建て世田谷区尾山台一丁目中古戸建 1億3,400万円 東急東横線「田園調布」駅 徒歩17分 2LDK+S / 土地 103.8m2 -
NEW 4/30
新築一戸建て豪徳寺1丁目新築戸建 B号棟 1億6,300万円 小田急小田原線「豪徳寺」駅 徒歩6分 4LDK / 土地 88.81m2
本掲載情報と現況に差異がある場合、現況を優先します。掲載物件は売却済あるいは売出中止となる場合もあります。掲載写真やパース(絵)、または間取図に描かれている家具や車などは、価格に含まれておりません。予めご了承ください。周辺施設や周辺環境の写真は、過去に撮影したものをそのまま利用している場合があり、名称・外観・背景等、実際のものとは異なる場合がございます。
仲介物件には所定の仲介手数料(消費税等相当額を含みます)が必要です。
売却もお任せください
ご所有不動産の売却をご検討なら、まずは無料査定から
投資用・事業用不動産サイト ノムコム・プロ

