新宿区四谷4丁目 新築戸建 A号棟 NEW 3/17
お問合せ
☆ イトーピアホーム株式会社施工 ☆ 丸の内線「四谷三丁目」駅徒歩6分 ☆
☆ 新宿御苑を感じる閑静な住宅街 ☆ 2SLDK+ルーフバルコニー 駐車場付 ☆
間取り図
物件写真
0120-344-281
【通話無料・携帯もOK】
物件番号 F57C3011
お問い合わせの際に、物件番号をお伝えいただくとスムーズです。
この物件のおすすめポイント
~ 新宿御苑を感じる閑静な住宅街 ~
新宿区四谷4丁目
イトーピアホーム(株)施工 新築戸建A号棟
*◇━━━━━━━━━━━━━━━━━━━━━◇*
┏┓ ◆物件概要
┗□━━━━━━━━━━━━━━━━━━━━━━━
■交通 : 2駅2路線が利用可能!
東京メトロ丸の内線
「四谷三丁目」駅 徒歩6分
「新宿御苑前」駅 徒歩8分
都営新宿線
「曙橋」駅 徒歩10分
JR中央線
「四谷」駅 徒歩16分
-------------------------------------------------------
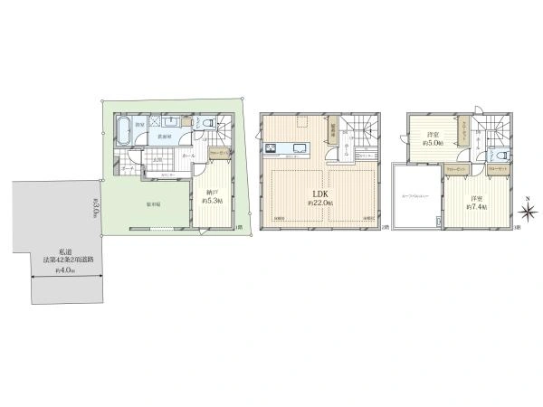
■土地面積 : 61.60m2(約18.63坪)
-------------------------------------------------------
■建物面積 : 111.11m2(約33.61坪)
※車庫部分11.60m2、
備蓄倉庫部分1.70m2含む
-------------------------------------------------------
■間取り : 2SLDK+ルーフバルコニー+駐車場1台
-------------------------------------------------------
■構造 : 木造3階建て
-------------------------------------------------------
■建築年月 : 2026年(令和8年)6月末完成予定
-------------------------------------------------------
■施工会社 : イトーピアホーム(株)
-------------------------------------------------------
┏┓ 物件のご紹介
┗□━━━━━━━━━━━━━━━━━━━━━━━
◆東京メトロ丸の内線・都営新宿線の2駅2路線が
利用できる交通利便性に富んだ立地
◆徒歩●分には都会のオアシスとして親しまれる【新宿御苑】
英国風・仏蘭西風・日本庭園が融合した近代風景庭園で、
四季折々の景色(特に桜や紅葉)や温室が楽しめます。
◆新宿通りから奥に入った閑静な住宅街
◆1階部分 : 40.16m2
(車庫部分11.60m2、備蓄倉庫0.77m2含む)
・ビルトインタイプの駐車場1台(車種による)
・居室としてお使い頂ける納戸約5.3帖
・収納スペースを確保した洗面室
・ゆったりと足を伸ばして寛げる16×16規格の浴室
・浴室換気乾燥機 有
・トイレ 設置有
◆2階部分 : 41.56m2(備蓄倉庫0.93m2含む)
・約22.0帖のLDK
・インテリアを配置したり、ちょっとした
作業スペースとしても活用できるカウンター設置
・リビングの様子が見えるカウンターキッチン
・キッチン脇にはパントリーとしても使える備蓄倉庫
・食洗機、タッチレス水栓、床暖房(LD) 設置
◆3階部分 : 29.39m2
・洋室2部屋(約7.4帖、約5.0帖)
・各洋室に収納スペース有
・開放的なルーフバルコニー(水栓あり)
・トイレ 設置有
┏┓ ライフインフォメーション
┗□━━━━━━━━━━━━━━━━━━━━━━━
≪ 商業施設 ≫
セブンイレブン四谷4丁目店・・・徒歩2分(約110m)
まいばすけっと新宿外苑西通り・・徒歩2分(約160m)
ファミリーマート四谷三丁目店・・徒歩3分(約170m)
まいばすけっと四谷4丁目・・・・徒歩3分(約180m)
サンドラッグCVS四谷三丁目店・・徒歩4分(約280m)
≪ 教育施設 ≫
新宿区立四谷小学校
・・・・・徒歩9分(約740m)※通学指定校
新宿区立大木戸子ども園・・・・・徒歩2分(約90m)
わらべうた四谷病児室・・・・・・徒歩2分(約90m)
ニチイキッズ新宿御苑保育園・・・徒歩3分(約220m)
≪ その他 ≫
新宿御苑・・・・・・・・・・・・徒歩5分(約360m)
※対象不動産から最も近い敷地までの距離
新宿区立富久さくら公園・・・・・徒歩7分(約560m)
住吉公園・・・・・・・・・・・・徒歩8分(約640m)
注意1:上記記載文章は環境・施設の変化が生じている可能性がございます。
差異があった場合は【現況優先】となりますことをご了承ください。
注意2:駅からの距離、施設からの距離は、社内システムを参照して入力しております。
実際の体感距離は必ずお客様ご自身でもお確かめ頂きたく願います。
80mにつき1分計算で机上測定されております。
注意3:上記セールスポイントは、分譲時パンフレットを参考にしております。
現況と差異がある場合、【現況優先】となりますことをご了承ください。
注意4:表示の所要時間は日中平常時のもので、通勤時間帯により多少異なります。
また、乗り換え時間や待ち時間は含まれていません。
担当者コメント
渋谷営業部
山本 晃平 (やまもと こうへい)
┗□━━━━━━━━━━━━━━━━━━━
物件に関するご質問・ご見学をご希望のお客様は
担当「山本(やまもと)」までお気軽にお問い合わせください。
〈お電話でのお問い合わせ〉
◇渋谷営業部 :0120-344-281
「建物状況」「周辺環境」「不動産ご購入の流れ」
「住宅ローン」「購入にかかる諸費用」など
いつでもお気軽にご連絡くださいませ。
また、日照・眺望・周辺環境・細かい室内状況等、写真だけでは
分かりにくい点は是非現地にてご確認下さいませ。
お会いさせて頂きました際には、不動産のご購入について
お客様のご希望条件や資金計画等をご一緒に立てさせて頂き、
よりスムーズなお住み替えをご提案し、ご一緒に物件探しの
お手伝いをさせて頂きたく存じます。
◆◆お買い替えのお客様もスムーズに購入頂けます!!◆◆
-------------------------------------------------------------
弊社では、ご所有不動産を売却し新居を購入する予定の方々に、
スムーズなお買換えが実現出来る様、買換保証・つなぎ融資制度
というサービスをご用意しております。
【まだ自宅のローンは残っているけど新居に買い替えたい】
【買換えをする時に、一時的に賃貸等に入る仮住まいを避けたい】
【ローン残債は無いけど新規でローンが組めない】・・・etc
という方はお気軽にご相談下さい。
また売却額次第で・・とお考え中の方も御相談下さい。
皆様からのご連絡、心よりお待ち申し上げております。
特長・共用施設
物件の特徴の説明ハッシュタグをクリックすることで、同じハッシュタグを含む物件を検索できます。
物件について
| 部屋 | #全室2面採光 #全居室フローリング |
|---|---|
| 収納 | #床下収納 #全居室収納 |
| キッチン | #カウンターキッチン #食器洗浄機 #浄水器 #システムキッチン #パントリー(食器・食品の収納庫) |
| 浴室・トイレ | #浴室に窓付き #浴室乾燥機 #追いだき機能 #オートバス #トイレ2ヶ所 #温水洗浄便座 |
| バルコニー | #バルコニー・屋上に水栓あり |
| 設備 | #床暖房 #都市ガス #24時間換気システム |
建物について
| セキュリティ | #TVモニタ付きインターフォン |
|---|---|
| 駐車場 | #ビルトインガレージ |
立地・周辺環境について
| 立地・環境 | #容積率100%以上 #本下水 #2沿線以上利用可 #スーパーまで徒歩5分以内 #コンビニまで徒歩3分以内 #周辺交通量少なめ |
|---|
物件の概要・詳細
物件情報の見方| 価格 | 1億6,800万円 住宅ローンシミュレーション | ||
|---|---|---|---|
| 物件番号 | F57C3011 | ||
| 所在地 | 東京都新宿区 四谷4丁目 周辺地図を見る | ||
| 交通 |
東京メトロ丸ノ内線「四谷三丁目」駅 徒歩6分 都営新宿線「曙橋」駅 徒歩10分 中央線「四ツ谷」駅 徒歩16分 東京メトロ丸ノ内線「新宿御苑前」駅 徒歩8分 |
||
| 間取り | 2LDK+S | ||
|
建物面積
|
111.11m2(33.61坪)(公簿) (車庫面積:11.6m2含) 1階:40.16m2 2階:41.56m2 3階:29.39m2 |
土地面積
| 61.6m2(18.63坪)(公簿) |
|
構造
|
木造3階建て | ||
| 築年月 | 2026年6月予定(新築) | 駐車場 | あり |
|
土地権利
|
所有権 |
地目
|
宅地 |
|
私道負担
|
なし |
セットバック
|
済 |
|
都市計画
|
市街化区域 |
用途地域
|
第一種住居地域 |
|
建ぺい率
|
60% |
容積率
|
160% |
|
接道状況
|
西4m私道 接面3m | ||
| 設備 | 公営水道・本下水・都市ガス | ||
| 現況 | 建築中 | 引 渡 | 2026年7月上旬(入居予定) |
|
取引態様
|
仲介 |
国土法届出
|
不要 |
| 備 考 | ●建築確認番号 / 第25UDI1K建01741号●都市計画法他制限 / 準防火地域、第3種高度地区、日影規制:5-3h/6.5m | ||
| 更新日 | 2026年3月17日 | 次回更新予定日 | 2026年3月31日 |
お問合せ店舗
同じエリアの新築一戸建て
-
NEW 3/17
新宿区四谷4丁目 新築戸建 C号棟
1億6,800万円
東京メトロ丸ノ内線「四谷三丁目」駅 徒歩6分
-
NEW 3/17
新宿区四谷4丁目 新築戸建 B号棟
1億6,800万円
東京メトロ丸ノ内線「四谷三丁目」駅 徒歩6分
-
新宿区喜久井町 新築戸建
7,190万円
東京メトロ東西線「早稲田」駅 徒歩7分
-
新宿区北新宿二丁目 新築戸建て
8,980万円
中央・総武線「大久保」駅 徒歩10分
同じエリアの中古一戸建て
-
新価格 3/14
新宿区若松町 中古戸建
3,580万円
新価格
都営大江戸線「若松河田」駅 徒歩4分
5DK / 土地 60.73m2
-
上落合2丁目 中古戸建
9,980万円
東京メトロ東西線「落合」駅 徒歩2分
3LDK / 土地 57.14m2
-
新宿区原町1丁目 中古戸建
1億4,800万円
都営大江戸線「牛込柳町」駅 徒歩1分
3LDK / 土地 43.75m2
-
新宿区落合2丁目 中古戸建
9,980万円
山手線「高田馬場」駅 徒歩9分
6LDK / 土地 86.18m2
-
新宿区四谷四丁目 戸建
7,900万円
東京メトロ丸ノ内線「四谷三丁目」駅 徒歩7分
2LDK / 土地 52.38m2
本掲載情報と現況に差異がある場合、現況を優先します。掲載物件は売却済あるいは売出中止となる場合もあります。掲載写真やパース(絵)、または間取図に描かれている家具や車などは、価格に含まれておりません。予めご了承ください。周辺施設や周辺環境の写真は、過去に撮影したものをそのまま利用している場合があり、名称・外観・背景等、実際のものとは異なる場合がございます。
仲介物件には所定の仲介手数料(消費税等相当額を含みます)が必要です。
東京メトロ丸ノ内線の新築一戸建てを検索する
東京都新宿区新築一戸建て売却・査定
売却もお任せください
ご所有不動産の売却をご検討なら、まずは無料査定から
投資用・事業用不動産サイト ノムコム・プロ

