チェックした物件(0件)をまとめて
2025年6月 リフォーム済み/南西向き
各居室5帖以上確保/空室物件のため、お気軽にご見学頂けます。
画像:23枚



2,380万円
相模原市中央区鹿沼台2丁目
横浜線「淵野辺」駅 徒歩5分
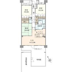
- 間取り3LDK+WIC
- 築年月1975年4月
- 専有面積69.23m2
- 所在階4階/6階建
- 向き南西
- 総戸数62戸

予約制内覧会開催! 2月14日(土)、2月15日(日) 予約制のため、現地に係員はおりません。事前にご予約をお願いします。
◆5階3方向角住戸 ◆専有面積97.56m2
◆2025年9月リフォーム完了
画像:32枚



6,999万円
藤沢市片瀬海岸2丁目
小田急江ノ島線「片瀬江ノ島」駅 徒歩6分
江ノ島電鉄「湘南海岸公園」駅 徒歩10分
- 間取り3LDK
- 築年月1970年7月
- 専有面積97.56m2
- 所在階5階/8階建
- 向き南
- 総戸数41戸

予約制内覧会開催! 2月11日(水)、2月14日(土) 予約制のため、現地に係員はおりません。事前にご予約をお願いします。
◆◇JR横浜線「相模原」駅 徒歩8分 2025年11月リフォーム完成済◇◆
■2010年5月築 ■三井不動産レジデンシャル(株)分譲 ■ペット飼育可(飼育細則有)
画像:3枚

3,480万円
相模原市中央区氷川町
横浜線「相模原」駅 徒歩8分
- 間取り3LDK
- 築年月2010年5月
- 専有面積68.44m2
- 所在階3階/6階建
- 向き南西
- 総戸数65戸

予約制内覧会開催! 2月14日(土)、2月15日(日) 10:00~18:00 予約制のため、現地に係員はおりません。事前にご予約をお願いします。
◇ご家族との会話が弾む対面式キッチン!◇全居室収納2カ所!全居室二重サッシ!
◇ペット飼育可!◇コンビニ・ドラッグストア・公園が徒歩圏!
画像:24枚



2,490万円
平塚市幸町
東海道本線(東京~熱海)「平塚」駅 徒歩18分
- 間取り2LDK
- 築年月2011年8月
- 専有面積55.22m2
- 所在階4階/5階建
- 向き南西
- 総戸数18戸

予約制内覧会開催! 2月14日(土)、2月15日(日) 10:00~16:00 予約制のため、現地に係員はおりません。事前にご予約をお願いします。
■2階住戸・角部屋+和室付き ■キッチンは2カ所出入口あり
■バルコニー2カ所あり
画像:30枚



1,190万円
藤沢市白旗1丁目
小田急江ノ島線「藤沢本町」駅 徒歩12分
小田急江ノ島線「善行」駅 徒歩18分
東海道本線(東京~熱海)「藤沢」駅 バス16分 (バス停 聖園女学院前) 徒歩3分
湘南新宿ライン(前橋~小田原)「藤沢」駅 バス16分 (バス停 聖園女学院前) 徒歩3分
- 間取り3DK
- 築年月1991年6月
- 専有面積63.25m2
- 所在階2階/6階建
- 向き南
- 総戸数26戸

予約制内覧会開催! 2月14日(土)、2月15日(日)、2月21日(土)、2月22日(日) 11:00~16:00 予約制のため、現地に係員はおりません。事前にご予約をお願いします。
■夏には阿波踊りでにぎわう街・東林間
画像:31枚



1,980万円
相模原市南区東林間4丁目
小田急江ノ島線「東林間」駅 徒歩9分
- 間取り2LDK
- 築年月1975年11月
- 専有面積58.59m2
- 所在階5階/5階建
- 向き南東
- 総戸数95戸

予約制内覧会開催! 2月14日(土)、2月15日(日)、2月21日(土)、2月22日(日) 10:00~17:00 予約制のため、現地に係員はおりません。事前にご予約をお願いします。
■11階建11階最上階から望む開放的な眺望
画像:31枚



1,880万円
海老名市杉久保北4丁目
相模線「海老名」駅 バス20分 (バス停 サンパルク650) 徒歩3分
- 間取り3LDK
- 築年月1989年7月
- 専有面積70.12m2
- 所在階11階/11階建
- 向き南西
- 総戸数154戸 / 234戸

予約制内覧会開催! 2月14日(土)、2月15日(日)、2月21日(土)、2月22日(日) 10:00~17:00 予約制のため、現地に係員はおりません。事前にご予約をお願いします。
◆◇JR横浜線「淵野辺」駅 徒歩6分 東向き・南向き角部屋◇◆
■オートロック ■カウンターキッチン ■宅配ボックス
画像:31枚



1,980万円
相模原市中央区淵野辺3丁目
横浜線「淵野辺」駅 徒歩6分
- 間取り1LDK+2S(納戸)
- 築年月1998年6月
- 専有面積66.02m2
- 所在階2階/10階建
- 向き東
- 総戸数35戸

予約制内覧会開催! 2月14日(土)、2月15日(日) 10:00~18:00 予約制のため、現地に係員はおりません。事前にご予約をお願いします。
■2025年12月リフォーム完了 ■12階角部屋の3LDK
画像:3枚

3,080万円
相模原市中央区相模原5丁目
横浜線「相模原」駅 徒歩10分
- 間取り3LDK
- 築年月1996年3月
- 専有面積65.69m2
- 所在階12階/14階建
- 向き北西
- 総戸数56戸

予約制内覧会開催! 2月14日(土)、2月15日(日) 10:00~17:00 予約制のため、現地に係員はおりません。事前にご予約をお願いします。
■2025年9月リフォーム完了 ■広々4LDKでファミリーにもおすすめです!
画像:31枚



3,290万円
相模原市中央区東淵野辺4丁目
横浜線「古淵」駅 徒歩11分
- 間取り4LDK
- 築年月1990年8月
- 専有面積91.53m2
- 所在階3階/5階建
- 向き南東
- 総戸数48戸

予約制内覧会開催! 2月14日(土)、2月15日(日) 10:00~17:00 予約制のため、現地に係員はおりません。事前にご予約をお願いします。
■広さを感じるLDK約14帖 洋室が続き間になっており繋げると約21帖の開放的空間
画像:31枚



1,297万円
相模原市緑区元橋本町
横浜線「相原」駅 徒歩11分
横浜線「橋本」駅 徒歩19分
- 間取り3LDK
- 築年月1976年8月
- 専有面積72.56m2
- 所在階4階/4階建
- 向き南西
- 総戸数78戸

予約制内覧会開催! 2月14日(土)、2月15日(日)、2月21日(土)、2月22日(日) 10:00~17:00 予約制のため、現地に係員はおりません。事前にご予約をお願いします。
◇南東向きバルコニー!◇全居室収納付きにより収納豊富!
◇食洗機・浴室乾燥機・浄水器付き!
画像:27枚



2,180万円
平塚市八重咲町
東海道本線(東京~熱海)「平塚」駅 徒歩3分
- 間取り1LDK+S
- 築年月1978年9月
- 専有面積58.32m2
- 所在階5階/10階建
- 向き南東
- 総戸数92戸

予約制内覧会開催! 2月14日(土)、2月15日(日) 10:00~16:00 予約制のため、現地に係員はおりません。事前にご予約をお願いします。
■江ノ島海岸沿い物件!海を望める屋上オーシャンプール付マンション!
■リゾート感溢れるマンション!■無償の駐車場専用使用権付き!
画像:28枚



5,598万円
藤沢市片瀬海岸3丁目
小田急江ノ島線「片瀬江ノ島」駅 徒歩9分
- 間取り2LDK
- 築年月2005年2月
- 専有面積53.75m2
- 所在階3階/7階建
- 向き南東
- 総戸数162戸

予約制内覧会開催! 2月14日(土)、2月15日(日) 10:00~15:00 予約制のため、現地に係員はおりません。事前にご予約をお願いします。
☆大船駅徒歩6分の好立地マンション☆新規リノベーション物件、そのままお住まい頂けます!
画像:31枚



4,880万円
鎌倉市岡本1丁目
東海道本線(東京~熱海)「大船」駅 徒歩6分
横須賀線「大船」駅 徒歩6分
京浜東北・根岸線「大船」駅 徒歩6分
- 間取り3LDK+2WIC
- 築年月1990年8月
- 専有面積82.46m2
- 所在階2階/8階建
- 向き南
- 総戸数―

予約制内覧会開催! 2月14日(土)、2月15日(日) 10:00~16:30 予約制のため、現地に係員はおりません。事前にご予約をお願いします。
■小田急線「小田急相模原」徒歩9分 ■2026年1月 リフォーム完了 ■専用庭面積12.02m2
■南西向き ■空室物件のため、リフォーム後はお気軽にご見学頂けます。
画像:28枚



1,990万円
座間市相模が丘5丁目
小田急小田原線「小田急相模原」駅 徒歩9分
- 間取り3LDK
- 築年月1986年4月
- 専有面積63.55m2
- 所在階1階/5階建
- 向き南西
- 総戸数―

予約制内覧会開催! 2月14日(土)、2月15日(日) 10:00~17:00 予約制のため、現地に係員はおりません。事前にご予約をお願いします。
◇相模大野駅徒歩5分の好立地 ◇1階部分・角部屋・専用庭付住戸
◇ペット飼育可(飼育細則有) ◇2025年5月リフォーム済
画像:27枚



4,480万円
相模原市南区上鶴間本町4丁目
小田急小田原線「相模大野」駅 徒歩5分
小田急江ノ島線「相模大野」駅 徒歩5分
- 間取り2LDK+S
- 築年月1996年2月
- 専有面積85.85m2
- 所在階1階/5階建
- 向き南東
- 総戸数16戸

予約制内覧会開催! 2月14日(土)、2月15日(日) 予約制のため、現地に係員はおりません。事前にご予約をお願いします。
2024年12月リフォーム完成済 / 6階建て6階・最上階の角部屋住戸 / 各居室5.9帖以上
各居室クローゼットあり / 独立性の高い専用ポーチ付き(13.5m2)
画像:31枚



3,780万円
大和市つきみ野1丁目
東急田園都市線「つきみ野」駅 徒歩11分
- 間取り3LDK
- 築年月1996年2月
- 専有面積68.98m2
- 所在階6階/6階建
- 向き南東
- 総戸数39戸

予約制内覧会開催! 2月14日(土)、2月15日(日) 予約制のため、現地に係員はおりません。事前にご予約をお願いします。
◆◇JR横浜線「町田」駅 徒歩12分・小田急線「町田」駅 徒歩13分◇◆
■3階建て3階部分(最上階)■南西向き ■3LDK・80.67m2 ■空室物件の為、お気軽にご見学いただけます。
画像:31枚



3,500万円
相模原市南区鵜野森3丁目
横浜線「町田」駅 徒歩12分
小田急小田原線「町田」駅 徒歩13分
- 間取り3LDK
- 築年月1987年2月
- 専有面積80.67m2
- 所在階3階/3階建
- 向き南西
- 総戸数25戸

予約制内覧会開催! 2月14日(土)、2月15日(日) 10:00~18:00 予約制のため、現地に係員はおりません。事前にご予約をお願いします。
◇南東向きのため陽当たり良好!◇7階角部屋のため通風良好!
◇バルコニー側を向いたカウンターキッチン!◇コンビニエンスストアが徒歩圏!
画像:8枚



2,680万円
藤沢市城南3丁目
東海道本線(東京~熱海)「辻堂」駅 バス7分 (バス停 城) 徒歩2分
- 間取り3LDK
- 築年月1992年7月
- 専有面積63.55m2
- 所在階7階/11階建
- 向き南東
- 総戸数220戸

予約制内覧会開催! 2月14日(土)、2月15日(日) 10:00~16:00 予約制のため、現地に係員はおりません。事前にご予約をお願いします。
◇南西向きのため陽当たり良好!◇開放感のあるカウンターキッチン!
◇ガーデンニングやアウトドアな遊びにも利用できる専用庭付!
画像:30枚



2,498万円
藤沢市立石2丁目
小田急江ノ島線「善行」駅 徒歩12分
- 間取り3LDK
- 築年月1997年5月
- 専有面積61.12m2
- 所在階1階/3階建
- 向き南西
- 総戸数31戸

予約制内覧会開催! 2月14日(土)、2月15日(日) 10:00~16:00 予約制のため、現地に係員はおりません。事前にご予約をお願いします。
★室内はリフォームを施しておりますので快適にお過ごし頂けます。
★南向きバルコニー・全室フローリング仕上げ・リビング床暖房、天井埋込式エアコン設置・リビング廊下ホールに収納有り
画像:9枚



9,490万円
鎌倉市由比ガ浜3丁目
江ノ島電鉄「由比ヶ浜」駅 徒歩3分
江ノ島電鉄「和田塚」駅 徒歩5分
横須賀線「鎌倉」駅 徒歩15分
- 間取り3LDK+WIC
- 築年月2000年5月
- 専有面積91.64m2
- 所在階2階/3階建
- 向き南
- 総戸数19戸

予約制内覧会開催! 2月14日(土)、2月15日(日) 10:30~16:30 予約制のため、現地に係員はおりません。事前にご予約をお願いします。
■最寄り駅より徒歩4分の駅近立地
画像:31枚



1,740万円
座間市相模が丘1丁目
小田急小田原線「小田急相模原」駅 徒歩4分
- 間取り3DK
- 築年月1975年6月
- 専有面積48.05m2
- 所在階3階/8階建
- 向き南東
- 総戸数84戸

予約制内覧会開催! 2月14日(土)、2月15日(日)、2月21日(土)、2月22日(日) 10:00~17:00 予約制のため、現地に係員はおりません。事前にご予約をお願いします。
■8階建4階部分北西×南西角部屋につき採光・眺望良好
画像:31枚



1,890万円
座間市相模が丘1丁目
小田急小田原線「小田急相模原」駅 徒歩4分
- 間取り2LDK
- 築年月1975年6月
- 専有面積54.82m2
- 所在階4階/8階建
- 向き北西
- 総戸数80戸

予約制内覧会開催! 2月14日(土)、2月15日(日)、2月21日(土)、2月22日(日) 10:00~16:00 予約制のため、現地に係員はおりません。事前にご予約をお願いします。
◆◇小田急線「南林間」駅 徒歩3分 2025年11月リフォーム完成済◇◆
■7階部分 ■南東向き ■ペット飼育可(飼育細則有)■空室物件の為、お気軽にご見学いただけます。
画像:31枚



4,480万円
大和市南林間1丁目
小田急江ノ島線「南林間」駅 徒歩3分
- 間取り3LDK
- 築年月2013年9月
- 専有面積64.64m2
- 所在階7階/14階建
- 向き南東
- 総戸数69戸

予約制内覧会開催! 2月14日(土)、2月15日(日) 10:00~18:00 予約制のため、現地に係員はおりません。事前にご予約をお願いします。
2025年11月 リフォーム完了 / 100m2超 / 3LDK+サービスルーム約6帖
各居室に収納有り / 専用駐車場付き / TVモニター付きのオートロックマンション
画像:31枚



3,980万円
相模原市中央区共和2丁目
横浜線「淵野辺」駅 徒歩17分
- 間取り3LDK+S
- 築年月2002年9月
- 専有面積105.09m2
- 所在階1階/7階建
- 向き南西
- 総戸数37戸

予約制内覧会開催! 2月14日(土)、2月15日(日) 予約制のため、現地に係員はおりません。事前にご予約をお願いします。
■1987年5月築 新耐震基準マンション×2025年6月 新規内装リフォーム済
■アイランドキッチンカウンターを配した開放的なリビングダイニングキッチン
画像:24枚



3,980万円
藤沢市鵠沼花沢町
東海道本線(東京~熱海)「藤沢」駅 徒歩6分
- 間取り1LDK
- 築年月1987年5月
- 専有面積53.46m2
- 所在階2階/12階建
- 向き南
- 総戸数81戸

予約制内覧会開催! 2月14日(土)、2月15日(日) 10:00~17:00 予約制のため、現地に係員はおりません。事前にご予約をお願いします。
■南向き・角部屋のため陽当たり・通風良好!
■リビング、廊下、全居室に収納付!
画像:30枚



3,080万円
茅ヶ崎市南湖1丁目
東海道本線(東京~熱海)「茅ケ崎」駅 徒歩19分
- 間取り3LDK
- 築年月1997年3月
- 専有面積90.76m2
- 所在階5階/11階建
- 向き南
- 総戸数105戸

予約制内覧会開催! 2月14日(土)、2月15日(日) 10:00~17:00 予約制のため、現地に係員はおりません。事前にご予約をお願いします。
■室内新規デザインリノベーション2025年11月完了予定
画像:29枚



1,590万円
相模原市南区相武台2丁目
小田急小田原線「相武台前」駅 徒歩22分
- 間取り2LDK
- 築年月1967年5月
- 専有面積57.2m2
- 所在階1階/4階建
- 向き南東
- 総戸数32戸

予約制内覧会開催! 2月14日(土)、2月15日(日)、2月21日(土)、2月22日(日) 10:00~17:00 予約制のため、現地に係員はおりません。事前にご予約をお願いします。
2025年2月リフォーム完了!全居室がバルコニーに面しており、陽当たり・通風良好♪
画像:31枚



4,280万円
相模原市緑区東橋本2丁目
横浜線「橋本」駅 徒歩13分
相模線「橋本」駅 徒歩13分
- 間取り3LDK
- 築年月2000年7月
- 専有面積65.56m2
- 所在階7階/10階建
- 向き南東
- 総戸数47戸

予約制内覧会開催! 2月14日(土)、2月15日(日) 予約制のため、現地に係員はおりません。事前にご予約をお願いします。
◇24m2の広々とした専用庭付き住戸 ◇南東向き陽当り良好♪リゾート利用だけでなく定住としてもおすすめです!
◇新規リフォーム済み(2025年3月)のためすぐにお暮しいただけます!
画像:19枚



1,499万円
三浦市宮川町
京急久里浜線「三崎口」駅 バス13分 (バス停 天神町) 徒歩14分
- 間取り2LDK
- 築年月1993年3月
- 専有面積69.53m2
- 所在階1階/7階建
- 向き南東
- 総戸数67戸

予約制内覧会開催! 2月14日(土)、2月15日(日)、2月21日(土)、2月22日(日) 10:00~17:00 予約制のため、現地に係員はおりません。事前にご予約をお願いします。
◇角部屋により陽当たり・通風良好!
◇30 m2のルーフバルコニー付きで開放感があります!
画像:28枚



4,999万円
藤沢市藤沢
東海道本線(東京~熱海)「藤沢」駅 徒歩6分
小田急江ノ島線「藤沢」駅 徒歩7分
- 間取り2LDK
- 築年月1985年6月
- 専有面積65.46m2
- 所在階3階/11階建
- 向き南東
- 総戸数86戸

予約制内覧会開催! 2月14日(土)、2月15日(日) 10:00~16:00 予約制のため、現地に係員はおりません。事前にご予約をお願いします。
★江ノ島まで平坦徒歩圏内★ご家族と会話を楽しみながらお料理ができる対面キッチン★
★新規リノベーション住戸!★ペット飼育可(飼育細則あり)★
画像:31枚



5,598万円
藤沢市片瀬海岸1丁目
小田急江ノ島線「片瀬江ノ島」駅 徒歩6分
- 間取り3LDK
- 築年月1998年5月
- 専有面積67.86m2
- 所在階2階/15階建
- 向き南東
- 総戸数146戸

予約制内覧会開催! 2月14日(土)、2月15日(日) 10:00~17:00 予約制のため、現地に係員はおりません。事前にご予約をお願いします。
■専有面積117.33m2・メゾネットタイプ3LDK■高台に立地・南東向きのため陽当たり・通風・眺望良好
■夏はお部屋から花火鑑賞が可能!※天候による■新規リノベーション物件■ペット飼育可能※細則有
画像:28枚



6,980万円
逗子市小坪6丁目
横須賀線「逗子」駅 バス18分 (バス停 逗子ヘルスケア前) 徒歩5分
湘南新宿ライン(宇都宮~逗子)「逗子」駅 バス18分 (バス停 逗子ヘルスケア前) 徒歩5分
- 間取り3LDK
- 築年月1991年3月
- 専有面積117.33m2
- 所在階3階/8階建
- 向き南東
- 総戸数44戸 / 100戸

予約制内覧会開催! 2月14日(土)、2月15日(日)、2月21日(土)、2月22日(日) 10:00~17:00 予約制のため、現地に係員はおりません。事前にご予約をお願いします。
★2024年5月リフォーム完了!
★ペット飼育可(細則有)
画像:27枚



4,180万円
三浦郡葉山町長柄
京急逗子線「逗子・葉山」駅 バス5分 (平常時4分) (バス停 川久保) 徒歩1分
横須賀線「逗子」駅 バス16分 (平常時14分) (バス停 川久保) 徒歩1分
※バスの所要時間は交通状況により遅延する場合があります
- 間取り3LDK
- 築年月1990年6月
- 専有面積77.96m2
- 所在階4階/6階建
- 向き西
- 総戸数52戸

予約制内覧会開催! 2月14日(土)、2月15日(日) 10:00~17:00 予約制のため、現地に係員はおりません。事前にご予約をお願いします。
【3方向角部屋につき通風良好】【複数路線利用可能】全4棟140戸のビッグコミュニティ!新規内装リフォーム済み物件につき、気分を新たに新生活をスタートできます!
画像:26枚



3,580万円
横須賀市東逸見町1丁目
横須賀線「横須賀」駅 徒歩2分
京急本線「逸見」駅 徒歩7分
- 間取り3LDK
- 築年月2000年3月
- 専有面積85.41m2
- 所在階1階/14階建
- 向き南
- 総戸数140戸

予約制内覧会開催! 2月14日(土)、2月15日(日) 10:00~16:00 予約制のため、現地に係員はおりません。事前にご予約をお願いします。
◇南西向きにつき日当たり良好♪
◇豊富な収納スペース♪
画像:4枚


2,490万円
大和市下鶴間
東急田園都市線「つきみ野」駅 徒歩16分
- 間取り1R
- 築年月1986年3月
- 専有面積59.4m2
- 所在階2階/5階建
- 向き南西
- 総戸数65戸

予約制内覧会開催! 2月14日(土)、2月15日(日)、2月21日(土)、2月22日(日) 10:00~17:00 予約制のため、現地に係員はおりません。事前にご予約をお願いします。
◇オープン型対面キッチンとパントリー
◇最上階角部屋の3LDK物件!陽当り、通風、眺望良好!
画像:3枚

1,730万円
海老名市上今泉1丁目
相鉄本線「かしわ台」駅 徒歩20分
- 間取り3LDK+WIC+パントリー
- 築年月1992年7月
- 専有面積62.96m2
- 所在階6階/6階建
- 向き南東
- 総戸数39戸

予約制内覧会開催! 2月14日(土)、2月15日(日)、2月21日(土)、2月22日(日) 10:00~16:00 予約制のため、現地に係員はおりません。事前にご予約をお願いします。
★JR東海道線「茅ヶ崎」駅徒歩10分★家族でゆったりと過ごせる約16.7帖のLDK★
★気持ちの良い朝日が差し込む東向きのお部屋★周辺環境充実・利便性の高い立地★
画像:27枚



3,898万円
茅ヶ崎市本村4丁目
東海道本線(東京~熱海)「茅ケ崎」駅 徒歩10分
- 間取り3LDK
- 築年月1992年8月
- 専有面積76.86m2
- 所在階4階/6階建
- 向き東
- 総戸数―

予約制内覧会開催! 2月14日(土)、2月15日(日) 10:00~17:00 予約制のため、現地に係員はおりません。事前にご予約をお願いします。
◇◆JR相模線「南橋本」駅徒歩8分◆◇ 3LDK 74.54m2 総戸数101戸のビッグコミュニティ
◆専用庭あり ◆カウンターキッチン ◆和室 ◆南西向きバルコニー ◆宅配ボックス
画像:7枚



2,599万円
相模原市中央区清新5丁目
相模線「南橋本」駅 徒歩8分
- 間取り3LDK
- 築年月1999年2月
- 専有面積74.54m2
- 所在階1階/8階建
- 向き南西
- 総戸数101戸

予約制内覧会開催! 2月14日(土)、2月15日(日) 10:00~18:00 予約制のため、現地に係員はおりません。事前にご予約をお願いします。
★2023年5月築・南西角住戸・開放感ある室内です。玄関SIC・洋室2室間にウォークスルークローゼット付
★ワークスペースにもなるサービスルーム付・広がりのあるリビング南西コーナー出窓有り
画像:12枚



2億2,000万円
藤沢市鵠沼海岸1丁目
小田急江ノ島線「鵠沼海岸」駅 徒歩8分
- 間取り2LDK
- 築年月2023年5月
- 専有面積101.27m2
- 所在階4階/5階建
- 向き南東
- 総戸数27戸

予約制内覧会開催! 2月14日(土)、2月15日(日) 10:00~17:00 予約制のため、現地に係員はおりません。事前にご予約をお願いします。
チェックした物件(0件)をまとめて
この検索条件で
アイコンの見方について
| NEW 日付 | 7日以内に登録された物件 | 新価格 日付 | 7日以内に価格が値下がりした物件 |
|---|---|---|---|
| オープンルーム | 自由に見学できるオープンルームを開催(予定)している物件 | 予約制初披露会 | 予約制の内覧会を開催(予定)している物件(内覧会開催初日が初公開日) |
| 予約制内覧会 | 予約制の内覧会を開催(予定)している物件 | 3D動画あり | 室内を歩く感覚で閲覧できる3Dウォークスルー動画を掲載している物件 |
| 動画あり | パノラマ動画・Youtube動画・VR動画で室内を閲覧できる物件 | 認定保証適用物件 | ご購入前の点検・修理、ご購入後の長期メンテナンス・アフターサービスなどのサポートを受けられる物件詳細を見る |
| あんしん設備補修 | 住宅設備の検査・補修済みで購入ができ、お引渡しから最長5年間の保証がつく物件 詳細を見る |
リノベーション | リノベーション済の中古マンション |
| オーナーレポート | 物件資料だけでは分からない、売主だから知っている「住み心地」や「物件の特徴」の紹介レポートを掲載している物件 | 資料請求 済 | 資料請求済みの物件 |
| 見学予約 済 | 見学予約済みの物件 |
投資用・事業用不動産サイト ノムコム・プロ