高田馬場住宅 NEW 1/19
お問合せ
★室内新規リフォーム物件 (2026年1月下旬完了) ★サービスルーム(納戸)あり
★多方面へのアクセス良好・商業施設も充実な高田馬場駅まで徒歩5分の立地!
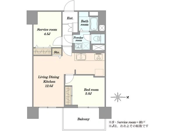
間取り図
0120-974-190
【通話無料・携帯もOK】
物件番号 FD1C1003
お問い合わせの際に、物件番号をお伝えいただくとスムーズです。
リフォーム内容
- キッチン交換
- バスルーム交換
- 洗面台交換
- トイレ交換
- 床材張替
- クロス張替
- 扉交換
┗□━━━━━━━━━━━━━━━━━━━━━━━━━━━━━━
◆キッチン交換
◆浴室交換
◆トイレ交換
◆洗面台交換
◆フローリング張替
◆クロス貼替
◆建具交換
◆照明交換
◆水回り床張替
◆給湯器交換
◆アクセントクロス
◆ハウスクリーニング
この物件のおすすめポイント
━━━━━━━━━━━━━━━━━━━━━━━━━━━━━━━━
高田馬場住宅
━━━━━━━━━━━━━━━━━━━━━━━━━━━━━━━━
■□■□■□■□■□■□■□■□■□■□■□■□■□■□■□■□
┏┓ アクセス
┗□━━━━━━━━━━━━━━━━━━━━━━━━━━━━━━
◆JR山手線「高田馬場」駅 徒歩5分
◆東京メトロ東西線「高田馬場」駅 徒歩5分
◆西武新宿線「高田馬場」駅 徒歩5分
┏┓ マンションについて
┗□━━━━━━━━━━━━━━━━━━━━━━━━━━━━━━
◆築年月:1969年11月
◆構造:SRC・RC造14階建て
◆総戸数:360戸
◆管理方式:全部委託(日勤)日本ハウズイング株式会社管理
◆2023年耐震改修工事実施済み
◆2022年 擁壁補修工事実施
◆ホテルライクな内廊下設計
◆長期修繕計画あり
┏┓ お部屋について
┗□━━━━━━━━━━━━━━━━━━━━━━━━━━━━━━
◆2400サイズのシステムキッチン
⇒食洗機・浄水器付き
◆浴室換気乾燥機・追い焚き機能付き
◆LDK・洋室にはインナーサッシ付き
◆TVモニター付きインターホン
◆各居室収納付き
◆様々な用途にお使いいただけるサービスルーム(納戸)あり
┏┓ 内装リフォーム(2026年1月下旬完成)
┗□━━━━━━━━━━━━━━━━━━━━━━━━━━━━━━
◆キッチン交換
◆浴室交換
◆トイレ交換
◆洗面台交換
◆フローリング張替
◆クロス貼替
◆建具交換
◆照明交換
◆水回り床張替
◆給湯器交換
◆アクセントクロス
◆ハウスクリーニング
┏┓ ライフインフォメーション
┗□━━━━━━━━━━━━━━━━━━━━━━━━━━━━━━
◆休日の憩いの場としても役立つ緑豊かなおとめ山公園まで徒歩3分
◆スーパー・商業施設が近隣にあり利便性も高い立地です
・オーケー高田馬場店・・・・・約230m 徒歩3分
・ワイズマート高田馬場店・・・約340m 徒歩5分
・BIG BOX高田馬場・・・・・約550m 徒歩7分
◆◇◆◇◆◇◆◇◆◇◆◇◆◇◆◇◆◇◆◇◆
┏━┓┏━┓
┃田┃┃田┃ ご購入者様限定サービス
┃田┃┃田┃ ≪住宅購入サポート≫
┃田┃┃田┃ ────────────────
┃田┃┃田┃
┗━┻┻━┻━━━━━━━━━━━━━━━
◆◇◆◇◆◇◆◇◆◇◆◇◆◇◆◇◆◇◆◇◆
┏━┓
┃1 ┃住宅購入サポート
┗━┻━━━━━━━━━━━━━━━━━━━
「野村の仲介+」で住まいを買うと・・・
次の6つのサービスから1つをプレセント!
・・・・・・・・・・・・・・・・・・・・・・
A)10年駆けつけ
B)住宅設備チェック
C)選べる住まいクリーニング
D)セコム・ホームセキュリティ
E)三越伊勢丹セレクトホームパーティギフト
F) ポイントリペア
・・・・・・・・・・・・・・・・・・・・・・
詳細はこちら
⇒ http://www.nomu.com/plus/buy_support/
┏┓お買換えの場合もスムーズにご購入頂けます!
┗□━━━━━━━━━━━━━━━━━━━━━
弊社では、買換保証・つなぎ融資制度をご用意しております!
お買換えの場合、ほとんどの方がご売却を先に行い、
売却が決まってから、購入場所を見つける流れになります。
その為、多くの方は新居入居前に一度引越しを行い、
賃料を払う「仮住まい」が必要となります。
弊社の【買換保証】と【つなぎ融資】を
ご利用頂ければ、仮住まいやWローンにならずに
お買い換えをスムーズに進めることが可能です。
(先行購入が可能となります。)
「まだ自宅のローンは残っているけど買換えたい」という方はお気軽にご相談下さい。
また、「売却額次第では・・・」とお考え中の方もご相談頂けますと幸いです。
【買換保証】
一定期間内に売却できなかった場合、あらかじめお約束した価格で当社が買い取ります。
「万が一、売れなかったらどうしよう」というお客様の不安を解消します!
⇒ http://www.nomu.com/seller/assurance.html
【つなぎ融資制度】
ゆとりあるお買換えを実現するため、売却物件のお引き渡しまでの間をサポートするサービスです。
⇒ http://www.nomu.com/seller/financing.html
※住宅購入サポート、買替保証、つなぎ融資制度のご利用には適用条件がございます。
詳しくは担当までご確認くださいませ。
┏┓資金計画のご相談受付中!!!
┗□━━━━━━━━━━━━━━━━━━━━━
「住宅ローンはいくら借りれるの?」
「月々の返済額をいくらにしたい!」、
「変動金利か固定金利のどちらが良いのだろう?」
資金計画で疑問や悩み等ございましたら、是非ご相談下さいませ。
現在の金利情勢やお借入銀行の特徴から
お客様に合った住宅ローンの組み方をご提案いたします。
※本物件以外での資金計画のご相談も承ります。
お気軽にご相談下さいませ。
担当者コメント
飯田橋センター
双佐 空 (そうさ そら)
※不動産購入・売却や住宅ローンに関するご相談等も承っておりますので、お気軽にお声掛け下さいませ。
※現地ご見学、資料請求の際は下記のいずれかの方法で、お気軽にご連絡くださいませ。
1.画面下の【見学予約】もしくは【資料請求】をクリックしてください。
2.下記担当者まで直接ご連絡ください。
担当:双佐 空 (そうさ そら)
【携帯:070-4803-7554】 もしくは 【メール:s-sousa@nomura-re.co.jp】 まで
3.【フリーコール:0120-974-190】で、担当:双佐とお呼び出しください。
特長・共用施設
物件の特徴の説明ハッシュタグをクリックすることで、同じハッシュタグを含む物件を検索できます。
物件について
| 部屋 | #フローリング #全居室フローリング |
|---|---|
| 収納 | #納戸 #全居室収納 |
| キッチン | #食器洗浄機 #浄水器 #システムキッチン |
| 浴室・トイレ | #浴室乾燥機 #追いだき機能 #オートバス #温水洗浄便座 |
建物について
| 構造 | #大規模マンション(総戸数200戸以上) |
|---|---|
| 施設・サービス | #エレベータ |
| セキュリティ | #TVモニタ付きインターフォン |
| その他 | #リフォーム |
立地・周辺環境について
| 立地・環境 | #駅徒歩5分以内 #2沿線以上利用可 #スーパーまで徒歩5分以内 #コンビニまで徒歩3分以内 #整備された歩道 #陽当り良好 |
|---|
周辺施設
物件周辺の地図を確認する-

駅
高田馬場駅
現地より約398m
徒歩5分 -

スーパー
西友高田馬場店
現地より約524m
徒歩7分
物件の概要・詳細
物件情報の見方| 価格 | 5,180万円 住宅ローンシミュレーション | ||
|---|---|---|---|
| 物件番号 | FD1C1003 | ||
| 所在地 | 東京都新宿区 下落合2丁目 周辺地図を見る | ||
| 交通 |
山手線「高田馬場」駅 徒歩5分 東京メトロ東西線「高田馬場」駅 徒歩5分 西武新宿線「高田馬場」駅 徒歩5分 |
||
| 間取り | 1LDK+S | ||
|
専有面積
|
56.79m2(17.17坪)(壁芯) | ||
| バルコニー面積 | 3.86m2 | 向き | 東 |
| その他面積 | ― | ||
|
構造
|
SRC造14階建て | 所在階 | 7階 |
| 築年月 | 1969年11月 | 総戸数 | 360戸 |
|
土地権利
|
所有権 |
用途地域
|
準工業地域・第一種住居地域 |
| 管理会社 | 日本ハウズイング株式会社 | ||
|
管理形態
|
全部委託 |
管理員
|
日勤 |
|
管理費
|
7,510円 / 月 |
修繕積立金
|
11,880円 / 月 |
| その他使用料 | ― | ||
| 駐車場 | 空なし | ||
| 現況 | 空家 | 引 渡 | 相談 |
|
取引態様
|
仲介 |
国土法届出
|
不要 |
| 備 考 | ●敷地面積 / 6373.3m2●エレベーター / 有 バルコニー面積は現地で測定した内法の面積であり、おおよその表示です。 |
||
| 更新日 | 2026年1月19日 | 次回更新予定日 | 2026年2月2日 |
お問合せ店舗
同じエリアの中古マンション
-
NEW 1/19
クラッシィタワー新宿御苑
2億5,000万円
東京メトロ丸ノ内線「新宿御苑前」駅 徒歩4分
-
新価格 1/19
サンウッドフラッツ新宿四谷三丁目
1億2,800万円
新価格
中央・総武線「信濃町」駅 徒歩6分
-
NEW 1/19
グローベル新大久保マスターズゲート
3,380万円
山手線「新大久保」駅 徒歩4分
-
新価格 1/19
藤和シティホームズ神楽坂
1億1,499万円
新価格
東京メトロ有楽町線「江戸川橋」駅 徒歩4分
-
NEW 1/19
アクシア新宿御苑
6,899万円
東京メトロ丸ノ内線「新宿御苑前」駅 徒歩3分
同じエリアの一戸建て
-
新価格 1/18
中古一戸建て上落合1丁目戸建 8,980万円 新価格 西武新宿線「下落合」駅 徒歩5分 2LDK / 土地 49.56m2 -
新築一戸建て新宿区市谷加賀町2丁目 新築戸建B号棟 1億9,180万円 都営大江戸線「牛込柳町」駅 徒歩8分 2LDK+S / 土地 69.02m2 -
中古一戸建て新宿区西落合1丁目 中古戸建 2億6,500万円 都営大江戸線「落合南長崎」駅 徒歩6分 6LDK+S / 土地 203.1m2 -
新築一戸建て新宿区北新宿二丁目 新築戸建て 8,980万円 中央・総武線「大久保」駅 徒歩10分 2LDK+S / 土地 53.06m2 -
中古一戸建て新宿区北新宿1丁目 戸建 2億7,800万円 中央・総武線「大久保」駅 徒歩8分 2LDK+S / 土地 164.2m2
本掲載情報と現況に差異がある場合、現況を優先します。掲載物件は売却済あるいは売出中止となる場合もあります。掲載写真やパース(絵)、または間取図に描かれている家具や車などは、価格に含まれておりません。予めご了承ください。周辺施設や周辺環境の写真は、過去に撮影したものをそのまま利用している場合があり、名称・外観・背景等、実際のものとは異なる場合がございます。
仲介物件には所定の仲介手数料(消費税等相当額を含みます)が必要です。
売却もお任せください
ご所有不動産の売却をご検討なら、まずは無料査定から
投資用・事業用不動産サイト ノムコム・プロ

