中野区中野六丁目 新築戸建 C棟 NEW 1/18
お問合せ
■東中野駅、中野駅が徒歩圏■旗竿地のない3棟現場
■角地計2棟あり
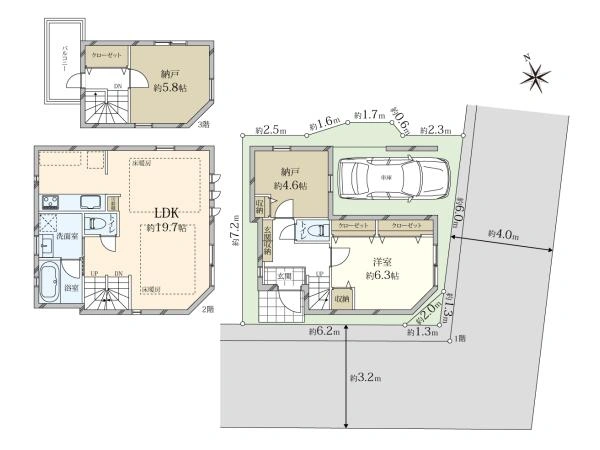
間取り図
0120-901-715
【通話無料・携帯もOK】
物件番号 FC8C1005
お問い合わせの際に、物件番号をお伝えいただくとスムーズです。
この物件のおすすめポイント
・…━━◆ 中野区中野6丁目新築戸建(全3棟 C号棟) ◆━━…・
┌┌┌┌┌┌┌┌┌┌┌┌┌┌┌┌┌┌┌┌┌┌┌┌┌┌┌┌┌
┏┓ ◆住環境について
┗□━━━━━━━━━━━━━━━━━━━━━━━━━━━━
良好な住環境が護られる、第1種低層住居専用地域に立地。
第1種低層住居専用地域とは、低層住宅のための良好な
住居環境を保護する地域で、
住環境を悪化させる施設の建設が厳しく制限されます。
┏┓ ◆C号棟の特徴
┗□━━━━━━━━━━━━━━━━━━━━━━━━━━━━
■南東側、南西側道路に接道した角地
■南東側に多くの開口部を設けた設計
┏┓ ◆設備等概要
┗□━━━━━━━━━━━━━━━━━━━━━━━━━━━━
■LDに床暖房
■1616サイズのユニットバス
■保温浴槽
■エアアクアシャワー
■サーモフロア
■浴室にTV設置
■浴室換気乾燥機
■洗面所にガス衣類乾燥機 幹太くんを標準設置
■人造大理石トップのシステムキッチン
■タッチレス水栓
■食器洗浄乾燥機
■キッチン、洗面所床タイル貼り
■24時間換気システム
■ウォシュレットトイレ
■玄関に人感センサー付き照明
┏┓ ◆ライフインフォメーション
┗□━━━━━━━━━━━━━━━━━━━━━━━━━━━━
・さくら公園…約10m
・中野区立文園公園…約120m
・中野区立桃園第2小学校…約150m
・セブンイレブン 中野6丁目店…約300m
・業務スーパー石黒 東中野店…約600m
・ライフ 東中野店…約640m
担当者コメント
中野センター
山根 出雲 (やまね いずも)
特長・共用施設
物件の特徴の説明ハッシュタグをクリックすることで、同じハッシュタグを含む物件を検索できます。
物件について
| キッチン | #浄水器 #システムキッチン |
|---|---|
| 浴室・トイレ | #浴室乾燥機 #追いだき機能 #TV付浴室 #オートバス #温水洗浄便座 |
| 設備 | #床暖房 #都市ガス #複層ガラス #24時間換気システム |
建物について
| セキュリティ | #TVモニタ付きインターフォン |
|---|---|
| その他 | #完成済み |
立地・周辺環境について
| 立地・環境 | #南道路(南東・南西含む) #低層住居専用地域 #容積率100%以上 #本下水 #2沿線以上利用可 #陽当り良好 |
|---|
周辺施設
物件周辺の地図を確認する-

公園
さくら公園
現地より約10m
徒歩1分 -

公園
中野区立中野文園公園
現地より約120m
徒歩2分 -

小学校
中野区立桃園第2小学校
現地より約150m
徒歩2分 -

コンビニ
セブンイレブン中野6丁目店
現地より約300m
徒歩4分
物件の概要・詳細
物件情報の見方| 価格 | 1億2,300万円 住宅ローンシミュレーション | ||
|---|---|---|---|
| 物件番号 | FC8C1005 | ||
| 所在地 | 東京都中野区 中野6丁目 周辺地図を見る | ||
| 交通 |
中央・総武線「東中野」駅 徒歩8分 都営大江戸線「東中野」駅 徒歩8分 中央・総武線「中野」駅 徒歩16分 東京メトロ東西線「中野」駅 徒歩16分 |
||
| 間取り | 3LDK | ||
|
建物面積
|
98.16m2(29.69坪) (車庫面積:10.93m2含) 1階:41.31m2 2階:41.67m2 3階:15.18m2 |
土地面積
| 60.48m2(18.29坪) |
|
構造
|
木造3階建て | ||
| 築年月 | 2025年12月(新築) | 駐車場 | あり |
|
土地権利
|
所有権 |
地目
|
宅地 |
|
私道負担
|
25.18m2×1 / 3 |
セットバック
|
済 |
|
都市計画
|
市街化区域 |
用途地域
|
第一種低層住居専用地域 |
|
建ぺい率
|
80% |
容積率
|
150% |
|
接道状況
|
南東4m公道 接面6m・南西3.2m公道 接面6.2m | ||
| 設備 | 公営水道・本下水・都市ガス | ||
| 現況 | 完成済 | 引 渡 | 相談 |
|
取引態様
|
仲介 |
国土法届出
|
不要 |
| 備 考 | ●建築確認番号 / 第AI建築確認00-2500189号●都市計画法他制限 / 準防火地域、第1種高度地区 | ||
| 更新日 | 2026年1月18日 | 次回更新予定日 | 2026年2月1日 |
お問合せ店舗
同じエリアの新築一戸建て
-
新価格 1/16
中野区沼袋2丁目 新築戸建 C号棟
6,780万円
新価格
西武新宿線「沼袋」駅 徒歩7分
-
中野区上鷺宮5丁目 新築戸建
7,980万円
西武新宿線「下井草」駅 徒歩11分
-
中野区中野5丁目 新築戸建
1億4,980万円
中央線「中野」駅 徒歩11分
-
中野区江古田1丁目 新築一戸建て
1億999万円
都営大江戸線「新江古田」駅 徒歩12分
-
中野区江古田1丁目 新築一戸建て
9,999万円
都営大江戸線「新江古田」駅 徒歩12分
同じエリアの中古一戸建て
-
新価格 1/17
中野区鷺宮1丁目 中古一戸建て
7,980万円
新価格
西武新宿線「都立家政」駅 徒歩6分
2LDK+S / 土地 91.22m2
-
NEW 1/16
中野区江原町1丁目 戸建
7,590万円
都営大江戸線「新江古田」駅 徒歩11分
3LDK / 土地 66.67m2
-
新価格 1/16
中野区鷺宮5丁目 一戸建
6,699万円
新価格
西武新宿線「鷺ノ宮」駅 徒歩12分
2LDK+S / 土地 54.84m2
-
中野区上鷺宮2丁目 戸建
9,100万円
西武池袋・豊島線「富士見台」駅 徒歩10分
3LDK+S / 土地 112.52m2
-
中野区東中野二丁目戸建
1億1,500万円
中央・総武線「東中野」駅 徒歩3分
4K / 土地 79.41m2
本掲載情報と現況に差異がある場合、現況を優先します。掲載物件は売却済あるいは売出中止となる場合もあります。掲載写真やパース(絵)、または間取図に描かれている家具や車などは、価格に含まれておりません。予めご了承ください。周辺施設や周辺環境の写真は、過去に撮影したものをそのまま利用している場合があり、名称・外観・背景等、実際のものとは異なる場合がございます。
仲介物件には所定の仲介手数料(消費税等相当額を含みます)が必要です。
中央・総武線の新築一戸建てを検索する
東京都中野区新築一戸建て売却・査定
売却もお任せください
ご所有不動産の売却をご検討なら、まずは無料査定から
投資用・事業用不動産サイト ノムコム・プロ

