練馬区平和台2丁目新築戸建 B号棟
お問合せ
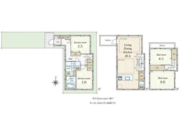
★平和台駅徒歩10分 ★建物面積110.90m2・2LDK+2S ★宅配BOXあり ★対面キッチン
★浴室1620サイズ ★LDK20.3帖 ★各居室5帖以上 ★トイレ2か所 ★カースペースあり
間取り図
0120-975-803
【通話無料・携帯もOK】
物件番号 F66BX028
お問い合わせの際に、物件番号をお伝えいただくとスムーズです。
オープンハウス開催
1月24日(土)、1月25日(日) 10:00~16:00
会場案内地図
━━━━━【1月26日(土)1月27日(日)オープンハウス開催!】━━━━━
本物件は【空室】のお部屋です。
室内をゆっくりとご覧いただけます。
開催期間中は室内にスタッフが待機しておりますので、
直接現地にお越しください。
心よりお待ちしております。
現地担当/大坪 美月(おおつぼ みづき)
携帯電話:070-4803-7441
フリーコール:0120-975-803
∽∽∽∽∽∽∽∽∽∽∽∽∽∽∽∽∽∽∽∽∽∽∽∽∽∽∽∽
開催日にご都合が合わない場合も、ご内覧いただけます。
上記フリーコール、または「見学予約」ボタンからどうぞ。
物件に関するご質問・購入・お買い替えのご相談なども
お気軽にお問合せください。
━━━━━━━━━━━━━━━━━━━━━━━━━━━━━
この物件のおすすめポイント
⊂⊃ ☆
┏━┓┏━┓☆
┃田┃┃田┃ 練馬区平和台2丁目 戸建住宅
┃田┃┃田┃ B号棟
┃田┃┃田┃ ☆
┗━┻┻━┻━━━━━━━━━━━━━━━━━
◆◇◆◇◆◇◆◇◆◇◆◇◆◇◆◇◆◇◆◇◆◇◆
野村の仲介+(PLUS)
自由が丘営業部おすすめの物件です。
見学のご希望・ご質問・ご相談は、
【担当:百武】までお気軽にご連絡下さい♪
┌◆アクセス
└─────────────────────
○東京メトロ有楽町線 「平和台」駅 徒歩10分
〇東京メトロ副都心線「平和台」駅徒歩10分
┌◆物件概要
└─────────────────────
○建物面積 :110.90m2
--------------------------------------------
○土地面積 :83.48m2
--------------------------------------------
○間取り :2LDK+2S
--------------------------------------------
○構造・階数 :木造3階建て
--------------------------------------------
○建築年月(完成時期) :2026年2月下旬
--------------------------------------------
┌◆物件の特長
└──────────────────────
■平和台駅徒歩10分の好立地!
■リビング全体が見渡せる対面キッチン
■LDK20.3帖
■各居室5帖以上で使い勝手良好!
(8帖、6.1帖、5.9帖、5.7帖)
■浴室は1620サイズ
■キッチン・浴室・トイレに窓ありなので水回りの換気◎
■リビングにTESガス温水式床暖房ありなので寒い時期の足元暖か
■カラーモニター付インターホンあり
■24時間換気システムあり
■トイレ2か所あり
■カースペースあり
■宅配BOXあり!
< 窓について >
■網入り複層ガラス
防火地域の標準ガラス。高断熱で冬も夏も快適。
室内側ガラスにコーティングした特殊金属膜の効果で
一般複層ガラスの約1.7倍の断熱効果を発揮。
冬も夏も室内を快適にキープし、エアコン効率を高めて住宅の省エネ化に貢献します。
■フレームをスリム化し、熱のロスを低減。
窓の断熱性を高めるためには、
ガラスに比べて熱を通しやすいフレームの露出を少なくする必要があります。
そこで、サーモスは独自の技術により、フレームの極小化とガラス面積最大化を図り、
断熱性能を向上させました。
■ハイブリッド構造で、フレーム高性能化。
窓外側は耐久性や強度に優れたアルミを採用し、雨、風、日差しによる劣化を防止。
室内側には、アルミに比べ熱伝導率が約1/1000の樹脂を採用し、熱の出入りを抑えます。
< 屋根について >
短形形状+高品質アクリルコート「クァッド・シリーズ」を採用。
■耐震性
地震の揺れを小さくする。
KMEW屋根材は、陶器平板瓦の約1/2という軽さ
自身大国と呼ばれる日本の暮らしにおいて、住まいの耐震化は非常に重要な課題。
一般的に建物の揺れを軽減するには、建物の重量を軽く、重心を低くすることが有効とされています。
KMEW屋根材は、重量が陶器平板瓦の約1/2の「軽い屋根」。
万一の地震にも暮らしの安心を守ります。
■耐風性能
台風に強い。
全数釘止め工法で、強風でのズレや飛散を防ぎます。
その形状や釘穴位置など、KMEW屋根材は耐風性を充分に考慮した設計。
風の抵抗を効率よく逃がす設計に加え、一枚一枚の屋根材を独自の釘止め方式で固定する施工方法で、
強風による屋根材の飛散やズレを最小限 に抑えます。
■防水性
大雨からもしっかりガード。
優れた防水設計で、大雨の際も漏水を抑えます。
KMEWの屋根材は屋根材プラス下葺材の2段階の防水設計を採用。
カラーベストは屋根材の大きな重なり部分で雨水の侵入を防ぎ、
残りの雨水の回り込みも下地の防水シートによって防止します。
< キッチン >
■人造大理石
人造大理石ならではの落ち着いた雰囲気と滑らかな質感により、
上質なキッチンを創ります。
■ホーロークリーンキッチンパネル
巾木スライド収納を装備したオールスライドキャビネット。
缶詰や季節物など普段使わないものは、巾木部へ。
また大きな鍋も収納できる上部のスライド収納、
小物類を整理できる3段スライドキャビネットと合わせて
大容量の収納スペースを確保しています。
■ホーロークリーンキッチンパネル
水にも傷にも熱や衝撃にも強く、いつまでも美しいまま。
そんな素材が、この高品位ホーローです。
シックハウス症候群の原因となるホルムアルデヒドなどの有害物質を含まないので
家族の健康や環境にも優しく、長く安心してお使いいただけます。
■メラミン化粧板
表面硬度が高く、傷がつきにくく耐久性に優れています。
耐水性・耐薬品性が高く、水や汚れをはじくため掃除がしやすく衛生的です。
難燃性に優れ、熱に強く、火災時の塩素ガスを発生しません。
■Zシンク
使いやすさを追求した形状で、大きなお鍋もラクに洗えます。
また、シンク裏面に制振材を貼ることで、シンクに水やお湯があたる音を和らげました。
スポンジや洗剤が置ける小物置きも標準装備です。
■浄水器内蔵ハンドシャワー水栓
■ホーロー整流板付きレンジフード
ホーローを使った「シャットアウトパネル」・「整流板」とグリスフィルターで油煙汚れをシャットアウト。
お掃除の手間を減らすトリプルガ ードです。
■水無両面焼ハイパーガラスコートトッププレート
衝撃やキズへの強さはもちろん、ガラストップならではの美しさを併せ持つ理想のトッ
ププレートです。
■ビルトイン食器洗い乾燥機
優れた機能性と使いやすさを追求。清浄も乾燥も高温で除菌するから清潔。
毎日使うものだから、便利・快適仕様です。
ヒーター加熱による乾燥運転の後に、乾燥ファンでしっかり乾かすから食器の水滴残りもなく、
カラッと感をキープ。庫内のにおいも抑えるからいつも清潔に保てます。
除菌洗浄・除菌乾燥など、7種類の機能を搭載。
< 浴室について >
■スイッチ付きエコアクアシャワー
空気を含んだ大粒の水滴が心地よい超節水シャワー
■パッとくるりんポイ排水口
パッとゴミがまとまって、カンタンにポイッ。
■キレイサーモフロア
汚れにくい表面処理と形状で、お掃除ラクラク。
■サーモバスS
最後のひとりまで、あたたかい。
<洗面所>
■ヒーターレスでも曇りにくいミラー「くもりシャット」
■マルチシングルレバーシャワー
<トイレ>
■キレイ機能
・アクアセラミック
従来の衛星陶器ではできなかった「ガンコな水アカ」も「汚物」もどちらも落とせる、
お掃除ラクラクな衛生陶器です。
・ビデ専用ノズル
おしり洗浄時の便がつかないから安心。ビデ洗浄の専用ノズルです。
・パワーストリーム洗浄
強力な水流が便器内の隅々まで周り、少ない水でもしっかり汚れを洗い流します。
・フチレス形状
便器のフチを丸ごと無くし、サッとひと拭き、お掃除ラクラクです。
■ECO5
地球環境に配慮した、強力洗浄の超節水トイレ
一般家庭内でトイレは使用水量が多く、全体の21%も使用しています。
この貴重な水を大切に使うことを考え、強い洗浄力はそのままに、
従来品より大幅に洗浄水量を減らしました。
「超節水ECO5トイレ」なら、大13L便器と比べ約69%、第8L便器と比べ約49%節水できます。
<その他>
■ワイヤレスモニター付きテレビドアホン「どこでもドアホン」
■高効率ガス給湯暖房熱源機「ECOジョーズ」
CO2排出量を11%削減。環境にやさしい熱源機です。
高い効率でお湯を沸かすので、ガス代がお得に!
■ガス温水式床暖房
床暖房は風邪を起こさないので、皮膚の水分が奪われにくく肌を乾燥させません。
湿度も下がらないので、ノドにも優しい暖房です。
┌◆ライフインフォメーション
└──────────────────────
■ビッグ・エー平和台1丁目店・・・367m(徒歩5分)
■ヨークフーズ練馬平和台店・・・・665m(徒歩9分)
■ライフ平和店・・・・・・・・・・772m(徒歩10分)
■アコレ平和台駅前店・・・・・・・791m(徒歩10分)
■セブンイレブン練馬平和台駅前店・677m(徒歩9分)
■ファミリーマート平和台環八通店・475m(徒歩6分)
■ウェルシア練馬平和台店・・・・・760m(徒歩10分)
■城北中央公園・・・・・・・・・・1331m(徒歩17分)
■練馬区立仲町西児童遊園・・・・・50m(徒歩1分)
■練馬区立平和台なでしこ児童遊園・65m(徒歩1分)
■練馬区立ふれあい公園・・・・・・341m(徒歩5分)
■城北中央公園・・・・・・・・・・1331m(徒歩17分) ※ドッグランがあります!
■練馬区立平和台体育館・・・・・・129m(徒歩2分)
■練馬区立平和台児童館・・・・・・138m(徒歩2分)
■練馬区立平和台図書館・・・・・・473m(徒歩6分)
■練馬区立北町小学校・・・・・・・788m(徒歩10分)
───────────────────────
注意1:上記記載文章はプレゼンシート(仕様書)より
抜粋しております。最大限の注意を払って現場と
資料の差異がないかの確認をしておりますが、
プランの変更等が生じている可能性がございます。
差異があった場合は【現況優先】となりますことをご了承ください。
注意2:駅からの距離、施設からの距離は当社、
距離測定での表示距離を掲載しております。
実際の体感距離は必ずお客様ご自身でもお確かめ
頂きたく願います。
───────────────────────
◆◆◆◆◆◆◆◆◆◆◆◆◆◆◆◆◆◆◆◆◆◆◆◆◆
《野村の仲介+(PLUS)ご購入者様特典》
◆購入サポート◆
『お客様の新生活を応援したいー。』
野村の仲介+(PLUS)のそんな気持ちを形にしました。
下記サービスを無償でプレゼントいたします。
■新居でお祝いを―「三越伊勢丹ホームパーティーギフト」
※詳細は担当者までお問合せ下さい。
┏┓お買換えの場合もスムーズにご購入頂けます!
┗□━━━━━━━━━━━━━━━━━━━━━
弊社では、買換保証・つなぎ融資制度をご用意しております!
お買換えの場合、ほとんどの方がご売却を先に行い、
売却が決まってから、購入場所を見つける流れになります。
その為、多くの方は新居入居前に一度引越を行い、
賃料を払う「仮住まい」が必要となります。
弊社の【買換保証】と【つなぎ融資】を
ご利用頂ければ、仮住まいやWローンにならずに
お買い換えをスムーズに進めることが可能です。
(先行購入が可能となります。)
「まだ自宅のローンは残っているけど買換えたい」
という方はお気軽にご相談下さい。
また、「売却額次第では・・・」とお考え中の方も
ご相談頂けますと幸いです。
【買換保証】
一定期間内に売却できなかった場合、あらかじめ
お約束した価格で当社が買い取ります。
「万が一、売れなかったらどうしよう」という
お客様の不安を解消します!
⇒ http://www.nomu.com/seller/assurance.html
【つなぎ融資制度】
ゆとりあるお買換えを実現するため、売却物件の
お引き渡しまでの間をサポートするサービスです。
⇒ http://www.nomu.com/seller/financing.html
┏┓資金計画のご相談受付中!!!
┗□━━━━━━━━━━━━━━━━━━━━━
「住宅ローンはいくら借りれるの?」
「月々の返済額をいくらにしたい!」
「変動金利か固定金利のどちらが良いのだろう?」
資金計画で疑問や悩み等ございましたら、是非ご相談下さいませ。
現在の金利情勢やお借入銀行の特徴からお客様に合った住宅ローンの組み方をご提案いたします。
※本物件以外での資金計画のご相談も承ります。お気軽にご相談下さいませ。
《弊社ご紹介先銀行一覧》
三菱UFJ銀行・三井住友信託銀行・みずほ銀行
三井住友銀行・各地方銀行・フラット35利用銀行等
┏┓資料のご請求は
┗□━━━━━━━━━━━━━━━━━━━━━
詳細資料の請求は、お手数おかけしますが、下記お問い合わせ先まで、ご連絡下さいませ。
資料を郵送または、メールにてお送りいたします。
担当者コメント
自由が丘営業部
百武 樹里 (ひゃくたけ じゅり)
┏┓ ご内覧のご予約・資料請求お問合せ
┗□━━━━━━━━━━━━━━━━━━━
現地の見学希望・ご質問等は担当の
『 百武(ひゃくたけ) 』まで
お気軽にお問い合わせください。
≪ フリーコール:0120-975-803 ≫
★お問合せいただきましたお客様には・・★
販売図面、周辺地図等の資料の送付と併せ、
不動産購入の流れ、資金計画等の資料も
ご用意しております。
お気軽にお問合せ下さいませ。
☆メールでも受け付け中です☆
メール:j-hyakutake@nomura-re.co.jp
※融資のご相談もお気軽にお申し付け下さい。
━━━━━━━━━━━━━━━━━━━━━
特長・共用施設
物件の特徴の説明ハッシュタグをクリックすることで、同じハッシュタグを含む物件を検索できます。
物件の概要・詳細
物件情報の見方| 価格 | 7,880万円 住宅ローンシミュレーション | ||
|---|---|---|---|
| 物件番号 | F66BX028 | ||
| 所在地 | 東京都練馬区 平和台2丁目 周辺地図を見る | ||
| 交通 |
東京メトロ有楽町線「平和台」駅 徒歩10分 東京メトロ副都心線「平和台」駅 徒歩10分 |
||
| 間取り | 2LDK+2S | ||
|
建物面積
|
110.9m2(33.54坪) 1階:42.13m2 2階:39.23m2 3階:29.54m2 |
土地面積
| 83.48m2(25.25坪) |
|
構造
|
木造3階建て | ||
| 築年月 | 2026年1月予定(新築) | 駐車場 | あり |
|
土地権利
|
所有権 |
地目
|
宅地 |
|
私道負担
|
なし |
セットバック
|
― |
|
都市計画
|
市街化区域 |
用途地域
|
第一種低層住居専用地域 |
|
建ぺい率
|
60% |
容積率
|
160% |
|
接道状況
|
西4m公道 接面2.6m | ||
| 設備 | 公営水道・本下水・都市ガス | ||
| 現況 | 建築中 | 引 渡 | 2026年1月下旬(入居予定) |
|
取引態様
|
仲介 |
国土法届出
|
不要 |
| 備 考 | ●建築確認番号 / 第JAIC2025X0173A1号●都市計画法他制限 / 準防火地域、第2種高度地区 | ||
| 更新日 | 2026年1月19日 | 次回更新予定日 | 2026年2月2日 |
お問合せ店舗
同じエリアの新築一戸建て
-
新価格 1/21
練馬区石神井町6丁目 新築一戸建て
6,780万円
新価格
西武池袋・豊島線「石神井公園」駅 徒歩12分
-
新価格 1/20
練馬区大泉学園町1丁目 新築一戸建て
7,498万円
新価格
西武池袋・豊島線「大泉学園」駅 徒歩18分
-
新価格 1/20
練馬区大泉学園町1丁目 新築一戸建て
7,498万円
新価格
西武池袋・豊島線「大泉学園」駅 徒歩18分
-
NEW 1/19
練馬区関町南3丁目 新築戸建
7,180万円
西武新宿線「武蔵関」駅 徒歩11分
-
NEW 1/19
練馬区北町5丁目 新築分譲住宅
7,680万円
東京メトロ有楽町線「平和台」駅 徒歩12分
同じエリアの中古一戸建て
-
NEW 1/19
練馬区下石神井五丁目 中古戸建
7,980万円
西武新宿線「上井草」駅 徒歩11分
4LDK / 土地 119.95m2
-
新価格 1/19
練馬区北町8丁目 中古戸建
9,180万円
新価格
東京メトロ有楽町線「地下鉄赤塚」駅 徒歩8分
5LDK / 土地 115.7m2
-
NEW 1/19
練馬区南大泉1丁目 戸建
1億1,800万円
西武池袋・豊島線「大泉学園」駅 バス12分 (平常時11分) (バス停 西村) 徒歩6分
4LDK / 土地 279.92m2
-
練馬区土支田1丁目 戸建
1億2,500万円
都営大江戸線「光が丘」駅 徒歩16分
2LDK+S / 土地 158.12m2
-
練馬区氷川台1丁目 一戸建
8,480万円
東京メトロ有楽町線「氷川台」駅 徒歩10分
4LDK / 土地 84m2
本掲載情報と現況に差異がある場合、現況を優先します。掲載物件は売却済あるいは売出中止となる場合もあります。掲載写真やパース(絵)、または間取図に描かれている家具や車などは、価格に含まれておりません。予めご了承ください。周辺施設や周辺環境の写真は、過去に撮影したものをそのまま利用している場合があり、名称・外観・背景等、実際のものとは異なる場合がございます。
仲介物件には所定の仲介手数料(消費税等相当額を含みます)が必要です。
売却もお任せください
ご所有不動産の売却をご検討なら、まずは無料査定から
投資用・事業用不動産サイト ノムコム・プロ

