練馬区富士見台2丁目 新築戸建 NEW 3/19
お問合せ
☆ イトーピアホーム株式会社施工 ☆
★ 西武池袋・豊島線「練馬髙野台」駅徒歩9分 ★ ☆ 4LDKの間取り ☆
間取り図
物件写真
0120-344-281
【通話無料・携帯もOK】
物件番号 F57C3015
お問い合わせの際に、物件番号をお伝えいただくとスムーズです。
この物件のおすすめポイント
練馬区富士見台2丁目
イトーピアホーム(株)施工 新築戸建
*◇━━━━━━━━━━━━━━━━━━━━━◇*
┏┓ ◆物件概要
┗□━━━━━━━━━━━━━━━━━━━━━━━
■交通:西武池袋・豊島線「練馬高野台」駅 徒歩9分
西武池袋・豊島線「富士見台」駅 徒歩15分
-------------------------------------------------------
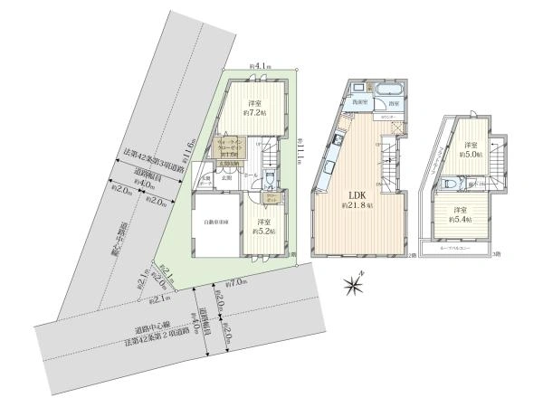
■土地面積 : 73.34m2(約22.18坪)
-------------------------------------------------------
■建物面積 : 110.87m2(約33.53坪)
-------------------------------------------------------
■間取り : 4LDK
-------------------------------------------------------
■構造 : 木造3階建て
-------------------------------------------------------
■建築年月 : 2026年(令和8年)3月完成
-------------------------------------------------------
■施工会社 : イトーピアホーム(株)
-------------------------------------------------------
┏┓ 建物のご紹介
┗□━━━━━━━━━━━━━━━━━━━━━━━
◆4LDKの間取
◆ビルトインカースペース1台あり
※車種による
◆1階部分 : 43.25m2(車庫9.93m2含む)
・雨を防げるビルトインカースペース1台分
・約7.2帖の広々とした洋室と約5.2帖の洋室
の2部屋
◆2階部分 : 44.90m2
・約21.8帖のLDK
・足元からお部屋全体を暖める「床暖房」
・1,6m×1.6mのユニットバス
◆3階部分 : 44.90m2
・約5.0帖の洋室、約5.4帖の洋室の2部屋
┏┓ 設備のご紹介
┗□━━━━━━━━━━━━━━━━━━━━━━━
【キッチン】
・家事の負担を減らす「食器洗浄乾燥機」
・「浄水器一体型のシングルレバー水栓」採用
【浴室】
・断熱仕様の浴槽
・「16m×16mサイズのユニットバスを採用
・カビの発生を抑制し、洗濯物を乾かす「浴室暖房乾燥機」
【トイレ】
・スタイリッシュな「タンクレス」「自動開閉式」を採用
注意1:上記記載文章は環境・施設の変化が生じている
可能性がございます。差異があった場合は
【現況優先】となりますことをご了承ください。
注意2:駅からの距離、施設からの距離は、
社内システムを参照して入力しております。
実際の体感距離は必ずお客様ご自身でも
お確かめ頂きたく願います。
80mにつき1分計算で机上測定されております。
注意3:上記セールスポイントは、新築工事資料を
参考にしております。現況と差異がある場合、
【現況優先】となりますことをご了承ください。
注意4:表示の所要時間は日中平常時のもので、
通勤時間帯により多少異なります。
また、乗り換え時間や待ち時間は含まれていません。
┏┓お問い合わせ先
┗□━━━━━━━━━━━━━━━━━━━
物件に関するご質問・ご見学をご希望のお客様は
担当「内田(うちだ)」までお気軽にお問い合わせください。
〈お電話でのお問い合わせ〉
◇渋谷営業部 :0120-344-281
「建物状況」「周辺環境」「不動産ご購入の流れ」
「住宅ローン」「購入にかかる諸費用」など
いつでもお気軽にご連絡くださいませ。
また、日照・眺望・周辺環境・細かい室内状況等、写真だけでは
分かりにくい点は是非現地にてご確認下さいませ。
お会いさせて頂きました際には、不動産のご購入について
お客様のご希望条件や資金計画等をご一緒に立てさせて頂き、
よりスムーズなお住み替えをご提案し、ご一緒に物件探しの
お手伝いをさせて頂きたく存じます。
◆◆お買い替えのお客様もスムーズに購入頂けます!!◆◆
-------------------------------------------------------------
弊社では、ご所有不動産を売却し新居を購入する予定の方々に、
スムーズなお買換えが実現出来る様、買換保証・つなぎ融資制度
というサービスをご用意しております。
【まだ自宅のローンは残っているけど新居に買い替えたい】
【買換えをする時に、一時的に賃貸等に入る仮住まいを避けたい】
【ローン残債は無いけど新規でローンが組めない】・・・etc
という方はお気軽にご相談下さい。
また売却額次第で・・とお考え中の方も御相談下さい。
皆様からのご連絡、心よりお待ち申し上げております。
担当者コメント
渋谷営業部
内田 颯 (うちだ はやて)
┗□━━━━━━━━━━━━━━━━━━━
物件に関するご質問・ご見学をご希望のお客様は
担当「内田(うちだ)」までお気軽にお問い合わせください。
〈お電話でのお問い合わせ〉
◇渋谷営業部 :0120-344-281
「建物状況」「周辺環境」「不動産ご購入の流れ」
「住宅ローン」「購入にかかる諸費用」など
いつでもお気軽にご連絡くださいませ。
また、日照・眺望・周辺環境・細かい室内状況等、写真だけでは
分かりにくい点は是非現地にてご確認下さいませ。
特長・共用施設
物件の特徴の説明ハッシュタグをクリックすることで、同じハッシュタグを含む物件を検索できます。
物件について
| 位置 | #南向き |
|---|---|
| 部屋 | #全室2面採光 #全居室フローリング |
| 収納 | #ウォークインクローゼット |
| キッチン | #食器洗浄機 #システムキッチン |
| 浴室・トイレ | #浴室に窓付き #浴室乾燥機 #追いだき機能 #トイレ2ヶ所 #温水洗浄便座 |
| 設備 | #都市ガス |
建物について
| セキュリティ | #TVモニタ付きインターフォン |
|---|---|
| 駐車場 | #ビルトインガレージ |
立地・周辺環境について
| 立地・環境 | #角地 #南道路(南東・南西含む) #容積率100%以上 #本下水 |
|---|
物件の概要・詳細
物件情報の見方| 価格 | 7,980万円 住宅ローンシミュレーション | ||
|---|---|---|---|
| 物件番号 | F57C3015 | ||
| 所在地 | 東京都練馬区 富士見台2丁目 周辺地図を見る | ||
| 交通 |
西武池袋・豊島線「練馬高野台」駅 徒歩9分 西武池袋・豊島線「富士見台」駅 徒歩15分 |
||
| 間取り | 4LDK | ||
|
建物面積
|
110.87m2(33.53坪) 1階:43.25m2 2階:44.9m2 3階:22.72m2 |
土地面積
| 75.34m2(22.79坪)(実測) |
|
構造
|
木造2階建て | ||
| 築年月 | 2026年3月予定(新築) | 駐車場 | あり |
|
土地権利
|
所有権 |
地目
|
宅地 |
|
私道負担
|
11.12m2 |
セットバック
|
― |
|
都市計画
|
市街化区域 |
用途地域
|
第一種住居地域 |
|
建ぺい率
|
60% |
容積率
|
160% |
|
接道状況
|
南西4m私道 接面11.6m・南東4m公道 接面7m・南4m公道 接面2.1m | ||
| 設備 | 公営水道・本下水・都市ガス | ||
| 現況 | 建築中 | 引 渡 | 2026年3月下旬(入居予定) |
|
取引態様
|
仲介 |
国土法届出
|
不要 |
| 備 考 | ●建築確認番号 / 第25UDI1K建00904号●都市計画法他制限 / 準防火地域、第2種高度地区 ●私道負担の詳細【共有】923.63m2×(共有持分)53/4400 |
||
| 更新日 | 2026年3月19日 | 次回更新予定日 | 2026年4月2日 |
お問合せ店舗
同じエリアの新築一戸建て
-
新価格 3/19
練馬区谷原6丁目 新築一戸建て
6,450万円
新価格
西武池袋・豊島線「石神井公園」駅 徒歩22分
-
新価格 3/17
練馬区富士見台1丁目 新築一戸建て
6,090万円
新価格
西武新宿線「下井草」駅 徒歩12分
-
NEW 3/16
練馬区旭丘2丁目 新築戸建
6,380万円
都営大江戸線「新江古田」駅 徒歩11分
-
新価格 3/14
練馬区貫井5丁目 新築戸建【全1棟】
7,480万円
新価格
西武池袋・豊島線「中村橋」駅 徒歩13分
-
新価格 3/14
練馬区谷原6丁目 新築一戸建て
7,480万円
新価格
西武池袋・豊島線「石神井公園」駅 徒歩23分
同じエリアの中古一戸建て
-
NEW 3/19
練馬区三原台2丁目中古戸建
5,680万円
西武池袋・豊島線「石神井公園」駅 徒歩21分
4LDK / 土地 103.82m2
-
NEW 3/12
練馬区石神井台7丁目 中古一戸建て
5,250万円
西武新宿線「武蔵関」駅 徒歩8分
2LDK+S / 土地 90.73m2
-
練馬区西大泉4丁目中古戸建
9,480万円
西武池袋・豊島線「大泉学園」駅 バス24分 (バス停 西大泉市民農園) 徒歩1分
4LDK / 土地 226.2m2
-
練馬区関町北3丁目 中古戸建
6億7,800万円
西武新宿線「武蔵関」駅 徒歩9分
1LDK+3S / 土地 611.57m2
-
練馬区桜台6丁目中古戸建
9,180万円
西武池袋・豊島線「練馬」駅 徒歩16分
3LDK / 土地 199.91m2
本掲載情報と現況に差異がある場合、現況を優先します。掲載物件は売却済あるいは売出中止となる場合もあります。掲載写真やパース(絵)、または間取図に描かれている家具や車などは、価格に含まれておりません。予めご了承ください。周辺施設や周辺環境の写真は、過去に撮影したものをそのまま利用している場合があり、名称・外観・背景等、実際のものとは異なる場合がございます。
仲介物件には所定の仲介手数料(消費税等相当額を含みます)が必要です。
西武池袋・豊島線の新築一戸建てを検索する
東京都練馬区新築一戸建て売却・査定
売却もお任せください
ご所有不動産の売却をご検討なら、まずは無料査定から
投資用・事業用不動産サイト ノムコム・プロ

