世田谷区瀬田5丁目新築戸建 2号棟
お問合せ
■2026年2月末完成予定 ■全4区画分譲地 ■2LDK+S+WIC
■駐車のしやすい6.0mの道路幅員 ■敷地内カースペース有り ■省エネ適合住宅
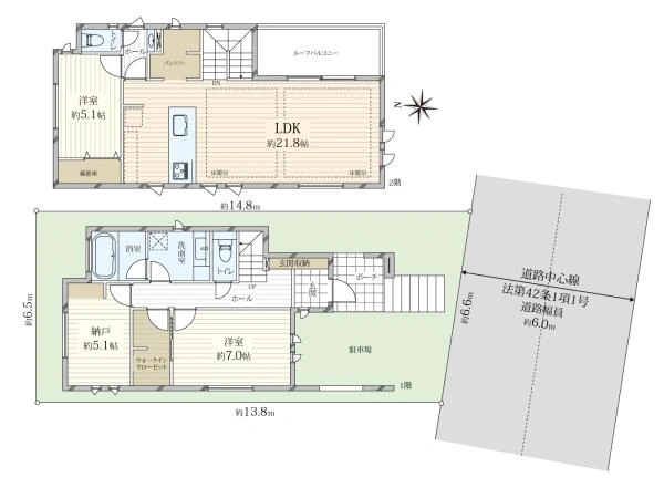
間取り図
0120-344-281
【通話無料・携帯もOK】
物件番号 F57C1011
お問い合わせの際に、物件番号をお伝えいただくとスムーズです。
この物件のおすすめポイント
閑静な住宅街に位置し、二子玉川・用賀エリアへの交通アクセスが良好です。
豊かな自然環境に囲まれ、落ち着いた住環境で快適な暮らしを実現できます。
┏┓本物件のおすすめポイントについて
┗■━━━━━━━━━━━━━━━━━━━━━━━━━━━━━━━
■ 第一種低層住居専用地域で良好な住環境を維持
■ 統一感のある街並みを形成する全4区画の分譲地
■ 水回りの動線を重視したスムーズな生活導線
■2LDK+S+WICの間取り、シンプルながらも使いやすい空間設計
■ 道路幅員6.0mで駐車・車庫入れがスムーズ(敷地内カースペース完備)
■ 省エネ適合住宅
┏┓ 交通アクセスについて
┗■━━━━━━━━━━━━━━━━━━━━━━━━━━━━━━━━
■ 東急田園都市線「用賀」駅 徒歩12分
■ 東急大井町線「二子玉川」駅 徒歩16分
┏┓ 資金計画・住宅ローンについて
┗■━━━━━━━━━━━━━━━━━━━━━━━━━━━━━━━━
■ 住宅購入は人生最大の買い物です。
資金計画や住宅ローンについて不安をお持ちの方も、お気軽にご相談ください。
住宅ローンのお打ち合わせや金融機関のご紹介やFP相談なども承っております。
注意1.上記内容と差異があった場合は【現況優先】となります。
注意2.駅からの距離等はお客様自身でもお確かめ頂きたく願います。
担当者コメント
渋谷営業部
内田 颯 (うちだ はやて)
┗□━━━━━━━━━━━━━━━━━━━
物件に関するご質問・ご見学をご希望のお客様は
担当「内田(うちだ)」までお気軽にお問い合わせください。
〈お電話でのお問い合わせ〉
◇渋谷営業部 :0120-344-281
「建物状況」「周辺環境」「不動産ご購入の流れ」
「住宅ローン」「購入にかかる諸費用」など
いつでもお気軽にご連絡くださいませ。
また、日照・眺望・周辺環境・細かい室内状況等、写真だけでは
分かりにくい点は是非現地にてご確認下さいませ。
お会いさせて頂きました際には、不動産のご購入について
お客様のご希望条件や資金計画等をご一緒に立てさせて頂き、
よりスムーズなお住み替えをご提案し、ご一緒に物件探しの
お手伝いをさせて頂きたく存じます。
◆◆お買い替えのお客様もスムーズに購入頂けます!!◆◆
-------------------------------------------------------------
弊社では、ご所有不動産を売却し新居を購入する予定の方々に、
スムーズなお買換えが実現出来る様、買換保証・つなぎ融資制度
というサービスをご用意しております。
【まだ自宅のローンは残っているけど新居に買い替えたい】
【買換えをする時に、一時的に賃貸等に入る仮住まいを避けたい】
【ローン残債は無いけど新規でローンが組めない】・・・etc
という方はお気軽にご相談下さい。
また売却額次第で・・とお考え中の方も御相談下さい。
皆様からのご連絡、心よりお待ち申し上げております。
特長・共用施設
物件の特徴の説明ハッシュタグをクリックすることで、同じハッシュタグを含む物件を検索できます。
物件の概要・詳細
物件情報の見方| 価格 | 1億4,390万円 住宅ローンシミュレーション | ||
|---|---|---|---|
| 物件番号 | F57C1011 | ||
| 所在地 | 東京都世田谷区 瀬田5丁目 周辺地図を見る | ||
| 交通 |
東急田園都市線「用賀」駅 徒歩12分 東急大井町線「二子玉川」駅 徒歩16分 |
||
| 間取り | 2LDK+S+WIC | ||
|
建物面積
|
104.94m2(31.74坪)(現況) (車庫面積:9.28m2含) 1階:52.5m2 2階:52.44m2 |
土地面積
| 94.03m2(28.44坪)(実測) |
|
構造
|
木造2階建て | ||
| 築年月 | 2026年3月予定(新築) | 駐車場 | あり |
|
土地権利
|
所有権 |
地目
|
宅地 |
|
私道負担
|
なし |
セットバック
|
― |
|
都市計画
|
市街化区域 |
用途地域
|
第一種低層住居専用地域 |
|
建ぺい率
|
60% |
容積率
|
100% |
|
接道状況
|
南6m公道 接面6.6m | ||
| 設備 | 公営水道・本下水・都市ガス | ||
| 現況 | 建築中 | 引 渡 | 2026年3月下旬(入居予定) |
|
取引態様
|
仲介 |
国土法届出
|
不要 |
| 備 考 | ●建築確認番号 / 第25UDI1K建00928号●都市計画法他制限 / 準防火地域、第1種高度地区 ■施工会社:イトーピアホーム株式会社 ■設計会社:イトーピアホーム株式会社一級建築士事務所 ■その他法令上制限:最低敷地面積:80m2、日影規制:4h-2.5h 1.5m、絶対高さ10m、宅地造成等工事規制区域、緑化地域 ※S:納戸、WIC:ウォークインクローゼット |
||
| 更新日 | 2026年3月2日 | 次回更新予定日 | 2026年3月16日 |
お問合せ店舗
同じエリアの新築一戸建て
-
新価格 3/10
世田谷区梅丘2丁目 新築一戸建て
1億798万円
新価格
小田急小田原線「豪徳寺」駅 徒歩11分
-
世田谷区喜多見1丁目 新築一戸建て
7,980万円
小田急小田原線「成城学園前」駅 徒歩26分
-
世田谷区喜多見4丁目 新築一戸建て
8,680万円
小田急小田原線「喜多見」駅 徒歩18分
-
世田谷区喜多見1丁目 新築一戸建て
7,980万円
小田急小田原線「成城学園前」駅 徒歩26分
-
世田谷区北烏山3丁目 新築戸建
9,699万円
京王線「千歳烏山」駅 徒歩10分
同じエリアの中古一戸建て
-
新価格 3/11
世田谷区桜上水5丁目 中古一戸建て
1億4,980万円
新価格
京王線「桜上水」駅 徒歩5分
4LDK / 土地 162.79m2
-
NEW 3/10
世田谷区代田2丁目 中古戸建
1億3,590万円
小田急小田原線「世田谷代田」駅 徒歩4分
3LDK / 土地 67.11m2
-
NEW 3/9
世田谷区船橋7丁目 中古戸建
8,280万円
小田急小田原線「千歳船橋」駅 徒歩17分
2LDK+S / 土地 57.26m2
-
NEW 3/9
世田谷区池尻2丁目 中古戸建
1億980万円
東急田園都市線「池尻大橋」駅 徒歩5分
3LDK / 土地 57.49m2
-
新価格 3/8
世田谷区深沢7丁目 戸建て(再建築不可)
4,900万円
新価格
東急田園都市線「桜新町」駅 徒歩19分
4K / 土地 99.67m2
本掲載情報と現況に差異がある場合、現況を優先します。掲載物件は売却済あるいは売出中止となる場合もあります。掲載写真やパース(絵)、または間取図に描かれている家具や車などは、価格に含まれておりません。予めご了承ください。周辺施設や周辺環境の写真は、過去に撮影したものをそのまま利用している場合があり、名称・外観・背景等、実際のものとは異なる場合がございます。
仲介物件には所定の仲介手数料(消費税等相当額を含みます)が必要です。
東急田園都市線の新築一戸建てを検索する
東京都世田谷区新築一戸建て売却・査定
売却もお任せください
ご所有不動産の売却をご検討なら、まずは無料査定から
投資用・事業用不動産サイト ノムコム・プロ

