新築一戸建て
練馬区富士見台2丁目 新築戸建 NEW 11/6
お問合せ
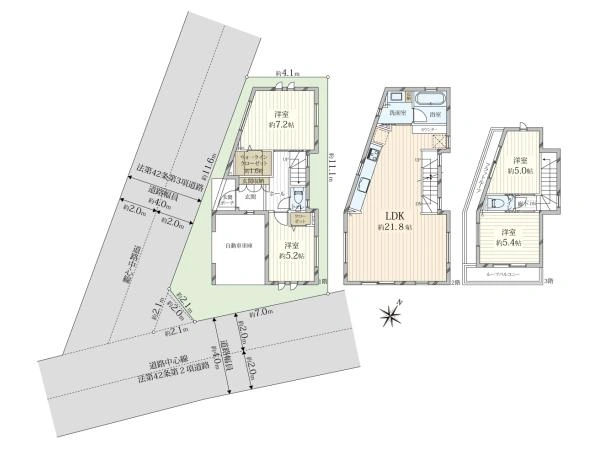
間取り図
0120-344-281
(通話無料・携帯もOK)
物件番号 F57BY003
お問い合わせの際に、物件番号をお伝えいただくとスムーズです。
特長・共用施設
物件の特徴の説明ハッシュタグをクリックすることで、同じハッシュタグを含む物件を検索できます。
物件の概要・詳細
物件情報の見方| 価格 | 7,980万円 住宅ローンシミュレーション | ||
|---|---|---|---|
| 物件番号 | F57BY003 | ||
| 所在地 | 東京都練馬区 富士見台2丁目 周辺地図を見る | ||
| 交通 |
西武池袋・豊島線「練馬高野台」駅 徒歩9分 西武池袋・豊島線「富士見台」駅 徒歩15分 |
||
| 間取り | 4LDK | ||
|
建物面積
|
110.87m2(33.53坪) 1階:43.25m2 2階:44.9m2 3階:22.72m2 |
土地面積
| 75.34m2(22.79坪)(実測) |
|
構造
|
木造2階建て | ||
| 築年月 | 2026年3月予定(新築) | 駐車場 | あり |
|
土地権利
|
所有権 |
地目
|
宅地 |
|
私道負担
|
11.12m2 |
セットバック
|
― |
|
都市計画
|
市街化区域 |
用途地域
|
第一種住居地域 |
|
建ぺい率
|
60% |
容積率
|
160% |
|
接道状況
|
南西4m私道 接面11.6m・南東4m公道 接面7m・南4m公道 接面2.1m | ||
| 設備 | 公営水道・本下水・都市ガス | ||
| 現況 | 建築中 | 引 渡 | 2026年3月下旬(入居予定) |
|
取引態様
|
仲介 |
国土法届出
|
不要 |
| 備 考 | ●建築確認番号 / 第25UDI1K建00904号●都市計画法他制限 / 準防火地域、第2種高度地区 ●私道負担の詳細【共有】923.63m2×(共有持分)53/4400 |
||
| 更新日 | 2025年11月6日 | 次回更新予定日 | 2025年11月20日 |
お問合せ店舗
同じエリアの新築一戸建て
-
新価格 11/6
練馬区向山4丁目新築戸建て
6,480万円
新価格
西武池袋・豊島線「中村橋」駅 徒歩10分
-
新価格 11/3
練馬区三原台2丁目新築戸建・1号棟 ≪Zut PLUS≫
7,399万円
新価格
西武池袋・豊島線「石神井公園」駅 徒歩24分
-
NEW 11/3
練馬区桜台5丁目 新築戸建
9,990万円
西武池袋・豊島線「桜台」駅 徒歩10分
-
新価格 11/3
練馬区石神井町8丁目新築戸建・2号棟
7,649万円
新価格
西武池袋・豊島線「石神井公園」駅 徒歩16分
-
NEW 11/3
練馬区富士見台1期 3号棟
8,999万円
西武池袋・豊島線「富士見台」駅 徒歩11分
同じエリアの中古一戸建て
-
新価格 11/3
練馬区南大泉1丁目中古戸建
6,299万円
新価格
西武池袋・豊島線「保谷」駅 徒歩14分
2LDK+S / 土地 148.82m2
-
NEW 11/1
練馬区東大泉4丁目 中古戸建
6,280万円
西武池袋・豊島線「大泉学園」駅 徒歩9分
4LDK / 土地 114.78m2
-
練馬区中村南3丁目 中古一戸建て
4,280万円
西武池袋・豊島線「中村橋」駅 徒歩12分
3LDK / 土地 55.3m2
-
練馬区関町北2丁目 中古一戸建て
6,480万円
西武新宿線「武蔵関」駅 徒歩6分
2LDK+S / 土地 103.58m2
-
練馬区上石神井4丁目 中古一戸建て
7,980万円
西武新宿線「武蔵関」駅 徒歩11分
3LDK / 土地 134.63m2
本掲載情報と現況に差異がある場合、現況を優先します。掲載物件は売却済あるいは売出中止となる場合もあります。掲載写真やパース(絵)、または間取図に描かれている家具や車などは、価格に含まれておりません。予めご了承ください。周辺施設や周辺環境の写真は、過去に撮影したものをそのまま利用している場合があり、名称・外観・背景等、実際のものとは異なる場合がございます。
仲介物件には所定の仲介手数料(消費税等相当額を含みます)が必要です。
西武池袋・豊島線の新築一戸建てを検索する
東京都練馬区新築一戸建て売却・査定
売却もお任せください
ご所有不動産の売却をご検討なら、まずは無料査定から
投資用・事業用不動産サイト ノムコム・プロ

