中古一戸建て
川崎市中原区上丸子天神町 戸建て
-
7,780万円
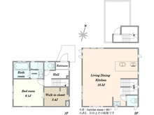
ローンシミュレーション - 間取り 1LDK
- 所在地 神奈川県川崎市中原区 上丸子天神町
- 建物面積 73.12m2
- 土地面積 62.59m2
-
交通
東急東横線「新丸子」駅 徒歩9分
東急東横線「武蔵小杉」駅 徒歩14分 - 築年月 2008年10月
お問合せ
※写真の説明・詳細コメントについては、「物件TOP」タブの写真をご確認ください
お問合せ店舗
同じエリアの中古一戸建て
-
川崎市中原区宮内一丁目 戸建
4,199万円
南武線「武蔵中原」駅 徒歩19分
-
中原区井田中ノ町 中古戸建
5,399万円
東急東横線「元住吉」駅 徒歩14分
-
上丸子八幡町 賃貸併用住宅
1億480万円
東急東横線「新丸子」駅 徒歩5分
-
川崎市中原区新城2丁目戸建
5,480万円
南武線「武蔵新城」駅 徒歩7分
-
川崎市中原区小杉陣屋町一丁目 中古戸建
9,990万円
東急東横線「新丸子」駅 徒歩11分
同じエリアの新築一戸建て
-
井田2丁目新築戸建 2号棟/全3棟
4,880万円
東急東横線「日吉」駅 徒歩18分
3LDK / 土地 50.02m2
-
井田2丁目新築戸建 1号棟/全3棟
4,680万円
東急東横線「日吉」駅 徒歩18分
3LDK / 土地 50.03m2
-
中原区井田杉山町 新築戸建 1号棟/全2棟
6,280万円
南武線「武蔵中原」駅 徒歩17分
4LDK / 土地 55.57m2
-
中原区上平間 新築戸建 B号棟/全2棟
7,090万円
南武線「平間」駅 徒歩8分
3LDK+S / 土地 66.79m2
-
中原区上平間 新築戸建 A号棟/全2棟
6,790万円
南武線「平間」駅 徒歩8分
3LDK+S / 土地 58.26m2
本掲載情報と現況に差異がある場合、現況を優先します。掲載物件は売却済あるいは売出中止となる場合もあります。掲載写真やパース(絵)、または間取図に描かれている家具や車などは、価格に含まれておりません。予めご了承ください。周辺施設や周辺環境の写真は、過去に撮影したものをそのまま利用している場合があり、名称・外観・背景等、実際のものとは異なる場合がございます。
仲介物件には所定の仲介手数料(消費税等相当額を含みます)が必要です。
投資用・事業用不動産サイト ノムコム・プロ
