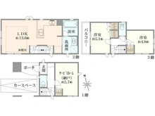
中古一戸建て

川崎市幸区古市場1丁目 中古戸建

お問合せ店舗

0120-041-236

【通話無料・携帯もOK】

物件番号 R9270306

お問い合わせの際に、物件番号をお伝えいただくとスムーズです。

溝ノ口センター

担当: 森 彩乃 (もり あやの)

営業時間: 10:00~18:00

定休日: 火曜日・水曜日
※詳しくは店舗ページの「営業日カレンダー」にてご確認ください。

野村不動産ソリューションズ株式会社 国土交通大臣免許(6)第6101号

同じエリアの中古一戸建て

同じエリアの新築一戸建て

本掲載情報と現況に差異がある場合、現況を優先します。掲載物件は売却済あるいは売出中止となる場合もあります。掲載写真やパース(絵)、または間取図に描かれている家具や車などは、価格に含まれておりません。予めご了承ください。周辺施設や周辺環境の写真は、過去に撮影したものをそのまま利用している場合があり、名称・外観・背景等、実際のものとは異なる場合がございます。
仲介物件には所定の仲介手数料(消費税等相当額を含みます)が必要です。