中古一戸建て
台東区池之端4丁目 中古一戸建て
お問合せ
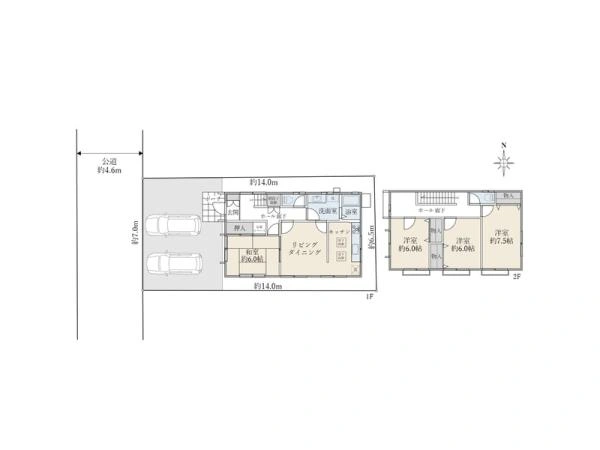
間取り図
0120-689-715
【通話無料・携帯もOK】
物件番号 KD670026
お問い合わせの際に、物件番号をお伝えいただくとスムーズです。
特長・共用施設
物件の特徴の説明ハッシュタグをクリックすることで、同じハッシュタグを含む物件を検索できます。
物件の概要・詳細
物件情報の見方| 価格 | 2億9,000万円 住宅ローンシミュレーション | ||
|---|---|---|---|
| 物件番号 | KD670026 | ||
| 所在地 | 東京都台東区 池之端4丁目 周辺地図を見る | ||
| 交通 |
東京メトロ千代田線「根津」駅 徒歩3分 山手線「上野」駅 徒歩16分 |
||
| 間取り | 4LDK | ||
|
建物面積
|
104.66m2(31.65坪) |
土地面積
| 114.72m2(34.7坪)(公簿) |
|
構造
|
木造2階建て | ||
| 築年月 | 1989年9月 | 駐車場 | ― |
|
土地権利
|
所有権 |
地目
|
宅地 |
|
私道負担
|
― |
セットバック
|
― |
|
都市計画
|
市街化区域 |
用途地域
|
第一種住居地域 |
|
建ぺい率
|
― |
容積率
|
― |
|
接道状況
|
南西4.6m公道 接面7m | ||
| 設備 | ― | ||
| 現況 | 居住中 | 引 渡 | 相談 |
|
取引態様
|
仲介 |
国土法届出
|
― |
| 備 考 | 容積率は前面道路幅員による制限数値です。 | ||
| 更新日 | 2026年5月31日 | 次回更新予定日 | 2026年6月14日 |
お問合せ店舗
同じエリアの中古一戸建て
-
新価格 5/28
東上野4丁目戸建
1億2,800万円
新価格
山手線「上野」駅 徒歩3分
-
新価格 5/24
中古戸建 台東区東上野5丁目
1億7,997万円
新価格
山手線「上野」駅 徒歩5分
-
台東区元浅草3丁目 賃貸併用住宅
1億6,480万円
都営大江戸線「新御徒町」駅 徒歩5分
-
台東区西浅草1丁目 中古戸建
8,798万円
東京メトロ銀座線「田原町」駅 徒歩2分
-
台東区浅草三丁目借地権付建物
4,290万円
つくばエクスプレス「浅草」駅 徒歩9分
同じエリアの新築一戸建て
-
台東区根岸3丁目 新築戸建 3号棟
1億2,380万円
山手線「鶯谷」駅 徒歩4分
2LDK+S / 土地 76.61m2
-
台東区根岸3丁目 新築戸建 2号棟
1億2,480万円
山手線「鶯谷」駅 徒歩4分
2LDK+S / 土地 55.62m2
-
台東区根岸3丁目 新築戸建 1号棟
1億2,180万円
山手線「鶯谷」駅 徒歩4分
2LDK+S / 土地 56.84m2
-
新築分譲住宅 台東区竜泉3丁目
5,980万円
東京メトロ日比谷線「三ノ輪」駅 徒歩6分
1LDK+S / 土地 60.78m2
本掲載情報と現況に差異がある場合、現況を優先します。掲載物件は売却済あるいは売出中止となる場合もあります。掲載写真やパース(絵)、または間取図に描かれている家具や車などは、価格に含まれておりません。予めご了承ください。周辺施設や周辺環境の写真は、過去に撮影したものをそのまま利用している場合があり、名称・外観・背景等、実際のものとは異なる場合がございます。
仲介物件には所定の仲介手数料(消費税等相当額を含みます)が必要です。
売却もお任せください
ご所有不動産の売却をご検討なら、まずは無料査定から
投資用・事業用不動産サイト ノムコム・プロ

