中古一戸建て
杉並区高井戸西二丁目 戸建 NEW 11/7
-
2億2,800万円
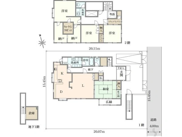
ローンシミュレーション - 間取り 4LDK+2S
- 所在地 東京都杉並区 高井戸西2丁目
- 建物面積 187.67m2
- 土地面積 310.52m2
- 交通 京王井の頭線「高井戸」駅 徒歩5分
- 築年月 1984年3月
お問合せ
間取り図
0120-901-715
(通話無料・携帯もOK)
物件番号 FC8BY003
お問い合わせの際に、物件番号をお伝えいただくとスムーズです。
特長・共用施設
物件の特徴の説明ハッシュタグをクリックすることで、同じハッシュタグを含む物件を検索できます。
物件の概要・詳細
物件情報の見方| 価格 | 2億2,800万円 住宅ローンシミュレーション | ||
|---|---|---|---|
| 物件番号 | FC8BY003 | ||
| 所在地 | 東京都杉並区 高井戸西2丁目 周辺地図を見る | ||
| 交通 | 京王井の頭線「高井戸」駅 徒歩5分 | ||
| 間取り | 4LDK+2S | ||
|
建物面積
|
187.67m2(56.77坪)(公簿) 1階:112.98m2 2階:74.69m2 |
土地面積
| 310.52m2(93.93坪)(公簿) |
|
構造
|
木造2階地下1階建て | ||
| 築年月 | 1984年3月 | 駐車場 | あり |
|
土地権利
|
所有権 |
地目
|
宅地(現況:宅地) |
|
私道負担
|
なし |
セットバック
|
― |
|
都市計画
|
市街化区域 |
用途地域
|
第一種低層住居専用地域 |
|
建ぺい率
|
40% |
容積率
|
80% |
|
接道状況
|
東4m公道 接面15.4m | ||
| 設備 | 公営水道・本下水・都市ガス | ||
| 現況 | 空家 | 引 渡 | 相談 |
|
取引態様
|
仲介 |
国土法届出
|
不要 |
| 備 考 | ●都市計画法他制限 / 準防火地域、第1種高度地区 | ||
| 更新日 | 2025年11月7日 | 次回更新予定日 | 2025年11月21日 |
お問合せ店舗
同じエリアの中古一戸建て
-
新価格 11/1
杉並区久我山3丁目 中古一戸建て
6,780万円
新価格
京王井の頭線「久我山」駅 徒歩7分
-
新価格 10/31
杉並区下井草三丁目中古戸建
5,499万円
新価格
西武新宿線「下井草」駅 徒歩4分
-
NEW 10/31
杉並区高円寺南5丁目 戸建
1億6,800万円
中央線「中野」駅 徒歩11分
-
新価格 10/31
杉並区西荻南4丁目 中古一戸建て
1億1,900万円
新価格
中央線「西荻窪」駅 徒歩7分
-
杉並区桃井2丁目 中古戸建
7,599万円
中央・総武線「荻窪」駅 徒歩21分
同じエリアの新築一戸建て
-
新価格 11/7
杉並区宮前4丁目 新築戸建 B号棟
1億2,600万円
新価格
京王井の頭線「久我山」駅 徒歩8分
3LDK+S / 土地 99.48m2
-
新価格 11/7
杉並区永福1丁目 新築一戸建て
8,680万円
新価格
京王線「下高井戸」駅 徒歩9分
3LDK / 土地 94.29m2
-
新価格 11/6
杉並区南荻窪2丁目 新築戸建 A号棟
1億2,980万円
新価格
中央・総武線「荻窪」駅 徒歩15分
3LDK / 土地 96m2
-
NEW 11/3
グレイスウッドリミテッド 明大前
1億980万円
京王線「代田橋」駅 徒歩10分
2LDK+2S / 土地 80.56m2
-
NEW 11/1
杉並区成田西1丁目 新築一戸建て
9,880万円
京王井の頭線「浜田山」駅 徒歩13分
1LDK+S / 土地 104.75m2
本掲載情報と現況に差異がある場合、現況を優先します。掲載物件は売却済あるいは売出中止となる場合もあります。掲載写真やパース(絵)、または間取図に描かれている家具や車などは、価格に含まれておりません。予めご了承ください。周辺施設や周辺環境の写真は、過去に撮影したものをそのまま利用している場合があり、名称・外観・背景等、実際のものとは異なる場合がございます。
仲介物件には所定の仲介手数料(消費税等相当額を含みます)が必要です。
売却もお任せください
ご所有不動産の売却をご検討なら、まずは無料査定から
投資用・事業用不動産サイト ノムコム・プロ

