中古一戸建て
あんしん建物補修
中原区丸子通1丁目 戸建て
-
9,980万円
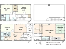
ローンシミュレーション - 間取り 4LDK+LDK+WIC
- 所在地 神奈川県川崎市中原区 丸子通1丁目
- 建物面積 148.54m2
- 土地面積 64.69m2
-
交通
東急東横線「新丸子」駅 徒歩3分
南武線「武蔵小杉」駅 徒歩9分 - 築年月 2005年11月
お問合せ
※写真の説明・詳細コメントについては、「物件TOP」タブの写真をご確認ください
お問合せ店舗
同じエリアの中古一戸建て
-
新価格 5/17
中原区井田3丁目 中古戸建
5,990万円
新価格
東急東横線「日吉」駅 徒歩21分
-
川崎市中原区市ノ坪 戸建
1億1,980万円
東急東横線「武蔵小杉」駅 徒歩4分
-
上丸子八幡町 賃貸併用住宅
9,980万円
東急東横線「新丸子」駅 徒歩5分
-
中原区井田中ノ町 中古戸建
5,299万円
東急東横線「元住吉」駅 徒歩14分
-
中原区井田三舞町 中古戸建
2億5,800万円
東急東横線「元住吉」駅 徒歩14分
同じエリアの新築一戸建て
-
新価格 5/20
川崎市中原区下小田中5丁目 新築一戸建て
6,490万円
新価格
南武線「武蔵中原」駅 徒歩21分
3LDK+S / 土地 74.83m2
-
新価格 5/18
中原区市ノ坪新築戸建
6,990万円
新価格
南武線「平間」駅 徒歩7分
2LDK+S / 土地 59.24m2
-
新価格 5/15
川崎市中原区新城5丁目新築戸建 2号棟
8,980万円
新価格
南武線「武蔵新城」駅 徒歩3分
2LDK+S / 土地 55.69m2
-
中原区上平間 新築戸建 A号棟/全2棟
6,390万円
南武線「平間」駅 徒歩8分
3LDK+S / 土地 58.26m2
-
川崎市中原区新城5丁目 新築戸建B号棟
7,980万円
南武線「武蔵新城」駅 徒歩3分
4LDK / 土地 51.86m2
本掲載情報と現況に差異がある場合、現況を優先します。掲載物件は売却済あるいは売出中止となる場合もあります。掲載写真やパース(絵)、または間取図に描かれている家具や車などは、価格に含まれておりません。予めご了承ください。周辺施設や周辺環境の写真は、過去に撮影したものをそのまま利用している場合があり、名称・外観・背景等、実際のものとは異なる場合がございます。
仲介物件には所定の仲介手数料(消費税等相当額を含みます)が必要です。
投資用・事業用不動産サイト ノムコム・プロ
