ライオンズヒルズ東浦和

埼玉県さいたま市緑区東浦和3丁目

武蔵野線「東浦和」駅 徒歩16分

1991年4月

7階建

68戸

(株)大京

売り出し中の物件:1

選択した物件を資料請求(最大10件)
2,790万円
専有面積
59.95m2
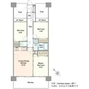
間取り
3LDK
所在階
5階
詳細を見る

ライオンズヒルズ東浦和をご所有ならオーナー登録がオススメです!

  • POINT1

    自分の部屋の
    相場価格がわかる

  • POINT2

    過去の売り出し
    事例がわかる

  • POINT3

    周辺エリアの
    マンション売出相場が
    地図でわかる

オーナー様

すぐに売る気はなかったけれど、資産価値としての相場を知っておきたくて登録。変動する価格をみていると売り時がわかっていいですね。

オーナー様

同じ階の売買情報など、データとして見られるのが心強い。特に電話営業などもなく、知りたい情報だけ知れるのがいいと思います。

※本サービスは、ご所有者様限定のサービスです。本マンションのご所有者様以外のご利用はお控えください。
※参考相場価格は、対象マンションの売り出し事例と新築時価格、及び近隣類似マンションの売り出し事例、相場変動率を基に算出するものです。このため、対象マンションに有効な売出事例がない場合や、新築時価格のない地権者住戸等につきましては、相場価格を自動的に算出することができません。予めご了承ください。

ライオンズヒルズ東浦和の売却・購入に関するお問い合わせ

このマンションを買いたい方

この物件が出たら教えて

新たにこのマンションが売りに出されたら
お知らせします。

このマンションを売りたい方

不動産無料査定

カンタン入力で不動産のプロが査定価格をお知らせします。

野村の仲介 PLUS

浦和営業部

営業時間:
10:00~18:00
定休日 :
火曜日・水曜日

※詳しくは店舗ページの「営業日カレンダー」にてご確認ください。

0120-990-066 【通話無料・携帯もOK】
マンション番号P0042486
店舗ページを見る

ライオンズヒルズ東浦和の相場価格

ライオンズヒルズ東浦和の参考相場価格更新日2025年12月

参考相場価格
1,518万円 ~  4,230万円 
中央値: 2,658万円
参考相場単価
112万円/坪 ~ 165万円/坪(34万円/m250万円/m2
中央値:137万円/坪41万円/m2

売却価格について詳しく知りたい方、不動産売却を検討している方は、「不動産無料査定」フォームまたは担当店舗へお問い合わせください。
豊富な不動産知識と経験を有するスタッフが、最適なご提案をいたします。

・ライオンズヒルズ東浦和の売り出し事例と新築時価格、及び近隣類似マンションの売り出し事例、相場変動率を基に当社が算出した参考相場価格(単価)です。

・参考相場価格(単価)は、「不動産の鑑定評価に関する法律」に基づく不動産鑑定評価に代わるものではなく、また、実際の売却価格や購入価格を保証するものではありません。

・参考相場価格(単価)は、ご利用日現在のもので、その後の法令改正や市場動向等により、変化が生ずる場合があります。

ライオンズヒルズ東浦和周辺の相場価格の推移

2025年11月の売出相場価格

  • 東浦和駅
    m2単価35万円
    坪単価115万円
  • さいたま市
    m2単価55万円
    坪単価181万円
  • 埼玉県
    m2単価44万円
    坪単価145万円

(万円/m2

(年月)

2025年11月の平均売り出し情報

売出価格 売出m2単価(坪単価) 売出専有面積 売出築年数
さいたま市 3,751万円 55万円/m2
(181万円/坪)
66.86m2 28.58
埼玉県 2,944万円 44万円/m2
(145万円/坪)
66.53m2 31.03

「東京カンテイより提供されたデータ」をもとに作成しています。

ライオンズヒルズ東浦和の売却・購入に関するお問い合わせ

このマンションを買いたい方

この物件が出たら教えて

新たにこのマンションが売りに出されたら
お知らせします。

このマンションを売りたい方

不動産無料査定

カンタン入力で不動産のプロが査定価格をお知らせします。

このマンションをご所有ならオーナー登録がオススメです!

オーナー登録をする

野村の仲介 PLUS

浦和営業部

営業時間:
10:00~18:00
定休日 :
火曜日・水曜日

※詳しくは店舗ページの「営業日カレンダー」にてご確認ください。

0120-990-066 【通話無料・携帯もOK】
マンション番号P0042486
店舗ページを見る

ライオンズヒルズ東浦和の物件概要

マンション名 ライオンズヒルズ東浦和
マンション番号 P0042486
所在地 埼玉県さいたま市緑区東浦和3丁目周辺地図を見る
交通 武蔵野線東浦和」 駅 徒歩16分
構造 RC造7階建 敷地面積 2,522.09m2
築年月 1991年4月 総戸数 68戸
専有面積 間取り
分譲時会社 (株)大京
施工会社 斎藤工業(株)
設計会社 (株)アドバイザービルマン一級建築士事務所
備考
ブランド ライオンズ

※上記情報は分譲当時のパンフレット掲載内容などを記載していますので、現況と異なる場合があります。
※分譲時会社は社名変更(合併、分割含む)後の会社名が掲載している場合があります。
※建物竣工時に撮影した竣工写真を掲載している場合があります。その場合、現況と異なる可能性があります。

このマンションを
スマホで見る

ライオンズヒルズ東浦和の売却・購入に関するお問い合わせ

このマンションを買いたい方

この物件が出たら教えて

新たにこのマンションが売りに出されたら
お知らせします。

このマンションを売りたい方

不動産無料査定

カンタン入力で不動産のプロが査定価格をお知らせします。

このマンションをご所有ならオーナー登録がオススメです!

オーナー登録をする

野村の仲介 PLUS

浦和営業部

営業時間:
10:00~18:00
定休日 :
火曜日・水曜日

※詳しくは店舗ページの「営業日カレンダー」にてご確認ください。

0120-990-066 【通話無料・携帯もOK】
マンション番号P0042486
店舗ページを見る

ライオンズヒルズ東浦和 周辺のマンション

 

埼玉県の新築マンション

 

ライオンズヒルズ東浦和(埼玉県さいたま市緑区東浦和3丁目|武蔵野線 東浦和駅)のマンション概要です。ライオンズヒルズ東浦和の物件写真や相場価格、売り出し中のマンション情報、周辺エリアの相場価格の推移などを掲載。新たに売り出された物件をいち早くメールでお届するサービスや、不動産無料査定など売却のご相談も受け付けております。ライオンズヒルズ東浦和の購入、売却をご検討なら、野村不動産ソリューションズが提供する「マンションデータPlus」をご利用ください。
その他の中古マンションをお探しの方は「中古マンション購入」より物件をご検索ください。

よくある質問

  • ライオンズヒルズ東浦和のオーナーです。まだ売却するか決めていませんが自室の相場情報は確認できますか?

    マンションデータPlusでは、オーナ―会員登録いただくことでライオンズヒルズ東浦和のオーナ―様に自室の相場情報をご確認いただけます。
    相場価格の他、過去の売出事例や新築時からの価格騰落率を閲覧できます。ご売却時期の検討にお役立てください。
    オーナ―会員登録はコチラ

  • ライオンズヒルズ東浦和を購入検討しています。新着売出情報はどのように知れますか?

    コチラのフォームに必要事項をご記入いただくことで、ライオンズヒルズ東浦和の新規売出物件が出た際に、お知らせメールをお受け取りいただけます。

  • ライオンズヒルズ東浦和の売却についてさまざまな相談はできますか?

    はい、可能です。ライオンズヒルズ東浦和を担当する野村の仲介+浦和営業部には、エリアに精通した営業担当がおり、お客様に寄り添って、安心安全な売却のサポートをさせていただきます。不動産売却査定をご希望の場合はコチラよりお気軽にご相談ください。もちろん、査定以外のことをご相談いただいてもOKです!お電話でのお問い合わせは(TEL:0120-990-066)で承ります。