タワー

クレヴィアタワー目黒不動前

東京都品川区西五反田3丁目

東急目黒線「不動前」駅 徒歩4分

山手線「目黒」駅 徒歩12分

42.05m2~73.87m2

2015年2月

21階建

138戸

伊藤忠都市開発(株)

全住戸南向きの贅沢。

昔ながらの街並みが残る、不動前エリア。

敷地の南側にゆとりを持たせたランドスケープデザインで住まいに光を導くよう設計されています。エントランスまでのアプローチは様々な木々や草花・ハーブなど緑豊かな風景に彩られており、グランドロビーからも豊かな緑を眺めることができます。また、大きな窓から街の風景を楽しめる「ギャラリーラウンジ」では、多彩なデザインチェアでのんびりとくつろぎながら読書を楽しめ、ゆとりのひと時を過ごすことができます。

売り出し中の物件:3

選択した物件を資料請求(最大10件)
14,980万円
専有面積
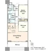
55.62m2
間取り
2LDK
所在階
11階
詳細を見る
15,380万円
専有面積
56.64m2
間取り
2LDK
所在階
11階
詳細を見る
19,800万円
専有面積
68.98m2
間取り
2LDK
所在階
15階
詳細を見る

クレヴィアタワー目黒不動前をご所有ならオーナー登録がオススメです!

  • POINT1

    自分の部屋の
    相場価格がわかる

  • POINT2

    過去の売り出し
    事例がわかる

  • POINT3

    周辺エリアの
    マンション売出相場が
    地図でわかる

オーナー様

すぐに売る気はなかったけれど、資産価値としての相場を知っておきたくて登録。変動する価格をみていると売り時がわかっていいですね。

オーナー様

同じ階の売買情報など、データとして見られるのが心強い。特に電話営業などもなく、知りたい情報だけ知れるのがいいと思います。

※本サービスは、ご所有者様限定のサービスです。本マンションのご所有者様以外のご利用はお控えください。
※参考相場価格は、対象マンションの売り出し事例と新築時価格、及び近隣類似マンションの売り出し事例、相場変動率を基に算出するものです。このため、対象マンションに有効な売出事例がない場合や、新築時価格のない地権者住戸等につきましては、相場価格を自動的に算出することができません。予めご了承ください。

クレヴィアタワー目黒不動前の売却・購入に関するお問い合わせ

このマンションを買いたい方

この物件が出たら教えて

新たにこのマンションが売りに出されたら
お知らせします。

このマンションを売りたい方

不動産無料査定

カンタン入力で不動産のプロが査定価格をお知らせします。

野村の仲介 PLUS

五反田センター

営業時間:
10:00~18:00
定休日 :
火曜日・水曜日

※詳しくは店舗ページの「営業日カレンダー」にてご確認ください。

0120-658-101 【通話無料・携帯もOK】
マンション番号P0026681
店舗ページを見る

クレヴィアタワー目黒不動前の相場価格

クレヴィアタワー目黒不動前の参考相場価格更新日2025年12月

参考相場価格
8,502万円 ~  19,587万円 
中央値: 12,889万円
参考相場単価
621万円/坪 ~ 882万円/坪(188万円/m2267万円/m2
中央値:752万円/坪227万円/m2

売却価格について詳しく知りたい方、不動産売却を検討している方は、「不動産無料査定」フォームまたは担当店舗へお問い合わせください。
豊富な不動産知識と経験を有するスタッフが、最適なご提案をいたします。

・クレヴィアタワー目黒不動前の売り出し事例と新築時価格、及び近隣類似マンションの売り出し事例、相場変動率を基に当社が算出した参考相場価格(単価)です。

・参考相場価格(単価)は、「不動産の鑑定評価に関する法律」に基づく不動産鑑定評価に代わるものではなく、また、実際の売却価格や購入価格を保証するものではありません。

・参考相場価格(単価)は、ご利用日現在のもので、その後の法令改正や市場動向等により、変化が生ずる場合があります。

クレヴィアタワー目黒不動前周辺の相場価格の推移

2025年11月の売出相場価格

  • 不動前駅
    m2単価189万円
    坪単価624万円
  • 城南地区
    m2単価128万円
    坪単価423万円
  • 東京都
    m2単価134万円
    坪単価442万円

(万円/m2

(年月)

2025年11月の平均売り出し情報

売出価格 売出m2単価(坪単価) 売出専有面積 売出築年数
城南地区 7,691万円 128万円/m2
(423万円/坪)
55.56m2 31.86
東京都 8,818万円 134万円/m2
(442万円/坪)
58.77m2 28.76

「東京カンテイより提供されたデータ」をもとに作成しています。

城南地区:品川区、大田区、目黒区、世田谷区

クレヴィアタワー目黒不動前の売却・購入に関するお問い合わせ

このマンションを買いたい方

この物件が出たら教えて

新たにこのマンションが売りに出されたら
お知らせします。

このマンションを売りたい方

不動産無料査定

カンタン入力で不動産のプロが査定価格をお知らせします。

このマンションをご所有ならオーナー登録がオススメです!

オーナー登録をする

野村の仲介 PLUS

五反田センター

営業時間:
10:00~18:00
定休日 :
火曜日・水曜日

※詳しくは店舗ページの「営業日カレンダー」にてご確認ください。

0120-658-101 【通話無料・携帯もOK】
マンション番号P0026681
店舗ページを見る

クレヴィアタワー目黒不動前の物件概要

マンション名 クレヴィアタワー目黒不動前
マンション番号 P0026681
所在地 東京都品川区西五反田3丁目周辺地図を見る
交通 東急目黒線不動前」 駅 徒歩4分
山手線目黒」 駅 徒歩12分
山手線五反田」 駅 徒歩11分
都営浅草線五反田」 駅 徒歩10分
構造 RC造21階建 敷地面積 1,517.51m2
築年月 2015年2月 総戸数 138戸
専有面積 42.05m2~73.87m2 間取り 1LDK~3LDK
分譲時会社 伊藤忠都市開発(株)
施工会社 三井住友建設(株)
設計会社 三井住友建設(株)
備考
ブランド クレヴィア

※上記情報は分譲当時のパンフレット掲載内容などを記載していますので、現況と異なる場合があります。
※分譲時会社は社名変更(合併、分割含む)後の会社名が掲載している場合があります。
※建物竣工時に撮影した竣工写真を掲載している場合があります。その場合、現況と異なる可能性があります。

このマンションを
スマホで見る
駅徒歩5分以内 2沿線以上利用可

周辺環境

最寄駅の東急目黒線「不動前」駅まで徒歩4分。都営浅草線「五反田」駅、東急池上線「大崎広小路」駅へは徒歩10分、JR山手線「五反田」駅も徒歩11分。さらにJR山手線・東急目黒線・東急メトロ南北線・都営三田線「目黒」駅も徒歩12分と、4駅6路線が利用できる立地です。都心部への移動もスムーズにでき、行き先に応じて多彩なアクセスを使いこなせます。物件周辺は落ち着いた住環境が整いながらも、駅前に行けばスーパーマーケットやアトレなどショッピング施設も充実しています。

  • 東急ストア目黒不動前東急ストア目黒不動前(現地より約120m)
  • 品川区役所地域センター大崎第一品川区役所地域センター大崎第一(現地より約160m)
  • アトレ目黒アトレ目黒(現地より約920m)

クレヴィアタワー目黒不動前の売却・購入に関するお問い合わせ

このマンションを買いたい方

この物件が出たら教えて

新たにこのマンションが売りに出されたら
お知らせします。

このマンションを売りたい方

不動産無料査定

カンタン入力で不動産のプロが査定価格をお知らせします。

このマンションをご所有ならオーナー登録がオススメです!

オーナー登録をする

野村の仲介 PLUS

五反田センター

営業時間:
10:00~18:00
定休日 :
火曜日・水曜日

※詳しくは店舗ページの「営業日カレンダー」にてご確認ください。

0120-658-101 【通話無料・携帯もOK】
マンション番号P0026681
店舗ページを見る

クレヴィアタワー目黒不動前 周辺のマンション

 

東京23区南の新築マンション

 

クレヴィアタワー目黒不動前(東京都品川区西五反田3丁目|東急目黒線 不動前駅)のマンション概要です。クレヴィアタワー目黒不動前の物件写真や相場価格、売り出し中のマンション情報、周辺エリアの相場価格の推移などを掲載。新たに売り出された物件をいち早くメールでお届するサービスや、不動産無料査定など売却のご相談も受け付けております。クレヴィアタワー目黒不動前の購入、売却をご検討なら、野村不動産ソリューションズが提供する「マンションデータPlus」をご利用ください。
その他の中古マンションをお探しの方は「中古マンション購入」より物件をご検索ください。

よくある質問

  • クレヴィアタワー目黒不動前のオーナーです。まだ売却するか決めていませんが自室の相場情報は確認できますか?

    マンションデータPlusでは、オーナ―会員登録いただくことでクレヴィアタワー目黒不動前のオーナ―様に自室の相場情報をご確認いただけます。
    相場価格の他、過去の売出事例や新築時からの価格騰落率を閲覧できます。ご売却時期の検討にお役立てください。
    オーナ―会員登録はコチラ

  • クレヴィアタワー目黒不動前を購入検討しています。新着売出情報はどのように知れますか?

    コチラのフォームに必要事項をご記入いただくことで、クレヴィアタワー目黒不動前の新規売出物件が出た際に、お知らせメールをお受け取りいただけます。

  • クレヴィアタワー目黒不動前の売却についてさまざまな相談はできますか?

    はい、可能です。クレヴィアタワー目黒不動前を担当する野村の仲介+五反田センターには、エリアに精通した営業担当がおり、お客様に寄り添って、安心安全な売却のサポートをさせていただきます。不動産売却査定をご希望の場合はコチラよりお気軽にご相談ください。もちろん、査定以外のことをご相談いただいてもOKです!お電話でのお問い合わせは(TEL:0120-658-101)で承ります。