ガーデンヴィラ芦花公園

東京都世田谷区粕谷1丁目

京王線「千歳烏山」駅 徒歩14分

京王線「芦花公園」駅 徒歩15分

62.3m2~106m2

2005年7月

10階建

132戸

トータルハウジング(株)

世田谷の価値を再構築する邸宅「ガーデンヴィラ芦花公園」

現在も将来も快適に暮らし続けるために

緑溢れる暮らしを追求したその先に、快適性・機能性・可塑性を重視し、しっかりとした設計と技術力を背景に、「ガーデンヴィラ芦花公園」は、邸宅と呼ぶにふさわしい基本性能があるマンションです。

売り出し中の物件:1

選択した物件を資料請求(最大10件)
7,980万円
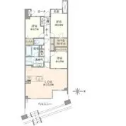
専有面積
72.03m2
間取り
3LDK
所在階
1階
詳細を見る

ガーデンヴィラ芦花公園をご所有ならオーナー登録がオススメです!

  • POINT1

    自分の部屋の
    相場価格がわかる

  • POINT2

    過去の売り出し
    事例がわかる

  • POINT3

    周辺エリアの
    マンション売出相場が
    地図でわかる

オーナー様

すぐに売る気はなかったけれど、資産価値としての相場を知っておきたくて登録。変動する価格をみていると売り時がわかっていいですね。

オーナー様

同じ階の売買情報など、データとして見られるのが心強い。特に電話営業などもなく、知りたい情報だけ知れるのがいいと思います。

※本サービスは、ご所有者様限定のサービスです。本マンションのご所有者様以外のご利用はお控えください。
※参考相場価格は、対象マンションの売り出し事例と新築時価格、及び近隣類似マンションの売り出し事例、相場変動率を基に算出するものです。このため、対象マンションに有効な売出事例がない場合や、新築時価格のない地権者住戸等につきましては、相場価格を自動的に算出することができません。予めご了承ください。

ガーデンヴィラ芦花公園の売却・購入に関するお問い合わせ

このマンションを買いたい方

この物件が出たら教えて

新たにこのマンションが売りに出されたら
お知らせします。

このマンションを売りたい方

不動産無料査定

カンタン入力で不動産のプロが査定価格をお知らせします。

野村の仲介 PLUS

烏山センター

営業時間:
10:00~18:00
定休日 :
火曜日・水曜日

※詳しくは店舗ページの「営業日カレンダー」にてご確認ください。

0120-883-774 【通話無料・携帯もOK】
マンション番号P0000730
店舗ページを見る

ガーデンヴィラ芦花公園の相場価格

ガーデンヴィラ芦花公園の参考相場価格更新日2025年10月

参考相場価格
4,909万円 ~  11,507万円 
中央値: 6,567万円
参考相場単価
241万円/坪 ~ 366万円/坪(73万円/m2111万円/m2
中央値:284万円/坪86万円/m2

売却価格について詳しく知りたい方、不動産売却を検討している方は、「不動産無料査定」フォームまたは担当店舗へお問い合わせください。
豊富な不動産知識と経験を有するスタッフが、最適なご提案をいたします。

・ガーデンヴィラ芦花公園の売り出し事例と新築時価格、及び近隣類似マンションの売り出し事例、相場変動率を基に当社が算出した参考相場価格(単価)です。

・参考相場価格(単価)は、「不動産の鑑定評価に関する法律」に基づく不動産鑑定評価に代わるものではなく、また、実際の売却価格や購入価格を保証するものではありません。

・参考相場価格(単価)は、ご利用日現在のもので、その後の法令改正や市場動向等により、変化が生ずる場合があります。

ガーデンヴィラ芦花公園周辺の相場価格の推移

2025年8月の売出相場価格

  • 千歳烏山
    m2単価85万円
    坪単価280万円
  • 城南地区
    m2単価122万円
    坪単価403万円
  • 東京都
    m2単価125万円
    坪単価413万円

(万円/m2

(年月)

2025年8月の平均売り出し情報

売出価格 売出m2単価(坪単価) 売出専有面積 売出築年数
城南地区 7,298万円 122万円/m2
(403万円/坪)
55.28m2 31.27
東京都 8,081万円 125万円/m2
(413万円/坪)
58.46m2 28.79

「東京カンテイより提供されたデータ」をもとに作成しています。

城南地区:品川区、大田区、目黒区、世田谷区

ガーデンヴィラ芦花公園の売却・購入に関するお問い合わせ

このマンションを買いたい方

この物件が出たら教えて

新たにこのマンションが売りに出されたら
お知らせします。

このマンションを売りたい方

不動産無料査定

カンタン入力で不動産のプロが査定価格をお知らせします。

このマンションをご所有ならオーナー登録がオススメです!

オーナー登録をする

野村の仲介 PLUS

烏山センター

営業時間:
10:00~18:00
定休日 :
火曜日・水曜日

※詳しくは店舗ページの「営業日カレンダー」にてご確認ください。

0120-883-774 【通話無料・携帯もOK】
マンション番号P0000730
店舗ページを見る

ガーデンヴィラ芦花公園の物件概要

マンション名 ガーデンヴィラ芦花公園
マンション番号 P0000730
所在地 東京都世田谷区粕谷1丁目周辺地図を見る
交通 京王線千歳烏山」 駅 徒歩14分
京王線芦花公園」 駅 徒歩15分
構造 RC造10階地下1階建 敷地面積 4,783.69m2
築年月 2005年7月 総戸数 132戸
専有面積 62.3m2~106m2 間取り 2LDK~4LDK
分譲時会社 トータルハウジング(株)
施工会社 清水建設(株)
設計会社 清水建設(株)、 (株)テスタアソシエイツ、 (株)デザインショップアーキテクツ
備考
ブランド

※上記情報は分譲当時のパンフレット掲載内容などを記載していますので、現況と異なる場合があります。
※分譲時会社は社名変更(合併、分割含む)後の会社名が掲載している場合があります。
※建物竣工時に撮影した竣工写真を掲載している場合があります。その場合、現況と異なる可能性があります。

このマンションを
スマホで見る

ガーデンヴィラ芦花公園の売却・購入に関するお問い合わせ

このマンションを買いたい方

この物件が出たら教えて

新たにこのマンションが売りに出されたら
お知らせします。

このマンションを売りたい方

不動産無料査定

カンタン入力で不動産のプロが査定価格をお知らせします。

このマンションをご所有ならオーナー登録がオススメです!

オーナー登録をする

野村の仲介 PLUS

烏山センター

営業時間:
10:00~18:00
定休日 :
火曜日・水曜日

※詳しくは店舗ページの「営業日カレンダー」にてご確認ください。

0120-883-774 【通話無料・携帯もOK】
マンション番号P0000730
店舗ページを見る

ガーデンヴィラ芦花公園 周辺のマンション

 

東京23区南の新築マンション

 

ガーデンヴィラ芦花公園(東京都世田谷区粕谷1丁目|京王線 千歳烏山駅)のマンション概要です。ガーデンヴィラ芦花公園の物件写真や相場価格、売り出し中のマンション情報、周辺エリアの相場価格の推移などを掲載。新たに売り出された物件をいち早くメールでお届するサービスや、不動産無料査定など売却のご相談も受け付けております。ガーデンヴィラ芦花公園の購入、売却をご検討なら、野村不動産ソリューションズが提供する「マンションデータPlus」をご利用ください。
その他の中古マンションをお探しの方は「中古マンション購入」より物件をご検索ください。

よくある質問

  • ガーデンヴィラ芦花公園のオーナーです。まだ売却するか決めていませんが自室の相場情報は確認できますか?

    マンションデータPlusでは、オーナ―会員登録いただくことでガーデンヴィラ芦花公園のオーナ―様に自室の相場情報をご確認いただけます。
    相場価格の他、過去の売出事例や新築時からの価格騰落率を閲覧できます。ご売却時期の検討にお役立てください。
    オーナ―会員登録はコチラ

  • ガーデンヴィラ芦花公園を購入検討しています。新着売出情報はどのように知れますか?

    コチラのフォームに必要事項をご記入いただくことで、ガーデンヴィラ芦花公園の新規売出物件が出た際に、お知らせメールをお受け取りいただけます。

  • ガーデンヴィラ芦花公園の売却についてさまざまな相談はできますか?

    はい、可能です。ガーデンヴィラ芦花公園を担当する野村の仲介+烏山センターには、エリアに精通した営業担当がおり、お客様に寄り添って、安心安全な売却のサポートをさせていただきます。不動産売却査定をご希望の場合はコチラよりお気軽にご相談ください。もちろん、査定以外のことをご相談いただいてもOKです!お電話でのお問い合わせは(TEL:0120-883-774)で承ります。