グランイーグル多摩川スカイビュー NEW 2/2
-
6,390万円
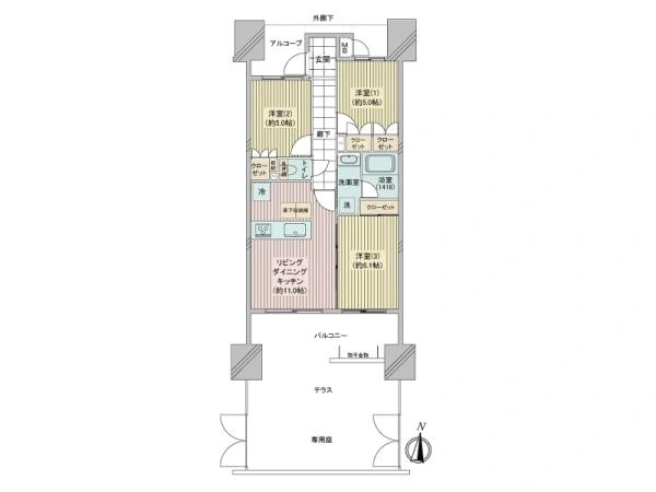
ローンシミュレーション - 間取り 3LDK
- 所在地 東京都大田区 本羽田2丁目
- 専有面積 61.37m2
- 所在階 1階 / 17階建
- 交通 京急空港線「糀谷」駅 徒歩12分
- 築年月 2012年9月
- 向き 南
お問合せ
専用庭・テラス・専用駐車場付き物件
◆◇━…・…━…・…━…・…━◆◇
間取り図
0120-005-521
【通話無料・携帯もOK】
物件番号 V9770057
お問い合わせの際に、物件番号をお伝えいただくとスムーズです。
リフォーム内容
<2026年4月末日完了予定>
◆◇━━━━━━・・・・・………
・ユニットバス新規交換
・トイレ新規交換
・クロス新規貼替
・フローリング新規貼替
・ハウスクリーニング実施 等
この物件のおすすめポイント
◆グランイーグル多摩川スカイビュー◆
◆…・・・…━…・・・…━…・・・…◇
■新規リフォーム
(令和8年4月末完成予定)
■ペット飼育可能(飼育細則あり)
■2012年9月築
交通アクセス
◆◇━━━━━━・・・・・………
京浜急行空港線「糀谷」駅 徒歩12分
設 備・仕 様
◆◇━━━━━━・・・・・………
室内洗濯機置場
給湯
追焚機能
エレベーター
都市ガス
収納スペース
浴室乾燥機
TVモニタ付インターホン
宅配BOX
モニタ付オートロック
温水洗浄便座
クローゼット
床下収納
専用庭
公営水道
下水道
B/T別室
シャワー
ガスコンロ付
コンロ三口
フローリング
洗面所独立
Life Information
◆◇━━━━━━・・・・・………
ファミリーマート大田本羽田二丁目店
:徒歩2分(約110m)
コーナン本羽田萩中店
:徒歩6分(約450m)
大田区立都南小学校
:徒歩7分(約490m)
大田区立出雲中学校
徒歩10分(約800m)
※注意1:
駅からの距離、施設からの距離は
社内システムを参照し、80mにつき1分計算で
入力しております
実際の体感距離は必ずお客様ご自身でも
お確かめ頂きたく存じます
※注意2:
室内使用状況・日照・眺望・通風等は、
担当者の個人的な感想・見解が含まれます
実際の状況は、お客様ご自身でも
お確かめ頂きたく存じます
特長・共用施設
物件の特徴の説明ハッシュタグをクリックすることで、同じハッシュタグを含む物件を検索できます。
物件の概要・詳細
物件情報の見方| 価格 | 6,390万円 住宅ローンシミュレーション | ||
|---|---|---|---|
| 物件番号 | V9770057 | ||
| 所在地 | 東京都大田区 本羽田2丁目 周辺地図を見る | ||
| 交通 | 京急空港線「糀谷」駅 徒歩12分 | ||
| 間取り | 3LDK | ||
|
専有面積
|
61.37m2(18.56坪)(壁芯) | ||
| バルコニー面積 | 12.2m2 | 向き | 南 |
| その他面積 | ― | ||
|
構造
|
RC造17階建て | 所在階 | 1階 |
| 築年月 | 2012年9月 | 総戸数 | ― |
|
土地権利
|
所有権 |
用途地域
|
工業地域 |
| 管理会社 | ― | ||
|
管理形態
|
全部委託 |
管理員
|
日勤 |
|
管理費
|
11,400円 / 月 |
修繕積立金
|
7,430円 / 月 |
| その他使用料 | 専用庭使用料 1,300円 / 月 | ||
| 駐車場 | 空あり | ||
| 現況 | 空家 | 引 渡 | 相談 |
|
取引態様
|
仲介 |
国土法届出
|
― |
| 備 考 | 日勤管理 / その他費用内訳:専用庭 | ||
| 更新日 | 2026年2月7日 | 次回更新予定日 | 2026年2月21日 |
お問合せ店舗
同じエリアの中古マンション
-
新価格 2/7
マイキャッスル大森町エクセレントステージ
7,799万円
新価格
京急本線「大森町」駅 徒歩1分
-
NEW 2/7
三洋キャッスルハイツ
2,680万円
京急空港線「穴守稲荷」駅 徒歩3分
-
NEW 2/7
パークタワー大森
9,380万円
京浜東北・根岸線「大森」駅 徒歩4分
-
新価格 2/7
ミオカステーロ雪ヶ谷アルテパラッツォ
7,180万円
新価格
東急池上線「御嶽山」駅 徒歩13分
-
NEW 2/6
大森ナショナルコート
4,280万円
京浜東北・根岸線「大森」駅 徒歩5分
同じエリアの一戸建て
-
NEW 2/7
新築一戸建て大田区西蒲田1丁目 新築一戸建て 9,990万円 東急池上線「池上」駅 徒歩14分 3LDK+S / 土地 83.27m2 -
新価格 2/7
中古一戸建て大田区田園調布5丁目 中古一戸建て 8,480万円 新価格 東急東横線「田園調布」駅 徒歩15分 1LDK / 土地 74.91m2 -
NEW 2/6
新築一戸建て大田区中央4丁目新築戸建て ステージ大田中央423 6,280万円 京浜東北・根岸線「大森」駅 徒歩19分 2LDK+S / 土地 54.61m2 -
新価格 2/6
中古一戸建て大田区南馬込4丁目 中古戸建 6,780万円 新価格 都営浅草線「西馬込」駅 徒歩15分 2LDK+S / 土地 75.29m2 -
新価格 2/6
中古一戸建て大田区中央6丁目中古戸建 7,680万円 新価格 東急池上線「池上」駅 徒歩17分 2LDK+S / 土地 83.37m2
本掲載情報と現況に差異がある場合、現況を優先します。掲載物件は売却済あるいは売出中止となる場合もあります。掲載写真やパース(絵)、または間取図に描かれている家具や車などは、価格に含まれておりません。予めご了承ください。周辺施設や周辺環境の写真は、過去に撮影したものをそのまま利用している場合があり、名称・外観・背景等、実際のものとは異なる場合がございます。
仲介物件には所定の仲介手数料(消費税等相当額を含みます)が必要です。
売却もお任せください
ご所有不動産の売却をご検討なら、まずは無料査定から
投資用・事業用不動産サイト ノムコム・プロ

