グランドヒルズ岡崎神宮道 NEW 2/14
お問合せ
■平安神宮大鳥居を望む、東・北・西の三方角住戸
■2021年スケルトンリフォーム履歴有り
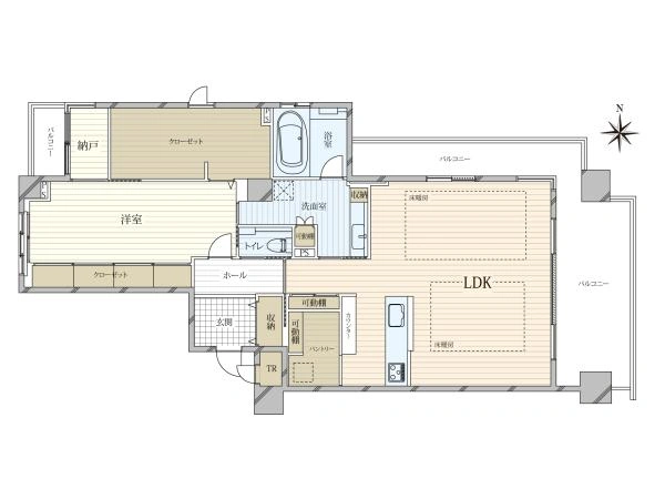
間取り図
0120-948-379
【通話無料・携帯もOK】
物件番号 RE770267
お問い合わせの際に、物件番号をお伝えいただくとスムーズです。
この物件のおすすめポイント
《 グランドヒルズ岡崎神宮道 》
━━━━━━━━━━━━━━━━━━━━━━━━
□■□■□■□■□■□■□■□■□■□■□■□■
┏┓ ルーム
┗□━━━━━━━━━━━━━━━━━━━━━━
■91.37m2 ≪ 1LDK+WIC+納戸+パントリー+トランクルーム ≫
分譲時3LDK住戸を、2021年にスケルトンリフォーム
東向きに緑を望むカウンターキッチンにレイアウト変更、
キッチン背面にはパントリーを設けています。
洗面室は廊下と主寝室からアプローチ可能、
主寝室には大型のウォークインクローゼットを設け、
収納豊富な間取りとなっています。
■4階部分/東・北・西向き3方角住戸
リビングダイニング・浴室の北向きの窓からは平安神宮の大鳥居を、
東向きの窓からは東山の緑を望む、
いずれの開口部からも開放感のある眺望と採光を享受できる住戸位置です。
■LD部分に床暖房有
■約2.3mのハイサッシュを採用
■専有部内フラットフロア(玄関を除く)
■住戸に隣接し専用トランクルーム有(0.77m2)
┏┓ マンション
┗□━━━━━━━━━━━━━━━━━━━━━━
■2002年1月築
■住友不動産(株)旧分譲
■内廊下設計
■ペット飼育可能<規約による制限あり>
■宅配ボックス有り
┏┓ アクセス
┗□━━━━━━━━━━━━━━━━━━━━━━
■市営地下鉄東西線「東山」駅徒歩6分
担当者コメント
京都センター
中山 武 (なかやま たける)
特長・共用施設
物件の特徴の説明ハッシュタグをクリックすることで、同じハッシュタグを含む物件を検索できます。
物件について
| 位置 | #角部屋 |
|---|---|
| 部屋 | #フローリング #全居室フローリング |
| 収納 | #納戸 #ウォークインクローゼット #全居室収納 |
| キッチン | #カウンターキッチン #パントリー(食器・食品の収納庫) |
| 設備 | #床暖房 #都市ガス |
建物について
| 施設・サービス | #宅配ボックス #トランクルーム #ペット可(規約制限あり) #エレベータ |
|---|
立地・周辺環境について
| 立地・環境 | #2沿線以上利用可 |
|---|
物件の概要・詳細
物件情報の見方| 価格 | 1億4,000万円 住宅ローンシミュレーション | ||
|---|---|---|---|
| 物件番号 | RE770267 | ||
| 所在地 | 京都府京都市左京区 岡崎円勝寺町 周辺地図を見る | ||
| 交通 |
京都市東西線「東山」駅 徒歩6分 京阪鴨東線「神宮丸太町」駅 徒歩20分 京阪本線「三条」駅 徒歩15分 |
||
| 間取り | 1LDK+S+WIC | ||
|
専有面積
|
91.37m2(27.63坪)(壁芯) | ||
| バルコニー面積 | 22.48m2 | 向き | 東 |
| その他面積 | トランクルーム 0.77m2 | ||
|
構造
|
RC造5階地下1階建て | 所在階 | 4階 |
| 築年月 | 2002年1月 | 総戸数 | 40戸 |
|
土地権利
|
所有権 |
用途地域
|
第二種住居地域 |
| 管理会社 | 住友不動産建物サービス株式会社 | ||
|
管理形態
|
全部委託 |
管理員
|
日勤 |
|
管理費
|
18,587円 / 月 |
修繕積立金
|
26,310円 / 月 |
| その他使用料 | ゴミ収集費 880円 / 月、町内会費 250円 / 月 | ||
| 駐車場 | ― | ||
| 現況 | 空家 | 引 渡 | 相談 |
|
取引態様
|
仲介 |
国土法届出
|
不要 |
| 備 考 | ●敷地面積 / 1974.4m2●分譲時会社 / 住友不動産株式会社●施工会社 / 清水建設株式会社●設計会社 / 株式会社東洋設計事務所 ●エレベーター / 有 ※総戸数:住宅40戸、店舗4戸 |
||
| 更新日 | 2026年2月14日 | 次回更新予定日 | 2026年2月28日 |
お問合せ店舗
このマンションの他の売り出し中物件を見る
同じエリアの中古マンション
-
NEW 2/7
マンハイム鴨川
3,499万円
京阪鴨東線「出町柳」駅 徒歩7分
-
NEW 2/7
ザ・リソシエ下鴨
8,480万円
京都市烏丸線「松ヶ崎」駅 徒歩13分
-
ライオンズマンション修学院
3,780万円
叡山電鉄「修学院」駅 徒歩6分
-
エル・パークスクエア京都鴨川
1億4,000万円
京阪鴨東線「神宮丸太町」駅 徒歩9分
-
エル・パークスクエア京都鴨川
5,580万円
京阪鴨東線「出町柳」駅 徒歩9分
同じエリアの一戸建て
-
中古一戸建て京都市左京区上高野畑ケ田町 中古戸建 1,280万円 叡山電鉄「三宅八幡」駅 徒歩5分 4DK / 土地 96.33m2 -
中古一戸建て京都市左京区岩倉南池田町 中古一戸建て 1億円 京都市烏丸線「国際会館」駅 徒歩11分 4LDK / 土地 262.54m2 -
中古一戸建て京都市左京区岩倉三宅町 2,999万円 京都市烏丸線「国際会館」駅 徒歩10分 5DK / 土地 141.45m2 -
中古一戸建て京都市左京区浄土寺西田町 中古一戸建て 5,580万円 京阪鴨東線「出町柳」駅 バス6分 (バス停 銀閣寺道) 徒歩3分 5DK / 土地 151.04m2 -
中古一戸建て京都市左京区北白川下池田町 中古一戸建て 1億2,800万円 京阪鴨東線「出町柳」駅 バス9分 (バス停 上池田町) 徒歩3分 7LDK / 土地 417.71m2
本掲載情報と現況に差異がある場合、現況を優先します。掲載物件は売却済あるいは売出中止となる場合もあります。掲載写真やパース(絵)、または間取図に描かれている家具や車などは、価格に含まれておりません。予めご了承ください。周辺施設や周辺環境の写真は、過去に撮影したものをそのまま利用している場合があり、名称・外観・背景等、実際のものとは異なる場合がございます。
仲介物件には所定の仲介手数料(消費税等相当額を含みます)が必要です。
売却もお任せください
ご所有不動産の売却をご検討なら、まずは無料査定から
投資用・事業用不動産サイト ノムコム・プロ

