キャナルワーフタワーズWEST NEW 11/21
-
1億980万円
ローンシミュレーション - 間取り 2LDK+WIC+SIC
- 所在地 東京都江東区 豊洲1丁目
- 専有面積 72.37m2
- 所在階 5階 / 36階建
- 交通 東京メトロ有楽町線「豊洲」駅 徒歩12分
- 築年月 2000年11月
- 向き 南
お問合せ
■有楽町線「豊洲」駅徒歩12分 ■5階×72.37m2×2LDK+WIC+SIC×南向き
■各居室が綺麗な整形の間取り ■新規リノベーション住戸(2025年12月中旬完了予定)
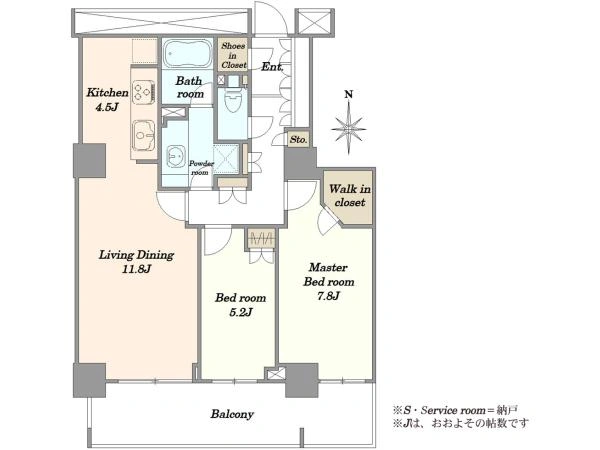
間取り図
0120-974-786
(通話無料・携帯もOK)
物件番号 RC370102
お問い合わせの際に、物件番号をお伝えいただくとスムーズです。
リフォーム内容
- キッチン交換
- バスルーム交換
- 洗面台交換
- トイレ交換
- 床材張替
- クロス張替
キッチン交換(LIXIL) 幅2550mm、食器洗乾燥機能付き
ユニットバス交換(TOTO)1418サイズ
洗面化粧台交換(Panasonic ) 幅1650mm
トイレ交換(TOTO)
クロス貼替 フローリング張替 巾木交換
下駄箱交換 建具交換 洗濯パン・洗濯水栓 交換
分電盤交換 照明器具交換 玄関タイル張替
給水給湯管更新 ハウスクリーニング 等
この物件のおすすめポイント
【豊洲駅徒歩12分/72.37m2/2LDK+WIC+SIC/2000年築】
5階部分/南向き/新規リノベーション住戸
~~~~~~~~~~~~~~~~~~~~~~~~~~~~~~~~~~~~
◆┓ point
┗╋━━━━━━━━━━━━━━━━━━━━━━━━━━━━━━━□
■2000年11月築
■分譲:東急不動産株式会社
■ウエストタワー・イーストタワー 総戸数499戸のビックコミュニティ
■ペット飼育可能(細則有)
-- 多 彩 な 共 用 施 設 ---------------------------------------
◇WEST◇
■2F/ゲストルーム キッズルーム フィットネスルーム AVルーム
◇EAST◇
■2F/和室・集会室
◇WEST・EAST◇
■29F・30F/スカイラウンジ/ビューラウンジ (EAST・WEST)
◇┓
┗╋━━━━━━━━━━━━━━━━━━━━━━━━━━━━━━━■
■各フロアに専用トランクルーム ■2層吹き抜けファーストサロン
■コモンラウンジ ■ホテルライクな内廊下
■24時間ゴミ出し可能 ■宅配ボックス
■24時間有人管理
■ディスポーザー
◆┓ room
┗╋━━━━━━━━━━━━━━━━━━━━━━━━━━━━━━━□
■5階×72.37m2×2LDK+WIC+SIC×南向き
■全室バルコニーに面しています。
■約16.3帖のLDK、約7.8帖の洋室(1)、約5.2帖の洋室(2)
■各居室や廊下に収納あり
■新規リノベーション住戸(2025年12月中旬完了予定)
◆キッチン交換(LIXIL) 幅2550mm、食器洗乾燥機能付き
◆ユニットバス交換(TOTO)1418サイズ
◆洗面化粧台交換(Panasonic ) 幅1650mm
◆トイレ交換(TOTO)
◆クロス貼替 ◆フローリング張替 ◆巾木交換
◆下駄箱交換 ◆建具交換 ◆洗濯パン・洗濯水栓 交換
◆分電盤交換 ◆照明器具交換 ◆玄関タイル張替
◆給水給湯管更新 ◆ハウスクリーニング 等
☆ …━━━━━━━━━━━━━━━━━━━━━━━━━━━━━━━━━━… ☆
注意1.上記記載内容は、新築分譲時のパンフレットやその他関係資料を参考に記載しております。
最大限の注意を払って、現況との差異が無いかの確認をしておりますが、
万が一差異があった場合は【 現況優先 】となりますことを予めご承知置き下さい。
注意2.駅からの距離等は新築分譲時のパンフレットやその他関係資料を参考に記載しております。
実際の体感距離は、お客様ご自身でもお確かめ頂きたく願います。
担当者コメント
豊洲センター
園田 拓己 (そのだ たくみ)
物件を担当している、園田 拓己(そのだ たくみ)と申します。
見学のご希望・ご不明な点はお気軽にお尋ね下さいませ。
複数物件をお問い合わせする場合、担当を統一することで効率的に
資料請求、ご内覧ができます。
< 担当:園田/ 080-8172-7222>
< メール:t-sonoda@nomura-re.co.jp >
特長・共用施設
物件の特徴の説明ハッシュタグをクリックすることで、同じハッシュタグを含む物件を検索できます。
物件について
| 位置 | #南向き(南東・南西含む) #南向き |
|---|---|
| 収納 | #ウォークインクローゼット #シューズインクローゼット #全居室収納 |
| 設備 | #床暖房 #都市ガス |
建物について
| 構造 | #タワー(20階建て以上) |
|---|---|
| 施設・サービス | #キッズルーム #ゲストルーム(宿泊施設)あり #ペット可(規約制限あり) #エレベータ |
| セキュリティ | #オートロック #防犯カメラ #セキュリティ充実 |
| その他 | #リフォーム |
物件の概要・詳細
物件情報の見方| 価格 | 1億980万円 住宅ローンシミュレーション | ||
|---|---|---|---|
| 物件番号 | RC370102 | ||
| 所在地 | 東京都江東区 豊洲1丁目 周辺地図を見る | ||
| 交通 | 東京メトロ有楽町線「豊洲」駅 徒歩12分 | ||
| 間取り | 2LDK+WIC+SIC | ||
|
専有面積
|
72.37m2(21.89坪) | ||
| バルコニー面積 | 14.28m2 | 向き | 南 |
| その他面積 | ― | ||
|
構造
|
RC造36階地下1階建て | 所在階 | 5階 |
| 築年月 | 2000年11月 | 総戸数 | ― |
|
土地権利
|
所有権 |
用途地域
|
― |
| 管理会社 | 株式会社東急コミュニティー | ||
|
管理形態
|
全部委託 |
管理員
|
日勤 |
|
管理費
|
13,000円 / 月 |
修繕積立金
|
16,070円 / 月 |
| その他使用料 | ― | ||
| 駐車場 | ― | ||
| 現況 | 空家 | 引 渡 | 相談 |
|
取引態様
|
仲介 |
国土法届出
|
不要 |
| 備 考 | ●分譲時会社 / 東急不動産株式会社●施工会社 / 戸田建設株式会社●エレベーター / 有 |
||
| 更新日 | 2025年11月21日 | 次回更新予定日 | 2025年12月5日 |
お問合せ店舗
このマンションの他の売り出し中物件を見る
同じエリアの中古マンション
-
新価格 11/21
Wコンフォートタワーズ EAST棟
1億8,700万円
新価格
東京メトロ有楽町線「辰巳」駅 徒歩7分
-
新価格 11/21
サニーハイツ門前仲町
7,480万円
新価格
東京メトロ東西線「門前仲町」駅 徒歩6分
-
NEW 11/21
シティコープ豊洲
9,499万円
東京メトロ有楽町線「豊洲」駅 徒歩11分
-
新価格 11/21
シティタワーズ豊洲ザ・シンボル
1億7,490万円
新価格
東京メトロ有楽町線「豊洲」駅 徒歩7分
-
NEW 11/20
アルカサル亀戸
6,490万円
中央・総武線「亀戸」駅 徒歩6分
同じエリアの一戸建て
-
NEW 11/20
中古一戸建て江東区亀戸3丁目 中古戸建 9,200万円 中央・総武線「亀戸」駅 徒歩15分 4LDK / 土地 73.02m2 -
NEW 11/17
中古一戸建て江東区北砂3丁目 戸建 5,290万円 都営新宿線「西大島」駅 徒歩14分 2LDK+S / 土地 41.52m2 -
中古一戸建て江東区南砂7丁目 戸建 5,280万円 東京メトロ東西線「南砂町」駅 徒歩4分 2LDK+S / 土地 36.83m2 -
新築一戸建て江東区亀戸3丁目 新築戸建 3号棟 9,999万円 中央・総武線「亀戸」駅 徒歩14分 3LDK+S / 土地 78.61m2 -
新築一戸建て江東区亀戸3丁目新築戸建 1号棟 9,999万円 中央・総武線「亀戸」駅 徒歩14分 2LDK+S / 土地 90.42m2
本掲載情報と現況に差異がある場合、現況を優先します。掲載物件は売却済あるいは売出中止となる場合もあります。掲載写真やパース(絵)、または間取図に描かれている家具や車などは、価格に含まれておりません。予めご了承ください。周辺施設や周辺環境の写真は、過去に撮影したものをそのまま利用している場合があり、名称・外観・背景等、実際のものとは異なる場合がございます。
仲介物件には所定の仲介手数料(消費税等相当額を含みます)が必要です。
売却もお任せください
ご所有不動産の売却をご検討なら、まずは無料査定から
投資用・事業用不動産サイト ノムコム・プロ




