コスモ南浦和ステーシア
-
2,590万円
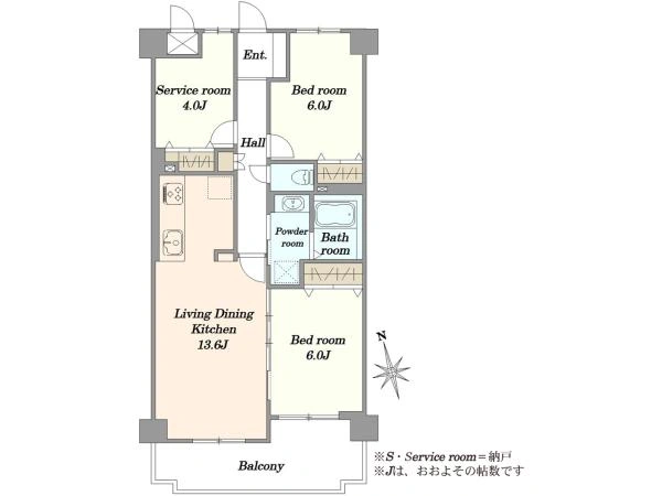
ローンシミュレーション - 間取り 2LDK+S
- 所在地 埼玉県さいたま市南区 文蔵5丁目
- 専有面積 68.26m2
- 所在階 4階 / 7階建
-
交通
埼京線「北戸田」駅 徒歩19分
京浜東北・根岸線「南浦和」駅 バス7分 (バス停 文蔵小学校) 徒歩3分 - 築年月 1989年7月
- 向き 南
お問合せ
■JR埼京線「北戸田」駅 徒歩19分 ■南向き住戸で陽当たり良好♪ ■かたちの良い間取りで家具配置もしやすいと思います!
間取り図
0120-965-548
【通話無料・携帯もOK】
物件番号 RC170169
お問い合わせの際に、物件番号をお伝えいただくとスムーズです。
リフォーム内容
- キッチン交換
- バスルーム交換
- 洗面台交換
- トイレ交換
- 床材張替
- クロス張替
- 扉交換
(新規交換)
・システムキッチン
・ユニットバス
・洗面化粧台
・トイレ
・建具
・配管更新
(新規貼替)
・クロス全室
・床材
(その他)
・ハウスクリーニング
この物件のおすすめポイント
・…◆コスモ南浦和ステーシア◆…・
◆◆◇―――――――――――――――――――◇◆◆
┏┓Point ~お勧めポイント~
┗□━━━━━━━━━━━━━━━━━━━━━━
■専有面積:68.26m2 間取り:2SLDK
■居住用としても使用できる約4帖のサービスルーム
■南向き住戸で陽当たり良好
■長期修繕計画有り
■新規リフォーム物件(リフォーム欄参照)
◇・.。*†*。.・◇・.。*†*。.・◇・.。*†*。.・◇
┏━━━━━━━━━━━━━━━━━━━┓
┃ 弊 社 サ ー ビ ス の ご 案 内 ! ┃
┗━━━━━━━━━━━━━━━━━━━┛
◆◇◆◇◆◇◆◇◆◇◆◇◆◇◆◇◆◇◆◇◆
┏━┓┏━┓
┃田┃┃田┃ ご購入者様限定サービス
┃田┃┃田┃ ≪住宅購入サポート≫
┃田┃┃田┃ ────────────────
┃田┃┃田┃
┗━┻┻━┻━━━━━━━━━━━━━━━
◆◇◆◇◆◇◆◇◆◇◆◇◆◇◆◇◆◇◆◇◆
┏━┓
┃1 ┃住宅購入サポート
┗━┻━━━━━━━━━━━━━━━━━━━
「野村の仲介+」で住まいを買うと・・・
次の5つのサービスから1つをプレセント!
※物件の状況等により適用できない場合もあります。
・・・・・・・・・・・・・・・・・・・・・・
A)10年駆け付け
B)メンテナンスサポート付住宅設備保証
C)三越伊勢丹セレクトホームパーティギフト
D)セコム・ホームセキュリティ
E)選べる住まいクリーニング
F)ポイントリペア
・・・・・・・・・・・・・・・・・・・・・・
詳細はこちら
⇒ http://www.nomu.com/plus/buy_support/
┏┓お買換えの場合もスムーズにご購入頂けます!
┗□━━━━━━━━━━━━━━━━━━━━━
弊社では、買換保証・つなぎ融資制度を
ご用意しております!
お買換えの場合、ほとんどの方がご売却を先に行
い、売却が決まってから、購入場所を見つける流
れになります。
その為、多くの方は新居入居前に一度引越しを行
い、賃料を払う「仮住まい」が必要となります。
弊社の【買換保証】と【つなぎ融資】を
ご利用頂ければ、仮住まいやWローンにならずに
お買い換えをスムーズに進めることが可能です。
(先行購入が可能となります。)
「まだ自宅のローンは残っているけど買換えたい」
という方はお気軽にご相談下さい。
また、「売却額次第では・・・」とお考え中の方も
ご相談頂けますと幸いです。
【買換保証】
一定期間内に売却できなかった場合、あらかじめ
お約束した価格で当社が買い取ります。
「万が一、売れなかったらどうしよう」という
お客様の不安を解消します!
⇒ http://www.nomu.com/seller/assurance.html
【つなぎ融資制度】
ゆとりあるお買換えを実現するため、売却物件の
お引き渡しまでの間をサポートするサービスです。
⇒ http://www.nomu.com/seller/financing.html
┏┓資金計画のご相談受付中!!!
┗□━━━━━━━━━━━━━━━━━━━━━
「ローンはいくら借りれるの?」
「月々の返済額をいくらにしたい!」、
「変動金利か固定金利のどちらが良いのだろう?」
資金計画で疑問や悩み等ございましたら、是非
ご相談下さいませ。
現在の金利情勢やお借入銀行の特徴からお客様に
合ったローンの組み方をご提案いたします。
※本物件以外での資金計画のご相談も承ります。
お気軽にご相談下さいませ。
《弊社ご紹介先銀行一覧》
三菱UFJ銀行・三井住友信託銀行・みずほ銀行
三井住友銀行・各地方銀行・フラット35利用銀行等
┏┓現地のご見学について
┗□━━━━━━━━━━━━━━━━━━━━━
◆ご案内方法
ご自宅へお迎え・最寄駅等でお待ち合わせ、弊社
へのご来社など、何でもご対応致します。
ご希望があれば周辺環境(駅・お買い物施設・教
育施設)などもご案内いたしますので、
お気軽にお申し付けくださいませ。
◆お車でのご来社には、当センター近隣の駐車場
をご利用ください。
料金の清算は当社にて行いますので、ご安心ください。
詳しくは営業スタッフよりご案内致します。
担当:担当:井上 華 (いのうえ はな)まで
<フリーコール:0120-965-548>
どうぞお気軽にご連絡ください。
担当者コメント
武蔵浦和センター
井上 華 (いのうえ はな)
┗□━━━━━━━━━━━━━━━━━━━━━━━━━━━━━━━━━
※本物件の担当者は 井上 華 (いのうえ はな)です。
*お電話でのお問合わせ*
◇会社フリーコール : 0120-965-548
*メールでのお問合わせ*
◇担当者直通メール : h7-inoue@nomura-re.co.jp
「室内状況」「周辺環境」「不動産ご購入の流れ」
「住宅ローン」「購入にかかる諸費用」など
いつでもお気軽にご連絡くださいませ。
お会いさせて頂きました際には、不動産のご購入について
ご一緒に物件探しのお手伝いをさせて頂きたく存じます。
ご連絡を心よりお待ちしております。
特長・共用施設
物件の特徴の説明ハッシュタグをクリックすることで、同じハッシュタグを含む物件を検索できます。
物件について
| 位置 | #南向き(南東・南西含む) #南向き |
|---|---|
| キッチン | #システムキッチン |
| 浴室・トイレ | #追いだき機能 |
立地・周辺環境について
| 立地・環境 | #2沿線以上利用可 |
|---|
物件の概要・詳細
物件情報の見方| 価格 | 2,590万円 住宅ローンシミュレーション | ||
|---|---|---|---|
| 物件番号 | RC170169 | ||
| 所在地 | 埼玉県さいたま市南区 文蔵5丁目 周辺地図を見る | ||
| 交通 |
埼京線「北戸田」駅 徒歩19分 京浜東北・根岸線「南浦和」駅 バス7分 (バス停 文蔵小学校) 徒歩3分 武蔵野線「南浦和」駅 バス7分 (バス停 文蔵小学校) 徒歩3分 |
||
| 間取り | 2LDK+S | ||
|
専有面積
|
68.26m2(20.64坪)(壁芯) | ||
| バルコニー面積 | 8.96m2 | 向き | 南 |
| その他面積 | ― | ||
|
構造
|
RC造7階建て | 所在階 | 4階 |
| 築年月 | 1989年7月 | 総戸数 | 32戸 |
|
土地権利
|
所有権 |
用途地域
|
第一種住居地域 |
| 管理会社 | 大和ライフネクスト株式会社 | ||
|
管理形態
|
全部委託 |
管理員
|
巡回 |
|
管理費
|
15,870円 / 月 |
修繕積立金
|
18,675円 / 月 |
| その他使用料 | ― | ||
| 駐車場 | ― | ||
| 現況 | 空家 | 引 渡 | 相談 |
|
取引態様
|
仲介 |
国土法届出
|
不要 |
| 備 考 | ●分譲時会社 / 株式会社リクルートコスモス●施工会社 / 株式会社辰村組●エレベーター / 有 ペット飼育不可、平面駐車場12,000円/月(空状況要確認) |
||
| 更新日 | 2025年12月11日 | 次回更新予定日 | 2025年12月25日 |
お問合せ店舗
このマンションの他の売り出し中物件を見る
同じエリアの中古マンション
-
NEW 12/15
浦和白幡東高層住宅 1号棟
3,290万円
埼京線「武蔵浦和」駅 徒歩11分
-
新価格 12/15
ミューズシティ ザ ファーストタワー
7,600万円
新価格
埼京線「武蔵浦和」駅 徒歩4分
-
NEW 12/14
武蔵浦和パーク・ホームズ弐番館
4,980万円
埼京線「武蔵浦和」駅 徒歩15分
-
NEW 12/14
グリーンミユキ太田窪
3,398万円
京浜東北・根岸線「南浦和」駅 徒歩20分
-
NEW 12/13
エステート浦和 3号棟
3,590万円
埼京線「武蔵浦和」駅 徒歩14分
同じエリアの一戸建て
-
新価格 12/17
新築一戸建てさいたま市南区四谷1丁目 新築一戸建て 5,999万円 新価格 武蔵野線「西浦和」駅 徒歩12分 3LDK / 土地 106.1m2 -
新価格 12/17
新築一戸建てさいたま市南区大字大谷口 新築一戸建て 4,180万円 新価格 京浜東北・根岸線「浦和」駅 徒歩33分 4LDK / 土地 93.51m2 -
新価格 12/17
新築一戸建てさいたま市南区大字大谷口 新築一戸建て 4,180万円 新価格 京浜東北・根岸線「浦和」駅 徒歩33分 4LDK / 土地 94.09m2 -
新価格 12/16
新築一戸建てさいたま市南区大字大谷口 新築一戸建て 3,399万円 新価格 武蔵野線「東浦和」駅 徒歩24分 3LDK / 土地 79.16m2 -
新価格 12/15
中古テラスハウスさいたま市南区大字太田窪 中古テラスハウス 1,250万円 新価格 京浜東北・根岸線「南浦和」駅 徒歩18分 3DK / 土地 54m2
本掲載情報と現況に差異がある場合、現況を優先します。掲載物件は売却済あるいは売出中止となる場合もあります。掲載写真やパース(絵)、または間取図に描かれている家具や車などは、価格に含まれておりません。予めご了承ください。周辺施設や周辺環境の写真は、過去に撮影したものをそのまま利用している場合があり、名称・外観・背景等、実際のものとは異なる場合がございます。
仲介物件には所定の仲介手数料(消費税等相当額を含みます)が必要です。
埼京線の中古マンションを検索する
埼玉県さいたま市南区中古マンション売却・査定
売却もお任せください
ご所有不動産の売却をご検討なら、まずは無料査定から
投資用・事業用不動産サイト ノムコム・プロ

