シーズガーデングリーンパティオ
-
4,480万円
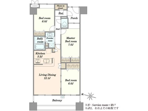
ローンシミュレーション - 間取り 3LDK
- 所在地 埼玉県川口市 大字里
- 専有面積 75m2
- 所在階 3階 / 14階建
- 交通 埼玉高速鉄道「新井宿」駅 徒歩12分
- 築年月 2007年2月
- 向き 南西
お問合せ
新規リフォーム物件!野村の仲介+川口センターのおすすめ物件です♪
間取り図
0120-757-080
【通話無料・携帯もOK】
物件番号 R9170358
お問い合わせの際に、物件番号をお伝えいただくとスムーズです。
リフォーム内容
- キッチン交換
- バスルーム交換
- 洗面台交換
- トイレ交換
- 床材張替
- クロス張替
━━━━━━━━━━━━━━━━━━━━━━━━━━━━━━━━━━━
◆クロス張替え
◆フローリング張替え
◆キッチン交換
◆洗面交換
◆ユニットバス交換
◆トイレ交換
◆クッションフロア張替え(トイレ・洗面)
◆エコキュート交換
◆ハウスクリーニング
◆間取り変更(南西側居室) 和室→洋室
◆洗面水栓・防水パン交換
◆網戸張替え
この物件のおすすめポイント
━━━━━━━━━━━━━━━━━━━━━━━━━━━━━━━━━━
◆◆◆ シーズガーデングリーンパティオ ◆◆◆
担当をしております「田原」と申します。
ご見学のご予約や詳細のお問い合わせがございましたら、
お気軽にお問い合わせ下さいませ。
━━━━━━━━━━━━━━━━━━━━━━━━━━━━━━━━━━
■□■□■□■□■□■□■□■□■□■□■□■□■□■□■□■□■□
┏━━━━━━━━━━━━━━━━━━━━━━━━━━━━━━━━━━☆*:
★ お す す め ポ イ ン ト
…………………………………………………………………………………………
◇埼玉高速鉄道『新井宿』駅 徒歩12分
◇総戸数170世帯の充実した共用施設(シアタールーム・キッズルーム・パーティールーム・洗車コーナー)
◇アウトフレームで家具をすっきりと配置できる間取りのお部屋です
◆・゜ 新規リフォーム 2026年2月下旬完工予定
━━━━━━━━━━━━━━━━━━━━━━━━━━━━━━━━━━━
◆クロス張替え
◆フローリング張替え
◆キッチン交換
◆洗面交換
◆ユニットバス交換
◆トイレ交換
◆クッションフロア張替え(トイレ・洗面)
◆エコキュート交換
◆ハウスクリーニング
◆間取り変更(南西側居室) 和室→洋室
◆洗面水栓・防水パン交換
◆網戸張替え
◆・゜ 交 通 ア ク セ ス
━━━━━━━━━━━━━━━━━━━━━━━━━━━━━━━━━━━
■埼玉高速鉄道『新井宿』駅 徒歩12分
担当者コメント
川口センター
田原 かや子 (たはら かやこ)
弊社ホームページ「ノムコム」をご覧いただき、誠に有難うございます。
【本物件担当者】
店舗名:川口センター
氏 名:田原 かや子(たはら かやこ)
【お電話でのお問合わせ】
会社フリーコール:0120-757-080
※担当:『田原』とお呼び出しください
担当者直通携帯番号:070-4803-7459(田原)
【メールでのお問合わせ】
メール:k-tahara@nomura-re.co.jp(田原)
本物件についてのご質問やご相談がございましたら、お気軽にお問い合わせ下さい。
゜+.――゜+.――゜+.――゜+.――゜+.――゜+.――゜+.――゜+.――゜+
≪担当者からのメッセージ≫
お会いさせていただいた際には、「周辺環境」「類似物件」「不動産ご購入の流れ」
「資金計画」「住宅ローン」「購入にかかる諸費用」等もお気兼ねなくご相談ください。
お客様に合った最適のプランをご提案できるように、一生懸命取り組んでまいります。
「田原に頼んで良かった」と言っていただけるよう、
お客様を第一に考え、何事にも真摯に向き合い、誠心誠意努めさせていただきます。
ご連絡を、心よりお待ちしております。
━━━━━━━━━━━━━━━━━━━━━━━━━━━━━━━━━━━━━┏┓
特長・共用施設
物件の特徴の説明ハッシュタグをクリックすることで、同じハッシュタグを含む物件を検索できます。
物件について
| 位置 | #南向き(南東・南西含む) #南西向き |
|---|---|
| 部屋 | #全居室フローリング |
| 収納 | #シューズインクローゼット #全居室収納 |
| キッチン | #カウンターキッチン |
建物について
| その他 | #リフォーム |
|---|
物件の概要・詳細
物件情報の見方| 価格 | 4,480万円 住宅ローンシミュレーション | ||
|---|---|---|---|
| 物件番号 | R9170358 | ||
| 所在地 | 埼玉県川口市 大字里 周辺地図を見る | ||
| 交通 | 埼玉高速鉄道「新井宿」駅 徒歩12分 | ||
| 間取り | 3LDK | ||
|
専有面積
|
75m2(22.68坪) | ||
| バルコニー面積 | 9.99m2 | 向き | 南西 |
| その他面積 | ポーチ 4.08m2 | ||
|
構造
|
RC造14階建て | 所在階 | 3階 |
| 築年月 | 2007年2月 | 総戸数 | 170戸 |
|
土地権利
|
所有権 |
用途地域
|
― |
| 管理会社 | 株式会社ライフポート西洋 | ||
|
管理形態
|
全部委託 |
管理員
|
日勤 |
|
管理費
|
11,480円 / 月 |
修繕積立金
|
11,630円 / 月 |
| その他使用料 | CATV利用料 110円 / 月、インターネット利用料 880円 / 月 | ||
| 駐車場 | ― | ||
| 現況 | 空家 | 引 渡 | 相談 |
|
取引態様
|
仲介 |
国土法届出
|
不要 |
| 備 考 | ・修繕積立金の改定が理事会にて検討中となっております。 | ||
| 更新日 | 2026年3月6日 | 次回更新予定日 | 2026年3月20日 |
お問合せ店舗
このマンションの他の売り出し中物件を見る
同じエリアの中古マンション
-
新価格 3/16
コスモ川口グランステージ
2,800万円
新価格
京浜東北・根岸線「蕨」駅 バス22分 (バス停 前上町) 徒歩1分
-
NEW 3/15
イニシア川口並木サザンフォート
4,980万円
京浜東北・根岸線「西川口」駅 徒歩6分
-
新価格 3/15
川口パークタワー
6,980万円
新価格
京浜東北・根岸線「川口」駅 徒歩8分
-
NEW 3/15
コスモ川口中青木公園
3,680万円
京浜東北・根岸線「川口」駅 徒歩19分
-
新価格 3/14
プライムコート川口北原台
2,798万円
新価格
武蔵野線「東川口」駅 徒歩14分
同じエリアの一戸建て
-
新価格 3/19
新築一戸建て川口市並木1丁目 新築一戸建て 6,170万円 新価格 京浜東北・根岸線「西川口」駅 徒歩11分 3LDK+S / 土地 60.01m2 -
新価格 3/19
新築一戸建て川口市並木1丁目 新築一戸建て 6,170万円 新価格 京浜東北・根岸線「西川口」駅 徒歩11分 3LDK+S / 土地 60m2 -
新価格 3/19
新築一戸建て川口市原町 新築一戸建て 6,280万円 新価格 京浜東北・根岸線「川口」駅 徒歩18分 2LDK+S / 土地 72.96m2 -
新価格 3/19
新築一戸建て川口市原町 新築一戸建て 5,780万円 新価格 京浜東北・根岸線「川口」駅 徒歩18分 2LDK+S / 土地 87.34m2 -
新価格 3/19
新築一戸建て川口市大字芝 新築一戸建て 4,080万円 新価格 京浜東北・根岸線「南浦和」駅 徒歩25分 2LDK+S / 土地 70.7m2
本掲載情報と現況に差異がある場合、現況を優先します。掲載物件は売却済あるいは売出中止となる場合もあります。掲載写真やパース(絵)、または間取図に描かれている家具や車などは、価格に含まれておりません。予めご了承ください。周辺施設や周辺環境の写真は、過去に撮影したものをそのまま利用している場合があり、名称・外観・背景等、実際のものとは異なる場合がございます。
仲介物件には所定の仲介手数料(消費税等相当額を含みます)が必要です。
売却もお任せください
ご所有不動産の売却をご検討なら、まずは無料査定から
投資用・事業用不動産サイト ノムコム・プロ

