アドリーム梅島
お問合せ
■リフォーム物件(2024年8月完成) ■「梅島」駅徒歩12分 「西新井」駅徒歩14分
■南西向き5階住戸につき日照良好 ■ペット飼育可(規約による制限有) ■宅配ボックス
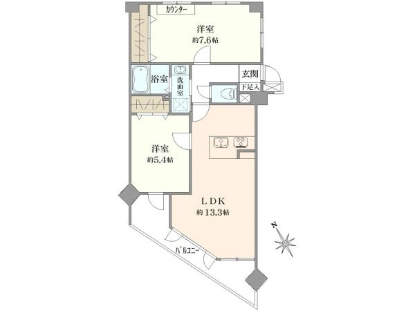
間取り図
0120-331-921
【通話無料・携帯もOK】
物件番号 R5570430
お問い合わせの際に、物件番号をお伝えいただくとスムーズです。
予約制内覧会開催
1月31日(土)、2月1日(日) 10:00~17:00
所在地: 東京都足立区島根1丁目アドリーム梅島
会場案内地図
本物件は、上記日時で《 予約制内覧会 》を開催致します。
ゆっくりと物件をご覧いただけるよう ’各回1組限定’ にてご案内いたします。
写真では伝えきれない、採光・広さ・雰囲気を、ぜひ現地でお確かめください。
内覧希望のお客様は、担当者までご内覧希望時間をご予約下さい。
日時等をご調整させていただきます。
◆ご予約は、≪担当 松本 携帯電話:070-4803-7476≫
または ≪フリーコール:0120-331-921≫までご連絡ください。
※現地に担当者は待機しておりませんので、ご注意くださいませ。
※別日程でのご見学をご希望の際は、別途ご連絡くださいませ。
ご連絡、心よりお待ち申し上げております。
この物件のおすすめポイント
┏┓ アクセス
┗□━━━━━━━━━━━━━━━━━━━━━
■「梅島」駅徒歩12分…東武伊勢崎線
■「西新井」駅徒歩14分…東武伊勢崎線
┏┓アピールポイント
┗□━━━━━━━━━━━━━━━━━━━━━
★60.77m2 2LDK
★南西向き5階住戸につき日照良好
★ペット飼育可能(細則あり)
★宅配ボックス付きで不在時も荷物受け取り可能
■リフォーム内容(2024年8月完成)
---------------------------------------------------
■ キッチン
■洗面化粧台
■ ユニットバス
■ 壁・天井・床
クロス張替
■その他
トイレ、建具、給湯器など
*∴*∴*∴*∴*∴*∴*∴*∴*∴*∴*∴*∴*∴*∴
■まずは相談から■
「最近本格的に物件を探し始めた」
「最近の不動産市場ってどうなんだろう」
「お勧めのエリアについて知りたい」等
今後、具体的に不動産購入・売却を検討されて
いる方は、お気軽にお問い合わせください。
不動産マーケットやエリア特性から
お客様に最適な物件、購入・売却方法を
ご提案いたします。
■現地のご見学について■
<ご案内方法>
物件現地でお待ち合わせさせていただき、
共用部や周辺環境もご案内致します。
資金計画や不動産マーケットについても
ご説明させていただきますので
お気軽にお申し付けくださいませ。
■お買いかえもスムーズにご購入をして頂けます■
弊社では、買換保証制度・つなぎ融資制度を
ご用意しております。ご自宅のローンは残っているけれど
欲しい物件を買い逃したくない、今後お買い替えをしたい
という方は是非ご相談下さい。
【買換保証】
一定期間内に売却できなかった場合、あらかじめ
お約束した価格で当社が買い取ります。
「万が一、売れなかったらどうしよう」という
お客様の不安を解消します!
⇒ http://www.nomu.com/seller/assurance.html
【つなぎ融資制度】
ゆとりあるお買換えを実現するため、売却物件の
お引き渡しまでの間をサポートするサービスです。
⇒ http://www.nomu.com/seller/financing.html
■住宅ローンも様々な商品をご用意しております■
「転職をしたばかり」「他に借入がある」「自己資金が少ない」等の
理由で住宅ローンの借入にご不安がございましたら、どの様な事でも
お気軽にご相談頂ければ幸いです。
現在の金利情勢やお借入銀行の特徴からお客様に
合った住宅ローンの組み方をご提案いたします。
※本物件以外での資金計画のご相談も承ります。
お気軽にご相談下さいませ。
■諸費用の概算について■
「住宅の購入にはどんなお金がかかるんだろう」
そういったお客様の疑問にお答え致します。
諸費用概算算出をご希望でしたら、
お問い合わせの際にお申し付け下さいませ
お問い合わせの際は
お電話やメールでご連絡くださいませ。
TEL:070-4803-7476
mail:r5-matsumoto@nomura-re.co.jp
担当者コメント
池袋営業部
松本 涼佑 (まつもと りょうすけ)
お問い合わせ先
┗□━━━━━━━━━━━━━━━━━━━━━━━━━━━━━━━━
本物件の担当者は 松本(まつもと)でございます。
*お電話でのお問合わせ*
◆会社フリーコール:0120-331-921
◇本物件の担当者直通:070-4803-7476
*メールでのお問合わせ*
◆担当者直通メール:r5-matsumoto@nomura-re.co.jp
特長・共用施設
物件の特徴の説明ハッシュタグをクリックすることで、同じハッシュタグを含む物件を検索できます。
物件について
| 位置 | #南向き(南東・南西含む) #南西向き |
|---|---|
| 部屋 | #フローリング #全居室フローリング |
| キッチン | #カウンターキッチン |
建物について
| 施設・サービス | #宅配ボックス #ペット可(規約制限あり) #エレベータ |
|---|
物件の概要・詳細
物件情報の見方| 価格 | 3,480万円 住宅ローンシミュレーション | ||
|---|---|---|---|
| 物件番号 | R5570430 | ||
| 所在地 | 東京都足立区 島根1丁目 周辺地図を見る | ||
| 交通 |
東武伊勢崎・大師線「梅島」駅 徒歩12分 東武伊勢崎・大師線「西新井」駅 徒歩14分 |
||
| 間取り | 2LDK | ||
|
専有面積
|
60.77m2(18.38坪) | ||
| バルコニー面積 | 9.17m2 | 向き | 南西 |
| その他面積 | ― | ||
|
構造
|
RC造7階建て | 所在階 | 5階 |
| 築年月 | 1995年2月 | 総戸数 | ― |
|
土地権利
|
所有権 |
用途地域
|
― |
| 管理会社 | 株式会社シャトー管理 | ||
|
管理形態
|
全部委託 |
管理員
|
なし |
|
管理費
|
12,600円 / 月 |
修繕積立金
|
17,020円 / 月 |
| その他使用料 | ― | ||
| 駐車場 | ― | ||
| 現況 | 空家 | 引 渡 | 相談 |
|
取引態様
|
仲介 |
国土法届出
|
不要 |
| 備 考 | ●エレベーター / 有 |
||
| 更新日 | 2026年1月26日 | 次回更新予定日 | 2026年2月9日 |
お問合せ店舗
このマンションの他の売り出し中物件を見る
同じエリアの中古マンション
-
NEW 1/29
ライオンズマンション西新井本町
3,980万円
東武伊勢崎・大師線「大師前」駅 徒歩10分
-
新価格 1/29
グリーンコーポ千寿2号棟
4,280万円
新価格
京成本線「京成関屋」駅 徒歩9分
-
新価格 1/27
朝日プラザ梅田
2,580万円
新価格
東武伊勢崎・大師線「梅島」駅 徒歩8分
-
NEW 1/26
ライオンズマンション荒川遊園アクアステージ
4,780万円
都電荒川線「小台」駅 徒歩11分
-
NEW 1/25
グランドステージ王子
5,990万円
東京メトロ南北線「王子神谷」駅 徒歩19分
同じエリアの一戸建て
-
NEW 1/26
中古一戸建て足立区梅田3丁目 戸建 4,380万円 東武伊勢崎・大師線「梅島」駅 徒歩12分 2LDK+S / 土地 41.06m2 -
新価格 1/26
中古一戸建て足立区関原3丁目 中古戸建 5,800万円 新価格 東武伊勢崎・大師線「西新井」駅 徒歩12分 4LDK / 土地 66.31m2 -
新価格 1/26
中古一戸建て足立区大谷田1丁目 中古戸建 4,890万円 新価格 千代田・常磐緩行線「亀有」駅 バス16分 (平常時11分) (バス停 大谷田) 徒歩4分 5DK / 土地 125.74m2 -
新築一戸建て足立区本木南町 新築戸建1号棟 4,850万円 日暮里舎人ライナー「扇大橋」駅 徒歩15分 3LDK / 土地 70m2 -
新築一戸建て足立区六木2丁目新築戸建 E号棟 4,390万円 千代田・常磐緩行線「亀有」駅 バス26分 (バス停 新広橋) 徒歩3分 3LDK+S / 土地 83.19m2
本掲載情報と現況に差異がある場合、現況を優先します。掲載物件は売却済あるいは売出中止となる場合もあります。掲載写真やパース(絵)、または間取図に描かれている家具や車などは、価格に含まれておりません。予めご了承ください。周辺施設や周辺環境の写真は、過去に撮影したものをそのまま利用している場合があり、名称・外観・背景等、実際のものとは異なる場合がございます。
仲介物件には所定の仲介手数料(消費税等相当額を含みます)が必要です。
東武伊勢崎・大師線の中古マンションを検索する
東京都足立区中古マンション売却・査定
売却もお任せください
ご所有不動産の売却をご検討なら、まずは無料査定から
投資用・事業用不動産サイト ノムコム・プロ

