ザ・レジデンス稲毛台ミッドコートウエスト NEW 12/11
-
4,990万円
ローンシミュレーション - 間取り 3LDK
- 所在地 千葉県千葉市稲毛区 稲毛台町
- 専有面積 84.21m2
- 所在階 1階 / 4階建
- 交通 中央・総武線「稲毛」駅 徒歩8分
- 築年月 2008年1月
- 向き 南西
お問合せ
☆専用駐車場ありのリフォーム物件(2025年8月完成)☆
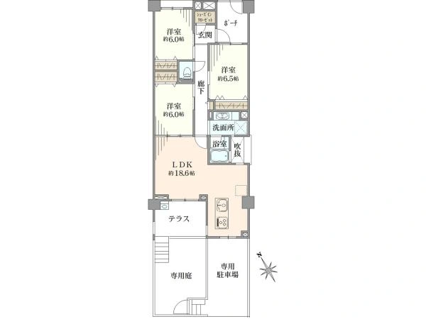
~18.6帖の広々LDK~
間取り図
物件写真
0120-284-286
【通話無料・携帯もOK】
物件番号 R5470654
お問い合わせの際に、物件番号をお伝えいただくとスムーズです。
リフォーム内容
- キッチン交換
- バスルーム交換
- 洗面台交換
- トイレ交換
- 床材張替
- クロス張替
- 扉交換
- 配管交換
~リフォーム内容~
・システムキッチン交換
・ユニットバス交換
・洗面化粧台交換
・トイレ交換
・建具交換
・給湯器交換
・フローリング上張り
・全天壁クロス張替え
・リビング間接照明新設
・ダウンライト交換
・給水、給湯、排水管交換
・コンセント、スイッチプレート交換
・カーテンレール交換
・ハウスクリーニング等
この物件のおすすめポイント
┏┓ おすすめポイント
┗□━━━━━━━━━━━━━━━━━━━━━━━━━━━━━━━━━━━━━━━━━━━
■2008年1月築 総戸数:249戸の大規模低層レジデンス
■旧分譲:伊藤忠都市開発(株)、相鉄不動産(株)
■施工:(株)フジタ、設計:(株)梓設計
■敷地面積:15,291.06m2
■管理は安心の、管理会社に全部委託:伊藤忠アーバンコミュニティ(株)
■週7日の日勤管理 8:30~19:00
■充実したセキュリティシステム
■無料自転車レンタルサービス(7台)有
■宅配ボックス有
■大切なペットと暮らせます(細則有)
┏┓ ルーム
┗□━━━━━━━━━━━━━━━━━━━━━━━━━━━━━━━━━━━━━━━━━━━
■1階部分・南西向きにつき、陽当たり・眺望良好
■専有面積:84.21m2 3LDK+WIC
■専用庭(19.18m2)付きのため広々と遊べます
■専用駐車場確保!※月額12,000円
■収納豊富:ウォークインクローゼット
■新規リフォーム物件(令和7年8月完成)
~リフォーム内容~
・システムキッチン交換
・ユニットバス交換
・洗面化粧台交換
・トイレ交換
・建具交換
・給湯器交換
・フローリング上張り
・全天壁クロス張替え
・リビング間接照明新設
・ダウンライト交換
・給水、給湯、排水管交換
・コンセント、スイッチプレート交換
・カーテンレール交換
・ハウスクリーニング等
┏┓ ライフインフォメーション
┗□━━━━━━━━━━━━━━━━━━━━━━━━━━━━━━━━━━━━━━━━━━━
■稲丘小学校 約 520 m
■ 稲毛中学校 約 1,800 m
■イオン稲毛店 約 540 m
■ 近藤医院 約 640 m
■ペリエ 約 520 m
■ 稲毛駅前郵便局 約 570 m
■稲毛台公園 約 300 m
■コンビニ 約 530 m 約 m
注意1:上記記載文章は環境・施設の変化が生じる
可能性がございます。差異があった場合は
【現況優先】となりますことをご了承下さい。
注意2:駅からの距離、施設からの距離は、
社内システムを参照して入力しております。
駅からの距離、施設からの距離は、
敷地内入口までの距離となります。
実際の体感距離は必ずお客様ご自身でも
お確かめいただくようお願い致します。
80mにつき徒歩1分、400mにつき車1分
計算で机上測定されております。
担当者コメント
東陽町営業部
楠井 寛士 (くすい ひろと)
ご覧いただきまして、誠にありがとうございます。
このお部屋を担当しております、「楠井 寛士(くすい ひろと)」と申します。
お客様に長く喜んでいただけるよう、
心を込めてお住まい探しをお手伝いさせていただきますので
今後ともよろしくお願いいたします。
ご見学のご希望は「楠井」までお気軽にお申し付けください。
お問い合わせ、心よりお待ちしております。
また、こちらのお部屋以外でも
気になるお部屋がございましたら
お気軽にご相談いただければ幸いです。
【お問い合わせ】
フリーコール:0120-284-286
携帯電話 :070-4803-7515
担当者直通メール:h-kusui@nomura-re.co.jp
特長・共用施設
物件の特徴の説明ハッシュタグをクリックすることで、同じハッシュタグを含む物件を検索できます。
物件について
| 位置 | #南向き(南東・南西含む) #南西向き |
|---|---|
| 設備 | #都市ガス |
建物について
| 構造 | #大規模マンション(総戸数200戸以上) |
|---|---|
| 施設・サービス | #エレベータ |
| その他 | #リフォーム |
立地・周辺環境について
| 立地・環境 | #低層住居専用地域 |
|---|
物件の概要・詳細
物件情報の見方| 価格 | 4,990万円 住宅ローンシミュレーション | ||
|---|---|---|---|
| 物件番号 | R5470654 | ||
| 所在地 | 千葉県千葉市稲毛区 稲毛台町 周辺地図を見る | ||
| 交通 | 中央・総武線「稲毛」駅 徒歩8分 | ||
| 間取り | 3LDK | ||
|
専有面積
|
84.21m2(25.47坪)(壁芯) | ||
| バルコニー面積 | なし | 向き | 南西 |
| その他面積 | 専用庭 19.18m2/テラス 12.2m2 | ||
|
構造
|
RC造4階建て | 所在階 | 1階 |
| 築年月 | 2008年1月 | 総戸数 | 249戸 |
|
土地権利
|
所有権 |
用途地域
|
第一種低層住居専用地域 |
| 管理会社 | 伊藤忠アーバンコミュニティ株式会社 | ||
|
管理形態
|
全部委託 |
管理員
|
日勤 |
|
管理費
|
11,800円 / 月 |
修繕積立金
|
35,700円 / 月 |
| その他使用料 | 専用庭使用料 300円 / 月、専用駐車場 12,000円 / 月、TV再送信料 385円 / 月、インターネット使用料 666円 / 月 | ||
| 駐車場 | ― | ||
| 現況 | 空家 | 引 渡 | 相談 |
|
取引態様
|
仲介 |
国土法届出
|
不要 |
| 備 考 | ●エレベーター / 有 |
||
| 更新日 | 2025年12月13日 | 次回更新予定日 | 2025年12月27日 |
お問合せ店舗
このマンションの他の売り出し中物件を見る
同じエリアの中古マンション
-
NEW 12/13
西千葉サンハイツ 3号棟
1,299万円
千葉都市モノレール「天台」駅 徒歩7分
-
新価格 12/13
イトーピア稲毛マンション
2,280万円
新価格
中央・総武線「稲毛」駅 徒歩13分
-
新価格 12/7
パーク・ハイム稲毛
4,498万円
新価格
中央・総武線「稲毛」駅 徒歩8分
-
新価格 12/7
パーク・ホームズ稲毛
4,880万円
新価格
中央・総武線「稲毛」駅 徒歩8分
-
NEW 12/7
ヒルズグランデ稲毛ブライトコート
4,980万円
中央・総武線「稲毛」駅 徒歩12分
同じエリアの一戸建て
-
NEW 12/13
中古一戸建て千葉市稲毛区小仲台9丁目 中古戸建て 3,379万円 総武本線(総武線快速)「稲毛」駅 徒歩15分 3LDK+S / 土地 85.47m2 -
NEW 12/13
新築一戸建て千葉市稲毛区天台四丁目 新築戸建 B棟 3,890万円 千葉都市モノレール「穴川」駅 徒歩4分 4LDK / 土地 112.06m2 -
NEW 12/13
新築一戸建て千葉市稲毛区天台四丁目 新築戸建 A棟 3,690万円 千葉都市モノレール「穴川」駅 徒歩4分 4LDK / 土地 112.38m2 -
新価格 12/7
中古一戸建て千葉市稲毛区園生町中古戸建て 2,699万円 新価格 千葉都市モノレール「スポーツセンター」駅 バス9分 (平常時7分) (バス停 草野小学校) 徒歩4分 4LK+3S / 土地 100m2 -
中古一戸建て千葉市稲毛区小深町 中古戸建 2,800万円 総武本線(総武線快速)「四街道」駅 バス8分 (バス停 小深) 徒歩6分 5LDK+S / 土地 175.84m2
本掲載情報と現況に差異がある場合、現況を優先します。掲載物件は売却済あるいは売出中止となる場合もあります。掲載写真やパース(絵)、または間取図に描かれている家具や車などは、価格に含まれておりません。予めご了承ください。周辺施設や周辺環境の写真は、過去に撮影したものをそのまま利用している場合があり、名称・外観・背景等、実際のものとは異なる場合がございます。
仲介物件には所定の仲介手数料(消費税等相当額を含みます)が必要です。
同じ地域・沿線・駅の中古マンションを検索する
中央・総武線の中古マンションを検索する
千葉県千葉市稲毛区中古マンション売却・査定
売却もお任せください
ご所有不動産の売却をご検討なら、まずは無料査定から
投資用・事業用不動産サイト ノムコム・プロ


