ダイアパレス春日部駅前
-
3,480万円
ローンシミュレーション - 間取り 3LDK
- 所在地 埼玉県春日部市 粕壁東1丁目
- 専有面積 75.1m2
- 所在階 4階 / 14階建
- 交通 東武伊勢崎・大師線「春日部」駅 徒歩3分
- 築年月 2004年4月
- 向き 南
お問合せ
春日部駅徒歩3分!好立地にある新規リノベーション済3LDK
アフターサービス保証付(最長5年)/食洗機/浴室乾燥機など充実の設備
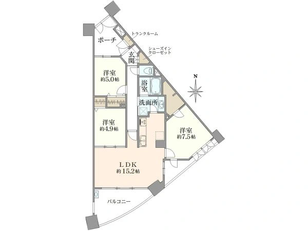
間取り図
0120-990-066
【通話無料・携帯もOK】
物件番号 R5070237
お問い合わせの際に、物件番号をお伝えいただくとスムーズです。
予約制内覧会開催
2月14日(土)、2月15日(日) 10:00~17:00
所在地: 埼玉県春日部市粕壁東1丁目11‐1ダイアパレス春日部駅前
会場案内地図
※予約制のため、現地に係員はおりません。内覧希望の際は、事前にご予約をお願いします。
所在地: 埼玉県さいたま市浦和区仲町1丁目ザ・パークハウス浦和タワー
会場案内地図
◇当日は現地に営業スタッフが常駐しておりませんのでご注意ください◇
ご案内は完全予約制のため、内覧希望の際は、
下記フリーコール(携帯番号)、もしくは
【見学予約】ボタンにて、事前予約をお願い致します。
当日のご予約にはご対応できない場合があります。予めご了承ください。
※なお、本開催日時以外での内覧も可能です。ご都合がつかない場合は、お気軽にご相談ください。
☆ご予約方法☆
・フリーコール: 0120-990-066
・担当岡崎携帯電話:080-9584-4524
・担当メール:a-okazaki@nomura-re.co.jp
・ nomu.com(ノムコム)【見学予約】ボタン
※火・水曜日は店舗定休日になります
ご連絡、お待ち申し上げております。
リフォーム内容
- キッチン交換
- バスルーム交換
- 洗面台交換
- トイレ交換
- 床材張替
- クロス張替
- 扉交換
- 配管交換
システムキッチン(W2400・食洗機付)交換。
ユニットバス(1418サイズ・浴室乾燥機付)交換。
洗面化粧台・防水パン交換。
温水洗浄便座付トイレ交換。
床材:LDK・洋室・廊下はフローリング(遮音等級LL45)、玄関・洗面室・トイレはフロアタイル貼替。
壁天井:クロス貼替。
その他:照明器具、建具交換、LED照明など。
この物件のおすすめポイント
東武伊勢崎線・野田線「春日部」駅まで徒歩3分!
通勤・通学・お買い物に大変便利な立地です。
大規模マンション:総戸数111戸の大規模マンションで、
安心のオートロック付です。
充実の間取り:3LDK+W+SIC+TR(ウォークインクローゼット、
シューズインクローゼット、トランクルーム)で、収納豊富。
LDKは約15.2帖のゆとりの広さ。
洋室1は約7.5帖と主寝室にもぴったりです。
アフターサービス保証付:設備・部位別に最長5年の保証が付いており、
「住んでからの安心」をお約束します。
ペット飼育相談可能(要承認・細則有)。
駐車場に空き有り(月額7,200円~8,200円、2025年10月10日現在)。
住宅ローン減税 申請対象物件です(※要件あり)。
♪主なリノベーション内容(2025年10月24日内装終了)
水回り設備や内装を一新!新生活を気持ちよくスタートできます。
システムキッチン(W2400・食洗機付)交換。
ユニットバス(1418サイズ・浴室乾燥機付)交換。
さらに保温浴槽も採用し、省エネにも配慮。
節湯水栓も設置されています。
洗面化粧台・防水パン交換。
温水洗浄便座付トイレ交換。
床材:LDK・洋室・廊下はフローリング(遮音等級LL45)、玄関・洗面室・トイレはフロアタイル貼替。
壁天井:クロス貼替。
その他:照明器具、建具交換、LED照明など。
♪ 周辺環境
生活に便利な施設が徒歩圏内に充実しています。
コープかすかべテラス:約270m 徒歩4分。
セブンイレブン:約100m 徒歩2分。
粕壁小学校:約340m 徒歩5分。
ララガーデン春日部:約700m 徒歩9分。
空室のため、お客様のご都合に合わせて内見の調整が可能です。 お気軽にお問い合わせください。
担当者コメント
浦和営業部
岡崎 綾乃 (おかざき あやの)
┗□━━━━━━━━━━━━━━━━━━━━
本物件担当者:岡崎 綾乃(おかざき あやの)
*お電話でのお問合わせ*
◆会社フリーコール:0120-990-066(通話料無料)
◆担当者携帯 :080-9584-4524
■担当者メール :a-okazaki@nomura-re.co.jp
「周辺環境」 のご説明や、ご要望に合わせた物件のご提案、
「不動産ご購入の流れ」 「資金計画」「住宅ローン」 「購入にかかる諸費用」 など
わかりやすくご説明をさせて頂きます。いつでもお気軽にご連絡くださいませ。
特長・共用施設
物件の特徴の説明ハッシュタグをクリックすることで、同じハッシュタグを含む物件を検索できます。
物件について
| 位置 | #南向き(南東・南西含む) #南向き |
|---|---|
| 部屋 | #リビング・ダイニング15畳以上 #フローリング #全居室フローリング |
| 収納 | #ウォークインクローゼット #シューズインクローゼット #全居室収納 |
| キッチン | #食器洗浄機 #システムキッチン |
| 浴室・トイレ | #浴室乾燥機 #追いだき機能 #オートバス #温水洗浄便座 #シャワー付洗面化粧台 |
| 設備 | #都市ガス |
建物について
| 施設・サービス | #宅配ボックス #トランクルーム #ペット可(規約制限あり) #エレベータ |
|---|---|
| セキュリティ | #オートロック #TVモニタ付きインターフォン |
| 駐車場 | #駐車場空きあり |
| その他 | #リフォーム |
立地・周辺環境について
| 立地・環境 | #駅徒歩5分以内 #コンビニまで徒歩3分以内 #周辺交通量少なめ #陽当り良好 |
|---|
物件の概要・詳細
物件情報の見方| 価格 | 3,480万円 住宅ローンシミュレーション | ||
|---|---|---|---|
| 物件番号 | R5070237 | ||
| 所在地 | 埼玉県春日部市 粕壁東1丁目 周辺地図を見る | ||
| 交通 | 東武伊勢崎・大師線「春日部」駅 徒歩3分 | ||
| 間取り | 3LDK | ||
|
専有面積
|
75.1m2(22.71坪) | ||
| バルコニー面積 | 10.14m2 | 向き | 南 |
| その他面積 | ポーチ 6.65m2 | ||
|
構造
|
SRC造14階建て | 所在階 | 4階 |
| 築年月 | 2004年4月 | 総戸数 | 111戸 |
|
土地権利
|
所有権 |
用途地域
|
― |
| 管理会社 | 株式会社東急コミュニティー | ||
|
管理形態
|
全部委託 |
管理員
|
日勤 |
|
管理費
|
12,360円 / 月 |
修繕積立金
|
13,060円 / 月 |
| その他使用料 | 管理組合運営協力金 500円 / 月 | ||
| 駐車場 | 空あり (空き確認日:2025年10月) | ||
| 現況 | 空家 | 引 渡 | 相談 |
|
取引態様
|
仲介 |
国土法届出
|
不要 |
| 備 考 | ●エレベーター / 有 専有面積にトランクルーム(0.50m2)を含む。 |
||
| 更新日 | 2026年2月8日 | 次回更新予定日 | 2026年2月22日 |
お問合せ店舗
同じエリアの中古マンション
-
NEW 2/8
クラーク春日部弐番館
2,690万円
東武伊勢崎・大師線「春日部」駅 徒歩9分
-
NEW 2/8
クラーク春日部壱番館
2,499万円
東武伊勢崎・大師線「春日部」駅 徒歩11分
-
新価格 2/8
ピアコート春日部弐番館
1,780万円
新価格
東武伊勢崎・大師線「武里」駅 徒歩13分
-
新価格 2/8
サーパス春日部中央レジデンス
3,980万円
新価格
東武野田線「春日部」駅 徒歩8分
-
新価格 2/7
クラーク春日部壱番館
2,190万円
新価格
東武伊勢崎・大師線「春日部」駅 徒歩10分
本掲載情報と現況に差異がある場合、現況を優先します。掲載物件は売却済あるいは売出中止となる場合もあります。掲載写真やパース(絵)、または間取図に描かれている家具や車などは、価格に含まれておりません。予めご了承ください。周辺施設や周辺環境の写真は、過去に撮影したものをそのまま利用している場合があり、名称・外観・背景等、実際のものとは異なる場合がございます。
仲介物件には所定の仲介手数料(消費税等相当額を含みます)が必要です。
東武伊勢崎・大師線の中古マンションを検索する
埼玉県春日部市中古マンション売却・査定
売却もお任せください
ご所有不動産の売却をご検討なら、まずは無料査定から
投資用・事業用不動産サイト ノムコム・プロ

