ロータリーパレス千葉パークサイドヒルズ NEW 10/11
-
2,690万円
ローンシミュレーション - 間取り 3LDK
- 所在地 千葉県千葉市若葉区 東寺山町
- 専有面積 75.29m2
- 所在階 5階 / 9階建
- 交通 総武本線(総武線快速)「東千葉」駅 徒歩20分
- 築年月 2001年5月
- 向き 南
お問合せ
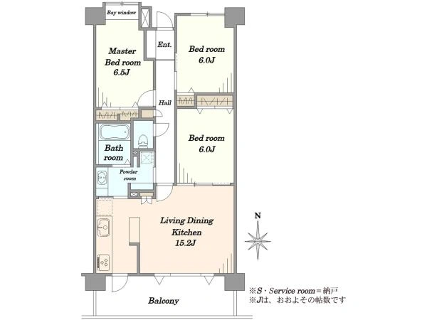
◇南向き・5階部分・3LDKタイプ ◇LDK約15.2帖
◇2025年10月新規内装リフォーム完了済
間取り図
0120-952-884
(通話無料・携帯もOK)
物件番号 FG1BX013
お問い合わせの際に、物件番号をお伝えいただくとスムーズです。
予約制内覧会開催
10月11日(土)、10月12日(日)、10月18日(土)、10月19日(日) 10:00~17:00
所在地: 千葉県千葉市若葉区東寺山町ロータリーパレス千葉パークサイドヒルズ
会場案内地図
予約制内覧会のお知らせ
予約制につき事前にページ右上の【見学予約】もしくは
下記までご連絡をお願い致します。
【現地に係員は待機しておりません】のでご注意下さい。
別日で内見ご希望の際は、お気軽にご相談下さいませ。
▼ご予約方法▼
●お電話で
0120-952-884(通話料無料)
●ホームページから
ページ右上の【見学予約】ボタンからご希望日時等
入力ください。
お気軽にお問合せください!
リフォーム内容
- キッチン交換
- バスルーム交換
- 洗面台交換
- トイレ交換
- 床材張替
- クロス張替
- 扉交換
┗□━━━━━━━━━━━━━━━━━
・システムキッチン新規交換
・ユニットバス新規交換
・洗面化粧台新規交換
・トイレ新規交換
・建具新規交換
・床材張替
・クロス全室張替
この物件のおすすめポイント
ロータリーパレス千葉パークサイドヒルズ
━━━━━━━━━━★:*:。★.:*:・’★*
■3LDK(75.29m2)
~新規内装リフォーム済み!
広々生活が可能です!~
┏┓本物件のおすすめポイント
┗□━━━━━━━━━━━━━━━━━━━━
■専有面積 75.29m2・3LDK
■5階に位置・南向き・陽当たり良好
■約15.2帖のLDK
開放感あふれる寛ぎスペースです
■豊富な収納スペース 全居室に収納あり
■大切なペットと暮らせるお部屋です(細則あり)
■内装新規リフォーム済(2025年10月完成済)
┏┓リフォーム内容【2025年10月完了済】
┗□━━━━━━━━━━━━━━━━━
・システムキッチン新規交換
・ユニットバス新規交換
・洗面化粧台新規交換
・トイレ新規交換
・建具新規交換
・床材張替
・クロス全室張替
:*★:*:。★.:*:・’★━━━━━━━━━
ご購入者様特典
≪野村の仲介+の住宅購入サポート≫
『お客様の新生活を応援したい。』
そんな気持ちを形にしました
★5つのサービスから1つをお選びいただけます★
A)安心と快適をサポート★10年駆けつけ
B)住んだ後も安心を★住宅設備チェック
C)新居を美しく★選べる住まいクリーニング
D)毎日の生活の安心を★セコム・ホームセキュリティ
E)新居でお祝いを★三越伊勢丹ホームパーティーギフト
詳細は担当営業までお気軽にお問い合せください。
各種サービスには別途適用条件がございます。
━━━━━━━━━━★:*:。★.:*:・’★*
注意1: 駅からの距離、施設からの距離は、
社内システムを参照して入力しております。
実際の体感距離は必ずお客様ご自身でも
お確かめ頂きたく願います。
80mにつき1分計算で机上測定されております。
注意2: 日照・通風・眺望・室内利用状況等は、
担当者の個人的な感想が含まれます。
実際の状況はお客様ご自身でもお確かめ頂きたく願います。
担当者コメント


津田沼センター
板取 麗愛 (いたとり れいあ)
【板取 麗愛(いたとり れいあ)】
(1)お電話で・・・
●会社フリーコール:0120-952-884
●本物件の担当者直通:080-9975-8541
(2)メールで・・・
●担当者直通メール:r-itatori@nomura-re.co.jp
本物件についてのご質問や
ご購入のご相談等ございましたら、
お気軽にお問い合わせ下さい。
ご連絡を心よりお待ちしております。
⊂⊃ ☆ ☆
⊂⊃
☆
┏━┓ ┏━┓
┃田┃ ┃田┃
┃田┃ ┃田┃☆
┃田┃ ┃田┃ ☆
┃田┃ ┃田┃
┗━━━━━━━━━━━━━━━━━━━━━━★
特長・共用施設
物件の特徴の説明ハッシュタグをクリックすることで、同じハッシュタグを含む物件を検索できます。
物件について
位置 | #南向き(南東・南西含む) #南向き |
---|---|
部屋 | #フローリング |
収納 | #全居室収納 |
キッチン | #システムキッチン |
建物について
施設・サービス | #ペット可(規約制限あり) #エレベータ |
---|---|
その他 | #リフォーム |
物件の概要・詳細
物件情報の見方価格 | 2,690万円 住宅ローンシミュレーション | ||
---|---|---|---|
物件番号 | FG1BX013 | ||
所在地 | 千葉県千葉市若葉区 東寺山町 周辺地図を見る | ||
交通 | 総武本線(総武線快速)「東千葉」駅 徒歩20分 | ||
間取り | 3LDK | ||
専有面積
![]() |
75.29m2(22.77坪)(壁芯) | ||
バルコニー面積 | 12.16m2 | 向き | 南 |
その他面積 | ― | ||
構造
![]() |
RC造9階建て | 所在階 | 5階 |
築年月 | 2001年5月 | 総戸数 | ― |
土地権利
![]() |
所有権 |
用途地域
![]() |
第二種住居地域・第一種中高層住居専用地域 |
管理会社 | 株式会社東京建物アメニティサポート | ||
管理形態
![]() |
全部委託 |
管理員
![]() |
日勤 |
管理費
![]() |
11,450円 / 月 |
修繕積立金
![]() |
13,440円 / 月 |
その他使用料 | ― | ||
駐車場 | ― | ||
現況 | 空家 | 引 渡 | 相談 |
取引態様
![]() |
仲介 |
国土法届出
![]() |
不要 |
備 考 | ●エレベーター / 有 |
||
更新日 | 2025年10月11日 | 次回更新予定日 | 2025年10月25日 |
お問合せ店舗
同じエリアの中古マンション
-
シーズガーデン千城台 2,980万円 千葉都市モノレール「千城台」駅 徒歩8分
-
みつわ台団地 790万円 千葉都市モノレール「みつわ台」駅 徒歩4分
-
インプレスト高品 2,480万円 総武本線(総武線快速)「東千葉」駅 徒歩15分
-
リリファ小倉台3 1,990万円 千葉都市モノレール「小倉台」駅 徒歩9分
同じエリアの一戸建て
-
中古一戸建て千葉市若葉区西都賀5丁目 中古戸建 3,780万円 総武本線(総武線快速)「都賀」駅 徒歩11分 4LDK+S / 土地 178.89m2
-
中古一戸建て千葉市若葉区桜木2丁目中古戸建て 2,340万円 千葉都市モノレール「桜木」駅 徒歩20分 3LDK / 土地 130.09m2
-
新築一戸建て千葉市若葉区千城台東三丁目 1号棟 3,280万円 千葉都市モノレール「千城台」駅 徒歩15分 3LDK+S / 土地 107.32m2
-
中古一戸建て千葉市若葉区加曽利町 中古戸建 4,290万円 中央・総武線「千葉」駅 バス13分 (バス停 天神橋坂上) 徒歩6分 3LDK / 土地 190.01m2
-
中古一戸建て千葉市若葉区御成台 中古戸建 2,080万円 千葉都市モノレール「千城台」駅 バス7分 (バス停 御成台公園) 徒歩6分 5LDK / 土地 169.9m2
本掲載情報と現況に差異がある場合、現況を優先します。掲載物件は売却済あるいは売出中止となる場合もあります。掲載写真やパース(絵)、または間取図に描かれている家具や車などは、価格に含まれておりません。予めご了承ください。周辺施設や周辺環境の写真は、過去に撮影したものをそのまま利用している場合があり、名称・外観・背景等、実際のものとは異なる場合がございます。
仲介物件には所定の仲介手数料(消費税等相当額を含みます)が必要です。
同じ地域・沿線・駅の中古マンションを検索する
総武本線(総武線快速)の中古マンションを検索する
千葉県千葉市若葉区中古マンション売却・査定
売却もお任せください
ご所有不動産の売却をご検討なら、まずは無料査定から