アーバンエクセル白井C棟 新価格 10/03
-
2,788万円
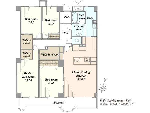
新価格 ローンシミュレーション - 間取り 4LDK+3WIC
- 所在地 千葉県白井市 南山1丁目
- 専有面積 139.1m2
- 所在階 8階 / 9階建
- 交通 北総鉄道「白井」駅 徒歩8分
- 築年月 1996年2月
- 向き 南東
お問合せ
◇南東向きにつき、陽当たり良好です!
◇便利とおしゃれが両立のシステムキッチン搭載!
間取り図

- 360°パノラマ動画
0120-952-884
(通話無料・携帯もOK)
物件番号 FG1B8039
お問い合わせの際に、物件番号をお伝えいただくとスムーズです。
リフォーム内容
- キッチン交換
- バスルーム交換
- 洗面台交換
- トイレ交換
- 床材張替
- クロス張替
- 扉交換
┗□━━━━━━━━━━━━━━━━━
■システムキッチン新規交換
(食洗機・ガラストップガスコンロ)
■ユニットバス新規交換
(浴室乾燥機・追焚き)
■洗面化粧台新規交換
■一体型トイレ新規交換
■建具交換
■下駄箱
■クロス全室張替
■フローリング
■フロアタイル
■ハウスクリーニング
この物件のおすすめポイント
アーバンエクセル白井C棟
━━━━━━━━━━★:*:。★.:*:・’★*
┏┓本物件のおすすめポイント
┗□━━━━━━━━━━━━━━━━━━━━
■専有面積 139.10m2・4LDK+3WIC
■南東向きにつき、陽当たり良好
■使い勝手の良いシステムキッチン
対面キッチンはお料理しながら会話も楽しめます♪
■各居室に収納があり、豊富な収納スペース
■食器洗浄乾燥機
■浴室換気乾燥機
■追焚き機能付バス
┏┓リフォーム内容【2025年8月完了予定】
┗□━━━━━━━━━━━━━━━━━
■システムキッチン新規交換
(食洗機・ガラストップガスコンロ)
■ユニットバス新規交換
(浴室乾燥機・追焚き)
■洗面化粧台新規交換
■一体型トイレ新規交換
■建具交換
■下駄箱
■クロス全室張替
■フローリング
■フロアタイル
■ハウスクリーニング
:*★:*:。★.:*:・’★━━━━━━━━━
担当者コメント


津田沼センター
寺脇 洋樹 (てらわき ひろき)
店舗名:津田沼センター
氏 名:寺脇 洋樹
【お電話でのお問合わせ】
会社フリーコール :0120-952-884
【メールでのお問合わせ】
メール:h-terawaki@nomura-re.co.jp
本物件に関するご質問・ご要望等ございましたら、お気軽にお問い合わせください。
ご連絡を心よりお待ちしております。
特長・共用施設
物件の特徴の説明ハッシュタグをクリックすることで、同じハッシュタグを含む物件を検索できます。
物件について
位置 | #南向き(南東・南西含む) #南東向き |
---|---|
部屋 | #フローリング #全居室フローリング |
収納 | #ウォークインクローゼット |
キッチン | #カウンターキッチン #食器洗浄機 #システムキッチン |
浴室・トイレ | #浴室乾燥機 #追いだき機能 |
建物について
その他 | #リフォーム |
---|
物件の概要・詳細
物件情報の見方価格 | 2,788万円 新価格 住宅ローンシミュレーション | ||
---|---|---|---|
物件番号 | FG1B8039 | ||
所在地 | 千葉県白井市 南山1丁目 周辺地図を見る | ||
交通 | 北総鉄道「白井」駅 徒歩8分 | ||
間取り | 4LDK+3WIC | ||
専有面積
![]() |
139.1m2(42.07坪)(壁芯) | ||
バルコニー面積 | 16.88m2 | 向き | 南東 |
その他面積 | ― | ||
構造
![]() |
SRC造9階建て | 所在階 | 8階 |
築年月 | 1996年2月 | 総戸数 | 36戸 / 106戸 |
土地権利
![]() |
所有権 |
用途地域
![]() |
第一種中高層住居専用地域 |
管理会社 | 東急コミュニティー(株) | ||
管理形態
![]() |
全部委託 |
管理員
![]() |
日勤 |
管理費
![]() |
18,600円 / 月 |
修繕積立金
![]() |
21,625円 / 月 |
その他使用料 | 給湯・暖房設備積立金 700円 / 月 | ||
駐車場 | ― | ||
現況 | 空家 | 引 渡 | 相談 |
取引態様
![]() |
仲介 |
国土法届出
![]() |
不要 |
備 考 | ― | ||
更新日 | 2025年10月4日 | 次回更新予定日 | 2025年10月18日 |
お問合せ店舗
同じエリアの中古マンション
-
NEW 10/03 パークハウス南山第1号棟 2,590万円 北総鉄道「白井」駅 徒歩10分
-
プロムナード桜台4番街 8号棟 2,790万円 北総鉄道「千葉ニュータウン中央」駅 徒歩13分
-
グリーン南山 1,820万円 北総鉄道「白井」駅 徒歩8分
-
グリーン南山 1-3-10号棟 1,890万円 北総鉄道「白井」駅 徒歩8分
-
清水口第四住宅 第2-1-5号棟 2,090万円 北総鉄道「西白井」駅 徒歩5分
本掲載情報と現況に差異がある場合、現況を優先します。掲載物件は売却済あるいは売出中止となる場合もあります。掲載写真やパース(絵)、または間取図に描かれている家具や車などは、価格に含まれておりません。予めご了承ください。周辺施設や周辺環境の写真は、過去に撮影したものをそのまま利用している場合があり、名称・外観・背景等、実際のものとは異なる場合がございます。
仲介物件には所定の仲介手数料(消費税等相当額を含みます)が必要です。
売却もお任せください
ご所有不動産の売却をご検討なら、まずは無料査定から