東大島ファミールハイツ 1号棟
-
5,280万円
ローンシミュレーション - 間取り 2LDK+S
- 所在地 東京都江東区 大島9丁目
- 専有面積 59.33m2
- 所在階 15階 / 15階建
- 交通 都営新宿線「東大島」駅 徒歩3分
- 築年月 1986年11月
- 向き 東
お問合せ
■最寄り「東大島」駅から徒歩3分の好立地!
■最上階東向きのため、日当たり・眺望が良好です!
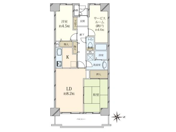
間取り図
0120-957-115
【通話無料・携帯もOK】
物件番号 FF7C2018
お問い合わせの際に、物件番号をお伝えいただくとスムーズです。
この物件のおすすめポイント
□■【都心へ便利な交通アクセス】□■
都営新宿線「東大島」駅 徒歩3分
ー・ー・ー・ー・ー・ー・ー・ー・ー・ー・ー・
┏┓ 物件概要
┗□━━━━━━━━━━━━━━━━━━━━━
■築年月:1986年11月
■構造:鉄骨鉄筋コンクリート造15階建て
■間取り:2SLDK+WIC
■専有面積:59.33m2
■バルコニー面積:7.52m2
■施工会社:飛鳥建設株式会社
管理会社:三菱地所コミュニティ株式会社
┏┓ おすすめポイント
┗□━━━━━━━━━━━━━━━━━━━━━
■最寄りの都営新宿線「東大島」駅まで徒歩3分
1号棟の1階部分にはスーパー・ドラッグストア等があり
生活環境が大変充実しております。
■15階部分の東向き住戸
日当たり・眺望が良好です!
各お部屋に開口部分があるため
明るく通風の良いお部屋でお過ごしいただけます。
■全居室収納スペースあり
豊富な収納スペースが確保されております。
■モニター付きインターホン
セキュリティ安心の防犯カメラあり
■2号棟も合わせて546戸の大規模コミュニティ
■ペット飼育可能(飼育細則あり)
┏┓周辺環境
┗□━━━━━━━━━━━━━━━━━━━━━
〇ショッピング施設・スーパー等
■ローソン東大島駅前店 徒歩3分 約170m
■セブンイレブン江東大島8丁目店 徒歩3分 約170m
■まいばすけっと東大島駅前店 徒歩1分 約80m
■くすりの福太郎東大島2号店 徒歩3分 約170m
■ダイソーダイエー東大島店 徒歩4分 約300m
■ダイエー東大島店 徒歩4分 約300m
〇教育施設・公共施設等
■東大島駅前郵便局 徒歩3分 約180m
■第三大島幼稚園 徒歩3分 約230m
■小松川めぐみ幼稚園 徒歩10分 約760m
■かがやき保育園 徒歩7分 約490m
■第三大島小学校 徒歩5分 約330m
■大島中学校 徒歩14分 約1.1km
■わんさか広場 徒歩4分 約310m
■大島・小松川公園スポーツ広場 徒歩5分 約390m
☆.。.:*・ ☆.。.:*・ ☆.。.:*・ ☆.。.:*・ ☆.。.:*・ ☆
※注意1.
上記記載内容は、
新築分譲時のパンフレットやその他関係資料を参考に記載しております。
最大限の注意を払って、現況との差異が無いかの確認をしておりますが
万が一差異があった場合は【 現況優先 】となりますことを予めご承知置き下さい。
※注意2.
駅からの距離等は新築分譲時のパンフレットや
その他関係資料を参考に記載しております。
実際の体感距離は、お客様ご自身でもお確かめ頂きたく願います。
※注意3.
室内使用状況・日照・眺望・通風等は、
担当者の個人的な感想・見解が含まれます。
実際の状況は、お客様ご自身でもお確かめ頂きたく願います。
担当者コメント
亀戸センター
中澤 喜幸 (なかざわ よしゆき)
┏┓お問い合わせ先
┗□━━━━━━━━━━━━━━━━━━━━━━━
『東大島ファミールハイツ1号棟』を
ご覧いただき、誠にありがとうございます。
本物件を担当しております、中澤 喜幸
(なかざわ よしゆき)と申します。
皆様からのお問い合わせ、
ご見学希望心よりお待ちしております。
(1) お電話で…
● 会社 :0120-957-115
● 担当者直通:080-9975-8502
(2)メールで…
● 担当者直通メール:
y2-nakazawa@nomura-re.co.jp
現地ご見学をご希望の際には、
お気軽にご希望日時をお知らせ下さい。
また、本物件についてのご質問や
ご相談がございましたら、
お気軽にお問い合わせ下さい。
ご連絡を心よりお待ちしております。
特長・共用施設
物件の特徴の説明ハッシュタグをクリックすることで、同じハッシュタグを含む物件を検索できます。
建物について
| 構造 | #大規模マンション(総戸数200戸以上) |
|---|---|
| 施設・サービス | #敷地内に公園がある #ペット可(規約制限あり) #エレベータ |
立地・周辺環境について
| 立地・環境 | #駅徒歩5分以内 #小学校まで徒歩5分以内 #スーパーまで徒歩5分以内 #コンビニまで徒歩3分以内 #公園まで徒歩3分以内 #緑が見える #公園が見える #眺望良好 #整備された歩道 #陽当り良好 |
|---|
物件の概要・詳細
物件情報の見方| 価格 | 5,280万円 住宅ローンシミュレーション | ||
|---|---|---|---|
| 物件番号 | FF7C2018 | ||
| 所在地 | 東京都江東区 大島9丁目 周辺地図を見る | ||
| 交通 | 都営新宿線「東大島」駅 徒歩3分 | ||
| 間取り | 2LDK+S | ||
|
専有面積
|
59.33m2(17.94坪)(壁芯) | ||
| バルコニー面積 | 7.52m2 | 向き | 東 |
| その他面積 | ポーチ 1.17m2 | ||
|
構造
|
SRC造15階建て | 所在階 | 15階 |
| 築年月 | 1986年11月 | 総戸数 | 341戸 / 546戸 |
|
土地権利
|
所有権 |
用途地域
|
第一種住居地域 |
| 管理会社 | 三菱地所コミュニティ(株) | ||
|
管理形態
|
全部委託 |
管理員
|
日勤 |
|
管理費
|
5,880円 / 月 |
修繕積立金
|
8,520円 / 月 |
| その他使用料 | ― | ||
| 駐車場 | 空なし | ||
| 現況 | 居住中 | 引 渡 | 相談 |
|
取引態様
|
仲介 |
国土法届出
|
不要 |
| 備 考 | ●敷地面積 / 1164609m2●分譲時会社 / 丸紅不動産(株)●施工会社 / 飛鳥建設(株)●設計会社 / 久垣設計(株)、飛鳥建設(株) ●エレベーター / 有 |
||
| 更新日 | 2026年4月13日 | 次回更新予定日 | 2026年4月27日 |
お問合せ店舗
このマンションの他の売り出し中物件を見る
同じエリアの中古マンション
-
新価格 4/13
クレストフォルム清澄庭園
1億3,280万円
新価格
東京メトロ半蔵門線「清澄白河」駅 徒歩10分
-
NEW 4/13
クレスト木場公園
6,280万円
東京メトロ半蔵門線「清澄白河」駅 徒歩10分
-
NEW 4/13
牡丹町住宅
5,599万円
東京メトロ東西線「門前仲町」駅 徒歩5分
-
NEW 4/13
猿江恩賜公園レジデンス
1億4,100万円
都営新宿線「西大島」駅 徒歩7分
-
NEW 4/13
亀戸リリエンハイム
3,980万円
中央・総武線「亀戸」駅 徒歩8分
同じエリアの一戸建て
-
NEW 4/11
新築一戸建て江東区大島八丁目 戸建てB号棟 7,780万円 都営新宿線「東大島」駅 徒歩5分 2LDK+S / 土地 46.42m2 -
NEW 4/11
新築一戸建て江東区大島八丁目 戸建てA号棟 7,780万円 都営新宿線「東大島」駅 徒歩5分 2LDK+S / 土地 46.3m2 -
中古一戸建て扇橋一丁目戸建 5,980万円 東京メトロ半蔵門線「清澄白河」駅 徒歩11分 2LDK+S / 土地 63.33m2 -
中古一戸建て亀戸7丁目一戸建 8,380万円 中央・総武線「亀戸」駅 徒歩12分 4LDK / 土地 65.24m2 -
中古一戸建て江東区南砂3丁目 店舗付住宅 2億2,000万円 東京メトロ東西線「南砂町」駅 徒歩8分 4LDK / 土地 158.67m2
本掲載情報と現況に差異がある場合、現況を優先します。掲載物件は売却済あるいは売出中止となる場合もあります。掲載写真やパース(絵)、または間取図に描かれている家具や車などは、価格に含まれておりません。予めご了承ください。周辺施設や周辺環境の写真は、過去に撮影したものをそのまま利用している場合があり、名称・外観・背景等、実際のものとは異なる場合がございます。
仲介物件には所定の仲介手数料(消費税等相当額を含みます)が必要です。
売却もお任せください
ご所有不動産の売却をご検討なら、まずは無料査定から
投資用・事業用不動産サイト ノムコム・プロ




