中古マンション
グランドシティ白山 NEW 12/11
お問合せ
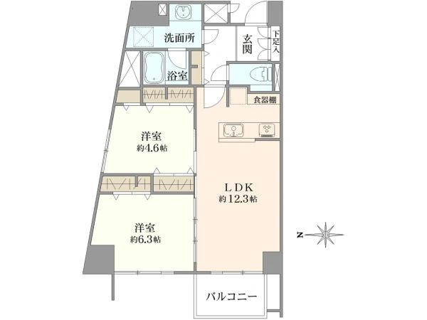
間取り図
- 360°パノラマ動画
0120-956-551
【通話無料・携帯もOK】
物件番号 FA8BZ007
お問い合わせの際に、物件番号をお伝えいただくとスムーズです。
特長・共用施設
物件の特徴の説明ハッシュタグをクリックすることで、同じハッシュタグを含む物件を検索できます。
物件の概要・詳細
物件情報の見方| 価格 | 9,499万円 住宅ローンシミュレーション | ||
|---|---|---|---|
| 物件番号 | FA8BZ007 | ||
| 所在地 | 東京都文京区 白山1丁目 周辺地図を見る | ||
| 交通 |
都営三田線「白山」駅 徒歩1分 東京メトロ南北線「本駒込」駅 徒歩7分 都営大江戸線「春日」駅 徒歩13分 都営三田線「春日」駅 徒歩13分 |
||
| 間取り | 2LDK | ||
|
専有面積
|
57.81m2(17.48坪)(壁芯) | ||
| バルコニー面積 | 4.85m2 | 向き | 西 |
| その他面積 | ― | ||
|
構造
|
SRC造13階建て | 所在階 | 5階 |
| 築年月 | 1992年1月 | 総戸数 | 48戸 |
|
土地権利
|
所有権 |
用途地域
|
― |
| 管理会社 | 伊藤忠アーバンコミュニティ株式会社 | ||
|
管理形態
|
全部委託 |
管理員
|
日勤 |
|
管理費
|
18,700円 / 月 |
修繕積立金
|
21,300円 / 月 |
| その他使用料 | ― | ||
| 駐車場 | 駐車場なし | ||
| 現況 | 空家 | 引 渡 | 相談 |
|
取引態様
|
仲介 |
国土法届出
|
不要 |
| 備 考 | ●施工会社 / 東海興業株式会社●エレベーター / 有 |
||
| 更新日 | 2025年12月12日 | 次回更新予定日 | 2025年12月26日 |
お問合せ店舗
同じエリアの中古マンション
-
NEW 12/12
湯島武蔵野マンション
5,498万円
都営大江戸線「本郷三丁目」駅 徒歩4分
-
NEW 12/12
パークホームズ小石川
1億6,980万円
東京メトロ南北線「後楽園」駅 徒歩5分
-
NEW 12/12
ロータリーパレス春日安藤坂
9,990万円
東京メトロ丸ノ内線「後楽園」駅 徒歩9分
-
新価格 12/12
THE TOWER KOISHIKAWA
2億9,980万円
新価格
都営三田線「春日」駅 徒歩3分
-
新価格 12/11
グランスイート文京本駒込
1億980万円
新価格
山手線「駒込」駅 徒歩11分
同じエリアの一戸建て
-
新価格 12/11
中古一戸建て文京区本駒込5丁目 中古建て 9,380万円 新価格 山手線「駒込」駅 徒歩10分 3LDK / 土地 45.8m2 -
新価格 12/8
中古一戸建て文京区白山4丁目 中古戸建 2億6,600万円 新価格 都営三田線「千石」駅 徒歩8分 3LDK / 土地 125.49m2 -
中古一戸建て文京区小日向一丁目 戸建 3億4,800万円 東京メトロ有楽町線「江戸川橋」駅 徒歩9分 3LDK+S / 土地 147.05m2 -
中古一戸建て文京区根津2丁目借地権付き戸建 2,500万円 東京メトロ千代田線「根津」駅 徒歩5分 2K / 土地 62.01m2 -
中古一戸建て文京区本郷5丁目 賃貸併用住宅 2億2,980万円 東京メトロ丸ノ内線「本郷三丁目」駅 徒歩6分 3LDK / 土地 78.06m2
本掲載情報と現況に差異がある場合、現況を優先します。掲載物件は売却済あるいは売出中止となる場合もあります。掲載写真やパース(絵)、または間取図に描かれている家具や車などは、価格に含まれておりません。予めご了承ください。周辺施設や周辺環境の写真は、過去に撮影したものをそのまま利用している場合があり、名称・外観・背景等、実際のものとは異なる場合がございます。
仲介物件には所定の仲介手数料(消費税等相当額を含みます)が必要です。
売却もお任せください
ご所有不動産の売却をご検討なら、まずは無料査定から
投資用・事業用不動産サイト ノムコム・プロ

