フジタ早稲田マンション NEW 2/9
お問合せ
庭園と桜並木によりそう南向き住戸♪
2025年12月室内リフォーム完了!
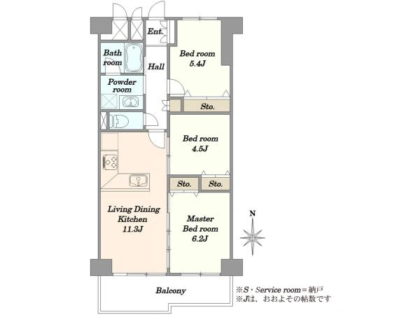
間取り図
0120-009-971
【通話無料・携帯もOK】
物件番号 F93C2004
お問い合わせの際に、物件番号をお伝えいただくとスムーズです。
リフォーム内容
- キッチン交換
- バスルーム交換
- 洗面台交換
- トイレ交換
- 床材張替
- クロス張替
- 扉交換
- 配管交換
・クロス張替え
・システムキッチン交換(食器洗い洗浄機、タッチレス水栓金具)
・フローリング張替
・ユニットバス交換(浴室乾燥機付き)
・洗面化粧台交換
・トイレ交換(シャワー便座付き)
・建具交換
・給湯器交換
・給排水管交換
この物件のおすすめポイント
☆ 肥後細川庭園がすぐそばに、自然を感じる住環境
☆ 神田川沿いの桜並木が春の彩りを添えます
☆ 南向きにつき日当たり通風良好
☆ L字型のオープンカウンターキッチン
(食器洗い洗浄機、タッチレス水栓付き)
☆ 浴室乾燥機付きユニットバス
☆ 専有部給排水管新規交換済み
┏┓ 周辺環境
┗□━━━━━━━━━━━━━━━━━━━
■ダイエー高田店 約350m 徒歩5分
■まいばすけっと西早稲田1丁目店 約350m 徒歩5分
■セブンイレブン文京関口1丁目店 約350m 徒歩5分
■スーパーマーケットリコス関口1丁目店 約350m 徒歩5分
※上記徒歩分数は、1分=80mで換算しております。現状と記載が異なる場合は、
現状を優先致します。あらかじめご了承ください。
┏━━━━━━━━━━━━━━━━━━━┓
┃ 弊 社 サ ー ビ ス の ご 案 内
┗━━━━━━━━━━━━━━━━━━━┛
┏━┓
┃1┃住宅購入サポート
┗━┻━━━━━━━━━━━━━━━━━━━
◆◇◆◇◆◇◆◇◆◇◆◇◆◇◆◇◆◇◆◇◆
┏━┓┏━┓
┃田┃┃田┃ ご購入者様限定サービス
┃田┃┃田┃ ≪住宅購入サポート≫
┃田┃┃田┃
┗━┻┻━┻━━━━━━━━━━━━━━━
「野村の仲介+」で住まいをご購入いただくと
次の6つのサービスから1つをプレゼント!
・・・・・・・・・・・・・・・・・・・・・・
A)10年駆けつけサービス
B)住宅設備チェック
C)選べる住まいクリーニング
D)セコム・ホームセキュリティ
E)三越伊勢丹 ホームパーティギフト
F)ポイントリペア
・・・・・・・・・・・・・・・・・・・・・・
詳細はこちら
⇒ http://www.nomu.com/plus/buy_support/
┏━┓
┃2┃現地のご見学について
┗━┻━━━━━━━━━━━━━━━━━━━
◆ご案内方法
ご自宅へお迎え・最寄駅等でお待ち合わせ、
弊社へのご来社など、お客様に合わせてご対応いたします。
ご希望がございましたら
周辺環境(駅・お買い物施設・教育施設)なども
ご案内いたしますのでお申し付けくださいませ。
┏━┓
┃3┃資料のご請求について
┗━┻━━━━━━━━━━━━━━━━━━━
詳細資料の請求は、お手数おかけしますが、
下記、『お問い合わせ先』まで、ご連絡下さいませ。
資料をご希望の方法にてお送りいたします。
☆ お問い合わせはこちらまで ☆
↓↓↓
【Mobile】070-4803-7392
担当者コメント
高田馬場センター
中西 駿統 (なかにし はやと)
本物件についてのご質問やご相談がございましたら、お気軽にお問い合わせ下さい。
◇ フリーコール : 0120-009-971
◇ 携帯電話番号 : 070-4803-7392
◇ mail : h2-nakanishi@nomura-re.co.jp
特長・共用施設
物件の特徴の説明ハッシュタグをクリックすることで、同じハッシュタグを含む物件を検索できます。
物件について
| 位置 | #南向き(南東・南西含む) #南向き |
|---|---|
| 部屋 | #フローリング |
| 収納 | #全居室収納 |
| キッチン | #カウンターキッチン #食器洗浄機 #浄水器 #システムキッチン |
| 浴室・トイレ | #浴室乾燥機 #温水洗浄便座 |
| 設備 | #都市ガス |
建物について
| 施設・サービス | #エレベータ |
|---|---|
| セキュリティ | #TVモニタ付きインターフォン |
| その他 | #リフォーム |
立地・周辺環境について
| 立地・環境 | #駅徒歩5分以内 #2沿線以上利用可 #スーパーまで徒歩5分以内 #陽当り良好 |
|---|
物件の概要・詳細
物件情報の見方| 価格 | 6,980万円 住宅ローンシミュレーション | ||
|---|---|---|---|
| 物件番号 | F93C2004 | ||
| 所在地 | 東京都新宿区 西早稲田1丁目 周辺地図を見る | ||
| 交通 |
東京メトロ東西線「早稲田」駅 徒歩4分 都電荒川線「早稲田」駅 徒歩10分 |
||
| 間取り | 3LDK | ||
|
専有面積
|
60.47m2(18.29坪)(壁芯) | ||
| バルコニー面積 | 7.62m2 | 向き | 南 |
| その他面積 | ― | ||
|
構造
|
SRC造8階建て | 所在階 | 3階 |
| 築年月 | 1979年3月 | 総戸数 | 60戸 |
|
土地権利
|
所有権 |
用途地域
|
準工業地域 |
| 管理会社 | (株)合人社計画研究所 | ||
|
管理形態
|
全部委託 |
管理員
|
日勤 |
|
管理費
|
12,090円 / 月 |
修繕積立金
|
9,430円 / 月 |
| その他使用料 | ― | ||
| 駐車場 | ― | ||
| 現況 | 空家 | 引 渡 | 相談 |
|
取引態様
|
仲介 |
国土法届出
|
不要 |
| 備 考 | ●敷地面積 / 1450.9m2●分譲時会社 / 藤田観光株式会社●施工会社 / フジタ工業株式会社●エレベーター / 有 ※別途、地番237番21(174.96m2)の持分6047/377835も売買対象となります。 ※購入時の登記手続きは売主指定の司法書士が執り行います。 |
||
| 更新日 | 2026年2月9日 | 次回更新予定日 | 2026年2月23日 |
お問合せ店舗
同じエリアの中古マンション
-
NEW 2/9
アクシア新宿御苑
9,299万円
東京メトロ丸ノ内線「新宿御苑前」駅 徒歩3分
-
新価格 2/9
ニューライフ西早稲田
7,280万円
新価格
山手線「高田馬場」駅 徒歩10分
-
NEW 2/9
クレアトール神楽坂
9,350万円
東京メトロ東西線「神楽坂」駅 徒歩7分
-
NEW 2/9
プレミスト新宿山吹
1億3,780万円
東京メトロ有楽町線「江戸川橋」駅 徒歩2分
-
新価格 2/9
パークシティ高田馬場
8,100万円
新価格
山手線「高田馬場」駅 徒歩7分
同じエリアの一戸建て
-
新価格 2/9
中古一戸建て新宿区四谷4丁目 中古戸建 7,900万円 新価格 東京メトロ丸ノ内線「四谷三丁目」駅 徒歩7分 2LDK / 土地 52.38m2 -
NEW 2/8
新築一戸建て北新宿三丁目新築戸建 7,980万円 東京メトロ丸ノ内線「中野坂上」駅 徒歩13分 3LDK / 土地 44.47m2 -
NEW 2/6
新築一戸建て新宿区市谷加賀町2丁目 新築戸建A棟 1億2,980万円 都営大江戸線「牛込柳町」駅 徒歩7分 3LDK / 土地 63.71m2 -
中古一戸建て新宿区若松町 中古戸建 3,850万円 都営大江戸線「若松河田」駅 徒歩4分 5DK / 土地 60.73m2 -
中古一戸建て中落合4丁目 中古戸建 3億1,000万円 都営大江戸線「落合南長崎」駅 徒歩6分 6LDK / 土地 197.36m2
本掲載情報と現況に差異がある場合、現況を優先します。掲載物件は売却済あるいは売出中止となる場合もあります。掲載写真やパース(絵)、または間取図に描かれている家具や車などは、価格に含まれておりません。予めご了承ください。周辺施設や周辺環境の写真は、過去に撮影したものをそのまま利用している場合があり、名称・外観・背景等、実際のものとは異なる場合がございます。
仲介物件には所定の仲介手数料(消費税等相当額を含みます)が必要です。
売却もお任せください
ご所有不動産の売却をご検討なら、まずは無料査定から
投資用・事業用不動産サイト ノムコム・プロ

