中古マンション
リノベーション
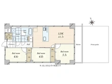
目白ガーデニア NEW 11/29
お問合せ
※写真の説明・詳細コメントについては、「物件TOP」タブの写真をご確認ください
お問合せ店舗
同じエリアの中古マンション
-
新価格 11/29
ライオンズマンション六義園
5,180万円
新価格
山手線「駒込」駅 徒歩4分
-
NEW 11/29
目白ガーデニア
6,398万円
東京メトロ副都心線「雑司が谷」駅 徒歩5分
-
NEW 11/29
パークハウス駒込六義園
1億2,500万円
山手線「駒込」駅 徒歩3分
-
NEW 11/29
ライオンズタワー池袋
1億800万円
東京メトロ有楽町線「東池袋」駅 徒歩8分
-
新価格 11/28
プラウドタワー東池袋
1億6,490万円
新価格
東京メトロ有楽町線「東池袋」駅 徒歩5分
同じエリアの一戸建て
-
新価格 11/29
中古一戸建て豊島区池袋本町2丁目中古戸建 1億480万円 新価格 東武東上線「下板橋」駅 徒歩9分 4LDK / 土地 93.96m2 -
新価格 11/29
中古一戸建て豊島区長崎6丁目 7,780万円 新価格 西武池袋・豊島線「東長崎」駅 徒歩10分 1LDK+S / 土地 66.7m2 -
新築一戸建て豊島区長崎6丁目新築戸建 A号棟 1億880万円 西武池袋・豊島線「東長崎」駅 徒歩9分 3LDK+S / 土地 85.4m2 -
中古一戸建て豊島区目白2丁目 中古戸建 1億4,500万円 山手線「目白」駅 徒歩6分 2LDK / 土地 106.64m2 -
中古一戸建て豊島区上池袋3丁目戸建 1億4,000万円 東武東上線「北池袋」駅 徒歩7分 3LDK+S / 土地 76.26m2
本掲載情報と現況に差異がある場合、現況を優先します。掲載物件は売却済あるいは売出中止となる場合もあります。掲載写真やパース(絵)、または間取図に描かれている家具や車などは、価格に含まれておりません。予めご了承ください。周辺施設や周辺環境の写真は、過去に撮影したものをそのまま利用している場合があり、名称・外観・背景等、実際のものとは異なる場合がございます。
仲介物件には所定の仲介手数料(消費税等相当額を含みます)が必要です。
投資用・事業用不動産サイト ノムコム・プロ
