グランドメゾン千駄木一番館 NEW 10/23
お問合せ
☆11階部分3LDKの間取☆複数路線・駅利用可能☆
☆オートロックあり☆新規室内リフォーム(2025年10月完成済)☆
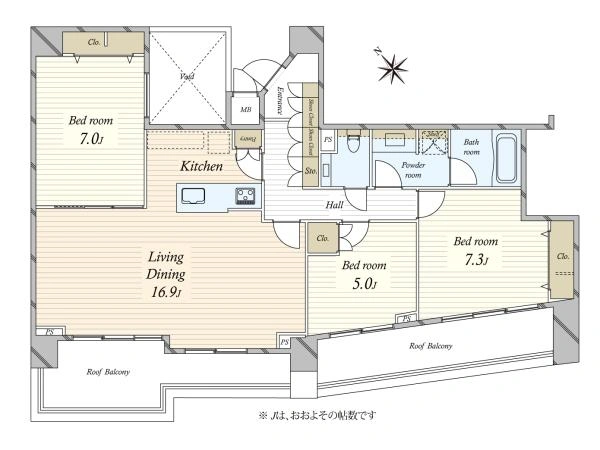
間取り図

0120-761-571
(通話無料・携帯もOK)
物件番号 F90BX027
お問い合わせの際に、物件番号をお伝えいただくとスムーズです。
リフォーム内容
- キッチン交換
- バスルーム交換
- 洗面台交換
- トイレ交換
- 床材張替
- クロス張替
- 扉交換
(2025年10月完成済)
・システムキッチン新規交換
(食洗機・浄水器付)
・ユニットバス新規交換
・洗面台新規交換
・洗濯防水パン新規交換
・トイレ新規交換
・壁・天井クロス張替
・フローリング張替
・クッションフロア張替
・建具新規交換
・天井カセット式エアコン交換
・ダウンライト交換・新設
・床暖房交換
・給湯器交換(エコジョーズ)
この物件のおすすめポイント
━━━━━━━━━━━━━━━━━━━━
~ グランドメゾン千駄木一番館 ~
━━━━━━━━━━━━━━━━━━━━
■□■□■□■□■□■□■□■□■□■□
野村の仲介+(PLUS)
ご相談・ご質問は、
担当の『関口』まで
お気軽にお問い合わせください。
(フリーコール:0120-761-571)
■┓ マンション
┗┛━━━━━━━━━━━━━━━━━━━━━
◆駅徒歩10分圏内、
複数路線・駅利用可能
◆安心のオートロック、
モニター付インターホンで来客も確認可能です
◆新規室内リフォーム予定
(2025年10月完成済)
室内の仕様設備はきれいな状態で、
お引き渡しが可能です
◆駐輪場利用料:月額100円~500円/台
※空き要確認※
■┓ 交 通
┗┛━━━━━━━━━━━━━━━━━━━━
◆東京メトロ千代田線『千駄木』駅 徒歩9分
◆JR山手線・京浜東北線・東京メトロ千代田線
『西日暮里』駅 徒歩9分
◆日暮里舎人ライナー『西日暮里』駅 徒歩11分
注1:分譲時のパンフレットや
その他資料を参考に記載しております。
最大限の注意を払って、
現況との差異がないかの確認をしておりますが、
万が一差異があった場合は
【現況優先】となりますことをご了承ください。
注2:駅からの距離等は【分譲時のパンフレット】を
参照して入力しております。
実際の体感距離は必ずお客様ご自身でも
お確かめ頂きたく願います。
担当者コメント


御茶ノ水営業部
関口 直矢 (せきぐち なおや)
┗□━━━━━━━━━━━━━━━━━━━━
※本件の担当者は
御茶ノ水営業部
関口 直矢(せきぐち なおや) です。
(1)お電話で・・・
●会社フリーコール : 0120-761-571
●本物件の担当者直通 : 090-7229-9327
(2)メールで・・・
●担当者直通メール
n2-sekiguchi@nomura-re.co.jp
本物件についてのご質問やご見学希望等、
お気軽にお問い合わせ下さい。
ご連絡を心よりお待ちしております。
特長・共用施設
物件の特徴の説明ハッシュタグをクリックすることで、同じハッシュタグを含む物件を検索できます。
物件について
位置 | #南向き(南東・南西含む) #南西向き |
---|---|
部屋 | #リビング・ダイニング15畳以上 #フローリング #全居室フローリング |
収納 | #全居室収納 |
キッチン | #カウンターキッチン #食器洗浄機 #浄水器 #システムキッチン #パントリー(食器・食品の収納庫) |
浴室・トイレ | #浴室乾燥機 #追いだき機能 #オートバス #温水洗浄便座 |
バルコニー | #ルーフバルコニー |
設備 | #床暖房 #都市ガス #省エネ給湯器 |
建物について
構造 | #外壁タイル貼り |
---|---|
施設・サービス | #エレベータ |
セキュリティ | #オートロック #TVモニタ付きインターフォン |
駐車場 | #駐輪場 |
物件の概要・詳細
物件情報の見方価格 | 1億4,500万円 住宅ローンシミュレーション | ||
---|---|---|---|
物件番号 | F90BX027 | ||
所在地 | 東京都文京区 千駄木4丁目 周辺地図を見る | ||
交通 |
東京メトロ千代田線「千駄木」駅 徒歩9分 山手線「西日暮里」駅 徒歩9分 京浜東北・根岸線「西日暮里」駅 徒歩9分 日暮里舎人ライナー「西日暮里」駅 徒歩11分 東京メトロ千代田線「西日暮里」駅徒歩9分 |
||
間取り | 3LDK | ||
専有面積
![]() |
90.15m2(27.27坪)(壁芯) | ||
バルコニー面積 | 20.2m2 | 向き | 南西 |
その他面積 | ― | ||
構造
![]() |
SRC造12階地下1階建て | 所在階 | 11階 |
築年月 | 1994年10月 | 総戸数 | 115戸 |
土地権利
![]() |
所有権 |
用途地域
![]() |
商業地域 |
管理会社 | 日本ハウズイング株式会社 | ||
管理形態
![]() |
全部委託 |
管理員
![]() |
日勤 |
管理費
![]() |
15,720円 / 月 |
修繕積立金
![]() |
30,920円 / 月 |
その他使用料 | ― | ||
駐車場 | ― | ||
現況 | 空家 | 引 渡 | 相談 |
取引態様
![]() |
仲介 |
国土法届出
![]() |
不要 |
備 考 | ●敷地面積 / 1323.9m2●分譲時会社 / 積水ハウス株式会社●施工会社 / 東海興業株式会社●設計会社 / 株式会社鳥内建築事務所、東海興業株式会社 ●エレベーター / 有 こちらの物件はバルコニー面積で記載している部分は、ルーフバルコニー:20.2m2となります。バルコニー面積はありません。 |
||
更新日 | 2025年10月23日 | 次回更新予定日 | 2025年11月6日 |
お問合せ店舗
同じエリアの中古マンション
-
NEW 10/23 文京目白台ハイツ 4,280万円 東京メトロ副都心線「雑司が谷」駅 徒歩8分
-
NEW 10/23 パレステージ文京江戸川橋 9,980万円 東京メトロ有楽町線「江戸川橋」駅 徒歩7分
-
NEW 10/23 ライオンズマンション茗荷谷 7,480万円 東京メトロ丸ノ内線「茗荷谷」駅 徒歩7分
-
NEW 10/23 プラウド本郷壱岐坂 2億600万円 東京メトロ丸ノ内線「本郷三丁目」駅 徒歩5分
-
NEW 10/20 ジェイパーク文京白山 1億1,000万円 都営三田線「白山」駅 徒歩3分
同じエリアの一戸建て
-
新価格 10/17
中古一戸建て文京区千石二丁目 戸建 6,498万円 新価格 東京メトロ丸ノ内線「茗荷谷」駅 徒歩10分 2K / 土地 56.56m2 -
中古一戸建て文京区白山2丁目戸建 3億1,000万円 都営三田線「白山」駅 徒歩8分 5LDK / 土地 111.66m2
-
中古一戸建て文京区千駄木3丁目 中古戸建 1億9,980万円 東京メトロ千代田線「千駄木」駅 徒歩5分 2LDK+2S / 土地 102.89m2
-
新築一戸建て文京区大塚六丁目 新築戸建 1億4,500万円 東京メトロ有楽町線「東池袋」駅 徒歩6分 3LDK+S / 土地 82.5m2
-
中古一戸建て文京区目白台1丁目 中古一戸建て 1億9,800万円 東京メトロ有楽町線「護国寺」駅 徒歩9分 4LDK / 土地 95.65m2
本掲載情報と現況に差異がある場合、現況を優先します。掲載物件は売却済あるいは売出中止となる場合もあります。掲載写真やパース(絵)、または間取図に描かれている家具や車などは、価格に含まれておりません。予めご了承ください。周辺施設や周辺環境の写真は、過去に撮影したものをそのまま利用している場合があり、名称・外観・背景等、実際のものとは異なる場合がございます。
仲介物件には所定の仲介手数料(消費税等相当額を含みます)が必要です。
売却もお任せください
ご所有不動産の売却をご検討なら、まずは無料査定から