ドゥアージュコラッド松濤 NEW 1/30
お問合せ
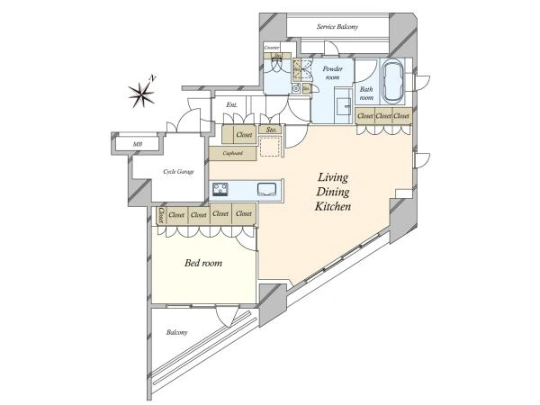
お部屋の横にサイクルガレージ有り<専用の自転車置場兼収納スペースとしてご利用可>
南東,北西向きの角部屋~通風・採光良好~
間取り図
0120-703-320
【通話無料・携帯もOK】
物件番号 F82C1040
お問い合わせの際に、物件番号をお伝えいただくとスムーズです。
この物件のおすすめポイント
― ドゥアージュコラッド松濤 ―
☆。.:*:・’゜★゜’・:*:.。:☆。.:*:・
┏┓ おすすめポイント
┗□━━━━━━━━━━━━━━━━━━━━━
【マンションについて】
◇松濤に住まう立地
~都心の利便性と落ち着きのある暮らし~
2030年頃にかけて渋谷エリア再開発進行中
×
松濤の落ち着きのある閑静な住宅地
◇2020年1月築
◇モニター付きインターホンとオートロックセキュリティ
◇不在時に便利な宅配ボックス有り
◇ホテルライクな内廊下設計
◇ペット飼育可能(規約有り)
【お部屋の中について】
◇61.32m2/1LDK+サイクルガレージ
<LDK>
~複数の採光×2550mmの天井高~
・南東向きからの採光がとれるリビング・ダイニング
・北東側にも開口部有り
・リビング・ダイニングの天高は2500mm~2550mm
・豊富な収納スペース
~キッチン部分~
・作業スペースの確保されたキッチン
・カップボードと合わせて豊富な収納スペース
・ディスポーザー有り
・食洗機有り
<洋室>
・南東向きバルコニーに面した洋室
・豊富な収納スペース有り
・天井高2550mm有り
<洗面所・浴室>
~換気・通風良好~
・洗面所は北西側のサービスバルコニーに面してます
・浴室窓有り
・浴室には換気乾燥暖房機有り
<豊富な収納スペース>
・玄関のくつ棚のスペース
・玄関横部分のサイクルガレージ(月額使用料無償)
専用の自転車置場として
日用品やスーツケース、ゴルフ用品置場として
お客様のご要望に応じてお使いいただけます
┏┓ 交通アクセス
┗□━━━━━━━━━━━━━━━━━━━━━
〇京王バス・ハチ公バス
「東大裏」バス停徒歩2分
・主要バス停留所
渋谷駅 代々木上原駅
東北沢駅 笹塚駅
〇京王井の頭線
「神泉」 駅 徒歩10分
〇山手線
「渋谷」 駅 徒歩14分
〇東京メトロ千代田線
「代々木公園」駅 徒歩13分
┏┓ ライフインフォメーション
┗□━━━━━━━━━━━━━━━━━━━━━
【スーパーマーケット】
◇まいばすけっと駒場1丁目店
徒歩9分 (約700m)
【コンビニエンスストア】
◇セブンイレブン神山店
徒歩4分 (約250m)
◇ローソン渋谷旧山手通り店
徒歩6分 (約450m)
【郵便局】
◇渋谷富ケ谷二郵便局
徒歩7分 (約490m)
【公園】
◇綱島松濤公園
徒歩4分(約300m)
◇駒場公園
徒歩11分(約850m)
◇代々木公園
徒歩16分(約1270m)
【周辺施設】
◇東京大学駒場キャンパス
徒歩4分(約280m)
◇松濤美術館
徒歩6分(約420m)
◇戸栗美術館
徒歩7分(約510m)
◇セルリアンタワー
徒歩19分(約1400m)
◇渋谷アッパー・ウエスト・プロジェクト
(東急百貨店本店跡地)
徒歩10分(約800m)
◇道玄坂二丁目南地区第一種市街地再開発事業
*京王井の頭線「渋谷」駅直結となる、
オフィス・商業・ホテルの大規模複合再開発
徒歩14分(約1100m)
注意1
築年数の経過等により環境・施設の変化が生じている可能性が
ございます。
差異があった場合は【現況優先】となりますこと
ご了承ください。
注意2
実際の体感距離は必ずお客様ご自身でもお確かめ
頂きたく願います。
インターネットネット上での検索のため80mに
つき1分計算で机上測定されております。
担当者コメント
麻布営業部
伊藤 諒祐 (いとう りょうすけ)
┗□━━━━━━━━━━━━━━━━━━━━━
【本物件担当者】
店舗名:麻布営業部 営業三課
氏 名:伊藤 諒祐(いとう りょうすけ)
【お電話でのお問合わせ】
会社フリーコール
「0120-703-320」
担当者直通携帯番号
「080-8172-7218」(伊藤)
【メールでのお問合わせ】
メール:r2-itou@nomura-re.co.jp(伊藤)
本物件に関するご質問・ご要望等
ございましたら、お気軽にお問い合わせください。
ご連絡を心よりお待ちしております。
特長・共用施設
物件の特徴の説明ハッシュタグをクリックすることで、同じハッシュタグを含む物件を検索できます。
建物について
| 施設・サービス | #24時間ゴミ出し可 #エレベータ |
|---|---|
| セキュリティ | #オートロック #TVモニタ付きインターフォン #ディンプルキー #24時間セキュリティ #セキュリティ充実 |
立地・周辺環境について
| 立地・環境 | #2沿線以上利用可 |
|---|
周辺施設
物件周辺の地図を確認する-

公園
綱島松濤公園
現地より約300m
徒歩4分 -

公園
綱島松濤公園
現地より約300m
徒歩4分 -

公園
駒場公園
現地より約850m
徒歩11分 -

公園
駒場公園
現地より約850m
徒歩11分
物件の概要・詳細
物件情報の見方| 価格 | 1億6,499万円 住宅ローンシミュレーション | ||
|---|---|---|---|
| 物件番号 | F82C1040 | ||
| 所在地 | 東京都渋谷区 松濤2丁目 周辺地図を見る | ||
| 交通 |
京王井の頭線「神泉」駅 徒歩10分 山手線「渋谷」駅 徒歩14分 東京メトロ千代田線「代々木公園」駅 徒歩13分 |
||
| 間取り | 1LDK | ||
|
専有面積
|
61.32m2(18.54坪)(壁芯) | ||
| バルコニー面積 | 6.09m2 | 向き | 南東 |
| その他面積 | ― | ||
|
構造
|
RC造13階建て | 所在階 | 3階 |
| 築年月 | 2020年1月 | 総戸数 | 25戸 |
|
土地権利
|
所有権 |
用途地域
|
第二種住居地域 |
| 管理会社 | (株)シノケンファシリティーズ | ||
|
管理形態
|
全部委託 |
管理員
|
日勤 |
|
管理費
|
26,000円 / 月 |
修繕積立金
|
9,300円 / 月 |
| その他使用料 | ― | ||
| 駐車場 | ― | ||
| 現況 | 空家 | 引 渡 | 相談 |
|
取引態様
|
仲介 |
国土法届出
|
不要 |
| 備 考 | ●敷地面積 / 348m2●分譲時会社 / (株)プロパスト●施工会社 / 多田建設(株)●エレベーター / 有 専有面積には、サイクルガレージ面積(6.09m2)が含まれます。 |
||
| 更新日 | 2026年1月30日 | 次回更新予定日 | 2026年2月13日 |
お問合せ店舗
このマンションの他の売り出し中物件を見る
同じエリアの中古マンション
-
NEW 1/30
クオリア恵比寿サウス
6,380万円
山手線「恵比寿」駅 徒歩5分
-
NEW 1/30
プラウド渋谷東
2億5,500万円
山手線「渋谷」駅 徒歩9分
-
NEW 1/30
センチュリープラザ恵比寿
2億4,980万円
山手線「恵比寿」駅 徒歩12分
-
新価格 1/30
レジオン代官山
2億7,900万円
新価格
東急東横線「代官山」駅 徒歩8分
-
新価格 1/30
エクティ神山町
5,880万円
新価格
東京メトロ千代田線「代々木公園」駅 徒歩8分
同じエリアの一戸建て
-
新価格 1/30
中古一戸建て渋谷区西原三丁目 戸建 16億8,000万円 新価格 東京メトロ千代田線「代々木上原」駅 徒歩6分 8LDK+3S / 土地 397.68m2 -
新築一戸建て渋谷区笹塚3丁目新築戸建て2号棟 1億3,198万円 京王線「笹塚」駅 徒歩8分 3LDK+S / 土地 71.55m2 -
新築一戸建て渋谷区笹塚3丁目新築戸建て1号棟 1億5,198万円 京王線「笹塚」駅 徒歩8分 2LDK / 土地 91.6m2 -
中古一戸建て渋谷区神宮前4丁目戸建て 7億4,800万円 東京メトロ千代田線「表参道」駅 徒歩4分 7LDK / 土地 197.28m2 -
中古一戸建て東京都渋谷区富ヶ谷2丁目 一戸建て 1億5,800万円 小田急小田原線「代々木八幡」駅 徒歩10分 2LDK+S / 土地 46.74m2
本掲載情報と現況に差異がある場合、現況を優先します。掲載物件は売却済あるいは売出中止となる場合もあります。掲載写真やパース(絵)、または間取図に描かれている家具や車などは、価格に含まれておりません。予めご了承ください。周辺施設や周辺環境の写真は、過去に撮影したものをそのまま利用している場合があり、名称・外観・背景等、実際のものとは異なる場合がございます。
仲介物件には所定の仲介手数料(消費税等相当額を含みます)が必要です。
売却もお任せください
ご所有不動産の売却をご検討なら、まずは無料査定から
投資用・事業用不動産サイト ノムコム・プロ

