中古マンション
リノベーション
クレアホームズ高輪台 NEW 10/05
お問合せ
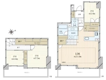
※写真の説明・詳細コメントについては、「物件TOP」タブの写真をご確認ください
お問合せ店舗
このマンションの他の売り出し中物件を見る
同じエリアの中古マンション
-
新価格 10/05 パラッシオ目黒不動前 1億2,180万円 新価格 東急目黒線「不動前」駅 徒歩5分
-
新価格 10/05 イオシスガーデン 1億1,480万円 新価格 京浜東北・根岸線「大森」駅 徒歩5分
-
NEW 10/04 パークハウス オー・タワー 8,780万円 山手線「大崎」駅 徒歩4分
-
NEW 10/04 デュオヒルズ御殿山 1億5,400万円 山手線「大崎」駅 徒歩13分
-
NEW 10/03 大森永谷マンション 3,780万円 京急本線「立会川」駅 徒歩8分
同じエリアの一戸建て
-
NEW 10/03
中古一戸建て品川区二葉二丁目 戸建て 8,480万円 横須賀線「西大井」駅 徒歩5分 2LDK+S / 土地 47.45m2 -
新価格 10/02
中古一戸建て品川区小山六丁目 3,795万円 新価格 東急目黒線「西小山」駅 徒歩6分 4K / 土地 59.53m2 -
中古一戸建て品川区南品川1丁目戸建 1億2,500万円 京急本線「新馬場」駅 徒歩7分 3LDK+S / 土地 56.59m2
-
新築一戸建て品川区荏原4丁目 新築戸建 2億980万円 東急目黒線「武蔵小山」駅 徒歩6分 5LDK / 土地 82.09m2
-
中古一戸建て品川区豊町三丁目戸建 3億3,300万円 東急大井町線「戸越公園」駅 徒歩5分 5LDK+S / 土地 247.18m2
本掲載情報と現況に差異がある場合、現況を優先します。掲載物件は売却済あるいは売出中止となる場合もあります。掲載写真やパース(絵)、または間取図に描かれている家具や車などは、価格に含まれておりません。予めご了承ください。周辺施設や周辺環境の写真は、過去に撮影したものをそのまま利用している場合があり、名称・外観・背景等、実際のものとは異なる場合がございます。
仲介物件には所定の仲介手数料(消費税等相当額を含みます)が必要です。