プラウドシティ池袋本町
お問合せ
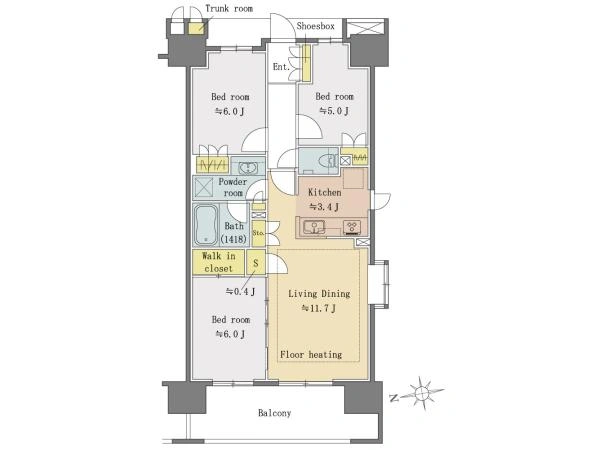
【野村不動産旧分譲マンション】駅徒歩2分、 全785邸。10階部分、3LDK+WIC+TR
新規リフォーム物件(2026年2月下旬完成予定) 富士山を望む眺望
間取り図
0120-331-921
【通話無料・携帯もOK】
物件番号 F55BX032
お問い合わせの際に、物件番号をお伝えいただくとスムーズです。
リフォーム内容
- キッチン交換
- バスルーム交換
- 洗面台交換
- トイレ交換
- 床材張替
- クロス張替
・システムキッチン新規交換
・浴室新規交換
・洗面化粧台新規交換
・トイレ新規交換
・給湯器新規交換
・フローリング、クッションフロア新規貼替
・クロス新規貼替
・洗濯パン新規交換
・スイッチ、コンセント新規交換
・ハウスクリーニング 等
この物件のおすすめポイント
【 2010年首都圏優秀マンション表彰 最優秀賞 】受賞マンション(週刊住宅新聞社主催)☆
~ 駅徒歩2分、 全785邸。 約2.0haのJR社宅跡地に広がる、 複合開発の街。 ~
━━━ ◇プラウドシティ池袋本町◇ ━━
: ☆・:*: ☆・:*: ☆・:*: ☆・:*: ☆・:*: ☆・:*: ☆・:*: ☆・:*:
┌◆お部屋の特徴
└──────────────────────────────
■【3LDK+WIC・西向き住戸】
→富士山を望む眺望
■ 10階部分西向きにつき陽当たり眺望良好
■【玄関にはトールタイプのシューズボックス】
シューズボックスも収納豊富です☆
■【トランクルーム】
約0.32m2のトランクルーム♪
ゴルフバッグ・ベビーカーなど収納に便利です☆
※その他充実の設備を備えております。
下記、アイコンをご参照下さい!!
┌◆3駅3路線が徒歩5分以内で利用可能!!
└────────────────────────────
◇JR埼京線 『板橋』駅から徒歩2分
◇東武東上線『下板橋』駅から徒歩4分
◇都営三田線『新板橋』駅から徒歩5分
┌◆都心・副都心の両方へダイレクトにスピードアクセス!!
└────────────────────────────
◇埼京線・・・池袋へ1駅3分/新宿へ2駅9分/渋谷へ3駅14分
◇都営三田線・・・大手町へ直通16分/日比谷へ直通18分/内幸町へ直通20分
┌◆都市近接の駅前立地 × 第一種住居地域
└──────────────────────────
本マンションは長年にわたり旧国鉄官舎として利用されてきた
「JR社宅跡地」に建設されました。
それゆえ、都市近接の広大な場所にもかかわらず、
住環境が維持されやすい「第一種住居地域」となっております。
= 複合開発の街 ~商業施設・東京都認証保育園を併設~ =
【 プラウドシティ池袋本町 】はJR埼京線『板橋』駅から徒歩2分という優れた
アクセス環境にありながら、2.0haを超える敷地面積と全785邸のスケールをもち、
商業施設(食品スーパー)及び東京都認証保育園を併設した
便利と快適を実現する複合開発の街として誕生しました。
駅前という貴重な立地を生かし、その利便性を住まう人と地域の方が共に享受できる
街作りを追求して誕生しました。
= コンセプトは、「都市の緑城」 =
┌◆1.約2,300m2の大庭園<ガーデンアリーナ>
└───────────────────────────────────
テニスコート約12面分の広さを誇る大庭園・ガーデンアリーナ。
住戸と中庭を結ぶコリドーやパーゴラをはじめ、
シーズンごとにイベントを開催し、英会話教室も開催される「ツリーハウス」も設置。
住宅棟はこの大庭園を囲むように配棟され、都心の間近にありながら、
自然を身近に感じる住まいを実現しています。
┌◆2.モダンヴィンテージ ~上質で、誇り高い住まいの実現~
└───────────────────────────────────
住棟への入り口には高さ約5.5mのエントランスゲート、
そして約8.5mの高さを誇る、三層吹き抜けのグランドロビー。
中庭を望むガーデンラウンジやライブラリー等、北欧のヴィンテージ家具を思わせる、
格調高いインテリアデザインが、上質で誇り高い住まいを実現しています。
≪ゲストルーム≫
おひとり様でもご家族でも。
北欧スタイル、ニューヨークスタイル、ジャパニーズスタイルの
3つのスタイルがございます。
≪コンシェルジュサービス≫
カフェラウンジの一角には専門スタッフが待機する
コンシェルジュデスクを設置。各種取次や受付、予約代行など、
さまざまなリクエストに丁寧に対応します。
┌◆3.安心・安全を提供するセキュリティ
└───────────────────────────────────
周囲の道路と比べて一段高くなっている地形は城塞を思わせ、
安全性と景観に配慮し、敷地外縁部に配した剣先フェンスとあいまって、
暮らしを守るセキュリティラインを形成しています。
≪三重のセキュリティ≫
エントランスゲートでの鍵の認証のあと、グランドエントランスでも
認証が必要なオートロック。各住戸の玄関と合わせると、
三重のセキュリティとなっております。
≪セキュリティサービス≫
各住戸の玄関や窓には防犯センサーを、敷地内には
防犯カメラを複数個所に設置。24時間有人管理システムも導入し、
生活に確かな安心と安全をもたらします。
= プラウド ECO ビジョン =
┌◆1.減らすECO
└──────────────────────────
◇「複層ガラス」の使用
◇使うエネルギー量やCO2削減量を目で確認できる、「エネルックリモコン」
◇ゴミの量を削減できる、「ディスポーザー」
┌◆2.つくるECO
└───────────────────────────────
◇「太陽光発電システム」を屋上に設置し、共用部電力として利用
◇雨水の再利用システム
┌◆3.シェアリング
└───────────────────────────────
◇ハイブリッドカー3台によるカーシェアリング
◇レンタサイクルを40台設置
┗━━━━━━━━━━━━━━━━━━━━━━━━━━★
◇ フリーコール :0120-331-921
◇ ご見学予約 :右上の見学予約ボタンから必要事項を
入力の上お問合せ下さい。
また、こちらのマンション以外でも
「こんなお部屋に住んでみたい」
「今の家が手狭になったから住み替えたい」
といったようなこともお気軽にご相談いただければ幸いです。
⊂⊃ ☆ ☆
⊂⊃
☆
┏━┓ ┏━┓
┃田┃ ┃田┃
┃田┃ ┃田┃ ☆
┃田┃ ┃田┃ ☆ ☆
┃田┃ ┃田┃
┗━━━━━━━━━━━━━━━━━━━━━━━━━━★
担当者コメント
池袋営業部
石川 敬 (いしかわ たかし)
●会社フリーコール:0120-331-921
●≪担当石川:携帯⇒080-1064-4324≫(いつでもお電話下さいませ)
(2)メールで・・・
●担当者直通メール : t5-ishikawa@nomura-re.co.jp
本物件についてのご質問やご相談がございましたら、お気軽にお問い合わせ下さい。
また、複数物件をお問い合わせする場合、
担当を統一することで効率的に資料請求、ご内覧ができます。
※複数物件お問い合わせの場合は、コメント欄に物件名を記載下さいませ。
ご連絡を心よりお待ちしております。
特長・共用施設
物件の特徴の説明ハッシュタグをクリックすることで、同じハッシュタグを含む物件を検索できます。
物件について
| 部屋 | #フローリング #全居室フローリング |
|---|---|
| 収納 | #ウォークインクローゼット |
| キッチン | #カウンターキッチン #ディスポーザー #食器洗浄機 #浄水器 #システムキッチン |
| 浴室・トイレ | #浴室1.4-1.8M以上 #温水洗浄便座 #シャワー付洗面化粧台 |
| 設備 | #床暖房 #都市ガス #複層ガラス |
| 構造 | #二重床 #二重天井 |
建物について
周辺施設
物件周辺の地図を確認する-

駅
板橋駅
現地より約150m
徒歩2分 -

駅
下板橋駅
現地より約380m
徒歩5分 -

小学校
豊島区立池袋本町小学校・池袋中学校
現地より約800m
徒歩10分 -

公園
池袋本町公園
現地より約900m
徒歩12分
物件の概要・詳細
物件情報の見方| 価格 | 1億4,780万円 住宅ローンシミュレーション | ||
|---|---|---|---|
| 物件番号 | F55BX032 | ||
| 所在地 | 東京都豊島区 池袋本町4丁目 周辺地図を見る | ||
| 交通 |
埼京線「板橋」駅 徒歩2分 東武東上線「下板橋」駅 徒歩4分 都営三田線「新板橋」駅 徒歩6分 |
||
| 間取り | 3LDK+S+WIC | ||
|
専有面積
|
70.79m2(21.41坪)(壁芯) | ||
| バルコニー面積 | 12.82m2 | 向き | 西 |
| その他面積 | トランクルーム 0.32m2 | ||
|
構造
|
RC造15階地下1階建て | 所在階 | 10階 |
| 築年月 | 2011年11月 | 総戸数 | 785戸 |
|
土地権利
|
所有権 |
用途地域
|
第一種住居地域 |
| 管理会社 | 野村不動産パートナーズ株式会社 | ||
|
管理形態
|
全部委託 |
管理員
|
日勤 |
|
管理費
|
16,400円 / 月 |
修繕積立金
|
8,000円 / 月 |
| その他使用料 | コミュニティ促進費 100円 / 月、受入 100円 / 月、共視聴施設負担金 33円 / 月 | ||
| 駐車場 | ― | ||
| 現況 | 空家 | 引 渡 | 相談 |
|
取引態様
|
仲介 |
国土法届出
|
不要 |
| 備 考 | ●分譲時会社 / 野村不動産株式会社●施工会社 / 株式会社長谷工コーポレーション●設計会社 / 株式会社長谷工コーポレーション ●エレベーター / 有 ※専有面積70.79m2にはトランクルーム面積0.32m2を含む ※WIC=ウォークインクローゼット、S=サービスルーム |
||
| 更新日 | 2026年3月9日 | 次回更新予定日 | 2026年3月23日 |
お問合せ店舗
このマンションの他の売り出し中物件を見る
同じエリアの中古マンション
-
新価格 3/15
日神パレステージ西池袋
6,199万円
新価格
山手線「池袋」駅 徒歩3分
-
新価格 3/15
日神パレステージ西池袋
7,899万円
新価格
山手線「池袋」駅 徒歩3分
-
新価格 3/15
グランレーブ目白東
7,699万円
新価格
東京メトロ有楽町線「東池袋」駅 徒歩9分
-
新価格 3/15
マンションパーク宮仲
2,798万円
新価格
山手線「池袋」駅 徒歩18分
-
新価格 3/15
パレス南池袋
6,799万円
新価格
山手線「池袋」駅 徒歩6分
同じエリアの一戸建て
-
新価格 3/12
中古一戸建て豊島区高松3丁目戸建 2億5,800万円 新価格 東京メトロ有楽町線「千川」駅 徒歩13分 3LDK+S / 土地 163.33m2 -
中古一戸建て豊島区巣鴨3丁目 中古戸建 1億3,500万円 都営三田線「巣鴨」駅 徒歩7分 2LDK+S / 土地 68.55m2 -
新築一戸建て豊島区目白2丁目新築戸建 2号棟 1億7,800万円 山手線「目白」駅 徒歩7分 3LDK / 土地 81.49m2 -
中古一戸建て豊島区駒込六丁目 中古戸建 1億2,800万円 東京メトロ南北線「駒込」駅 徒歩8分 3LDK / 土地 49.08m2 -
中古一戸建て豊島区目白2丁目 中古戸建 1億3,800万円 山手線「目白」駅 徒歩6分 2LDK / 土地 106.64m2
本掲載情報と現況に差異がある場合、現況を優先します。掲載物件は売却済あるいは売出中止となる場合もあります。掲載写真やパース(絵)、または間取図に描かれている家具や車などは、価格に含まれておりません。予めご了承ください。周辺施設や周辺環境の写真は、過去に撮影したものをそのまま利用している場合があり、名称・外観・背景等、実際のものとは異なる場合がございます。
仲介物件には所定の仲介手数料(消費税等相当額を含みます)が必要です。
売却もお任せください
ご所有不動産の売却をご検討なら、まずは無料査定から
投資用・事業用不動産サイト ノムコム・プロ



