土地
大田区東嶺町 土地
-
1億3,000万円
ローンシミュレーション - 所在地 東京都大田区 東嶺町
- 土地面積 135.8m2
- 交通 東急池上線「御嶽山」駅 徒歩5分
お問合せ
区画図
0120-803-917
【通話無料・携帯もOK】
物件番号 NE170001
お問い合わせの際に、物件番号をお伝えいただくとスムーズです。
特長・共用施設
物件の特徴の説明ハッシュタグをクリックすることで、同じハッシュタグを含む物件を検索できます。
物件について
| 立地・環境 | #建築条件なし #角地 #南道路(南東・南西含む) #低層住居専用地域 #容積率100%以上 #駅徒歩5分以内 |
|---|
物件の概要・詳細
物件情報の見方| 価格 | 1億3,000万円 住宅ローンシミュレーション | ||
|---|---|---|---|
| 物件番号 | NE170001 | ||
| 所在地 | 東京都大田区 東嶺町 周辺地図を見る | ||
| 交通 | 東急池上線「御嶽山」駅 徒歩5分 |
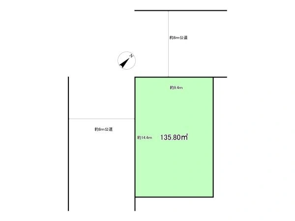
土地面積
| 135.8m2(41.07坪)(公簿) |
|
土地権利
|
所有権 |
地目
|
宅地 |
|
私道負担
|
― |
セットバック
|
― |
|
都市計画
|
市街化区域 |
用途地域
|
第一種低層住居専用地域 |
|
建ぺい率
|
50% |
容積率
|
100% |
|
接道状況
|
北西8m公道 接面9.4m・南西8m | ||
| 設備 | ― | ||
| 現況 | 古家あり | 引 渡 | 相談 |
|
取引態様
|
仲介 |
国土法届出
|
不要 |
| 備 考 | ― | ||
| 更新日 | 2025年12月12日 | 次回更新予定日 | 2025年12月26日 |
お問合せ店舗
同じエリアの土地
-
NEW 12/5
大田区中馬込1丁目 売地
4,880万円
都営浅草線「馬込」駅 徒歩11分
-
新価格 12/5
大田区鵜の木1丁目土地no.5
7,880万円
新価格
東急多摩川線「鵜の木」駅 徒歩3分
-
新価格 12/5
大田区鵜の木1丁目土地no.3
7,580万円
新価格
東急多摩川線「鵜の木」駅 徒歩3分
-
新価格 12/5
大田区鵜の木一丁目土地no.1
8,280万円
新価格
東急多摩川線「鵜の木」駅 徒歩3分
-
大田区北千束3丁目 土地
9,680万円
東急目黒線「大岡山」駅 徒歩6分
同じエリアの一戸建て
-
中古一戸建て千鳥町2丁目 戸建て 6,940万円 東急多摩川線「武蔵新田」駅 徒歩3分 3LDK / 土地 46.09m2 -
NEW 12/9
中古一戸建て大田区東雪谷5丁目 中古一戸建て 2億3,000万円 東急池上線「石川台」駅 徒歩12分 4LDK+S / 土地 346.48m2 -
NEW 12/8
新築一戸建て大田区萩中1丁目新築戸建 EXCEL HOME 9,180万円 京急空港線「糀谷」駅 徒歩11分 3LDK+S / 土地 58.35m2 -
NEW 12/7
新築一戸建て大田区久が原1丁目新築戸建 ミラクラス久が原III B棟 1億1,880万円 東急池上線「久が原」駅 徒歩7分 1LDK+2S / 土地 114.12m2 -
NEW 12/7
新築一戸建て大田区久が原1丁目新築戸建 ミラクラス久が原III A棟 1億3,880万円 東急池上線「久が原」駅 徒歩7分 3LDK / 土地 108.21m2
本掲載情報と現況に差異がある場合、現況を優先します。掲載物件は売却済あるいは売出中止となる場合もあります。掲載写真やパース(絵)、または間取図に描かれている家具や車などは、価格に含まれておりません。予めご了承ください。周辺施設や周辺環境の写真は、過去に撮影したものをそのまま利用している場合があり、名称・外観・背景等、実際のものとは異なる場合がございます。
仲介物件には所定の仲介手数料(消費税等相当額を含みます)が必要です。
売却もお任せください
ご所有不動産の売却をご検討なら、まずは無料査定から
投資用・事業用不動産サイト ノムコム・プロ

