横浜市港北区高田東1丁目 新築戸建B号棟 NEW 10/13
-
6,880万円
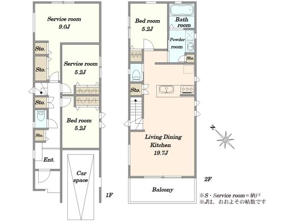
ローンシミュレーション - 間取り 2LDK+2S
- 所在地 神奈川県横浜市港北区 高田東1丁目
- 建物面積 114.27m2
- 土地面積 93.72m2
-
交通
横浜市営地下鉄グリーンライン「高田」駅 徒歩11分
東急東横線「綱島」駅 徒歩18分 - 築年月 2026年3月予定(新築)
お問合せ
●114.27m2/2LDK+2S/3駅3路線利用可能の好立地●
~ LDは勾配天井により、開放感あふれる空間です。多彩な収納プランですっきりとした住空間を実現できます。~
間取り図
0120-771-251
(通話無料・携帯もOK)
物件番号 R7870129
お問い合わせの際に、物件番号をお伝えいただくとスムーズです。
この物件のおすすめポイント
横浜市港北区高田東1丁目 新築戸建B号棟
◆◇━━◇◆━━◇◆━━◇◆━━━━━━━☆★
◆ おすすめポイント
┗━━━━━━━━━━━━━━◆
■114.27m2/2LDK+2Sのゆったりとした間取り
伸び伸びとお過ごしいただけます。
■約19.7帖の広々としたLDK
3面採光×南西向きバルコニーに面しており、
気持ちの良い陽差しが直接お部屋内に
差し込み、明るい住空間を演出します。
■勾配天井(LD)
奥行きが生まれ、お部屋が広く見える効果も期待できます。
お部屋のスタイリッシュなアクセントにもなります。
■LDには足元から優しく暖める【TES温水式床暖房】
運転音もほとんどなく、
ホコリを巻き上げる風も起こさない
快適で健康的な暖房です。
■全居室収納の多彩な収納プラン
各居室にはクローゼットが設置。
リビング収納、廊下収納、玄関収納、リネン収納等
要所に収納スペースがあり、
すっきりとした住空間を実現できます。
■各居室に開口部があり、通風性が良い室内です。
■リビングを見渡せる開放的なカウンターキッチン
対面式カウンターキッチンとなっており、
家族と会話をしながらの料理が可能に。
住戸内のコミュニケーションを豊かにしてくれます。
■食器洗浄機
洗い物の多い日、手荒れが気になる時など
便利な食器洗浄機を装備。
手洗いに比べ家事負担を軽減し
高温洗浄で油汚れもスッキリ!節水にも貢献します。
■浄水器一体型水栓
キッチンにはいつでも安全な水を供給する浄水器。
飲用水や調理用の水として、
おいしい水が手軽にご利用いただけます。
■浴室乾燥機
雨の日のお洗濯も安心。
浴室内の湿気やカビの抑制にも効果的です。
■家事の負担を軽減する間取り
水回りがまとまっており、家事動線がスムーズで
家事の負担を軽減する間取りです!
■24時間換気システム
フレッシュな外気を自動的に取り入れ室内の
汚れた空気を排出する低風量24時間換気システム。
■宅配ロッカー
お出かけの多いご家族にはもちろん、
お仕事やご旅行の不在時など、
いつでも気兼ねなく荷物が受け取れ安心です。
■TVモニター付きインターホン
来訪者はエントランスの集合インターホンで
訪問先の居住者を呼び出し、通話。
来訪者を確認してから開錠する安心のシステム。
(スマートフォン対応)
■カースペースあり※車種による
■多彩な交通アクセス
横浜市営地下鉄グリーンライン「高田」駅 徒歩11分
東急東横線「綱島」駅 徒歩18分
東急新横浜線「新綱島」駅 徒歩20分
◆◆◆◆◆◆◆◆◆◆◆◆◆◆◆◆◆◆◆◆◆◆◆
お買い替えのお客様もスムーズに購入頂けます
◆◆◆◆◆◆◆◆◆◆◆◆◆◆◆◆◆◆◆◆◆◆◆
弊社では、マンション買換保証・つなぎ融資制度を
ご用意しております!
まだ自宅のローンは残っているけど
買い替えたいという方はお気軽にご相談下さい。
また売却額次第でとお考え中の方も御相談頂ければ
お力になります。
◆◆◆◆◆◆◆◆◆◆◆◆◆◆◆◆◆◆◆◆◆◆◆
資金計画のご相談受付中
◆◆◆◆◆◆◆◆◆◆◆◆◆◆◆◆◆◆◆◆◆◆◆
「住宅ローンはいくら借りれるんだろう?」
「月々の返済額をいくらにしたい!」等、
資金計画で疑問や悩みがある際は
お気軽にご相談下さい。
現在の金利等を含めて、お借入銀行の特徴や、
お客様に合った住宅ローンの組み方を
一緒に考えていきます。
担当者コメント


学芸大学センター
内堀 真萌 (うちぼり まほ)
私、本物件を担当しております 学芸大学センターの 内堀 と申します。
物件についてのご質問・お住みかえに関するお悩み等
どんな些細な事でも構いませんので、何かございましたら
担当: 内堀 までお気軽にお問い合わせくださいませ。
不動産探しの良きパートナーとして、お役に立てるようサポートさせて頂きます。
■会社(フリーコール):0120-771-251 (火・水定休)
■担当:内堀 携帯電話:080-9584-4584
特長・共用施設
物件の特徴の説明ハッシュタグをクリックすることで、同じハッシュタグを含む物件を検索できます。
物件について
部屋 | #3面採光 |
---|---|
収納 | #納戸 #全居室収納 |
キッチン | #カウンターキッチン #食器洗浄機 #浄水器 |
浴室・トイレ | #浴室に窓付き #浴室乾燥機 #トイレ2ヶ所 #温水洗浄便座 |
設備 | #床暖房 #都市ガス #24時間換気システム |
建物について
セキュリティ | #TVモニタ付きインターフォン |
---|
立地・周辺環境について
立地・環境 | #南道路(南東・南西含む) #分譲地内 #本下水 #2沿線以上利用可 #陽当り良好 |
---|
物件の概要・詳細
物件情報の見方価格 | 6,880万円 住宅ローンシミュレーション | ||
---|---|---|---|
物件番号 | R7870129 | ||
所在地 | 神奈川県横浜市港北区 高田東1丁目 周辺地図を見る | ||
交通 |
横浜市営地下鉄グリーンライン「高田」駅 徒歩11分 東急東横線「綱島」駅 徒歩18分 東急新横浜線「新綱島」駅 徒歩20分 |
||
間取り | 2LDK+2S | ||
建物面積
![]() |
114.27m2(34.56坪) (車庫面積:9.93m2含) 1階:60.45m2 2階:53.82m2 |
土地面積
![]() | 93.72m2(28.35坪) |
構造
![]() |
木造2階建て | ||
築年月 | 2026年3月予定(新築) | 駐車場 | あり |
土地権利
![]() |
所有権 |
地目
![]() |
― |
私道負担
![]() |
なし |
セットバック
![]() |
― |
都市計画
![]() |
市街化区域 |
用途地域
![]() |
第二種住居地域 |
建ぺい率
![]() |
60% |
容積率
![]() |
― |
接道状況
![]() |
南西4m公道 | ||
設備 | 公営水道・本下水・都市ガス | ||
現況 | 建築中 | 引 渡 | 2026年3月下旬(入居予定) |
取引態様
![]() |
仲介 |
国土法届出
![]() |
不要 |
備 考 | ●建築確認番号 / 第25UDI1K建01479号●都市計画法他制限 / 準防火地域、第2種高度地区、日影規制 ※価格には宅内給排水管・ガス管引き込み費用・水道加入金が含まれています ※建物面積には、ポーチ面積2.48m2含む |
||
更新日 | 2025年10月13日 | 次回更新予定日 | 2025年10月27日 |
お問合せ店舗
同じエリアの新築一戸建て
-
NEW 10/10 横浜市港北区鳥山町 新築一戸建て 6,098万円 横浜線「新横浜」駅 徒歩16分
-
新価格 10/08 横浜市港北区小机町 新築一戸建て 5,930万円 新価格 横浜線「小机」駅 徒歩14分
-
新価格 10/08 横浜市港北区大曽根3丁目 新築一戸建て 7,480万円 新価格 東急東横線「綱島」駅 徒歩15分
-
新価格 10/08 横浜市港北区大曽根3丁目 新築一戸建て 7,480万円 新価格 東急東横線「綱島」駅 徒歩15分
-
新価格 10/06 港北区大曽根台 新築戸建て 6,740万円 新価格 東急東横線「大倉山」駅 徒歩11分
同じエリアの中古一戸建て
-
港北区日吉本町五丁目 戸建 2億3,800万円 横浜市営地下鉄グリーンライン「日吉本町」駅 徒歩10分 1LDK / 土地 392m2
-
港北区綱島台 戸建 1億4,800万円 東急東横線「綱島」駅 徒歩7分 5LDK / 土地 315.16m2
-
港北区篠原町 中古戸建 4,497万円 横浜市営地下鉄ブルーライン「岸根公園」駅 徒歩5分 2LDK+S / 土地 63.77m2
-
神奈川県横浜市港北区綱島東6丁目 一戸建て 7,980万円 東急新横浜線「新綱島」駅 徒歩9分 3DK / 土地 154.99m2
-
横浜市港北区高田西3丁目 中古戸建 1億7,800万円 横浜市営地下鉄グリーンライン「高田」駅 徒歩8分 4LDK / 土地 480.26m2
本掲載情報と現況に差異がある場合、現況を優先します。掲載物件は売却済あるいは売出中止となる場合もあります。掲載写真やパース(絵)、または間取図に描かれている家具や車などは、価格に含まれておりません。予めご了承ください。周辺施設や周辺環境の写真は、過去に撮影したものをそのまま利用している場合があり、名称・外観・背景等、実際のものとは異なる場合がございます。
仲介物件には所定の仲介手数料(消費税等相当額を含みます)が必要です。
売却もお任せください
ご所有不動産の売却をご検討なら、まずは無料査定から