さいたま市浦和区高砂4丁目新築戸建 B号棟
-
6,580万円
ローンシミュレーション - 間取り 3LDK+ロフト
- 所在地 埼玉県さいたま市浦和区 高砂4丁目
- 建物面積 94.46m2
- 土地面積 45.99m2
-
交通
京浜東北・根岸線「浦和」駅 徒歩15分
埼京線「中浦和」駅 徒歩11分 - 築年月 2026年1月予定(新築)
お問合せ
イトーピアホーム(株)施工・駐車場付3階建て
2路線利用可能・ルーフバルコニー付
間取り図
0120-990-066
【通話無料・携帯もOK】
物件番号 R5070209
お問い合わせの際に、物件番号をお伝えいただくとスムーズです。
予約制内覧会開催
2月1日(日)
所在地: 埼玉県さいたま市浦和区高砂4丁目
会場案内地図
◇当日は現地に営業スタッフが常駐しておりませんのでご注意ください◇
ご案内は完全予約制のため、内覧希望の際は、
下記フリーコール(携帯番号)、もしくは
【見学予約】ボタンにて、事前予約をお願い致します。
当日のご予約にはご対応できない場合があります。予めご了承ください。
※なお、本開催日時以外での内覧も可能です。ご都合がつかない場合は、お気軽にご相談ください。
☆ご予約方法☆
・担当/奥山(おくやま)
・直通:090-7229-9810
・メール:s-okuyama@nomura-re.co.jp
・フリーコール: 0120-990-066
・ nomu.com(ノムコム)【見学予約】ボタン
※火・水曜日は店舗定休日になります
ご連絡、お待ち申し上げております。
この物件のおすすめポイント
新築分譲住宅 全3棟/今回販売3棟
BRIGHT NEW GARDEN 浦和高砂
イトーピアホーム(株)施工 新築戸建B号棟
*◇━━━━━━━━━━━━━━━━━━━━━◇*
┏┓ 物件特徴
┗□━━━━━━━━━━━━━━━━*━━*━━*━━
・ZEH水準省エネ住宅
・耐震等級3
・設計/施工:イトーピアホーム
・瑕疵担保責任保険「JIOわが家の保険」
・子育てグリーン住宅支援事業
┏┓ 交通アクセス・立地
┗□━━━━━━━━━━━━━━━━*━━*━━*━━
■ 京浜東北・根岸線「浦和」駅 徒歩15分
※宇都宮線・高崎線・上野東京ライン・湘南新宿ライン利用可
■ 武蔵野線「中浦和」駅 徒歩11分
┏┓ 物件概要
┗□━━━━━━━━━━━━━━━━*━━*━━*━━
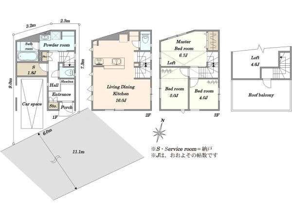
■3LDK+ロフト+ルーフバルコニー
:風と光をたっぷり取り組む、ルーフバルコニーのある暮らし
・1階浴室&洗面室・トイレ+マルチルーム
・2階LDK・トイレ
:16.0畳のLDK 3面(東・南・西)に開口部有
・3階洋室3部屋
:各居室収納あり、3部屋を2部屋に改造可(別途費用)
・駐車場
┏┓ 設備仕様
┗□━━━━━━━━━━━━━━━━*━━*━━*━━
■システムキッチン(タカラスタンダード)
:浄水器、食洗機、タッチレス水栓
■ユニットバス、洗面化粧台(パナソニック)
■トイレ(リクシル)
・玄関ドア(ファミリーロック・家族それぞれが選べる鍵)
・TVモニター付きインターホン
・深型食器洗浄乾燥機
・浴室換気暖房乾燥機
・シャワートイレ(壁面埋め込み収納付)
・突板フローリング
・乾太くん用ガスコンセント設置
┏┓ ライフインフォメーション
┗□━━━━━━━━━━━━━━━━*━━*━━*━━
≪ 商業施設 ≫
ともえ薬局別所店・・・・・・・・徒歩1分(約20m)
ファミリーマート埼玉県庁店・・・徒歩4分(約320m)
ドラッグセイムス浦和岸町店・・・徒歩8分(約580m)
埼玉県立文書館・・・・・・・・・徒歩3分(約230m)
埼玉県庁・・・・・・・・・・・・徒歩4分(約310m)
≪ 教育施設 ≫
さいたま市立浦和別所小学校
・・・・・・・・徒歩9分(約690m)※通学指定校
さいたま市立白幡中学校
・・・・・・・・徒歩12分(約960m)※通学指定校
小鳩保育園高砂・・・・・・・・・徒歩1分(約40m)
ココス・キッズワールド保育室・・徒歩1分(約50m)
--------------------------------------------------
注意1:上記記載文章は環境・施設の変化が生じている可能性がございます。
差異があった場合は【現況優先】となりますことをご了承ください。
注意2:駅からの距離、施設からの距離は、社内システムを参照して入力しております。
実際の体感距離は必ずお客様ご自身でもお確かめ頂きたく願います。
80mにつき1分計算で机上測定されております。
注意3:上記セールスポイントは、仕様書を参考にしております。
現況と差異がある場合、【現況優先】となりますことをご了承ください。
担当者コメント
浦和営業部
奥山 更紗 (おくやま さらさ)
「資金計画」 「住宅ローン」 「購入にかかる諸費用」 等
不動産に関して、ご不明な点がございましたら、
どんな些細なことでも構いません。
お気軽に【 奥山 】までお問い合わせ下さい。
お待ちしております。
■フリーダイヤル:0120-990-066
■担当携帯:090-7229-9810
■担当メール:s-okuyama@nomura-re.co.jp
特長・共用施設
物件の特徴の説明ハッシュタグをクリックすることで、同じハッシュタグを含む物件を検索できます。
物件について
| 位置 | #南向き |
|---|---|
| 部屋 | #全室2面採光 #全居室フローリング |
| 収納 | #床下収納 #全居室収納 |
| キッチン | #カウンターキッチン #食器洗浄機 #浄水器 #システムキッチン |
| 浴室・トイレ | #浴室乾燥機 #追いだき機能 #トイレ2ヶ所 #温水洗浄便座 |
| バルコニー | #バルコニー・屋上に水栓あり |
建物について
| 駐車場 | #ビルトインガレージ |
|---|
立地・周辺環境について
| 立地・環境 | #南道路(南東・南西含む) #2沿線以上利用可 #整備された歩道 #陽当り良好 |
|---|
周辺施設
物件周辺の地図を確認する-

小学校
さいたま市立浦和別所小学校
現地より約750m
徒歩10分 -

中学校
さいたま市立白幡中学校
現地より約1,300m
徒歩17分 -

駅
JR「浦和」駅
現地より約1,120m
徒歩14分 -

幼稚園、保育園
岸町保育園
現地より約750m
徒歩10分
物件の概要・詳細
物件情報の見方| 価格 | 6,580万円 住宅ローンシミュレーション | ||
|---|---|---|---|
| 物件番号 | R5070209 | ||
| 所在地 | 埼玉県さいたま市浦和区 高砂4丁目 周辺地図を見る | ||
| 交通 |
京浜東北・根岸線「浦和」駅 徒歩15分 埼京線「中浦和」駅 徒歩11分 高崎線「浦和」駅 徒歩15分 湘南新宿ライン(宇都宮~逗子)「浦和」駅 徒歩15分 |
||
| 間取り | 3LDK+ロフト | ||
|
建物面積
|
94.46m2(28.57坪)(公簿) (車庫面積:7.21m2含) 1階:29.69m2 2階:30.62m2 3階:30.62m2 その他:3.53m2 |
土地面積
| 45.99m2(13.91坪)(公簿) |
|
構造
|
木造3階建て | ||
| 築年月 | 2026年1月予定(新築) | 駐車場 | あり |
|
土地権利
|
所有権 |
地目
|
宅地 |
|
私道負担
|
なし |
セットバック
|
― |
|
都市計画
|
市街化区域 |
用途地域
|
商業地域 |
|
建ぺい率
|
80% |
容積率
|
― |
|
接道状況
|
南11.1m公道 接面6m | ||
| 設備 | ― | ||
| 現況 | 建築中 | 引 渡 | 相談 |
|
取引態様
|
仲介 |
国土法届出
|
不要 |
| 備 考 | ●建築確認番号 / 第25UDI1C建01961号●都市計画法他制限 / 準防火地域 〇ZEH水準省エネ住宅 〇耐震等級3 |
||
| 更新日 | 2026年1月31日 | 次回更新予定日 | 2026年2月14日 |
お問合せ店舗
同じエリアの新築一戸建て
-
新価格 1/30
さいたま市浦和区瀬ヶ崎4丁目 新築一戸建て
3,880万円
新価格
京浜東北・根岸線「北浦和」駅 徒歩29分
-
新価格 1/30
さいたま市浦和区瀬ヶ崎4丁目 新築一戸建て
3,980万円
新価格
京浜東北・根岸線「北浦和」駅 徒歩29分
-
新価格 1/30
さいたま市浦和区瀬ヶ崎4丁目 新築一戸建て
3,480万円
新価格
京浜東北・根岸線「北浦和」駅 徒歩29分
-
新価格 1/29
さいたま市浦和区元町2丁目 新築一戸建て
5,590万円
新価格
京浜東北・根岸線「北浦和」駅 徒歩16分
-
新価格 1/28
さいたま市浦和区瀬ヶ崎4丁目 新築一戸建て
4,199万円
新価格
京浜東北・根岸線「北浦和」駅 徒歩29分
同じエリアの中古一戸建て
-
NEW 2/1
さいたま市浦和区前地3丁目 中古戸建
6,780万円
京浜東北・根岸線「浦和」駅 徒歩9分
2LDK+S / 土地 50.22m2
-
新価格 1/31
さいたま市浦和区領家4丁目 中古戸建
3,980万円
新価格
京浜東北・根岸線「北浦和」駅 徒歩17分
4LDK / 土地 123.34m2
-
新価格 1/31
さいたま市浦和区前地1丁目 中古一戸建て
2億5,720万円
新価格
京浜東北・根岸線「浦和」駅 徒歩11分
4LDK / 土地 230.52m2
-
さいたま市浦和区岸町2丁目 中古戸建
6,980万円
京浜東北・根岸線「浦和」駅 徒歩15分
4LDK / 土地 60.79m2
-
さいたま市浦和区木崎5丁目 戸建
5,980万円
京浜東北・根岸線「北浦和」駅 バス18分 (バス停 東下木崎) 徒歩2分
2LDK+S / 土地 174.42m2
本掲載情報と現況に差異がある場合、現況を優先します。掲載物件は売却済あるいは売出中止となる場合もあります。掲載写真やパース(絵)、または間取図に描かれている家具や車などは、価格に含まれておりません。予めご了承ください。周辺施設や周辺環境の写真は、過去に撮影したものをそのまま利用している場合があり、名称・外観・背景等、実際のものとは異なる場合がございます。
仲介物件には所定の仲介手数料(消費税等相当額を含みます)が必要です。
同じ地域・沿線・駅の新築一戸建てを検索する
京浜東北・根岸線の新築一戸建てを検索する
埼玉県さいたま市浦和区新築一戸建て売却・査定
売却もお任せください
ご所有不動産の売却をご検討なら、まずは無料査定から
投資用・事業用不動産サイト ノムコム・プロ

