新築一戸建て
日野市多摩平6丁目 新築戸建 7号地
お問合せ
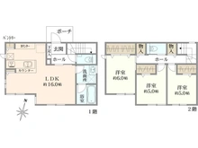
※写真の説明・詳細コメントについては、「物件TOP」タブの写真をご確認ください
お問合せ店舗
同じエリアの新築一戸建て
-
日野市新町3丁目 新築一戸建て
5,380万円
中央線「日野」駅 徒歩12分
-
日野市新町3丁目 新築一戸建て
4,780万円
中央線「日野」駅 徒歩12分
-
日野市新町3丁目 新築一戸建て
5,530万円
中央線「日野」駅 徒歩12分
-
日野市新町3丁目 新築一戸建て
5,680万円
中央線「日野」駅 徒歩12分
-
日野市旭が丘5丁目 新築一戸建て
5,480万円
中央線「豊田」駅 徒歩24分
同じエリアの中古一戸建て
-
東京都日野市旭が丘4丁目戸建
5,190万円
京王線「長沼」駅 徒歩19分
5LDK+S / 土地 145.08m2
-
日野市東豊田4丁目 中古一戸建て
3,480万円
中央線「豊田」駅 徒歩17分
5LDK / 土地 142.99m2
-
日野市東豊田1丁目 中古一戸建て
1億500万円
京王線「南平」駅 徒歩15分
4LDK+S / 土地 252.75m2
本掲載情報と現況に差異がある場合、現況を優先します。掲載物件は売却済あるいは売出中止となる場合もあります。掲載写真やパース(絵)、または間取図に描かれている家具や車などは、価格に含まれておりません。予めご了承ください。周辺施設や周辺環境の写真は、過去に撮影したものをそのまま利用している場合があり、名称・外観・背景等、実際のものとは異なる場合がございます。
仲介物件には所定の仲介手数料(消費税等相当額を含みます)が必要です。
中央線の新築一戸建てを検索する
東京都日野市新築一戸建て売却・査定
投資用・事業用不動産サイト ノムコム・プロ
