藤沢市亀井野 新築戸建 1号棟/全3棟
-
5,999万円
ローンシミュレーション - 間取り 4LDK
- 所在地 神奈川県藤沢市 亀井野
- 建物面積 107.65m2
- 土地面積 134.83m2
- 交通 小田急江ノ島線「六会日大前」駅 徒歩13分
- 築年月 2026年1月予定(新築)
お問合せ
■古き良き住環境に落ち着いた時間が流れる「藤沢市亀井野×第一種低層住居専用地域」
■東側公道×北側通路×南側隣地通路、角地に近い開放的な画地条件 ■六会日大前駅から平坦なアクセス
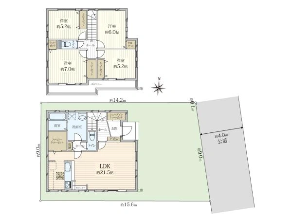
間取り図
0120-182-238
【通話無料・携帯もOK】
物件番号 F60BX013
お問い合わせの際に、物件番号をお伝えいただくとスムーズです。
この物件のおすすめポイント
◇ ◆ 藤沢市亀井野 新築戸建 1号棟 ◆ ◇
━━━━━━━━━━━━━━━━━━━━━━
┏┓物件のお勧めポイント
┗□━━━━━━━━━━━━━━━━━━━
■全3棟同時分譲の統一感ある街並み
■東側公道×北側通路に接し、南側は隣地通路!
三方に隣家がない、角地感覚の開放的な区画
■ZEH水準・省エネ住宅
■敷地面積130m2超×建物面積100m2超
ボリューム感ある4LDK一戸建
■間口:約9.1mの整形地
■LDKは家族揃ってゆったりとお寛ぎ頂ける
広々とした空間設計の約20.0帖
■全居室に5帖超の広さを確保
■キッチン横にはパントリーにもなる
大型ファミリークローゼットを設置
■浴室・洗面室・1階トイレの出入口を
1カ所に集約した水回り配置
■開放感のあるカウンターキッチンで
ご家族との会話も弾みます
■ビルトイン食洗機&浄水機能付水栓
■浴室換気乾燥機&24時間換気システム
■1坪サイズのユニットバス
■ハンドシャワー付洗面化粧台
■1階・2階双方にウォシュレット付トイレ
■リビング学習に最適なスタディデスク
■2階の二部屋に渡るワイドバルコニー
■全居室2面採光&クローゼット付
■玄関ホール~室内へはL字型動線で
来訪者に生活感が見えづらい構造
■玄関にはキャリーケースやゴルフバッグ等
の収納にも便利なシューズインクローク
■2台が並列で駐車可能なカースペース
■第一種低層住居専用地域の閑静な住宅街
■公営水道・都市ガス・本下水
┏┓ Access ~交通アクセス~
┗□━━━━━━━━━━━━━━━━━━━
■小田急江ノ島線「六会日大前」駅 徒歩13分
┏┓ Life Information ~周辺環境&施設~
┗□━━━━━━━━━━━━━━━━━━━
■ヨークフーズ 藤沢六会店
(現地より約750m・徒歩10分)
■全日食チェーン ヤマヤス食品
(現地より約750m・徒歩10分)
■キャンドゥ 藤沢六会店
(現地より約860m・徒歩11分)
■メディカルプラザ藤沢六会
(現地より約860m・徒歩11分)
・クリエイトS・D 藤沢六会店
・藤沢まえだ内科
・もみの木こどもクリニック
・もりた整形外科
■クリエイトS・D 藤沢亀井野店
(現地より約770m・徒歩10分)
■ファミリーマート 藤沢亀井野店
(現地より約700m・徒歩9分)
■セブンイレブン 藤沢亀井野4丁目店
(現地より約800m・徒歩10分)
■藤沢市六会市民センター
(現地より約700m・徒歩9分)
■藤沢市立亀井野小学校
(現地より約880m・徒歩11分)
■藤沢市立六会中学校
(現地より約1500m・徒歩19分)
■日本大学 湘南キャンパス
(現地より約1350m・徒歩17分)
■北窪公園
(現地より約280m・徒歩4分)
■境川遊水地公園
(現地より約450m・徒歩6分)
■犬久保公園
(現地より約580m・徒歩8分)
■神奈川銀行 六会支店
(現地より約880m・徒歩11分)
■JAさがみわいわい市 藤沢店
(現地より約1400m・徒歩18分)
----------------------------------------
※注意1:
駅からの距離、施設からの距離は、
社内システムを参照し、80mにつき
1分計算で入力しております。
実際の体感距離は必ずお客様ご自身でも
お確かめ頂きたく願います。
----------------------------------------
担当者コメント
藤沢センター
小畑 元希 (おばた もとき)
をご覧頂き、誠にありがとうございます。
当物件を担当しております、
小畑 元希(おばた もとき)と申します。
ご見学のご希望、物件に関するご質問など
ございましたらお気軽にお問い合わせください。
ご連絡を心よりお待ちしております。
--------------------------------------------------
【野村の仲介+ 藤沢センター】
電話番号 :0466-27-5711
フリーコール:0120-182-238
【担当 小畑 元希(おばた もとき)】
直通携帯 :080-8145-7665
直通メール :m-obata@nomura-re.co.jp
--------------------------------------------------
特長・共用施設
物件の特徴の説明ハッシュタグをクリックすることで、同じハッシュタグを含む物件を検索できます。
物件について
建物について
| セキュリティ | #TVモニタ付きインターフォン |
|---|---|
| 駐車場 | #駐車場2台以上 |
周辺施設
物件周辺の地図を確認する-

スーパー
ヨークフーズ 藤沢六会店
現地より約750m
徒歩10分 -

スーパー
全日食チェーン ヤマヤス食品
現地より約750m
徒歩10分 -

その他
キャンドゥ 藤沢六会店
現地より約860m
徒歩11分 -

ドラッグストア
メディカルプラザ藤沢六会
現地より約860m
徒歩11分
物件の概要・詳細
物件情報の見方| 価格 | 5,999万円 住宅ローンシミュレーション | ||
|---|---|---|---|
| 物件番号 | F60BX013 | ||
| 所在地 | 神奈川県藤沢市 亀井野 周辺地図を見る | ||
| 交通 | 小田急江ノ島線「六会日大前」駅 徒歩13分 | ||
| 間取り | 4LDK | ||
|
建物面積
|
107.65m2(32.56坪) 1階:56.31m2 2階:51.34m2 |
土地面積
| 134.83m2(40.78坪) |
|
構造
|
木造2階建て | ||
| 築年月 | 2026年1月予定(新築) | 駐車場 | あり |
|
土地権利
|
所有権 |
地目
|
宅地 |
|
私道負担
|
8.92m2×1 / 3 |
セットバック
|
済 |
|
都市計画
|
市街化区域 |
用途地域
|
第一種低層住居専用地域 |
|
建ぺい率
|
50% |
容積率
|
80% |
|
接道状況
|
東4m公道 接面9.1m | ||
| 設備 | 公営水道・本下水・都市ガス | ||
| 現況 | 建築中 | 引 渡 | 2026年1月下旬(入居予定) |
|
取引態様
|
仲介 |
国土法届出
|
不要 |
| 備 考 | ●建築確認番号 / 第25UDI1W建05798号 | ||
| 更新日 | 2025年12月11日 | 次回更新予定日 | 2025年12月25日 |
お問合せ店舗
同じエリアの新築一戸建て
-
新価格 12/16
藤沢市鵠沼海岸3丁目 新築一戸建て
5,480万円
新価格
小田急江ノ島線「鵠沼海岸」駅 徒歩4分
-
新価格 12/14
藤沢市善行1丁目新築戸建 3号棟
4,480万円
新価格
小田急江ノ島線「善行」駅 徒歩6分
-
新価格 12/14
藤沢市善行1丁目新築戸建 2号棟
4,480万円
新価格
小田急江ノ島線「善行」駅 徒歩6分
-
新価格 12/14
藤沢市藤沢1丁目 新築一戸建て
4,780万円
新価格
小田急江ノ島線「藤沢本町」駅 徒歩9分
-
新価格 12/14
藤沢市片瀬山5丁目 新築一戸建て
6,798万円
新価格
湘南モノレール「片瀬山」駅 徒歩12分
同じエリアの中古一戸建て
-
新価格 12/14
藤沢市片瀬山2丁目 二世帯住宅
1億6,300万円
新価格
江ノ島電鉄「柳小路」駅 徒歩13分
4LDK / 土地 473.72m2
-
新価格 12/14
藤沢市善行2丁目 中古一戸建て
4,280万円
新価格
小田急江ノ島線「善行」駅 徒歩7分
2LDK+S / 土地 93.67m2
-
NEW 12/13
藤沢市川名 一戸建
5,499万円
東海道本線(東京~熱海)「藤沢」駅 徒歩20分
3LDK+S / 土地 56.17m2
-
NEW 12/13
藤沢市片瀬3丁目 中古戸建
1億9,800万円
江ノ島電鉄「江ノ島」駅 徒歩4分
5LDK / 土地 132.23m2
-
新価格 12/12
藤沢市鵠沼松が岡3丁目戸建て
1億4,800万円
新価格
江ノ島電鉄「鵠沼」駅 徒歩7分
4LDK / 土地 231.66m2
本掲載情報と現況に差異がある場合、現況を優先します。掲載物件は売却済あるいは売出中止となる場合もあります。掲載写真やパース(絵)、または間取図に描かれている家具や車などは、価格に含まれておりません。予めご了承ください。周辺施設や周辺環境の写真は、過去に撮影したものをそのまま利用している場合があり、名称・外観・背景等、実際のものとは異なる場合がございます。
仲介物件には所定の仲介手数料(消費税等相当額を含みます)が必要です。
売却もお任せください
ご所有不動産の売却をご検討なら、まずは無料査定から
投資用・事業用不動産サイト ノムコム・プロ

