中古一戸建て
京都市下京区綾西洞院町 中古一戸建て
お問合せ
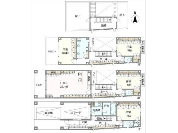
間取り図
0120-948-379
【通話無料・携帯もOK】
物件番号 UE770092
お問い合わせの際に、物件番号をお伝えいただくとスムーズです。
特長・共用施設
物件の特徴の説明ハッシュタグをクリックすることで、同じハッシュタグを含む物件を検索できます。
物件の概要・詳細
物件情報の見方| 価格 | 2億5,000万円 住宅ローンシミュレーション | ||
|---|---|---|---|
| 物件番号 | UE770092 | ||
| 所在地 | 京都府京都市下京区 綾西洞院町 周辺地図を見る | ||
| 交通 |
京都市烏丸線「四条」駅 徒歩7分 阪急京都線「烏丸」駅 徒歩8分 京福嵐山本線「四条大宮」駅 徒歩11分 |
||
| 間取り | 4LDK | ||
|
建物面積
|
194.35m2(58.79坪) |
土地面積
| 130.28m2(39.4坪)(公簿) |
|
構造
|
鉄骨造3階建て | ||
| 築年月 | 2014年12月 | 駐車場 | あり |
|
土地権利
|
所有権 |
地目
|
宅地 |
|
私道負担
|
― |
セットバック
|
― |
|
都市計画
|
市街化区域 |
用途地域
|
商業地域 |
|
建ぺい率
|
― |
容積率
|
― |
|
接道状況
|
西10m公道 接面6m | ||
| 設備 | ― | ||
| 現況 | 居住中 | 引 渡 | 相談 |
|
取引態様
|
仲介 |
国土法届出
|
不要 |
| 備 考 | 引渡時期:契約後8か月 ■写真:2025年12月撮影 ■家具・調度品は販売価格に含まれません / 引渡時期:契約後8か月 ■写真:2025年12月撮影 ■家具・調度品は販売価格に含まれません 15m第4種高度地区、旧市街地型美観地区、職住共存特別用途区域、都市部駐車場整備地区、都市機能誘導区域、居住誘導区域、京町屋条例に基づく指定地区、既成都市区域、宅地造成等工事規制区域 | ||
| 更新日 | 2026年2月24日 | 次回更新予定日 | 2026年3月10日 |
お問合せ店舗
同じエリアの一戸建て
-
中古一戸建て京都市下京区西七条南東野町 中古一戸建て 1億1,500万円 山陰本線「梅小路京都西」駅 徒歩7分
本掲載情報と現況に差異がある場合、現況を優先します。掲載物件は売却済あるいは売出中止となる場合もあります。掲載写真やパース(絵)、または間取図に描かれている家具や車などは、価格に含まれておりません。予めご了承ください。周辺施設や周辺環境の写真は、過去に撮影したものをそのまま利用している場合があり、名称・外観・背景等、実際のものとは異なる場合がございます。
仲介物件には所定の仲介手数料(消費税等相当額を含みます)が必要です。
売却もお任せください
ご所有不動産の売却をご検討なら、まずは無料査定から
投資用・事業用不動産サイト ノムコム・プロ

