中古一戸建て
世田谷区瀬田3丁目 中古一戸建て NEW 3/31
お問合せ
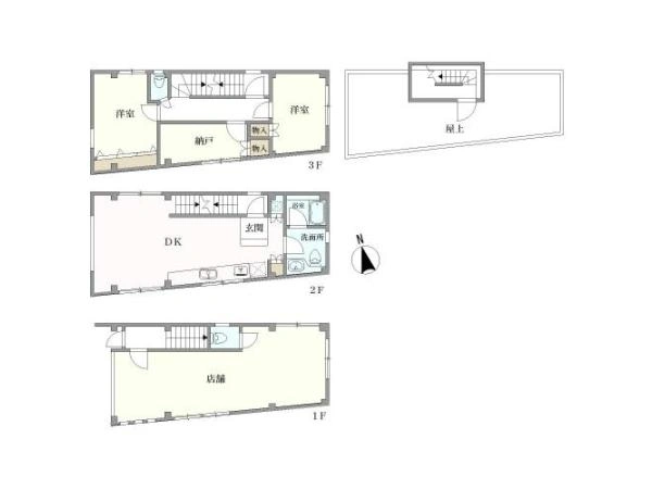
間取り図
0120-504-281
【通話無料・携帯もOK】
物件番号 U7570009
お問い合わせの際に、物件番号をお伝えいただくとスムーズです。
特長・共用施設
物件の特徴の説明ハッシュタグをクリックすることで、同じハッシュタグを含む物件を検索できます。
物件の概要・詳細
物件情報の見方| 価格 | 1億980万円 住宅ローンシミュレーション | ||
|---|---|---|---|
| 物件番号 | U7570009 | ||
| 所在地 | 東京都世田谷区 瀬田3丁目 周辺地図を見る | ||
| 交通 |
東急田園都市線「用賀」駅 徒歩13分 東急大井町線「上野毛」駅 徒歩13分 |
||
| 間取り | 2DK+S | ||
|
建物面積
|
127.34m2(38.52坪) |
土地面積
| 56.2m2(17坪)(公簿) |
|
構造
|
鉄骨造3階建て | ||
| 築年月 | 2002年10月 | 駐車場 | なし |
|
土地権利
|
所有権 |
地目
|
宅地 |
|
私道負担
|
― |
セットバック
|
― |
|
都市計画
|
市街化区域 |
用途地域
|
近隣商業地域 |
|
建ぺい率
|
― |
容積率
|
― |
|
接道状況
|
西8.3m公道 接面5.4m | ||
| 設備 | ― | ||
| 現況 | 居住中 | 引 渡 | 相談 |
|
取引態様
|
仲介 |
国土法届出
|
不要 |
| 備 考 | 間取 2SDK+店舗 家具・調度品は販売価格に含まれません。写真は2026年3月撮影。S=納戸 第3種高度地区、世田谷区環状八号線瀬田・上野毛・野毛地区沿道地区計画、環状八号線瀬田・上野毛・野毛地区地区街づくり計画 | ||
| 更新日 | 2026年4月2日 | 次回更新予定日 | 2026年4月16日 |
お問合せ店舗
同じエリアの中古一戸建て
-
NEW 4/2
世田谷区成城一丁目 戸建て
1億8,570万円
小田急小田原線「成城学園前」駅 徒歩9分
-
新価格 4/2
世田谷区等々力7丁目店舗付き住宅
1億7,900万円
新価格
東急大井町線「等々力」駅 徒歩13分
-
NEW 4/2
駒沢2丁目 中古戸建
10億8,000万円
東急田園都市線「駒沢大学」駅 徒歩7分
-
NEW 4/2
世田谷区桜上水3丁目 中古戸建
1億1,980万円
小田急小田原線「経堂」駅 徒歩13分
-
NEW 3/30
世田谷区岡本3丁目 中古戸建
1億880万円
東急田園都市線「二子玉川」駅 バス14分 徒歩5分
同じエリアの新築一戸建て
-
新価格 4/1
世田谷区砧7丁目 新築一戸建て
1億4,280万円
新価格
小田急小田原線「祖師ヶ谷大蔵」駅 徒歩11分
5LDK / 土地 175.16m2
-
新価格 4/1
世田谷区砧7丁目 新築一戸建て
1億3,950万円
新価格
小田急小田原線「祖師ヶ谷大蔵」駅 徒歩11分
5LDK / 土地 148.57m2
-
世田谷区粕谷3丁目 新築一戸建て
5,780万円
京王線「千歳烏山」駅 徒歩14分
2LDK / 土地 56.67m2
-
世田谷区梅丘3丁目新築戸建
1億3,990万円
小田急小田原線「梅ヶ丘」駅 徒歩13分
2LDK+S / 土地 95.09m2
-
世田谷区梅丘2丁目 新築一戸建て
1億498万円
小田急小田原線「豪徳寺」駅 徒歩11分
1LDK+S / 土地 90.66m2
本掲載情報と現況に差異がある場合、現況を優先します。掲載物件は売却済あるいは売出中止となる場合もあります。掲載写真やパース(絵)、または間取図に描かれている家具や車などは、価格に含まれておりません。予めご了承ください。周辺施設や周辺環境の写真は、過去に撮影したものをそのまま利用している場合があり、名称・外観・背景等、実際のものとは異なる場合がございます。
仲介物件には所定の仲介手数料(消費税等相当額を含みます)が必要です。
東急田園都市線の中古一戸建てを検索する
東京都世田谷区中古一戸建て売却・査定
売却もお任せください
ご所有不動産の売却をご検討なら、まずは無料査定から
投資用・事業用不動産サイト ノムコム・プロ

